Trong xu hướng kiến trúc những năm gần đây, có một phong cách chưa bao giờ hạ nhiệt, đó chính là mẫu nhà mái Nhật 2 tầng hiện đại. Không quá phô trương như tân cổ điển, cũng không quá khô khan như những khối hộp tối giản, kiến trúc mái Nhật mang đến một vẻ đẹp “vừa vặn” – đủ sang để hãnh diện, đủ ấm để trở về. Hôm nay, hãy cùng Techhome tham quan ngôi nhà của anh Hải tại An Dương, Hải Phòng – một minh chứng sống động cho tư duy thiết kế hiện đại và thực dụng.
1. Câu chuyện về ngôi nhà của anh Hải – Khi ước mơ thành hình
Anh Hải tìm đến Techhome vào một buổi chiều mưa tại Hải Phòng. Chia sẻ với chúng tôi, anh nói: “Anh muốn một ngôi nhà mà nhìn vào thấy nhẹ nhõm. Vợ anh thích cây xanh, anh thích sự gọn gàng, còn các con cần không gian riêng để lớn khôn. Em xem làm sao để ngôi nhà trông hiện đại nhưng vẫn bền vững theo thời gian nhé.”
Lắng nghe tâm tư đó, đội ngũ kiến trúc sư (KTS) Techhome đã bắt tay vào kiến tạo mẫu nhà mái Nhật 2 tầng hiện đại với diện tích sàn khoảng 100m2. Đây không chỉ là một bản vẽ kỹ thuật, mà là sự tính toán kỹ lưỡng về hướng gió, ánh sáng và thói quen sinh hoạt của người dân vùng đất cảng.

2. Phân tích ngoại thất: Sự lên ngôi của gam màu trung tính
Nhìn vào phối cảnh 3D, điểm ấn tượng đầu tiên chính là sự kết hợp nhuần nhuyễn giữa các vật liệu hiện đại. Toàn bộ công trình sử dụng tông màu xám ghi chủ đạo kết hợp với sắc trắng tinh khôi và màu gỗ ấm áp.
Hệ mái Nhật thanh lịch
Khác với mái Thái có độ dốc lớn, mái Nhật trong mẫu nhà mái Nhật 2 tầng hiện đại này có độ dốc vừa phải, tỏa ra các hướng. Điều này không chỉ giúp thoát nước nhanh trong những ngày mưa đặc thù của Hải Phòng mà còn tạo nên tỉ lệ hình khối cân đối, vững chãi. Màu ngói xám đen mang đến cảm giác quyền lực và sạch sẽ, ít bị phai màu theo năm tháng.
Vật liệu mặt tiền “biết nói”
-
Sơn giả đá và gạch thẻ: Phần tầng 1 được ốp đá màu xám đậm, tạo cảm giác chân đế vững chãi. Tầng 2 lại sử dụng các mảng tường phẳng trắng mịn để làm nổi bật các chi tiết ban công.
-
Trần gỗ nhựa: Dưới các khoảng ban công và sê-nô mái, Techhome sử dụng gỗ nhựa composite. Đây là chi tiết “đắt giá” giúp ngôi nhà trông ấm áp hơn vào ban đêm dưới ánh đèn vàng, đồng thời chịu được sự khắc nghiệt của thời tiết sát biển.
-
Kính cường lực: Hệ cửa nhôm kính Xingfa bản rộng giúp xóa nhòa khoảng cách giữa bên trong và bên ngoài. Với mẫu nhà mái Nhật 2 tầng hiện đại, việc tận dụng ánh sáng tự nhiên là ưu tiên hàng đầu để tiết kiệm điện năng và tốt cho sức khỏe.

3. Giải pháp mặt bằng: Tối ưu đến từng centimet
Một ngôi nhà đẹp trước hết phải là một ngôi nhà tiện dụng. Với diện tích 100m2 mỗi sàn, chúng tôi đã phân chia không gian dựa trên sự kết nối giữa các thành viên.
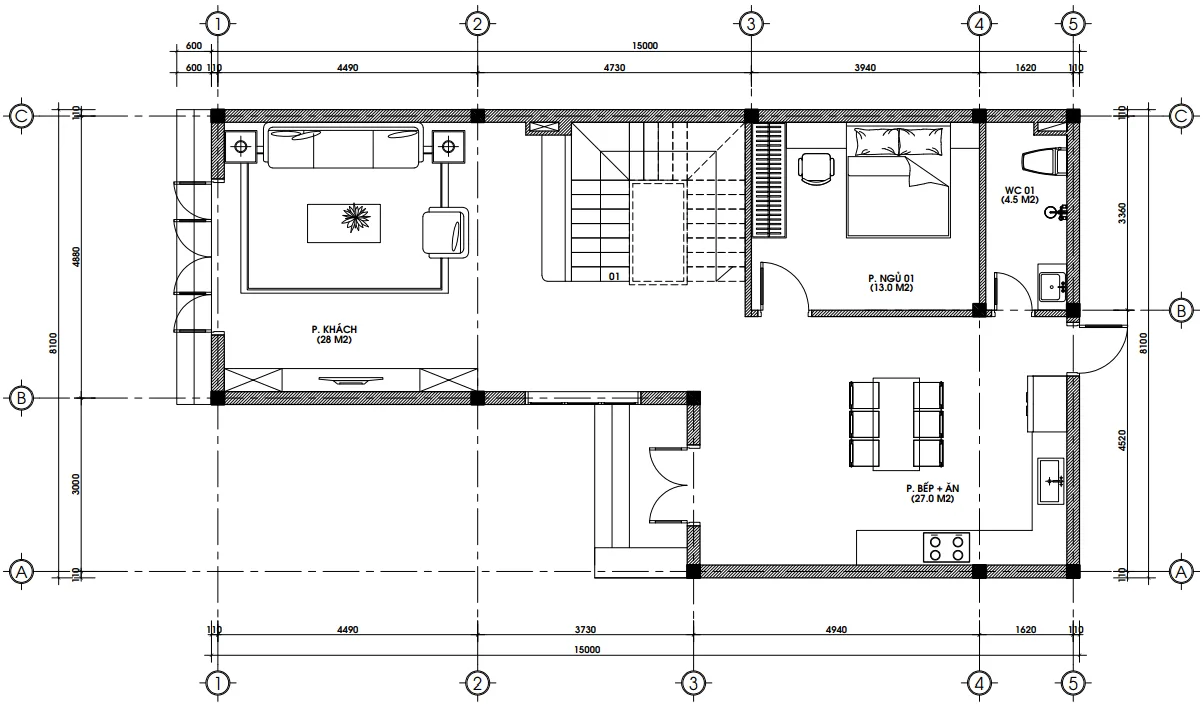
Mặt bằng tầng 1: Không gian đối nội và đối ngoại
Tầng 1 là nơi diễn ra các hoạt động chung của gia đình. Với mẫu nhà mái Nhật 2 tầng hiện đại, sự thông thoáng được đặt lên hàng đầu.
-
Phòng khách (28m2): Được đặt ngay sau sảnh chính, view nhìn ra khoảng sân trước rộng rãi. Đây là nơi anh Hải tiếp khách, cũng là nơi cả nhà quây quần xem tivi mỗi tối.
-
Phòng bếp + ăn (27m2): Thiết kế mở liên thông với phòng khách nhưng vẫn có sự phân tách tinh tế bằng lối đi. Khu bếp được bố trí hệ tủ chữ L hiện đại, có cửa phụ trước và sau không lo bị ám mùi .
-
Phòng ngủ 01 (13m2): Dành cho ông bà . Việc đặt một phòng ngủ ở tầng 1 là giải pháp cực kỳ hợp lý cho những gia đình có người lớn tuổi, tránh việc phải leo cầu thang quá nhiều.
-
WC 01 (4.5m2): Được đặt kín đáo cuối nhà, thuận tiện cho sinh hoạt chung.

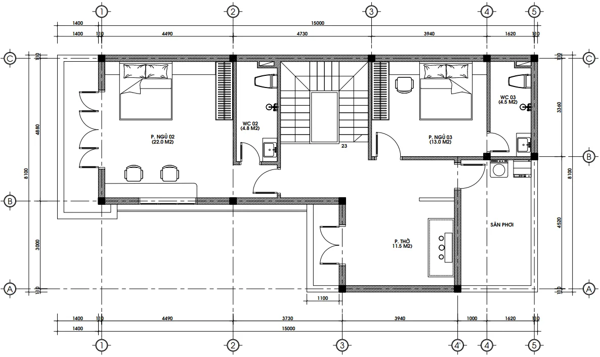
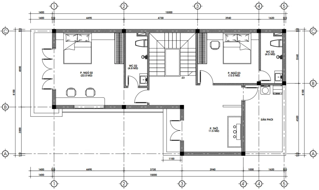
Mặt bằng tầng 2: Khoảng lặng riêng tư
Lên đến tầng 2 của mẫu nhà mái Nhật 2 tầng hiện đại, không gian trở nên yên tĩnh và riêng tư hơn.
-
Phòng ngủ Master (22m2): Đây là “lãnh địa” của vợ chồng anh Hải với diện tích cực kỳ rộng rãi, có ban công riêng nhìn ra mặt tiền. Tích hợp WC riêng biệt.
-
Phòng ngủ 03 (13m2): Dành cho con, phòng ngủ này cũng được tích hợp vệ sinh khép kín, thuận tiện cho sinh hoạt hàng ngày.
-
Phòng thờ (11.5m2): Đặt ở vị trí trang trọng nhất, hướng ra mặt tiền theo phong thủy của chủ nhà.
-
Khu vực sân phơi: Được bố trí khoa học phía sau để đảm bảo thẩm mỹ cho mặt tiền ngôi nhà.

4. Tại sao mẫu nhà mái Nhật 2 tầng hiện đại lại được ưa chuộng đến vậy?
Là một chuyên gia trong lĩnh vực thiết kế, tôi xin chia sẻ thực lòng: mẫu nhà mái Nhật 2 tầng hiện đại không chỉ đẹp mà còn cực kỳ kinh tế.
-
Chi phí xây dựng hợp lý: So với mái Mansard hay mái Thái cầu kỳ, mái Nhật thi công nhanh hơn, tiết kiệm vật liệu nhưng vẫn đảm bảo khả năng chống nóng tuyệt vời.
-
Phù hợp với mọi diện tích: Dù bạn có đất rộng ở quê hay đất phố vừa phải, kiểu kiến trúc này vẫn có thể biến tấu linh hoạt.
-
Vẻ đẹp bền vững: Những khối hình vuông vức, màu sắc nhã nhặn của mẫu nhà mái Nhật 2 tầng hiện đại rất khó bị lỗi mốt. 10 hay 20 năm sau nhìn lại, ngôi nhà vẫn giữ được nét thanh lịch vốn có.

5. Bảng báo giá dự toán xây dựng (Tham khảo)
Để bạn dễ dàng hình dung về mức đầu tư cho mẫu nhà mái Nhật 2 tầng hiện đại như của anh Hải, Techhome xin đưa ra bảng dự toán sơ bộ (Áp dụng cho năm 2026 tại khu vực Hải Phòng và các tỉnh lân cận):
| Hạng mục thi công | Đơn giá (VNĐ/m2) | Thành tiền (Ước tính) |
| Gói xây lắp phần thô | 4.000.000 – 4.500.000 | ~ 800 – 880 triệu |
| Gói hoàn thiện cơ bản | 6.000.000 – 6.800.000 | ~ 1,2 – 1,3 tỷ |
| Gói chìa khóa trao tay | 7.000.000 – 8.500.000 | ~ 1,4 – 1,7 tỷ |
Lưu ý: Đây chỉ là mức chi phí ước tính. Để nhận được báo giá chính xác và chi tiết nhất cho công trình của bạn, vui lòng liên hệ trực tiếp với chúng tôi. Hoặc để tìm hiểu rõ hơn về tiêu chuẩn vật liệu xây dựng và các yếu tố ảnh hưởng đến chi phí, bạn có thể tham khảo thêm tại các bài viết chuyên sâu về vật liệu xây dựng cao cấp trên Wikipedia.

6. Góc nhìn chuyên gia: Gợi ý để ngôi nhà của bạn hoàn hảo hơn
Với tư cách là người làm nghề, tôi muốn nhắn nhủ bạn một vài điều ngoài bản vẽ kỹ thuật. Khi xây dựng mẫu nhà mái Nhật 2 tầng hiện đại, hãy chú ý:
-
Đừng bỏ qua sân vườn: Một vài chậu cây xanh ở ban công, một bồn hoa nhỏ sát tường rào sẽ làm mềm đi những khối bê tông cứng nhắc.
-
Hệ thống chiếu sáng: Đừng chỉ dùng đèn trắng. Hãy kết hợp đèn vàng cho các vị trí trang trí như trần gỗ ban công hay đèn hắt tường. Nó sẽ biến ngôi nhà thành một kiệt tác nghệ thuật khi đêm xuống.
-
Phong thủy ánh sáng: Hãy đảm bảo mọi phòng ngủ đều có ít nhất một cửa sổ. Sự lưu thông không khí chính là “nhựa sống” của mẫu nhà mái Nhật 2 tầng hiện đại.

7. Techhome – Người bạn đồng hành tin cậy
Tại Techhome ( https://nhadeptechhome.vn/ ), chúng tôi không bán bản vẽ, chúng tôi bán giải pháp sống. Mỗi mẫu nhà mái Nhật 2 tầng hiện đại ra đời là kết quả của hàng chục giờ thảo luận, chỉnh sửa để khớp với nhu cầu thực tế của gia chủ.
Chúng tôi cam kết:
-
Minh bạch: Không phát sinh chi phí ngoài hợp đồng.
-
Chất lượng: Kỹ sư giám sát tại công trình 24/7.
-
Sáng tạo: Luôn cập nhật những xu hướng vật liệu mới nhất thế giới.
Ngôi nhà của anh Hải tại Hải Phòng là một ví dụ điển hình cho sự tận tâm đó. Nếu bạn cũng đang ấp ủ một mẫu nhà mái Nhật 2 tầng hiện đại, đừng ngần ngại nhấc máy gọi cho chúng tôi. Chúng tôi ở đây để lắng nghe và biến ý tưởng của bạn thành hiện thực.

8. Kết luận
Mẫu nhà mái Nhật 2 tầng hiện đại chính là sự lựa chọn tối ưu cho những ai yêu thích sự thanh bình, giản đơn nhưng không kém phần sang trọng. Hy vọng qua bài viết này, bạn đã có thêm nguồn cảm hứng cho tổ ấm tương lai của mình.
Bạn muốn nhận hồ sơ thiết kế đầy đủ của công trình này?
Hãy để lại thông tin hoặc liên hệ Hotline: 036.273.2222 để được tư vấn miễn phí ngay hôm nay!
