Mãn Nhãn Với Mẫu Thiết Kế Nhà Phố Tân Cổ Điển 4 Tầng Của Anh Lợi Tại Tây Phương – Hà Nội

Có bao giờ bạn đi ngang qua một con phố, bất chợt dừng lại trước một ngôi nhà cao ráo, trắng toát, sang trọng nhưng không hề phô trương, và tự nhủ: “Ước gì mình cũng có một tổ ấm như thế”? Đó chính xác là cảm xúc mà Techhome muốn mang lại khi thực hiện dự án thiết kế nhà phố tân cổ điển cho gia đình anh Lợi tại mảnh đất Tây Phương, Hà Nội đầy nắng gió.

Không chạy theo những khối hình vuông vức, khô khan của hiện đại, cũng chẳng quá rườm rà như cổ điển truyền thống, ngôi nhà của anh Lợi là bản giao hưởng tuyệt vời của sự tinh tế. Hôm nay, hãy cùng Techhome “bóc tách” hồ sơ kỹ thuật thi công của công trình này để xem một thiết kế nhà phố tân cổ điển chuẩn mực thì cần những gì nhé.

1. Cái “Duyên” Của Techhome Và Bài Toán Tại Tây Phương

Anh Lợi tìm đến Techhome với một đề bài vừa dễ mà lại vừa khó. Dễ là vì anh đã xác định rõ phong cách mình yêu thích. Khó là làm sao để đưa cái hồn của thiết kế nhà phố tân cổ điển vào một diện tích đất mặt phố đặc thù (khoảng 5.3m mặt tiền) mà không bị cảm giác “ngộp” hay rườm rà.

Nhìn vào bản vẽ mặt bằng định vị công trình, chúng ta thấy chiều sâu khu đất lên tới hơn 19m, nhưng diện tích xây dựng thực tế được tính toán kỹ lưỡng để chừa sân trước và đảm bảo thông thoáng. Thách thức của đội ngũ kiến trúc sư là phải xử lý công năng cho 4 tầng lầu sao cho “ngoài sang, trong thoáng”.

thiết kế nhà phố tân cổ điển

2. Vẻ Đẹp Ngoại Thất: Khi “Thiết Kế Nhà Phố Tân Cổ Điển” Lên Tiếng

Nhìn vào phối cảnh 3D mặt tiền, bạn sẽ thấy ngay điểm “ăn tiền” của ngôi nhà này.

Sự thống trị của những đường cong

Điểm nhấn đắt giá nhất trong bản vẽ chính là hệ thống cửa vòm kính lớn xuyên suốt từ tầng 2 lên tầng 3. Đây là đặc trưng không thể lẫn vào đâu được của phong cách thiết kế nhà phố tân cổ điển.

Thay vì những bức tường bê tông kín mít, Techhome sử dụng hệ nhôm kính xingfa cao cấp. Điều này không chỉ giúp lấy sáng tối đa cho phòng ngủ master mà còn tạo hiệu ứng thị giác khiến ngôi nhà trông cao hơn, thanh thoát hơn rất nhiều.

Hoa văn, phào chỉ: Ít nhưng “chất”

Nhiều người sợ làm nhà tân cổ điển sẽ bị “sến” vì đắp vẽ quá nhiều. Nhưng với thiết kế nhà phố tân cổ điển của nhà anh Lợi, chúng tôi tiết chế tối đa.

Theo bản vẽ chi tiết cột ốp, hệ thống thức cột giả được chạy dọc hai bên nhà tạo sự vững chãi. Các chi tiết chương họa tiết ở đỉnh mái (phù điêu) được vẽ tỉ mỉ từng nét cong, tạo nên chiếc “vương miện” kiêu hãnh cho ngôi nhà. Màu sơn trắng sứ chủ đạo kết hợp với lan can con tiện xi măng hoặc sắt mỹ thuật sơn đen tạo nên độ tương phản kinh điển.

thiết kế nhà phố tân cổ điển

3. Công Năng Bên Trong: Tiện Nghi Đến Từng Centimet

Một thiết kế nhà phố tân cổ điển đẹp thôi chưa đủ, nó phải “sống” được. Tức là công năng phải thực dụng. Hãy cùng tôi đi dạo một vòng quanh nhà anh Lợi qua bản vẽ nhé.

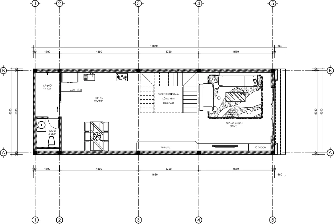
Tầng 1: Không gian kết nối và điểm nhấn hiện đại

Bước qua khoảng sân trước rộng rãi dùng để xe, chúng ta tiến vào phòng khách rộng 22m2. Điều thú vị nhất ở tầng 1 chính là sự xuất hiện của thang máy lồng kính.

Trong các mẫu thiết kế nhà phố tân cổ điển hiện nay, việc đưa thang máy kính vào giữa thang bộ là giải pháp cực kỳ thông minh. Nó vừa tiết kiệm diện tích, vừa biến khu vực cầu thang thành một điểm nhấn nội thất sang trọng, không còn là góc chết tối tăm nữa.

Phía sau nhà là khu bếp ăn rộng 23.6m2 và một sân ướt nhỏ để gia công thực phẩm sạch – một chi tiết rất “đời thường” và hiểu thói quen sinh hoạt của người Việt.

mặt bằng tầng 1 thiết kế nhà phố tân cổ điển

Tầng 2: Sự riêng tư tuyệt đối

Lên đến tầng 2, không gian được dành trọn vẹn cho sự nghỉ ngơi. Bản vẽ cho thấy tầng này gồm 2 phòng ngủ khép kín (Master).

  • Phòng ngủ 1: 21.7m2

  • Phòng ngủ 2: 23m2Điểm cộng lớn là cả hai phòng đều có WC riêng, đảm bảo sự riêng tư tối đa. Trong thiết kế nhà phố tân cổ điển, việc bố trí nội thất phòng ngủ thường hướng đến sự ấm cúng, với các đường phào chỉ chạy trên trần và tường tạo cảm giác sang trọng như khách sạn 5 sao.

mặt bằng tầng 2 thiết kế nhà phố tân cổ điển

Tầng 3: Không gian cho các thành viên

Tầng 3 tiếp tục là không gian ngủ nghỉ với 02 phòng ngủ nữa (17.8m2 và 25.5m2). Dù là nhà ống, nhưng nhờ giếng trời bố trí khéo léo cạnh cầu thang và thông tầng phía sau, gió và ánh sáng vẫn len lỏi vào từng ngóc ngách. Đây là yếu tố sống còn giúp ngôi nhà không bị bí bách.

mặt bằng tầng 3 thiết kế nhà phố tân cổ điển

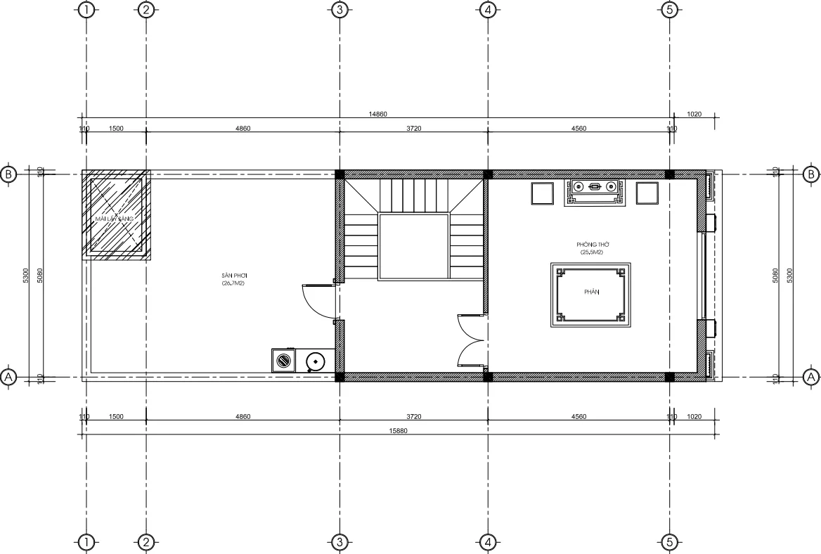
Tầng 4: Tâm linh và Thư giãn

Người Việt ta trọng chữ “Hiếu”. Vì thế, vị trí đẹp nhất, cao nhất của ngôi nhà (Tầng 4) được anh Lợi dành làm Phòng thờ rộng 25.5m2. Phía sau là sân phơi rộng rãi.

Một sân thượng được thiết kế nhà phố tân cổ điển thường sẽ có thêm giàn hoa pergola hoặc tiểu cảnh, biến nơi đây thành khu vực BBQ cuối tuần cực “chill” cho cả gia đình.

mặt bằng tầng 4 thiết kế nhà phố tân cổ điển

4. Tại Sao Bạn Nên Chọn Thiết Kế Nhà Phố Tân Cổ Điển?

Không phải ngẫu nhiên mà anh Lợi và rất nhiều khách hàng của Techhome lại “phải lòng” phong cách này.

  1. Vẻ đẹp bền bỉ với thời gian: Nếu phong cách hiện đại có thể lỗi mốt sau 10-20 năm, thì thiết kế nhà phố tân cổ điển lại càng để lâu càng đẹp, càng có giá trị. Nó mang vẻ đẹp của sự hoài niệm nhưng được cách tân để phù hợp với nhịp sống mới.

  2. Thể hiện đẳng cấp gia chủ: Những đường nét hoa văn, thức cột bề thế luôn ngầm khẳng định vị thế và gu thẩm mỹ tinh tế của người sở hữu.

  3. Cách nhiệt tốt: Với đặc trưng tường dày, trần cao (thường có trần thạch cao chống nóng), nhà tân cổ điển thường mát mẻ vào mùa hè và ấm áp vào mùa đông.

thiết kế nhà phố tân cổ điển

5. Báo Giá Thiết Kế Và Thi Công Nhà Phố Tân Cổ Điển (Cập Nhật 2026)

Đây chắc chắn là phần các bạn quan tâm nhất. “Đẹp thế này thì hết bao nhiêu tiền?”. Dựa trên hồ sơ kỹ thuật thi công và kinh nghiệm thực chiến, Techhome xin gửi đến bạn bảng ước tính chi phí đầu tư cho một ngôi nhà tương tự nhà anh Lợi (Diện tích sàn khoảng 80m2 x 4 tầng).

Lưu ý: Đây chỉ là mức chi phí ước tính. Để nhận được báo giá chính xác và chi tiết nhất cho công trình của bạn, vui lòng liên hệ trực tiếp với chúng tôi. Hoặc để tìm hiểu rõ hơn về tiêu chuẩn vật liệu xây dựng và các yếu tố ảnh hưởng đến chi phí, bạn có thể tham khảo thêm tại các bài viết chuyên sâu về vật liệu xây dựng cao cấp trên Wikipedia.

Hạng Mục Đơn Giá (VNĐ) Diễn Giải
1. Chi phí Thiết kế
Thiết kế Kiến trúc 108.000 /m2 Bao gồm bản vẽ 3D, bổ kỹ thuật, kết cấu, điện nước.
Thiết kế Nội thất 150.000 /m2 Bản vẽ 3D nội thất, chi tiết đồ gỗ.
Gói Combo (Kiến trúc + Nội thất) 250.000 /m2
2. Chi phí Thi công Xây dựng
Thi công phần thô + Nhân công hoàn thiện 4.200.000 – 4.500.000 /m2 Bao gồm sắt thép, xi măng, gạch, cát đá, nhân công.
Thi công trọn gói (Chìa khóa trao tay) 7.000.000 – 8.500.000 /m2 Bao gồm cả vật tư hoàn thiện (gạch ốp lát, sơn bả, thiết bị vệ sinh, cửa…).
3. Chi phí Hoàn thiện đặc thù
Đắp vẽ phào chỉ, phù điêu mặt tiền 1.500.000 – 3.000.000 /m2 Tùy độ phức tạp của mẫu thiết kế nhà phố tân cổ điển.
Thang máy lồng kính (4 điểm dừng) 350.000.000 – 500.000.000 Tùy loại động cơ (Fuji, Mitsubishi…) và vách kính.

Lời khuyên từ Techhome: Với mẫu nhà như của anh Lợi, phần “xương sống” tốn kém nhất nằm ở phần hoàn thiện mặt tiền và hệ thống cửa. Đừng ham rẻ mà chọn đội thợ không chuyên đắp vẽ phào chỉ, vì sai một ly là đi một dặm, cái “thần” của thiết kế nhà phố tân cổ điển sẽ bị phá hỏng ngay.

6. Những Lưu Ý “Sống Còn” Khi Thi Công Nhà Phố Tân Cổ Điển

Từ hồ sơ thiết kế của Techhome, tôi muốn lưu ý các bạn một vài điểm kỹ thuật quan trọng:

  • Hệ thống điện nước: Bản vẽ mặt bằng trần đèn cho thấy việc bố trí đèn LED downlight và đèn hắt âm trần là cực kỳ quan trọng để tôn lên vẻ đẹp của trần thạch cao. Hãy giám sát kỹ cốt trần và vị trí khoét đèn.

  • Vật liệu lát sàn: Tại tầng 1, chúng tôi chỉ định lát đá Granite hoặc gạch vân đá khổ lớn. Điều này giúp không gian sang trọng và dễ vệ sinh. Đừng dùng gạch men thường cho phòng khách nhà tân cổ điển, nó sẽ làm giảm giá trị ngôi nhà.

  • Sơn ngoại thất: Một thiết kế nhà phố tân cổ điển đẹp cần loại sơn có khả năng tự làm sạch và chống thấm tốt, vì các khe phào chỉ rất dễ đọng bụi bẩn tạo thành vệt đen sau vài năm sử dụng.

thiết kế nhà phố tân cổ điển

7. Techhome – Nơi Kiến Tạo Những Tuyệt Tác Tân Cổ Điển

Tại sao anh Lợi tại Tây Phương lại chọn Techhome giữa hàng trăm đơn vị khác?

Đơn giản thôi, vì chúng tôi không chỉ vẽ đẹp, chúng tôi vẽ để thi công được. Hồ sơ thiết kế của Techhome luôn đầy đủ từ kiến trúc, kết cấu đến từng chi tiết lan can, tay vịn cầu thang

Chúng tôi hiểu rằng, thiết kế nhà phố tân cổ điển là một bài toán cân não giữa thẩm mỹ và ngân sách. Đội ngũ KTS của Techhome luôn sẵn sàng ngồi lại cùng bạn, gạch xóa từng phương án để tìm ra giải pháp tối ưu nhất.

Bạn đang ấp ủ một ngôi nhà mơ ước? Bạn trót yêu vẻ đẹp lãng mạn của phong cách tân cổ điển? Hãy để Techhome hiện thực hóa nó.

Liên hệ ngay với chúng tôi:

Đừng ngần ngại, một cuộc gọi tư vấn là hoàn toàn miễn phí, nhưng nó có thể giúp bạn tránh lãng phí hàng trăm triệu đồng khi xây nhà đấy!

Để lại một bình luận

Email của bạn sẽ không được hiển thị công khai. Các trường bắt buộc được đánh dấu *

    Vui lòng nhấn nút YÊU CẦU TƯ VẤN và đợi 1 - 2 giây đến khi thấy thông báo thành công

    YÊU CẦU TƯ VẤN