Xây nhà là chuyện hệ trọng cả đời. Ai trong chúng ta cũng mong muốn sở hữu một tổ ấm không chỉ che mưa che nắng mà còn phải thẩm mỹ, tiện nghi và “vừa vặn” với túi tiền. Giữa vô vàn phong cách kiến trúc, mẫu nhà 2 tầng mái Nhật đang nổi lên như một “hoa hậu” trong làng xây dựng tại các vùng ven đô và nông thôn Việt Nam nhờ vẻ đẹp thanh thoát và công năng tối ưu. Hôm nay, TechHome xin giới thiệu đến quý khách hàng một “siêu phẩm” chúng tôi vừa hoàn thiện hồ sơ thiết kế cho gia đình anh Kiên tại Chí Linh, Hải Dương. Đây chắc chắn sẽ là nguồn cảm hứng tuyệt vời cho dự định xây nhà sắp tới của bạn.
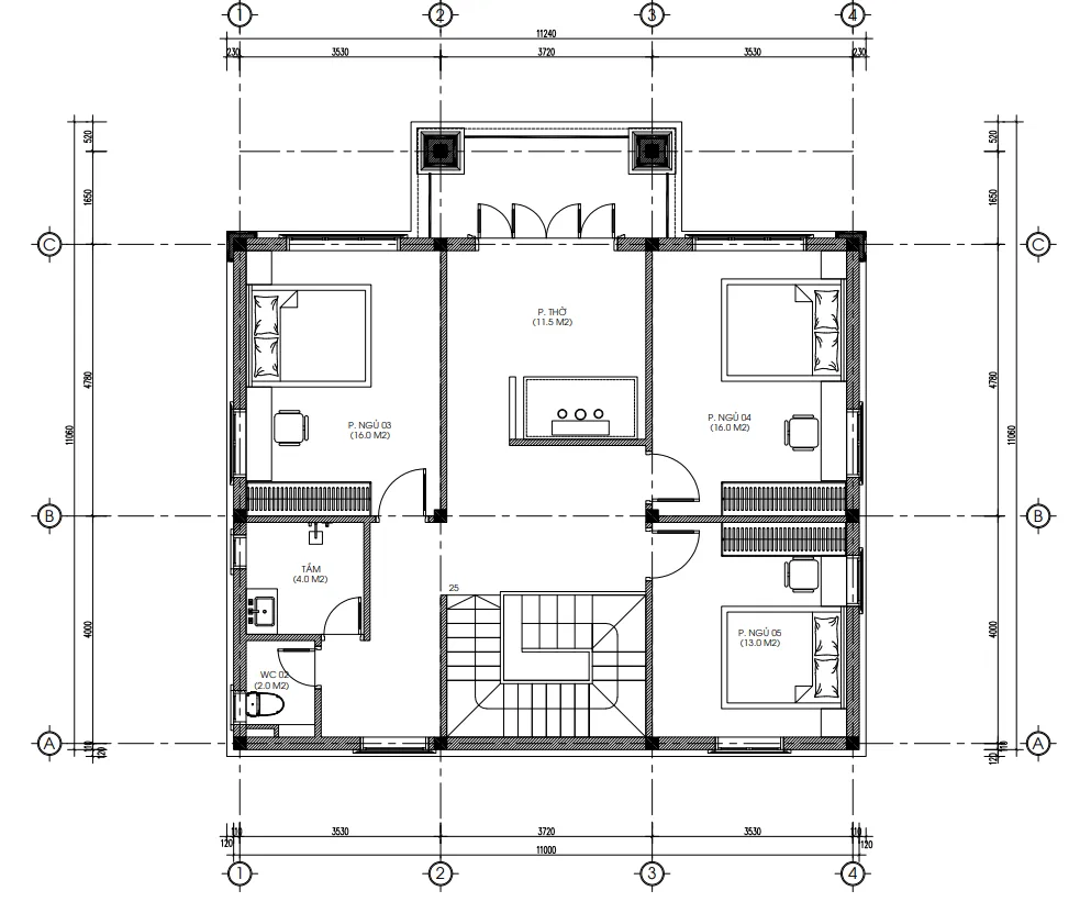
1. Khám phá công năng “đỉnh cao” bên trong (Bản vẽ chi tiết)
Một ngôi nhà 2 tầng mái Nhật đẹp không chỉ ở cái vỏ bên ngoài, mà quan trọng nhất là bố trí công năng bên trong phải khoa học, thuận tiện cho sinh hoạt. Với kích thước xây dựng khoảng 11.2m x 11m, diện tích sàn sử dụng gần 100m2/sàn, TechHome đã bố trí như sau:
3.1. Mặt bằng tầng 1: Không gian gắn kết
Tầng 1 được xem là “trái tim” của ngôi nhà, nơi diễn ra các hoạt động chung.
-
Phòng khách (32m2): Bước qua sảnh chính là phòng khách rộng rãi. Đây là bộ mặt của gia chủ, nơi anh Kiên tiếp đón bạn bè, người thân. Không gian này được thiết kế mở, liên thông với khu vực sảnh thang tạo cảm giác cực kỳ thoáng đãng.
-
Phòng ngủ: Tầng 1 được bố trí 02 phòng ngủ.
-
Phòng ngủ 01 (16m2).
-
Phòng ngủ 02 (13m2). Việc bố trí phòng ngủ ở tầng 1 trong mẫu nhà 2 tầng mái Nhật này cực kỳ hợp lý, đặc biệt nếu gia đình có người lớn tuổi, giúp ông bà hạn chế phải leo cầu thang.
-
-
Khu vệ sinh: 01 Nhà vệ sinh chung (WC) được đặt kín đáo phía cuối nhà, cạnh cầu thang, đảm bảo thẩm mỹ và phong thủy.
Lưu ý: Có thể bạn thắc mắc khu bếp ở đâu? Với đặc thù sinh hoạt tại Chí Linh, Hải Dương, nhiều gia đình vẫn ưu tiên khu bếp ăn riêng biệt ở nhà phụ phía sau để tránh mùi và rộng rãi cho những dịp cỗ bàn. Tuy nhiên, nếu bạn muốn tích hợp bếp vào trong, TechHome hoàn toàn có thể điều chỉnh thiết kế nhà 2 tầng mái Nhật này để thêm khu bếp ăn liên thông.

3.2. Mặt bằng tầng 2: Không gian nghỉ ngơi riêng tư
Di chuyển lên tầng 2 qua cầu thang 25 bậc chuẩn phong thủy (Sinh – Lão – Bệnh – Tử – Sinh), chúng ta sẽ đến với không gian nghỉ ngơi chính.
-
Phòng thờ (11.5m2): Đặt ở vị trí trang trọng nhất, hướng ra mặt tiền, thể hiện lòng thành kính với gia tiên.
-
Hệ thống phòng ngủ: Tầng này có tới 03 phòng ngủ, nâng tổng số phòng ngủ của ngôi nhà lên con số 5.
-
Phòng ngủ 03 (16m2).
-
Phòng ngủ 04 (16m2).
-
Phòng ngủ 05 (13m2). Việc có tới 5 phòng ngủ biến mẫu nhà 2 tầng mái Nhật này thành lựa chọn hoàn hảo cho các gia đình đa thế hệ (3 thế hệ) cùng chung sống.
-
-
Ban công: Khu vực ban công phía trước là nơi lý tưởng để đặt một bàn trà nhỏ, ngắm cảnh làng quê mỗi sáng sớm hay chiều tà.

2. Tại sao anh Kiên lại chọn thiết kế nhà 2 tầng mái Nhật?
Khi tìm đến TechHome, anh Kiên – một người con của đất Chí Linh, Hải Dương – đã chia sẻ rất chân tình: “Anh thích sự đơn giản nhưng phải sang trọng, không cần quá cầu kỳ như lâu đài nhưng nhìn vào phải thấy sự bề thế, vững chãi”. Và quan trọng nhất, với diện tích đất rộng rãi, anh muốn một ngôi nhà đón được gió, thoáng mát vào mùa hè và ấm áp vào mùa đông.
Sau khi khảo sát thực địa và lắng nghe tâm tư của gia chủ, các kiến trúc sư của TechHome đã tư vấn ngay mẫu nhà 2 tầng mái Nhật. Tại sao lại là lựa chọn này?
-
Tính thẩm mỹ cao: Hệ mái Nhật (mái lùn) có độ dốc vừa phải, mở rộng ra các hướng khác nhau, tạo nên sự cân đối, hài hòa tuyệt đối cho tổng thể công trình.
-
Phù hợp khí hậu: Với thời tiết khắc nghiệt của miền Bắc, nhà 2 tầng mái Nhật khả năng thoát nước mưa tốt, chống nóng hiệu quả nhờ lớp đệm không khí phía dưới mái.
-
Chi phí hợp lý: So với mái Thái hay các kiểu kiến trúc Cổ điển đắp vẽ nhiều phào chỉ, phong cách này tiết kiệm chi phí nhân công và vật liệu hơn đáng kể.
Chính vì những ưu điểm “đánh trúng tim đen” này, phương án thiết kế đã được anh Kiên chốt ngay từ lần trình bày đầu tiên.

3. Phân tích vẻ đẹp ngoại thất: Sự giao thoa giữa hiện đại và truyền thống
Nhìn vào phối cảnh 3D mặt tiền, bạn sẽ thấy mẫu nhà 2 tầng mái Nhật của gia đình anh Kiên toát lên một vẻ đẹp cực kỳ hút mắt nhưng không hề phô trương.
2.1. Màu sắc và hình khối kiến trúc
Ngôi nhà khoác lên mình “tấm áo” màu trắng sứ chủ đạo – gam màu không bao giờ lỗi mốt, giúp công trình luôn tươi mới theo thời gian. Nổi bật trên nền trắng ấy là hệ mái ngói màu xanh than sang trọng. Sự kết hợp giữa Trắng – Xanh tạo nên cảm giác bình yên, nhẹ nhàng, rất phù hợp với cảnh quan thiên nhiên tại Hải Dương.
Hình khối ngôi nhà được thiết kế vuông vức, khỏe khoắn. Hệ thống cột trụ vuông ở sảnh chính và sảnh phụ được kẻ chỉ lõm, kết hợp với các chi tiết phào chỉ nhẹ nhàng tại cổ trần và phân tầng, giúp xóa tan sự đơn điệu của những bức tường phẳng.
2.2. Hệ thống cửa và vật liệu
Để tối ưu hóa ánh sáng tự nhiên, TechHome đã sử dụng hệ thống cửa nhôm kính Xingfa cao cấp cho toàn bộ cửa sổ. Riêng cửa chính (Cửa Đại Hội) được làm bằng gỗ Lim Nam Phi kết hợp pano kính, vừa giữ được nét truyền thống trang nghiêm, vừa lấy sáng hiệu quả cho khu vực phòng khách.
Phần chân tường được ốp đá thẻ màu ghi xám. Đây là một chi tiết nhỏ nhưng thể hiện sự tinh tế của người thiết kế nhà 2 tầng mái Nhật: lớp đá này không chỉ tạo điểm nhấn vững chãi cho phần đế mà còn bảo vệ chân tường khỏi rêu mốc, lấm bẩn khi trời mưa – một vấn đề rất hay gặp ở các ngôi nhà vườn.
Để tìm hiểu rõ hơn về tiêu chuẩn vật liệu xây dựng và các yếu tố ảnh hưởng đến chi phí, bạn có thể tham khảo thêm tại các bài viết chuyên sâu về vật liệu xây dựng cao cấp trên Wikipedia.

4. Tại sao mẫu nhà này lại trở thành xu hướng năm 2026?
Không phải ngẫu nhiên mà từ khóa “nhà 2 tầng mái Nhật” lại được tìm kiếm nhiều đến vậy. Qua công trình của anh Kiên, chúng ta thấy được sự ưu việt của nó:
-
Tối ưu diện tích: Với lô đất vuông vắn, thiết kế này tận dụng triệt để không gian, không có góc chết.
-
Phong thủy tốt: Mái Nhật có chóp hình tứ giác cao ở vùng đỉnh, vát nghiêng về các cạnh đáy, theo quan niệm phong thủy, điều này giúp tản khí xấu, tích tụ vượng khí cho gia chủ.
-
Dễ dàng thi công: Kết cấu không quá phức tạp giúp thời gian thi công nhanh, gia chủ sớm được về nhà mới.

5. Báo giá thiết kế và thi công nhà 2 tầng mái Nhật (Cập nhật 2026)
Đây chắc chắn là phần mà các bạn quan tâm nhất. Chi phí để xây dựng một căn nhà 2 tầng mái Nhật đẹp như của anh Kiên là bao nhiêu? TechHome xin đưa ra bảng dự toán tham khảo (giá có thể thay đổi tùy thời điểm và vật liệu):
5.1. Chi phí thiết kế
Tại TechHome, chúng tôi đang áp dụng mức giá cho gói thiết kế kiến trúc và kết cấu.
-
Đơn giá: 108.000đ/m2.
-
Với diện tích sàn khoảng 220m2 (2 tầng), chi phí thiết kế trọn bộ hồ sơ chỉ khoảng 23 – 24 triệu đồng. Đây là khoản đầu tư quá nhỏ để tránh được những rủi ro đập đi xây lại tốn kém hàng trăm triệu đồng.
5.2. Chi phí xây dựng phần thô
Bao gồm: Móng, khung cột, sàn bê tông, xây tường, trát tường, điện nước âm tường, mái ngói.
-
Đơn giá: 4.000.000đ – 4.500.000đ/m2.
-
Tổng chi phí phần thô: Khoảng 900 triệu – 1 tỷ đồng.
5.3. Chi phí hoàn thiện (Chìa khóa trao tay)
Bao gồm: Gạch ốp lát, sơn bả, thiết bị vệ sinh, cửa, trần thạch cao, đèn điện… (chưa bao gồm nội thất rời như giường, tủ, bàn ghế).
-
Đơn giá: 6.000.000đ – 7.500.000đ/m2.
-
Tổng chi phí hoàn thiện: Khoảng 1.3 tỷ – 1.6 tỷ đồng.
Lưu ý: Để có bảng báo giá chính xác nhất cho mẫu nhà 2 tầng mái Nhật phù hợp với khu đất của bạn, hãy liên hệ trực tiếp hotline của TechHome.

6. Những lưu ý “xương máu” khi xây nhà 2 tầng mái Nhật
Với kinh nghiệm thực chiến hàng trăm công trình, Techhome muốn chia sẻ vài điều tâm huyết để bạn có được ngôi nhà 2 tầng mái Nhật ưng ý nhất:
-
Tỷ lệ mái: Đây là “linh hồn” của ngôi nhà. Độ dốc mái Nhật thường thấp hơn mái Thái (khoảng 25-30 độ). Nếu thợ thi công không có kinh nghiệm, làm mái quá dốc sẽ biến thành mái Thái, còn quá bằng thì nước thoát chậm. Hãy yêu cầu đơn vị thiết kế tính toán kỹ độ dốc thoát nước.
-
Lựa chọn vật liệu ngói: Nên dùng ngói tráng men hoặc ngói không nung cao cấp (như ngói Fuji, Romantic…) để giữ màu bền. Màu xanh than hoặc xanh rêu đang là “trend” của các mẫu nhà 2 tầng mái Nhật hiện nay, vừa sạch sẽ vừa sang trọng.
-
Hệ thống móng: Hải Dương hay các vùng đồng bằng sông Hồng thường có nền đất yếu ở một số khu vực. Đừng tiếc tiền khảo sát địa chất. Hồ sơ của anh Kiên sử dụng móng chắc chắn để đảm bảo tuổi thọ công trình trăm năm.

7. Quy trình làm việc tại Kiến trúc TechHome
Để ra được một bộ hồ sơ chất lượng như công trình tại Chí Linh – Hải Dương này, TechHome tuân thủ quy trình 6 bước nghiêm ngặt:
-
Tiếp nhận thông tin: Lắng nghe nhu cầu về nhà 2 tầng mái Nhật của khách hàng.
-
Khảo sát thực địa: Đo đạc đất, xem hướng nắng, hướng gió.
-
Lên phương án mặt bằng: Bố trí công năng (như cách chúng tôi bố trí 5 phòng ngủ cho nhà anh Kiên).
-
Dựng phối cảnh 3D: Giúp khách hàng nhìn thấy ngôi nhà tương lai của mình trước khi xây.
-
Triển khai hồ sơ kỹ thuật: Kết cấu, điện, nước, dự toán chi tiết.
-
Bàn giao và giám sát tác quyền: Hỗ trợ kỹ thuật từ xa qua Zalo/điện thoại trong suốt quá trình thi công.

8. Tại sao bạn nên chọn TechHome?
Giữa “ma trận” các đơn vị thiết kế, TechHome tự tin là người bạn đồng hành tin cậy:
-
Đội ngũ thực chiến: KTS và KS trực tiếp chủ trì và kiểm duyệt.
-
Hồ sơ chi tiết: Bản vẽ của chúng tôi chi tiết đến từng viên gạch lát sàn , từng chi tiết phào chỉ, đảm bảo thợ địa phương nhìn là làm được ngay.
-
Hỗ trợ tận tâm: Số hotline hỗ trợ kỹ thuật 0364.042.222 luôn túc trực để giải quyết mọi vướng mắc tại công trường.
Lời kết
Mẫu nhà 2 tầng mái Nhật của gia đình anh Kiên tại Hải Dương là minh chứng rõ nét cho xu hướng kiến trúc hiện đại: Đẹp – Tiện nghi – Kinh tế. Nó không chỉ là nơi để ở, mà còn là niềm tự hào của cả gia đình.
Nếu bạn cũng đang ấp ủ giấc mơ về một ngôi nhà 2 tầng mái Nhật khang trang, đừng ngần ngại chia sẻ với TechHome. Chúng tôi không chỉ vẽ nhà, chúng tôi vẽ nên tổ ấm của bạn.
CÔNG TY CỔ PHẦN KIẾN TRÚC VÀ XÂY DỰNG TECHHOME
-
Địa chỉ: B1.1 LK18 Ô 3 – KĐT Thanh Hà – Cienco 5 – Thanh Oai- Hà Nội.
-
Hotline hỗ trợ kỹ thuật: 0364.042.222 – 0387.603.333.
-
Website: https://nhadeptechhome.vn/
Bạn có muốn TechHome tính toán sơ bộ chi phí xây dựng cho lô đất của nhà mình không? Hãy để lại bình luận hoặc gọi ngay cho chúng tôi nhé!
