Mẫu Nhà 2 Tầng Mái Nhật Hiện Đại Tại Thái Bình: Khi Sự Tinh Tế Gặp Gỡ Tiện Nghi

Có những ngôi nhà, chỉ cần nhìn qua một lần là đã thấy “ưng cái bụng”, thấy bình yên và muốn dọn vào ở ngay. Đó chính xác là cảm giác mà mẫu nhà 2 tầng mái Nhật mã số 459 do TechHome thiết kế cho gia đình anh Anh tại Kiến Xương, Thái Bình mang lại. Không quá phô trương cầu kỳ, nhưng sự hài hòa trong từng đường nét, màu sắc và công năng sử dụng đã khiến công trình này trở thành niềm mơ ước của rất nhiều gia chủ tại các vùng quê Bắc Bộ hiện nay.

Nếu bạn đang đi tìm một mẫu nhà 2 tầng mái Nhật vừa vặn với túi tiền, lại đảm bảo thẩm mỹ bền vững theo thời gian, hãy cùng TechHome “mổ xẻ” chi tiết công trình tâm đắc này nhé!

1. Tổng quan về công trình: Vẻ đẹp đến từ sự hài hòa

Trước khi đi sâu vào chi tiết, chúng ta hãy cùng điểm qua những thông tin cơ bản nhất của dự án này:

  • Chủ đầu tư: Anh Anh.

  • Địa điểm xây dựng: Huyện Kiến Xương, Tỉnh Thái Bình.

  • Đơn vị thiết kế: Công ty Cổ phần Kiến trúc và Xây dựng TechHome.

  • Phong cách kiến trúc: Hiện đại, hệ mái Nhật (mái lùn).

  • Kích thước xây dựng: Mặt tiền khoảng 9.3m, chiều sâu khoảng 12.6m.

  • Công năng: 4 phòng ngủ, phòng khách, bếp ăn, phòng thờ và các công trình phụ trợ.

Đây là một mẫu nhà 2 tầng mái Nhật điển hình cho xu hướng xây dựng “nhà cao cửa rộng” ở nông thôn mới. Nó xóa bỏ định kiến về những ngôi nhà ống bí bách hay nhà ngói ba gian truyền thống thiếu tiện nghi.

mẫu nhà 2 tầng mái Nhật

2. Phân tích ngoại thất: Hiện đại, thanh lịch và “sang”

Điểm “ăn tiền” nhất của mẫu nhà 2 tầng mái Nhật này chính là sự phối màu và hình khối.

Màu sắc chủ đạo: Xanh ghi và Trắng sứ

Nhìn vào phối cảnh 3D, bạn sẽ thấy TechHome đã khéo léo sử dụng tông màu trắng sứ làm chủ đạo cho các mảng tường lớn. Đây là gam màu “quốc dân”, giúp ngôi nhà luôn tươi mới và bắt sáng tốt. Để tạo điểm nhấn, tránh sự đơn điệu, các kiến trúc sư đã phối hợp với màu xanh ghi ở các hệ cột, phân tầng và đặc biệt là hệ mái ngói Fuji màu xanh than.

Sự kết hợp này tạo nên một tổng thể mẫu nhà 2 tầng mái Nhật cực kỳ mát mắt, sang trọng nhưng không hề lòe loẹt. Màu xanh ghi cũng là màu rất sạch, bền màu với thời tiết nắng mưa thất thường của miền Bắc.

Hệ mái Nhật – Linh hồn của ngôi nhà

Tại sao lại là mái Nhật mà không phải mái Thái hay mái bằng?

Với diện tích đất rộng và thoáng tại Thái Bình, hệ mái Nhật với độ dốc vừa phải, tỏa ra bốn hướng giúp ngôi nhà trông bề thế và cân đối hơn hẳn.

  • Về thẩm mỹ: Mái Nhật (hay còn gọi là mái lùn) mang lại vẻ đẹp thanh thoát, nhẹ nhàng.

  • Về công năng: Hệ mái này thoát nước cực tốt, chống nóng hiệu quả vào mùa hè và ấm áp vào mùa đông. Chiều cao mái được tính toán kỹ lưỡng (đỉnh mái ở cốt +10.260m) giúp tỉ lệ ngôi nhà đạt chuẩn vàng trong kiến trúc.

Hệ thống cửa: Giao thoa giữa truyền thống và hiện đại

Mặt tiền ngôi nhà nổi bật với bộ cửa chính 4 cánh làm bằng gỗ Lim Nam Phi kết hợp pano kính. Gỗ Lim mang lại sự vững chãi, uy nghi cho mặt tiền – điều mà các gia chủ Việt rất coi trọng.

Ngược lại, toàn bộ hệ thống cửa sổ lại sử dụng nhôm hệ Xingfa kết hợp kính cường lực an toàn. Điều này giúp mẫu nhà 2 tầng mái Nhật tận dụng tối đa ánh sáng tự nhiên, giúp không gian bên trong luôn thông thoáng, tiết kiệm điện năng và mở rộng tầm nhìn ra sân vườn xanh mát bên ngoài.

mẫu nhà 2 tầng mái Nhật

3. “Soi” chi tiết công năng: Bài toán diện tích được giải quyết triệt để

Một ngôi nhà đẹp không chỉ để ngắm, mà quan trọng nhất là phải “sướng” khi ở. Hãy cùng xem TechHome đã bố trí công năng cho mẫu nhà 2 tầng mái Nhật này như thế nào nhé.

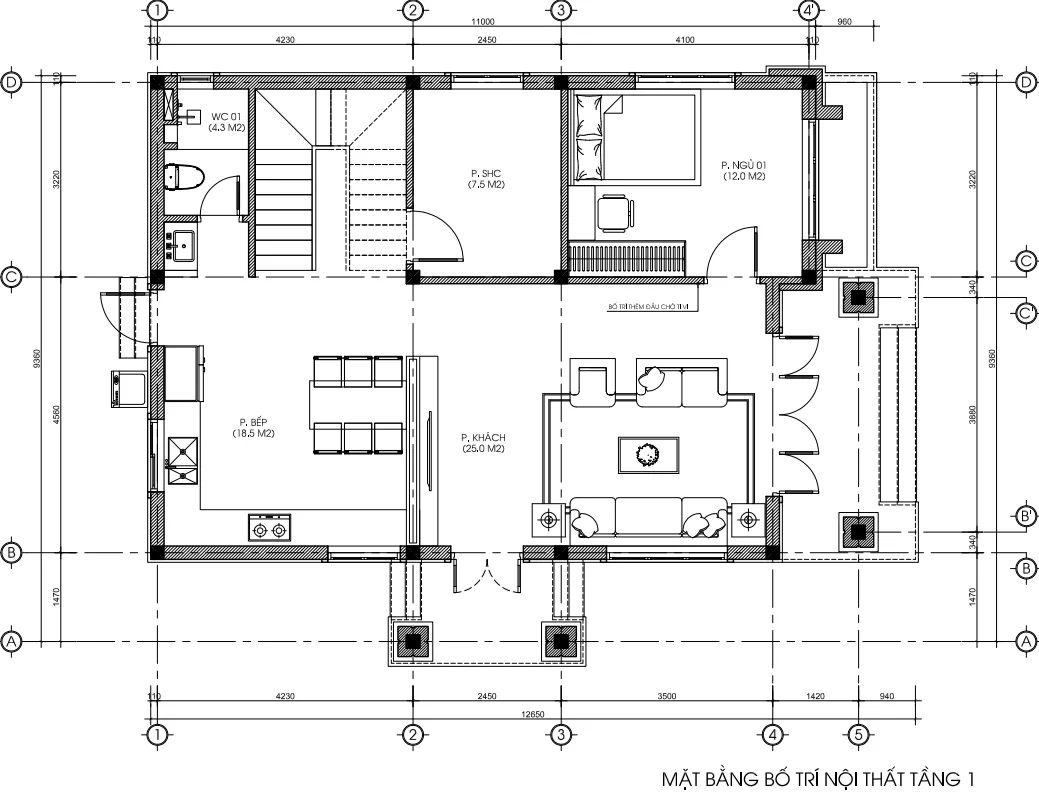
Tầng 1: Không gian kết nối gia đình

Mặt bằng tầng 1 được thiết kế tập trung vào sự kết nối và tiện lợi cho sinh hoạt chung:

  • Phòng khách (25m2): Bước qua sảnh chính là phòng khách rộng rãi. Đây là bộ mặt của ngôi nhà, nơi anh Anh tiếp đón bạn bè, họ hàng. Với diện tích này, gia chủ thoải mái bố trí bộ sofa gỗ bề thế và kệ tivi hiện đại

  • Phòng bếp + Ăn (18.5m2): Được đặt liên thông nhưng vẫn có sự kín đáo cần thiết. Bếp có cửa phụ đi ra sảnh phụ bên hông, cực kỳ tiện lợi khi đi chợ về không cần xách đồ tươi sống đi qua phòng khách, đồng thời giúp mùi thức ăn thoát ra ngoài dễ dàng

  • Phòng ngủ 01 (12.0m2): Một phòng ngủ tại tầng 1 là tiêu chuẩn bắt buộc cho những gia đình có người lớn tuổi, giúp ông bà hạn chế leo cầu thang, đảm bảo an toàn

  • Phòng sinh hoạt chung (7.5m2) & WC: Tận dụng không gian đệm gần cầu thang

mặt bằng tầng 1 mẫu nhà 2 tầng mái Nhật

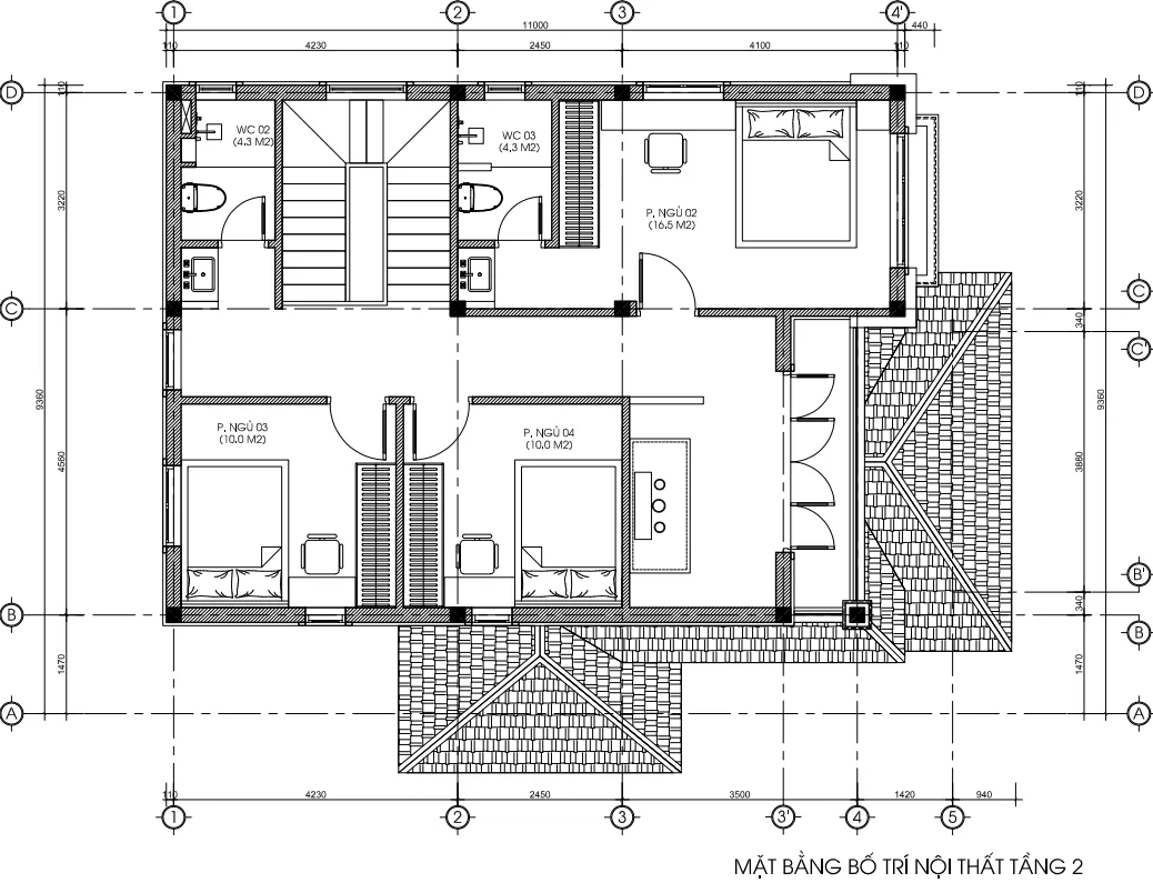
Tầng 2: Không gian nghỉ ngơi riêng tư

Leo lên cầu thang 23 bậc chuẩn phong thủy , chúng ta đến với không gian tầng 2 của mẫu nhà 2 tầng mái Nhật này:

  • 3 Phòng ngủ: Bao gồm Phòng ngủ 02 (16.5m2) kèm WC khép kín 4.3m2 là phòng Master cho vợ chồng anh Anh, Phòng ngủ 03 (10m2) và Phòng ngủ 04 (10m2) dành cho các con. Việc bố trí tới 3 phòng ngủ trên một sàn giúp các thành viên gắn kết nhưng vẫn có khoảng trời riêng.

  • WC chung 4.3m2 giúp việc sinh hoạt dễ dàng thoải mái.

  • Ban công: Các phòng ngủ phía trước đều có cửa mở ra ban công thoáng mát, là nơi lý tưởng để đặt vài chậu cây cảnh hoặc ngồi uống trà buổi sớm

mặt bằng tầng 2 mẫu nhà 2 tầng mái Nhật

4. Giải mã kỹ thuật & Kết cấu

Để mẫu nhà 2 tầng mái Nhật này bền vững trăm năm, TechHome đã áp dụng những tiêu chuẩn kỹ thuật khắt khe:

  • Cầu thang: Mặt bậc lát đá Granite, cổ bậc đá trắng, tay vịn gỗ Lim Nam Phi chắc chắn

  • Sàn: Lát gạch Granite kích thước lớn (800×800) tạo cảm giác rộng rãi, sang trọng

  • Trần: Sử dụng trần thạch cao khung xương chìm kết hợp đèn LED âm trần, tạo hiệu ứng ánh sáng lung linh và ấm cúng

  • Kết cấu mái: Đổ bê tông bằng, sau đó lợp vì kèo sắt hộp và dán ngói. Phương pháp này giúp chống nóng tuyệt đối và chống thấm dột hiệu quả hơn hẳn so với lợp ngói trực tiếp lên gỗ

mẫu nhà 2 tầng mái Nhật

5. Báo giá xây dựng mẫu nhà 2 tầng mái Nhật (Tham khảo 2026)

Rất nhiều khách hàng hỏi TechHome: “Nhà đẹp thế này chắc đắt lắm?”. Thực tế, chi phí xây dựng phụ thuộc vào thời điểm, giá vật liệu tại địa phương và mức độ đầu tư nội thất của gia chủ.

Tuy nhiên, tôi xin đưa ra bảng dự toán tham khảo cho mẫu nhà 2 tầng mái Nhật với diện tích sàn khoảng 110m2/sàn như nhà anh Anh:

Hạng mục Đơn giá tham khảo (VNĐ) Diễn giải
1. Chi phí thiết kế 108.000đ/m2 Bao gồm phối cảnh 3D, hồ sơ kiến trúc, kết cấu, điện nước (Full bộ). 
2. Thi công phần thô 3.800.000 – 4.500.000đ/m2 Bao gồm: Vật tư thô (Cát, đá, xi măng, sắt thép…) + Nhân công xây trát, ốp lát, điện nước âm tường.
3. Thi công trọn gói (Chìa khóa trao tay) 6.500.000 – 7.500.000đ/m2 Bao gồm phần thô + Vật tư hoàn thiện (Cửa, sơn bả, thiết bị vệ sinh, gạch ốp lát, trần thạch cao…). Mức giá dao động tùy thuộc vật liệu Khá hay Tốt.

Lưu ý: Đây chỉ là mức chi phí ước tính. Để nhận được báo giá chính xác và chi tiết nhất cho công trình của bạn, vui lòng liên hệ trực tiếp với chúng tôi. Hoặc để tìm hiểu rõ hơn về tiêu chuẩn vật liệu xây dựng và các yếu tố ảnh hưởng đến chi phí, bạn có thể tham khảo thêm tại các bài viết chuyên sâu về vật liệu xây dựng cao cấp trên Wikipedia.

6. Góc chuyên gia: Những lưu ý “vàng” khi xây nhà mái Nhật

Là người trong nghề, tôi khuyên bạn nên lưu ý 3 điều sau khi chọn xây mẫu nhà 2 tầng mái Nhật:

  1. Tỉ lệ mái: Độ dốc mái Nhật thấp hơn mái Thái (thường < 40 độ). Nếu thợ không có tay nghề cao, rất dễ làm mái bị “dẹt” hoặc thoát nước kém. Hãy chọn đơn vị thi công có bản vẽ kỹ thuật mái chi tiết như TechHome

  2. Sự cân đối: Mái Nhật có phần đua ra khá rộng. Cần tính toán khoảng cách với nhà hàng xóm để nước mưa không chảy sang đất người khác. TechHome luôn thiết kế hệ thống thu nước (sê-nô) âm mái gọn gàng, văn minh

  3. Ánh sáng: Vì mái đua rộng nên dễ làm khu vực cửa sổ bị tối. Cần tối ưu hóa kích thước cửa kính để đón sáng tối đa

mẫu nhà 2 tầng mái Nhật

7. Tại sao chọn TechHome cho ngôi nhà mơ ước của bạn?

Giữa hàng trăm đơn vị thiết kế, TechHome tự hào là người bạn đồng hành tin cậy của hàng nghìn gia chủ trên khắp Việt Nam, đặc biệt là với các mẫu nhà 2 tầng mái Nhật.

  • Minh bạch: Hồ sơ thiết kế rõ ràng từng chi tiết nhỏ nhất (từ viên gạch lát nền đến cái tay nắm cửa)

  • Tận tâm: Hỗ trợ giám sát tác quyền, giải đáp thắc mắc cho thợ xây 24/7 qua hotline/zalo

  • Thẩm mỹ: Luôn cập nhật những xu hướng kiến trúc mới nhất, không sáo rỗng, không lỗi thời.

Mẫu nhà 2 tầng mái Nhật của gia đình anh Anh tại Thái Bình là minh chứng rõ nét nhất cho năng lực của chúng tôi. Một ngôi nhà không chỉ để ở, mà là nơi để yêu thương và trở về.

Bạn đang ấp ủ dự định xây nhà? Bạn thích phong cách hiện đại, tiện nghi như thế này?

Đừng ngần ngại, hãy để lại bình luận hoặc liên hệ ngay với TechHome. Chúng tôi sẽ giúp bạn hiện thực hóa giấc mơ ấy với chi phí tối ưu nhất!


CÔNG TY CỔ PHẦN KIẾN TRÚC VÀ XÂY DỰNG TECHHOME

Để lại một bình luận

Email của bạn sẽ không được hiển thị công khai. Các trường bắt buộc được đánh dấu *

    Vui lòng nhấn nút YÊU CẦU TƯ VẤN và đợi 1 - 2 giây đến khi thấy thông báo thành công

    YÊU CẦU TƯ VẤN