Khám phá mẫu thiết kế nhà ống 3 tầng 1 tum đẹp mê mẩn tại Đông Anh, Hà Nội. Giải pháp kiến trúc hiện đại kết hợp văn phòng làm việc và không gian sống tiện nghi của gia đình anh Thiện do Techhome thực hiện. Xem ngay báo giá chi tiết!
Mở đầu: Khi “An cư” và “Lạc nghiệp” chung một mái nhà
Giữa nhịp sống hối hả của thủ đô, tấc đất được ví như tấc vàng, đặc biệt là tại khu vực đang phát triển nóng như Đông Anh – Hà Nội. Bài toán đặt ra cho các kiến trúc sư không chỉ là xây một ngôi nhà để ở, mà còn phải tạo ra dòng tiền hoặc không gian làm việc ngay trên chính mảnh đất ấy.
Đó chính xác là câu chuyện của gia đình anh Thiện. Tìm đến Techhome với mong muốn sở hữu một thiết kế nhà ống 3 tầng 1 tum vừa đảm bảo tính thẩm mỹ hiện đại, vừa tối ưu hóa công năng để kết hợp làm văn phòng công ty, anh Thiện đã đặt trọn niềm tin vào đội ngũ KTS của chúng tôi. Và kết quả là một công trình mang mã số 458HN1025 đầy ấn tượng mà Techhome muốn giới thiệu đến quý vị ngay sau đây.
1. Phối cảnh kiến trúc: Vẻ đẹp hiện đại, phóng khoáng của mẫu thiết kế nhà ống 3 tầng 1 tum
Ấn tượng đầu tiên khi nhìn vào mặt tiền của ngôi nhà chính là sự mạnh mẽ, dứt khoát của ngôn ngữ kiến trúc hiện đại. Không rườm rà hoa mỹ, thiết kế nhà ống 3 tầng 1 tum này tập trung vào các khối hình học vuông vức, tạo cảm giác vững chãi và bề thế.
Sự phối hợp màu sắc và vật liệu tinh tế
Techhome đã khéo léo sử dụng tông màu ghi xám trung tính làm chủ đạo, kết hợp với màu trắng của sơn tường và màu nâu ấm áp của vật liệu giả gỗ (conwood).
-
Tầng 1: Toàn bộ mặt tiền tầng 1 được ốp đá tự nhiên màu tối, mang lại vẻ sang trọng và sạch sẽ, rất phù hợp với công năng làm văn phòng giao dịch hoặc kinh doanh. Hệ cửa cuốn an toàn được bố trí khéo léo.
-
Tầng 2 & 3: Điểm nhấn nằm ở các mảng tường ốp nhựa giả gỗ ngoài trời chạy dọc ban công, kết hợp với trần ban công ốp gỗ, tạo nên sự ấm cúng, xua tan đi sự lạnh lẽo của bê tông cốt thép.
-
Hệ thống cửa: Toàn bộ hệ cửa sổ và cửa đi ban công đều sử dụng nhôm kính Xingfa cao cấp. Kính cường lực không chỉ giúp lấy sáng tự nhiên tối đa mà còn mở rộng tầm nhìn, giúp không gian bên trong luôn thoáng đãng.
Không gian xanh – “Lá phổi” của ngôi nhà phố
Với những mẫu thiết kế nhà ống 3 tầng 1 tum tại các đô thị, việc thiếu mảng xanh là điều thường gặp. Tuy nhiên, tại công trình này, các KTS Techhome đã tận dụng triệt để các khoảng ban công đua ra để bố trí bồn hoa. Màu xanh của cây cối không chỉ làm mềm đi các đường nét kiến trúc cứng nhắc mà còn giúp điều hòa không khí, mang lại cảm giác thư thái cho gia chủ mỗi khi trở về nhà.

2. Phân tích công năng chi tiết: Giải bài toán “Vừa ở vừa làm”
Sự thành công của một bản vẽ thiết kế nhà ống 3 tầng 1 tum không chỉ nằm ở mặt tiền đẹp, mà quan trọng hơn là sự bố trí công năng bên trong phải khoa học, thuận tiện cho sinh hoạt. Dựa trên hồ sơ thiết kế kỹ thuật thi công, chúng ta hãy cùng “tham quan” từng tầng của ngôi nhà này.
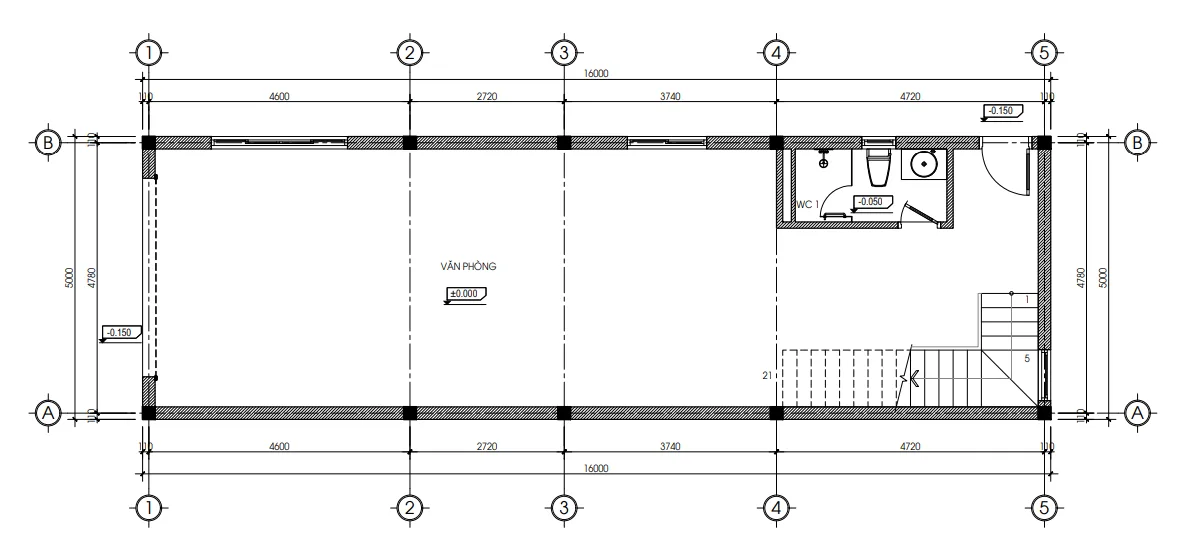
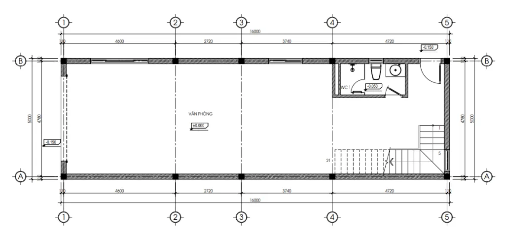
Tầng 1: Không gian văn phòng chuyên nghiệp
Với kích thước đất chiều sâu lên tới 16m, tầng 1 được ưu tiên hoàn toàn cho công việc.
-
Khu vực Văn phòng: Từ cửa chính bước vào là không gian văn phòng rộng rãi. Sàn được lát gạch Granite vân đá kích thước 800×800 sang trọng. Đây là nơi lý tưởng để bố trí bàn làm việc, quầy lễ tân hoặc showroom trưng bày sản phẩm.
-
Cầu thang & Vệ sinh: Cầu thang bộ được đẩy lùi về phía sau, giúp không gian văn phòng phía trước vuông vức và liền mạch. Một nhà vệ sinh nhỏ (WC1) được bố trí gọn gàng ở khu vực góc cuối nhà để tiết kiệm diện tích.
Việc tách biệt không gian làm việc ở tầng 1 giúp hoạt động kinh doanh không ảnh hưởng đến sự riêng tư của gia đình ở các tầng trên. Đây là xu hướng thiết kế nhà ống 3 tầng 1 tum rất thịnh hành hiện nay.

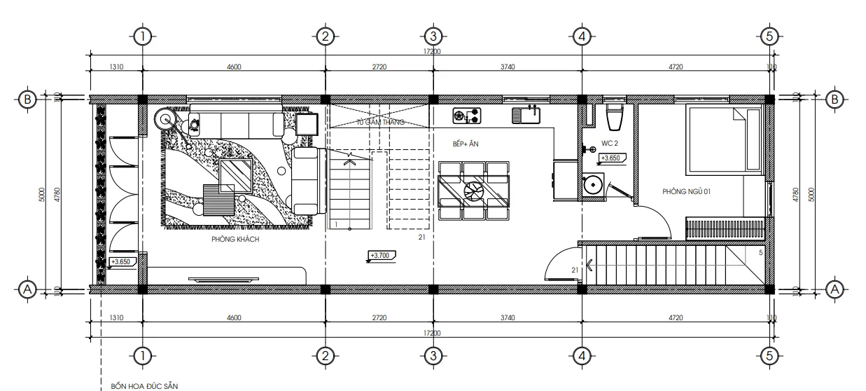
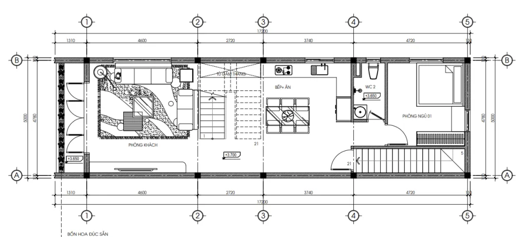
Tầng 2: Trái tim của tổ ấm
Di chuyển lên tầng 2, chúng ta bước vào không gian sinh hoạt chung của gia đình.
-
Phòng khách: Nằm ở phía trước nhà, hướng ra ban công lớn. Đây là nơi cả gia đình quây quần, xem TV và tiếp đón những vị khách thân tình. Sàn tầng 2 cũng được lát gạch Granite cao cấp tạo cảm giác sạch sẽ.
-
Bếp & Phòng ăn: Được bố trí liên thông với phòng khách, ngăn cách nhẹ nhàng bằng cầu thang thông tầng. Thiết kế mở này giúp gió lưu thông từ cửa trước ra sau nhà, hạn chế mùi thức ăn ám vào phòng.
-
Phòng ngủ 01: Phía cuối tầng 2 là một phòng ngủ, đảm bảo sự yên tĩnh.
-
Vệ sinh chung (WC2): Phục vụ cho nhu cầu sinh hoạt của cả tầng.

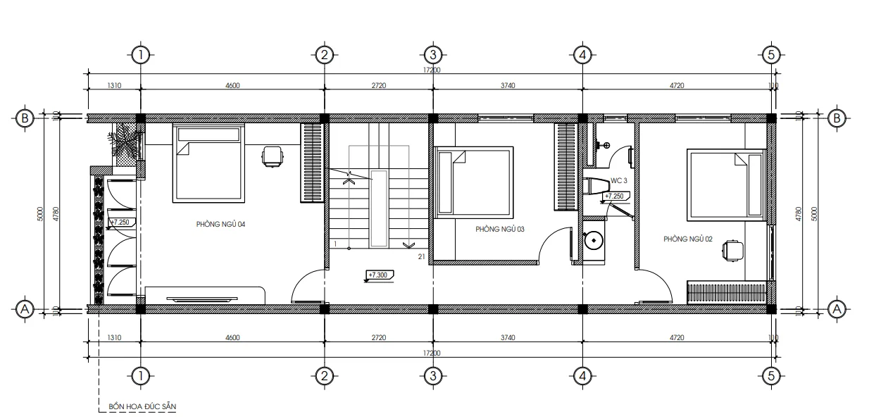
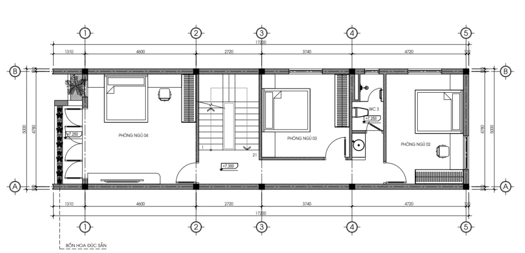
Tầng 3: Không gian nghỉ ngơi riêng tư
Tầng 3 của mẫu thiết kế nhà ống 3 tầng 1 tum này được dành trọn cho việc nghỉ ngơi với mật độ phòng ngủ cao hơn.
-
03 Phòng ngủ: Bản vẽ bố trí các phòng ngủ (Phòng ngủ 02, 03, 04) một cách khoa học. Các phòng đều được tính toán để kê giường, tủ quần áo âm tường nhằm tối ưu diện tích.
-
Ánh sáng: Nhờ hệ thống giếng trời và cửa sổ lớn, các phòng ngủ dù ở giữa nhà hay cuối nhà đều không bị bí bách. Đây là điểm cộng lớn cho đội ngũ thiết kế của Techhome.

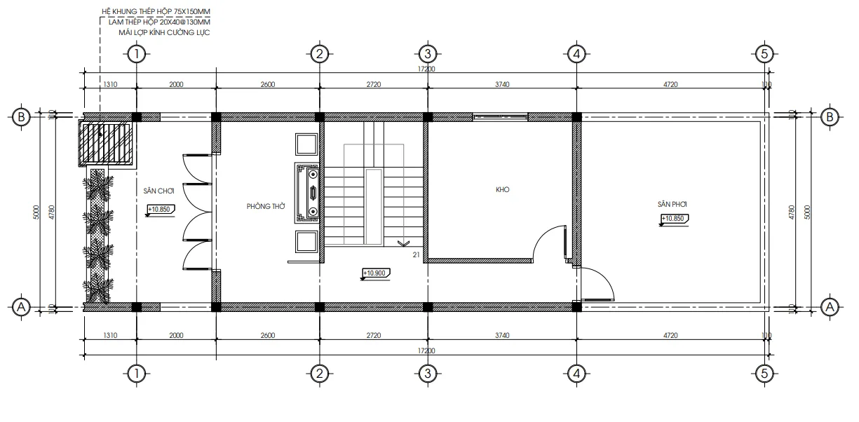
Tầng Tum: Không gian tâm linh và thư giãn
Tầng cao nhất – tầng tum, đóng vai trò quan trọng trong văn hóa người Việt và nhu cầu sinh hoạt hàng ngày.
-
Phòng thờ: Được đặt ở vị trí trang trọng nhất, hướng ra sân chơi phía trước. Vị trí này đảm bảo sự tôn nghiêm và phong thủy cho gia chủ.
-
Sân chơi & Sân phơi: Phía trước là sân chơi rộng rãi, nơi gia chủ có thể đặt bàn trà, trồng cây cảnh. Phía sau là sân phơi kín đáo và kho chứa đồ. Hệ mái trang trí bằng thép hộp và kính cường lực bên trên vừa che mưa nắng vừa lấy sáng hiệu quả.

3. Tại sao mẫu thiết kế nhà ống 3 tầng 1 tum lại được ưa chuộng tại Đông Anh?
Đông Anh đang trên đà lên Quận, diện tích đất thổ cư ngày càng bị chia nhỏ. Với mặt tiền phổ biến từ 4m – 5m như nhà anh Thiện, phương án thiết kế nhà ống 3 tầng 1 tum là lựa chọn tối ưu nhất vì:
-
Tối ưu diện tích sử dụng: Chồng tầng giúp nhân 3, nhân 4 diện tích sàn trên cùng một nền đất.
-
Chi phí hợp lý: Kết cấu móng và khung cột của nhà 3-4 tầng không quá phức tạp và tốn kém như nhà cao tầng hơn, phù hợp với tài chính của nhiều gia đình trẻ.
-
Thông thoáng: Tầng tum giúp chống nóng cho các tầng dưới cực tốt, đồng thời tạo ra khoảng không gian xanh thư giãn mà nhà chung cư khó có được.
4. Vật liệu và kỹ thuật thi công: Cam kết chất lượng từ Techhome
Trong hồ sơ thiết kế kỹ thuật của nhà anh Thiện, Techhome luôn chú trọng đến từng chi tiết nhỏ:
-
Trần thạch cao: Sử dụng hệ khung xương chìm, tấm thạch cao chống ẩm cho các khu vực vệ sinh và ban công.
-
Điện nước: Hệ thống đèn Downlight âm trần, đèn hắt khe rèm được bố trí khoa học tạo hiệu ứng ánh sáng sang trọng.
-
Cửa: Sử dụng nhôm hệ cao cấp, kính an toàn 6.38mm đến 8.38mm đảm bảo cách âm, cách nhiệt.
Chúng tôi hiểu rằng, bản vẽ thiết kế nhà ống 3 tầng 1 tum đẹp chỉ là bước khởi đầu. Chất lượng thi công mới là yếu tố quyết định sự bền vững của công trình.

5. Báo giá thiết kế và thi công nhà ống 3 tầng 1 tum (Cập nhật 2026)
Rất nhiều khách hàng thắc mắc về chi phí để sở hữu một ngôi nhà tương tự như nhà anh Thiện. Techhome xin gửi tới quý khách hàng bảng báo giá tham khảo (Lưu ý: Giá có thể thay đổi tùy thuộc vào thời điểm, vật liệu và vị trí thi công thực tế):
5.1. Báo giá thiết kế kiến trúc
Đối với gói thiết kế nhà ống 3 tầng 1 tum phong cách hiện đại:
-
Đơn giá: 108.000đ/m2.
-
Hồ sơ bao gồm: Phối cảnh 3D ngoại thất, Hồ sơ kiến trúc, Kết cấu, Điện nước (ME), Dự toán chi phí.
5.2. Báo giá thi công xây dựng (Dự toán sơ bộ nhà 5x16m)
-
Thi công phần thô + nhân công hoàn thiện:
-
Đơn giá: 3.800.000đ – 4.500.000đ/m2 sàn.
-
Tổng diện tích sàn (tạm tính 3.5 tầng x 80m2): ~280m2.
-
Tổng chi phí phần thô dự kiến: ~1 tỷ – 1.3 tỷ VNĐ.
-
-
Thi công trọn gói (Chìa khóa trao tay):
-
Gói vật tư trung bình: 5.800.000đ – 6.500.000đ/m2.
-
Gói vật tư khá: 6.500.000đ – 7.500.000đ/m2.
-
Tổng chi phí hoàn thiện dự kiến: ~1.6 tỷ – 2,1 tỷ VNĐ (bao gồm cả cửa, thiết bị vệ sinh, sơn bả, ốp lát, chưa bao gồm đồ gỗ nội thất rời).
-
Lưu ý: Đây chỉ là mức chi phí ước tính. Để nhận được báo giá chính xác và chi tiết nhất cho công trình của bạn, vui lòng liên hệ trực tiếp với chúng tôi. Hoặc để tìm hiểu rõ hơn về tiêu chuẩn vật liệu xây dựng và các yếu tố ảnh hưởng đến chi phí, bạn có thể tham khảo thêm tại các bài viết chuyên sâu về vật liệu xây dựng cao cấp trên Wikipedia.

6. Tại sao nên chọn Kiến trúc Techhome?
Không phải ngẫu nhiên mà anh Thiện tại Đông Anh lại lựa chọn Techhome để gửi gắm ngôi nhà mơ ước.
-
Minh bạch pháp lý: Hợp đồng thiết kế và thi công rõ ràng.
-
Đội ngũ thực chiến: KTS và KS là những người có nhiều năm kinh nghiệm, trực tiếp kiểm duyệt từng bản vẽ.
-
Hỗ trợ tận tâm: Chúng tôi luôn có hotline hỗ trợ tư vấn kỹ thuật xây dựng 24/7 (0364042222 – 0387603333) để giải đáp mọi thắc mắc của gia chủ trong quá trình thi công.
Kết luận
Mẫu thiết kế nhà ống 3 tầng 1 tum của gia đình anh Thiện tại Đông Anh là một minh chứng rõ nét cho xu hướng nhà ở hiện đại: Tiện nghi – Thẩm mỹ – Kinh tế. Ngôi nhà không chỉ là nơi che mưa che nắng, mà còn là tổ ấm, là nơi khởi nguồn cho sự nghiệp vững chắc.
Nếu bạn đang sở hữu một mảnh đất và ấp ủ dự định xây dựng một ngôi nhà phố đẹp, đừng ngần ngại liên hệ với Techhome. Chúng tôi sẽ lắng nghe và hiện thực hóa ý tưởng của bạn thành một công trình hoàn mỹ nhất.
CÔNG TY CỔ PHẦN KIẾN TRÚC VÀ XÂY DỰNG TECHHOME
-
Hotline/Zalo: 0364.04.2222 / 0387.60.3333
-
Địa chỉ: B1.1 LK18 Ô 3 – KĐT Thanh Hà – Cienco 5 – Thanh Oai- Hà Nội.
-
Website: https://nhadeptechhome.vn/
