Trong bối cảnh đô thị hóa nhanh chóng, nhu cầu thiết kế nhà phố hiện đại tích hợp không gian ở và kinh doanh ngày càng tăng cao. Đây không chỉ là giải pháp tối ưu diện tích đất hạn chế tại các thành phố lớn mà còn mở ra cơ hội kinh doanh ngay tại nơi ở, vừa tiện lợi vừa gia tăng giá trị bất động sản.
Thiết kế nhà phố hiện đại kết hợp kinh doanh đang trở thành lựa chọn hàng đầu của nhiều gia đình bởi sự đa năng, thẩm mỹ cao, công năng tối ưu và khả năng sinh lời bền vững.
Đặc Điểm Nổi Bật Của Thiết Kế Nhà Phố Hiện Đại Tích Hợp
Phong Cách Kiến Trúc Hiện Đại – Đơn Giản Mà Sang Trọng
-
Thiết kế nhà phố hiện đại sử dụng hình khối vuông vức, đường nét mạnh mẽ tạo nên sự bề thế, sang trọng.
-
Tường kính cường lực lớn, kết hợp lam chắn nắng, mang lại không gian mở, thoáng sáng tự nhiên.
-
Tông màu trung tính (xám, trắng, be, nâu gỗ) kết hợp vật liệu cao cấp như đá granite, ốp gạch giả gỗ, kính phản quang tạo nên vẻ đẹp thời thượng.
Tích Hợp Không Gian Ở Và Kinh Doanh Tiện Ích
-
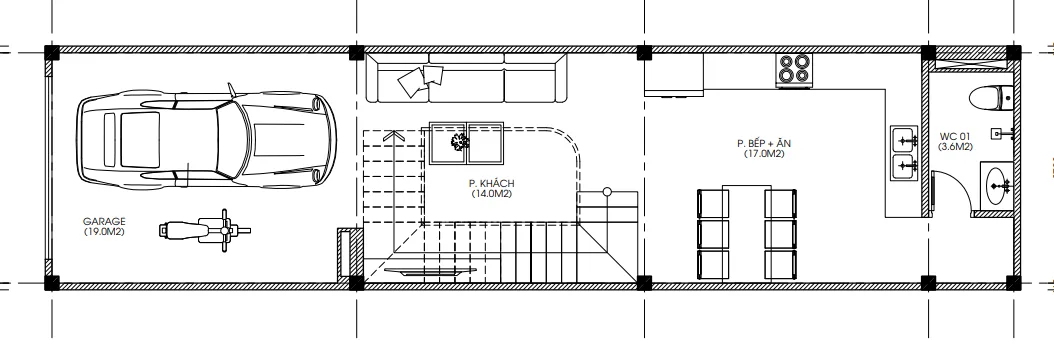
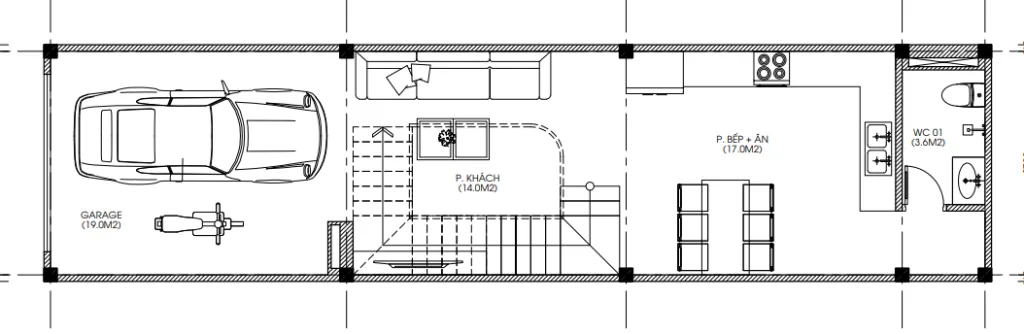
Tầng 1: thường thiết kế làm gara, cửa hàng, showroom hoặc văn phòng nhỏ, giúp gia chủ dễ dàng vừa ở vừa kinh doanh.
-
Các tầng trên: bố trí phòng khách, phòng bếp, phòng ngủ, phòng thờ tiện nghi, đảm bảo sự riêng tư và thoải mái cho gia đình.
-
Ban công và sân thượng rộng rãi có thể tận dụng làm quán cà phê mini, khu vườn xanh thư giãn.
Công Năng Linh Hoạt – Tối Ưu Từng Mét Vuông
-
Diện tích đất phố thường hẹp ngang (3–5m), do đó thiết kế nhà phố hiện đại kết hợp kinh doanh phải tận dụng triệt để từng không gian.
-
Cầu thang đặt hợp lý, tiết kiệm diện tích, kết nối thuận tiện giữa các tầng.
-
Thiết kế thông minh giúp cách âm giữa khu vực kinh doanh và khu vực sinh hoạt gia đình.
Lợi Ích Khi Sở Hữu Nhà Phố Hiện Đại Tích Hợp Kinh Doanh
-
Tiết kiệm chi phí thuê mặt bằng – gia chủ có thể mở cửa hàng, quán cà phê, văn phòng mà không cần thuê ngoài.
-
Gia tăng giá trị bất động sản – nhà phố vừa ở vừa kinh doanh luôn được đánh giá cao trên thị trường.
-
Tạo thu nhập ổn định – dễ dàng cho thuê tầng trệt, văn phòng hoặc căn hộ mini.
-
Tối ưu không gian sống – vừa có nơi ở tiện nghi, vừa có nơi kinh doanh thuận tiện.
-
Tính thẩm mỹ cao – các mẫu thiết kế hiện đại không chỉ đẹp mà còn mang lại sự sang trọng, thể hiện đẳng cấp gia chủ.
Các Mẫu Thiết Kế Nhà Phố Hiện Đại Tích Hợp Kinh Doanh Được Ưa Chuộng



Mẫu Nhà Phố 3 Tầng Hiện Đại – Ở Và Kinh Doanh Tiệm Cafe, Văn Phòng
-
Tầng 1: Gara + khu vực kinh doanh (cafe, showroom, shop quần áo).
-
Tầng 2–3: Phòng khách, phòng bếp, phòng ngủ, phòng thờ.
-
Sân thượng: Không gian thư giãn, trồng cây xanh, bàn trà.
Mẫu Nhà 4 Tầng Kết Hợp Cho Thuê Văn Phòng
-
Thiết kế mặt tiền kính sang trọng, tối ưu ánh sáng.
-
Tầng trệt cho thuê làm văn phòng, spa, showroom.
-
Tầng trên dành cho sinh hoạt gia đình.
Mẫu Nhà Phố Hiện Đại 5 Tầng Kết Hợp Chung Cư Mini
-
Phù hợp khu vực trung tâm, đông dân cư.
-
Gia chủ có thể vừa ở vừa cho thuê căn hộ mini, tạo nguồn thu nhập bền vững.
-
Tích hợp thang máy, hệ thống PCCC hiện đại, đảm bảo an toàn.

Yếu Tố Quan Trọng Khi Thiết Kế Nhà Phố Hiện Đại Kết Hợp Kinh Doanh
Vị Trí Mặt Bằng
-
Nên chọn khu vực gần trung tâm, đông dân cư, mặt đường lớn để thuận lợi cho kinh doanh.
Công Năng Rõ Ràng
-
Phân chia khu kinh doanh và khu ở riêng biệt để tránh ảnh hưởng sinh hoạt gia đình.
Tính Thẩm Mỹ Và Phong Thủy
-
Mặt tiền sang trọng, hút khách hàng.
-
Cửa chính, cầu thang, bếp, phòng ngủ bố trí theo phong thủy, mang lại may mắn, tài lộc.
Vật Liệu Và Trang Thiết Bị Hiện Đại
-
Sử dụng kính cường lực, gỗ công nghiệp cao cấp, đá ốp mặt tiền để đảm bảo độ bền và vẻ đẹp lâu dài.
-
Hệ thống chiếu sáng, điều hòa, PCCC hiện đại, phù hợp tiêu chuẩn.
Báo Giá Thiết Kế Và Thi Công Nhà Phố Hiện Đại Kết Hợp Kinh Doanh
Chi phí thiết kế và thi công trọn gói nhà phố hiện đại tích hợp ở và kinh doanh phụ thuộc vào:
-
Diện tích đất và số tầng xây dựng.
-
Vật liệu hoàn thiện (trung cấp – cao cấp).
-
Phong cách kiến trúc (đơn giản – sang trọng).
👉 Trung bình giá dao động từ 6 triệu – 8 triệu/m². Với gói thiết kế – thi công trọn gói tại Techhome, khách hàng được tư vấn chi tiết, tối ưu chi phí và cam kết chất lượng.
Lưu ý: Đây chỉ là mức chi phí ước tính. Để nhận được báo giá chính xác và chi tiết nhất cho công trình của bạn, vui lòng liên hệ trực tiếp với chúng tôi. Hoặc để tìm hiểu rõ hơn về tiêu chuẩn vật liệu xây dựng và các yếu tố ảnh hưởng đến chi phí, bạn có thể tham khảo thêm tại các bài viết chuyên sâu về vật liệu xây dựng cao cấp trên Wikipedia.
Kết Luận
Mẫu thiết kế nhà phố hiện đại tích hợp không gian ở và kinh doanh tiện ích chính là lựa chọn hoàn hảo cho các gia đình trẻ, chủ doanh nghiệp nhỏ và những ai muốn tối ưu giá trị bất động sản. Với kiến trúc hiện đại, công năng linh hoạt, tính thẩm mỹ cao và khả năng sinh lời lâu dài, đây chắc chắn sẽ là xu hướng phát triển mạnh mẽ trong năm 2025 và nhiều năm tới.
Xem thêm các dự án nổi bật khác của Techhome tại https://nhadeptechhome.vn/

