Những năm gần đây, biệt thự vườn mái nhật 3 tầng hiện đại sang trọng đang trở thành một trong những xu hướng thiết kế nổi bật nhất. Không chỉ mang lại vẻ đẹp tinh tế, hài hòa mà kiểu nhà này còn tối ưu công năng sử dụng, phù hợp với nhu cầu sống tiện nghi, hiện đại của các gia đình Việt.
Điểm đặc biệt của biệt thự vườn mái Nhật 3 tầng chính là sự kết hợp hoàn hảo giữa nét kiến trúc Á Đông truyền thống và hơi thở hiện đại, tạo nên không gian sống đẹp mãi với thời gian.
1. Biệt thự vườn mái nhật 3 tầng là gì?
biệt thự vườn mái nhật là kiểu kiến trúc có phần mái được lấy cảm hứng từ Nhật Bản – mái dốc nhẹ, mở rộng về nhiều hướng, tạo sự cân bằng và thoáng mát. Khi kết hợp cùng thiết kế 3 tầng hiện đại sang trọng, kiểu nhà này mang lại cảm giác:
-
Tinh tế, thanh thoát.
-
Vững chãi, bền bỉ.
-
Gần gũi thiên nhiên nhưng vẫn toát lên sự hiện đại.
Đây là lựa chọn hoàn hảo cho gia chủ muốn sở hữu ngôi biệt thự vườn mái nhật 3 tầng vừa đẹp mắt, vừa có tính ứng dụng cao.
2. Ưu điểm vượt trội của biệt thự vườn mái nhật 3 tầng hiện đại sang trọng
2.1. Tính thẩm mỹ cao – sang trọng trường tồn
Với thiết kế mái dốc hài hòa, ngôi nhà mang đến vẻ đẹp cân xứng, sang trọng nhưng không quá cầu kỳ. Kiến trúc này luôn đẹp mãi với thời gian, khó bị lỗi mốt.
2.2. Công năng tối ưu
-
3 tầng được phân chia khoa học: tầng 1 thường dùng cho phòng khách, bếp, phòng ngủ; tầng 2 cho phòng ngủ, không gian sinh hoạt chung. Tầng 3 cho phòng thờ và sân chơi.
-
Đáp ứng nhu cầu của gia đình từ 4 – 6 thành viên.
2.3. Phù hợp với khí hậu Việt Nam
-
Mái Nhật dốc nhẹ giúp thoát nước nhanh, tránh tình trạng thấm dột.
-
Cấu trúc mái chống nóng, cách nhiệt tốt, mát vào mùa hè, ấm áp vào mùa đông.
2.4. Giá trị phong thủy
Trong phong thủy, biệt thự vườn mái nhật 3 tầng hiện đại sang trọng tượng trưng cho sự cân bằng âm dương, thu hút tài lộc, mang lại sự an yên cho gia đình.
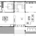
3. Công năng bố trí điển hình trong biệt thự vườn mái nhật 3 tầng

Một mẫu thiết kế biệt thự vườn mái nhật 3 tầng chuẩn công năng thường gồm:
-
Tầng 1: Phòng khách (30 – 40m²), bếp + phòng ăn (25 – 30m²), 1 phòng ngủ, 1 WC chung.
-
Tầng 2: 2 – 3 phòng ngủ, phòng sinh hoạt chung, ban công rộng thoáng.
- Tầng 3: Phòng thờ, 1 phòng ngủ, sân thượng
Sự phân chia hợp lý này giúp gia đình vừa đảm bảo sự riêng tư, vừa kết nối các thành viên trong sinh hoạt hằng ngày.
4. Xu hướng thiết kế biệt thự vườn mái nhật 3 tầng năm 2025




4.1. Thiết kế tối giản – hiện đại
Các gam màu trung tính như trắng, ghi, nâu gỗ kết hợp với cửa kính lớn tạo không gian mở, đón ánh sáng tự nhiên.
4.2. Tích hợp không gian xanh
Sử dụng ban công cây cảnh, tiểu cảnh sân vườn, giếng trời… để mang thiên nhiên vào trong nhà.
4.3. Tối ưu tiện ích thông minh
-
Ứng dụng vật liệu mới: kính cường lực, nhôm cao cấp, gỗ công nghiệp.
-
Trang bị nội thất thông minh, tối ưu diện tích.
4.4. Phong cách sang trọng kết hợp truyền thống
Mái Nhật giữ nguyên nét truyền thống Á Đông, kết hợp cùng kiến trúc hiện đại, mang lại vẻ đẹp vừa sang trọng vừa gần gũi.
5. Chi phí xây dựng biệt thự vườn mái nhật 3 tầng
Chi phí xây dựng phụ thuộc vào nhiều yếu tố: diện tích, vật liệu, phong cách nội thất, khu vực thi công.
-
Diện tích 80 – 100m²/sàn: khoảng 1,4 – 1,8 tỷ đồng.
-
Diện tích 120 – 150m²/sàn: khoảng 1,8 – 2,5 tỷ đồng.
-
Diện tích > 200m²/sàn: từ 3 tỷ đồng trở lên.
Với Techhome, mỗi công trình được thiết kế trọn gói – thi công trọn gói, đảm bảo tiết kiệm chi phí mà vẫn giữ chất lượng cao cấp.
Lưu ý: Đây chỉ là mức chi phí ước tính. Để nhận được báo giá chính xác và chi tiết nhất cho công trình của bạn, vui lòng liên hệ trực tiếp với chúng tôi. Hoặc để tìm hiểu rõ hơn về tiêu chuẩn vật liệu xây dựng và các yếu tố ảnh hưởng đến chi phí, bạn có thể tham khảo thêm tại các bài viết chuyên sâu về vật liệu xây dựng cao cấp trên Wikipedia.
6. Lý do nên chọn Techhome khi xây dựng biệt thự vườn mái nhật 3 tầng
-
Kinh nghiệm lâu năm trong thiết kế – thi công nhà phố, biệt thự mái Nhật.
-
Đội ngũ kiến trúc sư sáng tạo, am hiểu phong thủy.
-
Cam kết tiến độ và chất lượng thi công.
-
Chế độ bảo hành dài hạn, đồng hành cùng gia chủ sau khi bàn giao.
Techhome luôn mang đến cho khách hàng những mẫu biệt thự vườn mái Nhật hiện đại sang trọng chuẩn xu hướng, đẹp bền vững với thời gian.
Xu hướng thiết kế biệt thự vườn mái Nhật hiện đại sang trọng đang trở thành lựa chọn hoàn hảo cho nhiều gia đình Việt. Không chỉ mang lại vẻ đẹp tinh tế, trường tồn với thời gian, kiểu nhà này còn đảm bảo công năng tối ưu, phong thủy tốt, chi phí hợp lý.
Nếu bạn đang tìm kiếm một mẫu biệt thự vườn mái nhật 3 tầng đẹp mãi với thời gian, hãy để Techhome đồng hành cùng bạn từ khâu thiết kế đến thi công, biến ước mơ về một tổ ấm hiện đại – sang trọng thành hiện thực.
Xem thêm các dự án nổi bật khác của Techhome tại https://nhadeptechhome.vn/

