Giới thiệu xu hướng thiết kế nhà phố hiện đại sang trọng

Trong năm 2025, thiết kế nhà phố hiện đại sang trọng trở thành xu hướng hàng đầu tại cả thành thị lẫn nông thôn. Những ngôi nhà không chỉ chú trọng đến vẻ đẹp thẩm mỹ mà còn tập trung vào công năng, phong thủy và sự bền vững lâu dài.
Sự kết hợp giữa kiến trúc tối giản và nội thất thông minh mang đến không gian sống vừa tinh tế, vừa tiện nghi, đáp ứng nhu cầu ngày càng cao của các gia chủ trẻ.
Đặc điểm kiến trúc nổi bật


🔹 Ngoại thất sang trọng, tinh tế
-
Mặt tiền thường sử dụng kính cường lực, đá ốp cao cấp, gỗ nhựa ngoài trời.
-
Ban công rộng, kết hợp cây xanh, giúp không gian gần gũi thiên nhiên.
-
Hệ mái bằng hoặc mái Nhật biến tấu, tạo điểm nhấn kiến trúc hiện đại.
🔹 Nội thất hiện đại, tối ưu công năng
-
Không gian mở: phòng khách – bếp – ăn liên thông, tăng sự kết nối.
-
Sử dụng nội thất thông minh: tủ âm tường, bàn ăn đa năng.
-
Tone màu trung tính: trắng, be, xám kết hợp ánh sáng vàng ấm, tạo sự sang trọng.
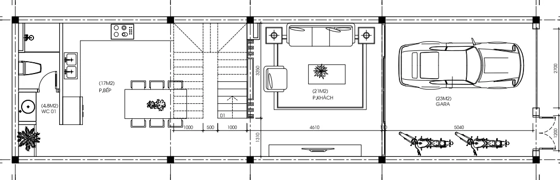
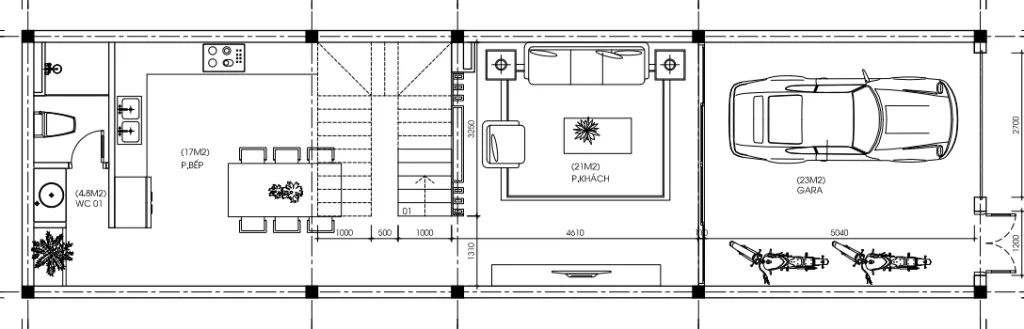
Mặt bằng công năng khoa học

Thiết kế nhà phố hiện đại sang trọng 3 tầng điển hình có thể được bố trí như sau:
-
Tầng 1: Phòng khách rộng + bếp ăn, 1 phòng ngủ và gara để xe, 1 WC chung.
-
Tầng 2: Phòng ngủ master có ban công, 2 phòng ngủ phụ, phòng thờ hoặc phòng làm việc, 1 WC chung.
-
Sân thượng: Không gian trồng cây, khu vực BBQ hoặc thư giãn.
👉 Cách bố trí này giúp tối ưu diện tích đất phố, đáp ứng nhu cầu sinh hoạt của gia đình 3 thế hệ.
Ưu điểm vượt trội khi chọn thiết kế nhà phố hiện đại sang trọng
-
Phong cách trẻ trung: Bắt trend 2025, phù hợp gu thẩm mỹ của thế hệ mới.
-
Tối ưu diện tích: Dù đất hẹp ngang, vẫn tạo được không gian sống thoáng đãng.
-
Chi phí hợp lý: Linh hoạt theo nhu cầu, từ 1.2 – 2.5 tỷ cho nhà phố 2 tầng.
-
Chuẩn phong thủy: Thiết kế cửa, cầu thang, phòng thờ đảm bảo vượng khí.
-
Dễ dàng nâng tầng: Kết cấu vững chắc, có thể mở rộng trong tương lai.
Báo giá thiết kế & thi công trọn gói 2025
Chi phí thiết kế nhà phố hiện đại sang trọng phụ thuộc vào diện tích, vật liệu và mức đầu tư của gia chủ:
-
Thiết kế kiến trúc: 100.000đ/m².
-
Thi công trọn gói: 5.5 – 8.5 triệu/m² (bao gồm hoàn thiện nội thất cơ bản).
Ví dụ:
-
Nhà phố 2 tầng 80m²: từ 1.2 – 1.5 tỷ.
-
Nhà phố 2 tầng 120m²: từ 1.6 – 2.2 tỷ.
Lưu ý: Đây chỉ là mức chi phí ước tính. Để nhận được báo giá chính xác và chi tiết nhất cho công trình của bạn, vui lòng liên hệ trực tiếp với chúng tôi. Hoặc để tìm hiểu rõ hơn về tiêu chuẩn vật liệu xây dựng và các yếu tố ảnh hưởng đến chi phí, bạn có thể tham khảo thêm tại các bài viết chuyên sâu về vật liệu xây dựng cao cấp trên Wikipedia.
Lý do nên chọn Techhome đồng hành
Techhome tự hào là đơn vị uy tín hàng đầu trong lĩnh vực thiết kế & thi công nhà phố hiện đại sang trọng:
-
Kinh nghiệm: Hàng trăm công trình thực tế tại Hà Nội, Hải Dương, Hưng Yên…
-
Đội ngũ kiến trúc sư sáng tạo: Luôn cập nhật xu hướng 2025.
-
Thi công chuẩn chất lượng: Vật liệu chính hãng, bảo hành dài hạn.
-
Dịch vụ trọn gói: Từ bản vẽ đến chìa khóa trao tay, tối ưu chi phí cho khách hàng.
Mẫu thiết kế nhà phố hiện đại sang trọng không chỉ là xu hướng mà còn là giải pháp hoàn hảo cho gia đình muốn sở hữu một tổ ấm tiện nghi, bền đẹp, chuẩn phong thủy.
Nếu bạn đang tìm kiếm một không gian sống hiện đại – sang trọng – tối ưu công năng, Techhome chính là đơn vị đồng hành đáng tin cậy.
Hotline: 0364.042.222 – 0387.603.333
Xem thêm các dự án nổi bật khác của Techhome tại https://nhadeptechhome.vn/
