Trong xu hướng kiến trúc hiện đại, nhà vườn mái Nhật 1 tầng đang trở thành sự lựa chọn hàng đầu cho nhiều gia đình Việt. Không chỉ sở hữu vẻ đẹp tinh tế, sang trọng mà mẫu nhà này còn mang đến một không gian sống xanh, gần gũi thiên nhiên, giúp gia chủ tận hưởng trọn vẹn sự thoải mái và bình yên.
Nếu anh/chị đang tìm kiếm một mẫu nhà vườn 1 tầng mái Nhật chuẩn đẹp, tiết kiệm chi phí mà vẫn bền vững với thời gian, thì đây chính là giải pháp hoàn hảo.
1. Nhà vườn mái Nhật 1 tầng là gì?
Nhà vườn mái Nhật 1 tầng là kiểu kiến trúc được du nhập từ Nhật Bản, nổi bật với phần mái ngói dốc nhẹ, vươn dài ra các hướng, vừa tạo cảm giác thanh thoát vừa giúp che chắn mưa nắng hiệu quả.
Đặc điểm nhận diện:
-
Thiết kế 1 tầng: tối ưu công năng cho gia đình từ 2 – 3 thế hệ.
-
Mái Nhật: độ dốc vừa phải, cân đối, chống nóng – thoát nước nhanh.
-
Không gian xanh: bao quanh bởi sân vườn rộng rãi, nhiều cây cối, tiểu cảnh.
-
Công năng khoa học: gồm 3 – 5 phòng ngủ, phòng khách, bếp – ăn, WC tiện nghi.
2. Ưu điểm vượt trội của nhà vườn mái Nhật 1 tầng
2.1. Tính thẩm mỹ cao
-
Kiến trúc tinh giản, thanh thoát.
-
Vẻ đẹp sang trọng nhưng không cầu kỳ.
-
Tạo điểm nhấn với mái ngói xanh – ghi hiện đại.
2.2. Không gian sống xanh, gần gũi thiên nhiên
-
Vườn cây, tiểu cảnh, hồ cá bao quanh.
-
Cửa kính rộng mở, đón ánh sáng tự nhiên.
-
Không gian thoáng đãng, khí hậu mát mẻ quanh năm.
2.3. Công năng tối ưu
-
1 tầng thuận tiện cho người già, trẻ nhỏ.
-
Phân chia phòng khoa học: phòng khách trung tâm, các phòng ngủ xung quanh.
-
WC tiện nghi, phù hợp sinh hoạt gia đình đông người.
2.4. Chi phí hợp lý
-
Chi phí xây dựng thấp hơn nhiều so với biệt thự nhiều tầng.
-
Độ bền cao, tuổi thọ lâu dài.
-
Phù hợp với gia đình trẻ hoặc trung niên muốn có “tổ ấm xanh”.
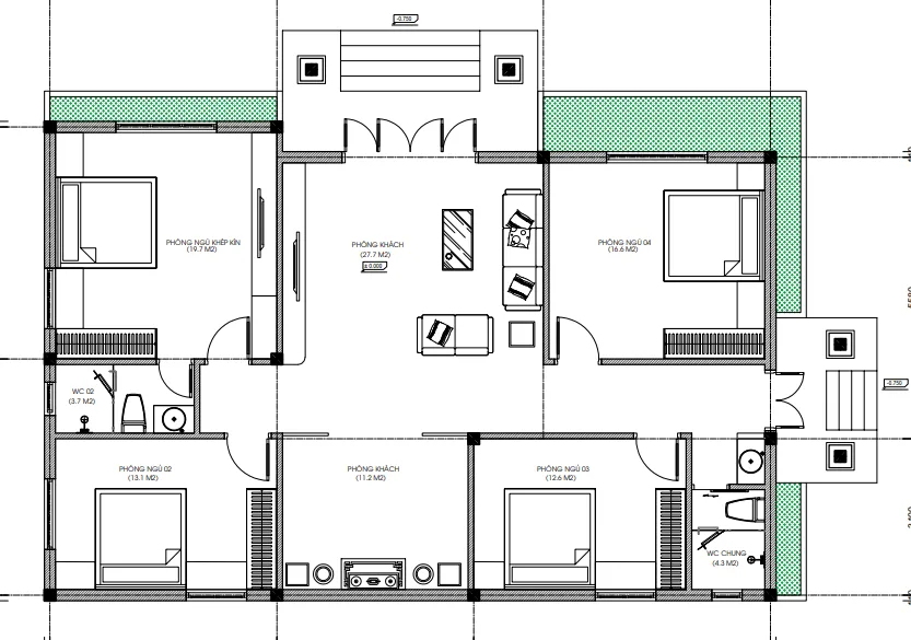
3. Bản vẽ mặt bằng nhà vườn mái Nhật 1 tầng

-
Phòng khách (27,7m²): rộng rãi, sang trọng, là trung tâm sinh hoạt gia đình.
-
4 phòng ngủ: diện tích từ 10 – 16m², đảm bảo sự riêng tư cho từng thành viên.
-
Khu bếp – ăn (11,2m²): hiện đại, gọn gàng, thuận tiện di chuyển.
-
WC chung & WC riêng: phân bổ hợp lý, tránh bất tiện khi sử dụng.
-
Sân vườn trước – sau: nơi trồng cây xanh, tiểu cảnh, tạo không gian thư giãn.
4. Báo giá xây dựng nhà vườn mái Nhật 1 tầng mới nhất 2025
Chi phí xây dựng phụ thuộc vào diện tích, vật liệu, vị trí xây dựng.
Dự toán tham khảo:
-
Diện tích 120 – 150m²: 900 triệu – 1,2 tỷ VNĐ.
-
Diện tích 150 – 200m²: 1,2 – 1,6 tỷ VNĐ.
-
Diện tích 200 – 250m²: 1,6 – 2 tỷ VNĐ.
Các yếu tố ảnh hưởng đến chi phí:
-
Vật liệu xây dựng (gạch, ngói, sơn, cửa…).
-
Độ phức tạp trong thiết kế mái.
-
Sân vườn, tiểu cảnh, cổng – hàng rào.
-
Phong cách nội thất (hiện đại – tân cổ điển – tối giản).
Lưu ý: Đây chỉ là mức chi phí ước tính. Để nhận được báo giá chính xác và chi tiết nhất cho công trình của bạn, vui lòng liên hệ trực tiếp với chúng tôi. Hoặc để tìm hiểu rõ hơn về tiêu chuẩn vật liệu xây dựng và các yếu tố ảnh hưởng đến chi phí, bạn có thể tham khảo thêm tại các bài viết chuyên sâu về vật liệu xây dựng cao cấp trên Wikipedia.
5. Xu hướng thiết kế nhà vườn mái Nhật 1 tầng 2025
-
Kết hợp mái Nhật – mái Thái: sang trọng, khác biệt.
-
Ứng dụng kính cường lực: mở rộng không gian, đón sáng tối đa.
-
Nội thất tối giản: gọn gàng, tinh tế, phù hợp lối sống hiện đại.
-
Sử dụng vật liệu xanh: gỗ công nghiệp, đá tự nhiên, ngói chống nóng.
6. Lý do nên chọn Techhome thiết kế & thi công
Techhome là đơn vị thiết kế – thi công trọn gói nhà vườn mái Nhật 1 tầng với cam kết:
-
Thiết kế độc quyền: tối ưu công năng, hợp phong thủy.
-
Thi công chất lượng: đảm bảo chuẩn kỹ thuật – thẩm mỹ.
-
Bảo hành dài hạn: đồng hành cùng gia chủ sau bàn giao.
-
Báo giá minh bạch: rõ ràng, không phát sinh.
👉 Hotline: 0364 042 222 – 0387 603 333
Xem thêm các dự án nổi bật khác của Techhome tại https://nhadeptechhome.vn/
Kết luận
Nhà vườn mái Nhật 1 tầng không chỉ là một ngôi nhà, mà còn là giải pháp hoàn hảo cho không gian sống xanh, thoải mái và bền vững. Với chi phí hợp lý, thiết kế tinh tế, công năng tối ưu, đây chắc chắn sẽ là lựa chọn lý tưởng cho gia đình Việt trong năm 2025.




