Mãn nhãn với thiết kế nhà phố 3 tầng hiện đại sang trọng bậc nhất – Xu hướng kiến trúc đô thị 2025

thiết kế nhà phố 3 tầng hiện đại

Vì sao thiết kế nhà phố 3 tầng hiện đại trở thành “biểu tượng sống mới” trong đô thị?

Thời đại phát triển, nhu cầu sống không chỉ dừng lại ở “an cư” mà còn hướng tới “tận hưởng”. Trong dòng chảy kiến trúc đương đại, thiết kế nhà phố 3 tầng hiện đại nổi lên như một lựa chọn tối ưu cho những gia đình trẻ yêu thích sự tinh tế, gọn gàng nhưng vẫn sang trọng và tiện nghi.

Khác với các mẫu nhà phố truyền thống, nhà phố 3 tầng hiện đại tạo nên dấu ấn nhờ:

  • Hình khối kiến trúc mạnh mẽ nhưng không kém phần thanh thoát.

  • Mặt tiền mở rộng với hệ cửa kính lớn, đón nắng gió tự nhiên.

  • Ban công xanh – vừa là điểm nhấn thẩm mỹ, vừa là không gian thư giãn hiếm có giữa lòng phố thị.

thiết kế nhà phố 3 tầng hiện đại

thiết kế nhà phố 3 tầng hiện đại


Ưu điểm nổi bật của thiết kế nhà phố 3 tầng hiện đại

Tận dụng tối đa không gian lô đất phố

Với diện tích trung bình 70 – 120m², mẫu nhà phố 3 tầng hiện đại khéo léo khai thác từng mét vuông để tạo ra không gian sống thoải mái, đáp ứng cho gia đình 2–3 thế hệ.

Công năng thông minh – tiện nghi

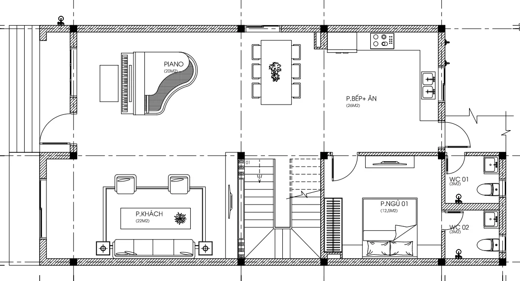
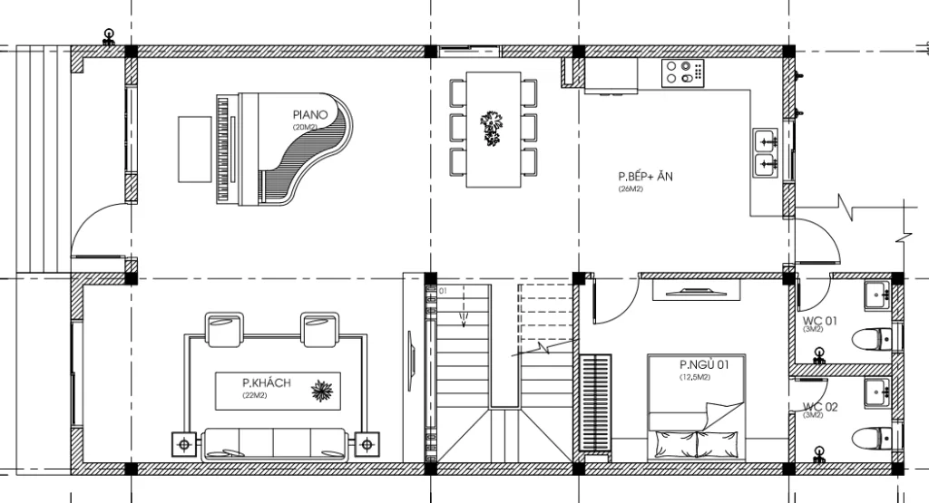
Một bản thiết kế nhà phố 3 tầng thường bao gồm:

  • Tầng 1: Phòng khách sang trọng, bếp + ăn rộng rãi, phòng ngủ nhỏ, WC tiện lợi.

  • Tầng 2: Phòng ngủ master kết hợp ban công, phòng ngủ con, phòng sinh hoạt chung.

  • Tầng 3: Phòng thờ trang nghiêm, sân thượng xanh, khu giải trí hoặc phòng tập gym.

Tính thẩm mỹ trường tồn

Thiết kế hiện đại giúp ngôi nhà luôn “ăn nhập” với xu hướng mà không sợ lỗi thời. Sự kết hợp vật liệu hiện đại như kính, thép, gạch ốp cao cấp mang đến vẻ đẹp sang trọng bền bỉ theo thời gian.


Điểm nhấn khác biệt – Thiết kế nhà phố 3 tầng hiện đại không chỉ để ở, mà để tận hưởng

Trong mỗi chi tiết kiến trúc, mẫu nhà phố 3 tầng hiện đại đều mang triết lý “sống xanh – sống tiện nghi – sống đẳng cấp”:

  • Ban công xanh: cây cảnh và hoa lá không chỉ làm đẹp mà còn thanh lọc không khí.

  • Sân thượng biến hóa: từ vườn BBQ, quán café mini cho đến hồ bơi trên cao.

  • Nội thất mở: không gian liền mạch giữa phòng khách – bếp – ăn, giúp gắn kết các thành viên.


Xu hướng thiết kế nhà phố 3 tầng hiện đại năm 2025

Năm 2025, nhà phố hiện đại không chỉ dừng ở thẩm mỹ mà còn tích hợp công nghệ thông minh:

  • Hệ thống chiếu sáng tự động, tiết kiệm điện năng.

  • Khóa cửa thông minh nâng cao an toàn.

  • Kính Low-E chống nóng, cách âm, bảo vệ sức khỏe.

  • Không gian xanh đa lớp: từ giếng trời, vườn đứng đến ban công phủ cây xanh.


Chi phí xây dựng nhà phố 3 tầng hiện đại – đầu tư thông minh cho tương lai

Chi phí trung bình để sở hữu một mẫu nhà phố 3 tầng hiện đại sang trọng dao động từ 1.5 – 3.5 tỷ đồng, phụ thuộc vào diện tích và mức độ hoàn thiện nội thất.

  • Xây dựng thô: 4.5 – 5.5 triệu/m².

  • Hoàn thiện trọn gói: 6.5 – 8 triệu/m².
    Đây là khoản đầu tư xứng đáng để có được một không gian sống tiện nghi, nâng tầm đẳng cấp gia chủ.

Lưu ý: Đây chỉ là mức chi phí ước tính. Để nhận được báo giá chính xác và chi tiết nhất cho công trình của bạn, vui lòng liên hệ trực tiếp với chúng tôi. Hoặc để tìm hiểu rõ hơn về tiêu chuẩn vật liệu xây dựng và các yếu tố ảnh hưởng đến chi phí, bạn có thể tham khảo thêm tại các bài viết chuyên sâu về vật liệu xây dựng cao cấp trên Wikipedia.


Techhome – Kiến tạo chuẩn mực sống mới cho gia đình Việt

Là đơn vị thiết kế và thi công trọn gói, Techhome tự hào mang đến giải pháp tối ưu cho mọi khách hàng:

  • Thiết kế độc quyền, khác biệt cho từng gia đình.

  • Tối ưu công năng – thẩm mỹ – phong thủy.

  • Thi công chuẩn chất lượng, bền vững.

  • Đồng hành cùng gia chủ từ ý tưởng đến khi hoàn thiện tổ ấm.

Một thiết kế nhà phố 3 tầng hiện đại sang trọng không chỉ đơn thuần là nơi ở, mà còn là tuyên ngôn sống đẳng cấp của thế hệ mới.
Nếu bạn đang tìm kiếm một mẫu nhà vừa thẩm mỹ – tiện nghi – chuẩn xu hướng, hãy để Techhome đồng hành cùng bạn, biến ước mơ thành hiện thực.

Xem thêm các dự án nổi bật khác của Techhome tại https://nhadeptechhome.vn/

Để lại một bình luận

Email của bạn sẽ không được hiển thị công khai. Các trường bắt buộc được đánh dấu *

    Vui lòng nhấn nút YÊU CẦU TƯ VẤN và đợi 1 - 2 giây đến khi thấy thông báo thành công

    YÊU CẦU TƯ VẤN