1. Khi mái bằng bước ra ánh sáng đô thị
Nếu mái thái từng được coi là “ông vua” trong kiến trúc nhà ở Việt, thì giờ đây, mẫu nhà phố mái bằng 2 tầng 1 tum hiện đại lại đang tạo nên một làn gió mới.
Những đường nét gãy gọn, những mảng kính rộng mở, sự kết hợp khéo léo giữa bê tông và thiên nhiên đã biến kiểu nhà này thành “người tình kiến trúc” của gia đình trẻ.
Công trình của anh Nam tại Đồng Nai chính là minh chứng sống động: từ bản vẽ ý tưởng, đến công trình thực tế, tất cả đều toát lên sự trẻ trung, đẳng cấp và hợp xu hướng sống 2025.
2. Nhà phố mái bằng 2 tầng 1 tum – Không chỉ là nhà, mà là tuyên ngôn phong cách
-
2 tầng: nơi hội tụ đầy đủ không gian sinh hoạt chung và riêng.
-
1 tum: phần “bonus” tuyệt vời cho phòng thờ, sân thượng xanh, hoặc góc thư giãn của gia đình.
-
Mái bằng: không còn khô khan như trước, mà trở thành nền tảng cho sáng tạo – từ vườn rau sạch đến quán café mini trên cao.
👉 Nói cách khác, đây là mẫu nhà đa năng, hợp xu hướng, vừa mang dáng dấp đô thị, vừa chạm đến ước mơ bình yên của gia chủ.
3. Vì sao gia chủ nào cũng “mê” mẫu nhà phố mái bằng 2 tầng 1 tum hiện đại?
🎨 3.1. Vẻ đẹp hiện đại – Mỗi góc nhìn là một khung ảnh
Mặt tiền với mảng kính lớn, lam gỗ, gạch ốp tone màu trung tính tạo cảm giác ngôi nhà như một “tác phẩm gallery” giữa lòng phố.
🛋️ 3.2. Công năng chuẩn “3 trong 1”
-
Tầng 1: phòng khách + bếp ăn mở, phòng ngủ nhỏ, WC.
-
Tầng 2: phòng master sang trọng, phòng ngủ con, phòng sinh hoạt chung.
-
Tầng tum: phòng thờ, sân thượng, khu giặt phơi hoặc góc café.
👉 Chỉ với diện tích 80 – 120m², ngôi nhà vẫn đáp ứng hoàn hảo cho cả 3 thế hệ.
💰 3.3. Chi phí hợp lý – Xứng tầm đầu tư
So với biệt thự, mẫu nhà phố mái bằng 2 tầng 1 tum hiện đại tiết kiệm đến 20% chi phí, nhưng công năng và thẩm mỹ không hề thua kém.
🌿 3.4. Không gian xanh trên cao – Sống chất giữa phố thị
Sân thượng biến thành vườn cây, nơi BBQ, góc đọc sách ngoài trời – điều mà nhà mái dốc không thể mang lại.
🧱 3.5. Độ bền vượt thời gian
Mái bằng bê tông chắc chắn, chống nóng, chống ồn, dễ dàng nâng thêm tầng khi gia đình có nhu cầu.
4. Dự án mẫu nhà phố mái bằng 2 tầng 1 tum hiện đại – Anh Nam, Đồng Nai
📍 Thông tin công trình
-
Chủ đầu tư: Anh Nam
-
Địa điểm: Đồng Nai
-
Phong cách: Hiện đại, trẻ trung, nhiều ánh sáng tự nhiên
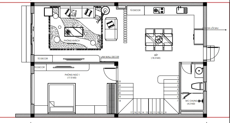
📐 Bố trí công năng thực tế
-
Tầng 1: phòng khách rộng, bếp ăn liên thông, phòng ngủ cho khách, WC.
-
Tầng 2: 1 phòng master + 2 phòng ngủ con, phòng sinh hoạt chung ấm cúng.
-
Tầng tum: phòng thờ trang nghiêm, sân thượng thoáng mát, tiểu cảnh xanh.
👉 Kết quả: một ngôi nhà vừa đủ đầy công năng, vừa chan hòa thiên nhiên, vừa thể hiện phong cách sống của gia chủ.
5. Chi phí xây dựng – Con số dễ chịu bất ngờ
-
Xây thô: 4,5 – 5,5 triệu/m².
-
Hoàn thiện trọn gói: 6,5 – 8 triệu/m².
-
Chi phí thực tế tại Đồng Nai: khoảng 1,6 – 2,1 tỷ đồng (tùy vật liệu hoàn thiện).
💡 Với mức đầu tư này, anh Nam đã có một tổ ấm không chỉ để ở, mà còn là không gian tận hưởng.
Lưu ý: Đây chỉ là mức chi phí ước tính. Để nhận được báo giá chính xác và chi tiết nhất cho công trình của bạn, vui lòng liên hệ trực tiếp với chúng tôi. Hoặc để tìm hiểu rõ hơn về tiêu chuẩn vật liệu xây dựng và các yếu tố ảnh hưởng đến chi phí, bạn có thể tham khảo thêm tại các bài viết chuyên sâu về vật liệu xây dựng cao cấp trên Wikipedia.
6. Xu hướng thiết kế mẫu nhà phố mái bằng 2 tầng 1 tum hiện đại 2025
-
Minimalism (tối giản): trắng – xám – gỗ, ít chi tiết thừa.
-
Smart home: chiếu sáng tự động, khóa vân tay, camera an ninh.
-
Không gian mở: cửa kính lớn, giếng trời, phòng liên thông.
-
Sống xanh: sân thượng trồng cây, ban công phủ xanh.
-
Vật liệu bền vững: kính Low-E, gạch chống nóng, sơn chống thấm.
7. Techhome – Đối tác kiến tạo mái ấm chuẩn xu hướng
Với kinh nghiệm hàng trăm công trình từ Bắc vào Nam, Techhome tự hào mang đến cho khách hàng:
-
Thiết kế khác biệt, tối ưu từng chi tiết.
-
Thi công chuẩn chất lượng, đúng tiến độ.
-
Chi phí minh bạch, không phát sinh.
-
Dịch vụ trọn gói – đồng hành đến khi hoàn thiện mái ấm.
👉 Dự án mẫu nhà phố mái bằng 2 tầng 1 tum hiện đại của anh Nam tại Đồng Nai chính là dấu ấn khẳng định chất lượng và uy tín Techhome.
8. Kết luận – Ngôi nhà của sự bất ngờ và đẳng cấp
Mẫu nhà phố mái bằng 2 tầng 1 tum hiện đại không chỉ là nơi để ở, mà còn là biểu tượng cho lối sống trẻ trung, tinh tế, hiện đại và bền vững.
Công trình thực tế tại Đồng Nai đã cho thấy: chỉ cần một quyết định đúng, bạn có thể sở hữu một tổ ấm khiến ai ghé qua cũng phải thốt lên: “Quá bất ngờ, quá ấn tượng!”
Xem thêm các dự án nổi bật khác của Techhome tại https://nhadeptechhome.vn/




