Trong nhịp sống hối hả của đô thị, những ngôi nhà phố mái bằng hiện đại đang dần chiếm lĩnh “trái tim” của các gia đình trẻ. Không chỉ mang đến sự sang trọng, tiện nghi, loại hình kiến trúc này còn hội tụ đủ yếu tố: tối ưu công năng, tiết kiệm chi phí, dễ mở rộng không gian sống.
Nếu trước đây mái thái hay mái ngói truyền thống từng là lựa chọn quen thuộc, thì nay nhà phố mái bằng hiện đại lại bứt phá trở thành xu hướng dẫn đầu năm 2025. Vậy điều gì đã khiến mẫu nhà này được xem là “lựa chọn số 1”? Hãy cùng Techhome phân tích chi tiết!
1. Nhà phố mái bằng là gì? – Hiểu đúng trước khi lựa chọn
-
Nhà phố mái bằng là kiểu nhà có phần mái được thiết kế phẳng, vuông vắn, thường làm bằng bê tông cốt thép.
-
Phong cách này đề cao sự đơn giản, mạnh mẽ và hiện đại, phù hợp với các khu đô thị đông đúc.
-
Điểm cộng lớn: dễ bố trí công năng, tận dụng mái làm sân thượng, vườn xanh hoặc khu giải trí.
👉 Chính vì thế, đây là mẫu nhà được nhiều gia đình trẻ ưa chuộng, khi vừa đảm bảo tính thẩm mỹ vừa đáp ứng nhu cầu sống tiện nghi.
2. Vì sao nhà phố mái bằng hiện đại phù hợp với gia đình trẻ?
🔹 2.1. Thiết kế tối giản – Phù hợp phong cách sống mới
-
Giới trẻ ngày nay đề cao sự gọn gàng, tinh tế.
-
Mặt tiền vuông vắn, đường nét dứt khoát giúp nhà phố mái bằng mang đến cái nhìn hiện đại, sang trọng nhưng không cầu kỳ.
🔹 2.2. Tối ưu công năng – Mỗi mét vuông đều đáng giá
-
Nhà phố thường nằm trong khu đất hạn chế, do đó khả năng tận dụng không gian là ưu tiên hàng đầu.
-
Thiết kế mái bằng giúp dễ dàng xây dựng 2 tầng, 3 tầng hoặc thêm tum mà vẫn chắc chắn, vững chãi.
🔹 2.3. Chi phí xây dựng hợp lý – Đầu tư thông minh
-
So với mái thái, mái Nhật hay mái lệch, chi phí thi công mái bằng thấp hơn đáng kể.
-
Điều này đặc biệt phù hợp với các cặp vợ chồng trẻ mới lập nghiệp, muốn có một tổ ấm vừa đẹp vừa tiết kiệm.
🔹 2.4. Không gian xanh trên cao – Xu hướng “sống chất”
-
Mái bằng có thể biến thành sân thượng trồng cây, vườn rau sạch, quán café mini ngay tại nhà.
-
Đây là không gian lý tưởng để gia đình trẻ tận hưởng những khoảnh khắc bình yên sau ngày dài bận rộn.
3. Xu hướng thiết kế nhà phố mái bằng hiện đại 2025
✅ 3.1. Nhà phố mái bằng 2 tầng – Tinh gọn mà sang trọng
-
Phù hợp với gia đình nhỏ 3 – 4 người.
-
Thiết kế chú trọng mặt tiền thoáng, nhiều cửa kính, sân thượng xanh mát.
✅ 3.2. Nhà phố mái bằng 3 tầng – Lựa chọn phổ biến nhất
-
Đáp ứng nhu cầu đa thế hệ hoặc gia đình trẻ muốn dư dả không gian.
-
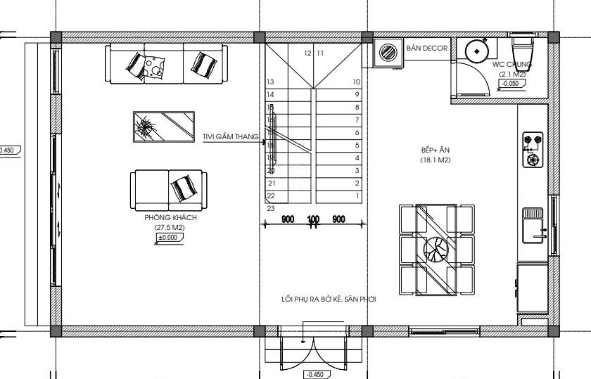
Tầng 1: phòng khách – bếp.
-
Tầng 2: phòng ngủ master, phòng con.
-
Tầng 3: phòng thờ, sân thượng thư giãn.
✅ 3.3. Nhà phố mái bằng kết hợp kinh doanh
-
Gia đình trẻ vừa ở vừa mở cửa hàng, café, văn phòng nhỏ.
-
Thiết kế này đang cực “hot” trong các khu đô thị lớn như Hà Nội, TP.HCM, Hải Phòng.
4. Ưu điểm vượt trội của nhà phố mái bằng hiện đại
-
Thẩm mỹ trẻ trung, hợp xu hướng.
-
Kết cấu bền vững, chống chịu thời tiết tốt.
-
Chi phí tối ưu – Dễ thi công.
-
Dễ mở rộng công năng trong tương lai.
-
Tạo không gian xanh – nâng cao chất lượng sống.
5. Mẫu nhà phố mái bằng hiện đại ấn tượng (tham khảo)




-
Mẫu nhà phố mái bằng 2 tầng tối giản – gam màu trắng tinh tế.
-
Mẫu nhà phố mái bằng 3 tầng có hồ bơi – chuẩn phong cách nghỉ dưỡng.
-
Mẫu nhà phố mái bằng hiện đại kết hợp vườn trên mái – sống xanh giữa lòng phố.
6. Chi phí xây dựng nhà phố mái bằng – Cập nhật mới nhất
-
Nhà phố mái bằng 2 tầng: từ 850 triệu – 1,2 tỷ (tùy diện tích).
-
Nhà phố mái bằng 3 tầng: từ 1,3 – 2 tỷ.
-
Nhà phố mái bằng 3 tầng có sân thượng, hồ bơi: từ 2 – 3 tỷ.
💡 Lưu ý: Đây chỉ là mức chi phí ước tính. Để nhận được báo giá chính xác và chi tiết nhất cho công trình của bạn, vui lòng liên hệ trực tiếp với chúng tôi. Hoặc để tìm hiểu rõ hơn về tiêu chuẩn vật liệu xây dựng và các yếu tố ảnh hưởng đến chi phí, bạn có thể tham khảo thêm tại các bài viết chuyên sâu về vật liệu xây dựng cao cấp trên Wikipedia.
7. Kinh nghiệm xây dựng nhà phố mái bằng hiện đại cho gia đình trẻ
-
Lựa chọn đơn vị thiết kế – thi công trọn gói uy tín (Techhome là gợi ý số 1).
-
Ưu tiên thiết kế mở, nhiều ánh sáng tự nhiên.
-
Sử dụng vật liệu hiện đại, bền đẹp và tiết kiệm năng lượng.
-
Tính toán kỹ công năng để đảm bảo phù hợp với nhu cầu sống hiện tại và tương lai.
Nhà phố mái bằng: Lựa chọn thông minh của thế hệ trẻ
Không phải ngẫu nhiên mà nhà phố mái bằng hiện đại trở thành “lựa chọn số 1” của các gia đình trẻ. Từ thiết kế tối giản, chi phí hợp lý, công năng tối ưu cho đến khả năng tạo dựng không gian sống xanh, tất cả đều khiến loại hình này trở thành xu hướng tất yếu.
Nếu bạn đang tìm kiếm một mái ấm bền vững, hiện đại, hợp phong cách sống đô thị, thì nhà phố mái bằng chính là lựa chọn xứng đáng.
Xem thêm các dự án nổi bật khác của Techhome tại https://nhadeptechhome.vn/

