Chào các bạn, lại là Techhome đây.
Hôm nay, tôi không muốn nói những lời hoa mỹ sáo rỗng về kiến trúc. Tôi muốn kể cho các bạn nghe về một “đề bài” khá thú vị nhưng cũng đầy thách thức mà đội ngũ Techhome vừa giải quyết tại Hải Phòng. Đó là câu chuyện về ngôi nhà của anh An.
Anh An tìm đến Techhome với một nhu cầu rất thực tế, rất “đời”: “Anh cần một ngôi nhà không chỉ để ở cho sướng cái thân, mà còn phải là nơi để anh làm nghề, kiếm cơm cho cả gia đình”. Cụ thể, anh làm nghề sản xuất giò chả.
Và đây là kết quả: Một mẫu thiết kế nhà phố 3 tầng hiện đại bề thế, vừa vặn trên mảnh đất hình thang, giải quyết triệt để bài toán “nhà ở kết hợp xưởng sản xuất” mà vẫn đảm bảo sự sang trọng, tinh tế.
Hãy cùng Techhome “mổ xẻ” hồ sơ thiết kế này để xem các kiến trúc sư đã xử lý không gian như thế nào nhé!

1. Thông tin tổng quan dự án
Trước khi đi sâu vào chi tiết, chúng ta hãy điểm qua vài thông số kỹ thuật từ hồ sơ:
-
Chủ đầu tư: Anh An.
-
Địa điểm xây dựng: Hải Phòng.
-
Đơn vị thiết kế: Công ty Cổ phần Kiến trúc và Xây dựng Techhome.
-
Phong cách: Kiến trúc hiện đại, mái bằng.
-
Quy mô: 3 tầng.
-
Kích thước đất: Mặt tiền rộng khoảng 13.8m, chiều sâu dài nhất 16m (Đất nở hậu, hình dạng không vuông vắn).
-
Công năng chính: Tầng 1 làm xưởng sản xuất (khu làm giò chả); Tầng 2 và 3 là không gian sinh hoạt gia đình.
Đây là một dự án tiêu biểu cho xu hướng thiết kế nhà phố 3 tầng hiện đại kết hợp kinh doanh (Shophouse/Workshop home) đang rất thịnh hành tại các thành phố lớn như Hải Phòng.

2. Phối cảnh ngoại thất: Vẻ đẹp đến từ những khối hình mạnh mẽ
Khi nhìn vào bản phối cảnh 3D mặt tiền, điều đầu tiên đập vào mắt chúng ta chính là sự khỏe khoắn. Thiết kế nhà phố 3 tầng hiện đại của anh An không rườm rà hoa văn, phào chỉ như kiến trúc tân cổ điển. Thay vào đó, nó sử dụng các khối hình học vuông vức, đua ra thụt vào đầy chủ ý để tạo chiều sâu cho công trình.
Màu sắc và vật liệu – Sự phối hợp “đắt giá”
Techhome đã tư vấn cho anh An sử dụng tông màu trắng sứ làm chủ đạo, kết hợp với màu xám ghi của đá ốp tầng 1 và màu gỗ nhựa (Conwood) ốp trần ban công.
-
Tầng 1: Được ốp đá marble vân mây màu xám đen. Tại sao lại là đá mà không phải sơn? Vì đây là khu vực làm giò chả, xe cộ ra vào, hàng hóa vận chuyển liên tục. Ốp đá giúp công trình luôn sạch sẽ, dễ vệ sinh và chống va đập tốt hơn hẳn.
-
Tầng 2 và 3: Các mảng tường trắng được cắt gọt gọn gàng. Điểm nhấn là phần ban công đua rộng với lan can kính cường lực trong suốt. Chi tiết này cực kỳ quan trọng trong thiết kế nhà phố 3 tầng hiện đại, nó giúp “khoe” được nội thất bên trong và làm ngôi nhà trông nhẹ nhàng, thanh thoát hơn.
Hệ thống cửa nhôm kính Xingfa màu đen tuyền nổi bật trên nền tường trắng, vừa lấy sáng tối đa, vừa tạo nên nét sang trọng, thời thượng cho tổng thể ngôi nhà.

3. “Giải phẫu” công năng: Khi nhà ở và xưởng sản xuất chung một mái nhà
Đây chính là phần “hóc búa” nhất mà Techhome phải giải quyết. Làm sao để mùi giò chả, tiếng ồn máy móc ở tầng 1 không ảnh hưởng đến giấc ngủ của vợ con anh An ở tầng trên?
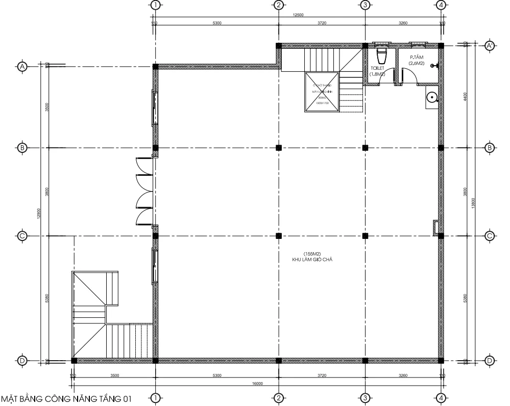
Tầng 1: Đại công xưởng thu nhỏ (155m2)
Nhìn vào bản vẽ mặt bằng định vị, các bạn sẽ thấy tầng 1 gần như dành trọn vẹn cho khu vực sản xuất với diện tích lên tới 155m2.
-
Không gian này được thiết kế thông suốt (không chia vách ngăn nhỏ) để thuận tiện cho dây chuyền làm việc: Từ sơ chế thịt, xay giò, hấp, cho đến đóng gói.
-
Một nhà vệ sinh nhỏ (1.8m2) và phòng tắm (2.6m2) được bố trí gọn gàng ở góc cuối nhà, phục vụ riêng cho nhân công, đảm bảo vệ sinh an toàn thực phẩm, không phải chạy lên tầng trên.
-
Cầu thang bộ được đẩy về một phía, có cửa ngăn cách để mùi thực phẩm không theo luồng khí bốc lên các tầng sinh hoạt.
Trong các mẫu thiết kế nhà phố 3 tầng hiện đại kết hợp kinh doanh, việc tách biệt giao thông (lối đi) giữa khách hàng/nhân viên và gia chủ là yếu tố sống còn.

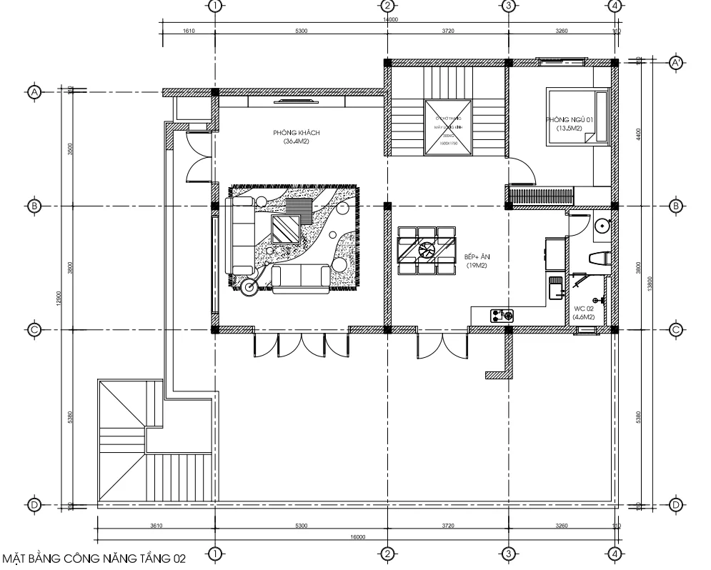
Tầng 2: Trái tim của gia đình (Không gian sinh hoạt chung)
Bước lên tầng 2, không gian thay đổi hoàn toàn. Đây là nơi “trú ẩn” yên bình của gia đình sau một ngày làm việc vất vả.
-
Phòng khách (36.4m2): Rất rộng! Với diện tích này, anh An thoải mái bày bộ sofa gỗ hương bề thế hay tổ chức tiệc tùng cho đại gia đình mà không lo chật chội. Phòng khách có ban công lớn hướng ra mặt tiền, đón gió Đông Nam mát rượi.
-
Bếp + Ăn (19m2): Được thiết kế liên thông với phòng khách nhưng vẫn có sự phân chia ước lệ. Vị trí bếp đặt tại tọa độ “tọa hung hướng cát” theo phong thủy của tuổi anh An, giúp gia đạo yên ấm.
-
Phòng ngủ 01 (13.5m2): Dành cho ông bà hoặc khách, nằm ở vị trí yên tĩnh phía sau, gần WC chung để tiện sinh hoạt đêm hôm.
Cách bố trí này là đặc trưng của thiết kế nhà phố 3 tầng hiện đại, ưu tiên không gian mở (Open plan) để gắn kết các thành viên.

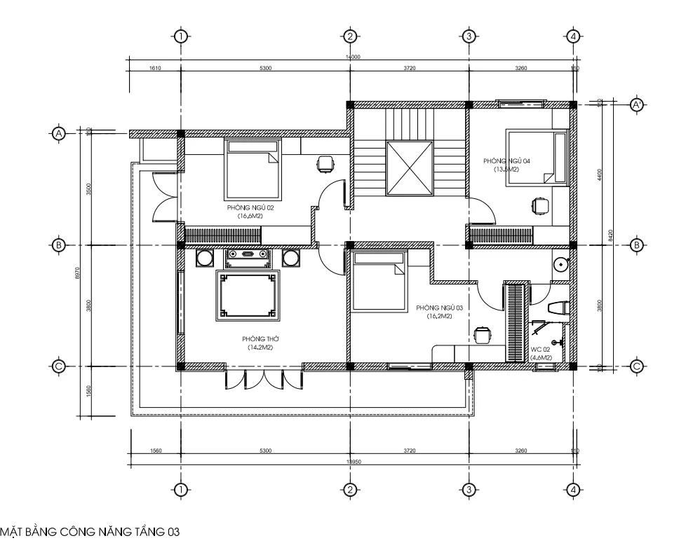
Tầng 3: Không gian nghỉ ngơi và tâm linh
Tầng 3 được dành riêng cho sự riêng tư tuyệt đối:
-
3 Phòng ngủ: Phòng ngủ 02 (16.6m2), Phòng ngủ 03 (16.2m2) và Phòng ngủ 04 (13.5m2). Diện tích các phòng khá đồng đều, vuông vắn nhờ kỹ thuật xử lý góc chết của kiến trúc sư Techhome (vì đất thực tế bị xéo).
-
Phòng thờ (14.2m2): Đặt ở vị trí trang trọng nhất, hướng ra mặt tiền. Đây là nơi anh An thể hiện lòng thành kính với tổ tiên. Trong văn hóa người Việt và đặc biệt là người làm kinh doanh, phòng thờ là nơi cực kỳ quan trọng.
-
Sân phơi và ban công chạy dài giúp đối lưu không khí cho toàn bộ tầng 3.

4. Những thách thức kỹ thuật và giải pháp từ Techhome
Khi thực hiện bản vẽ thiết kế nhà phố 3 tầng hiện đại này, chúng tôi đã gặp phải một số vấn đề và đã xử lý như sau:
Thứ nhất: Xử lý khu đất méo. Như các bạn thấy trong bản vẽ định vị, khu đất hình thang, cạnh dài cạnh ngắn (16m và 13.8m). Nếu không khéo, nhà sẽ bị nhiều góc nhọn, rất kỵ trong phong thủy (Góc ao đao đình).
-
Giải pháp: Techhome đã thiết kế hệ thống tường bao và bố trí các không gian phụ (như cầu thang, WC, kho) vào các góc méo để “nắn” lại các phòng ngủ, phòng khách thành hình vuông hoặc chữ nhật vuông vức. Đây là thủ pháp “lấy vuông bỏ méo” kinh điển.
Thứ hai: Kết cấu chịu lực cho tầng 1. Vì tầng 1 là xưởng làm giò chả, sẽ có máy xay công suất lớn hoạt động rung lắc mạnh.
-
Giải pháp: Kết cấu móng băng và hệ khung cột bê tông cốt thép được tính toán dư tải trọng. Sàn tầng 1 được đổ bê tông dày hơn và đánh bóng mặt sàn hoặc lát gạch chịu lực cao để chống thấm nước mỡ, dễ cọ rửa.
Thứ ba: Thông gió và ánh sáng. Với chiều dài nhà lên tới 16m, nếu không cẩn thận, phần giữa nhà sẽ rất tối.
-
Giải pháp: Hệ thống giếng trời kết hợp với cầu thang bộ ở giữa nhà đóng vai trò như một “phổi xanh”, hút khí nóng từ tầng 1 thoát lên mái và đưa ánh sáng tự nhiên xuống hành lang các tầng. Đây là tiêu chuẩn bắt buộc trong thiết kế nhà phố 3 tầng hiện đại của Techhome.

5. Báo giá thiết kế và thi công (Tham khảo)
Nhiều bạn thắc mắc: “Xây ngôi nhà như anh An hết bao nhiêu tiền?”. Techhome xin đưa ra bảng dự toán sơ bộ để các bạn dễ hình dung. Lưu ý: Đây là mức giá tham khảo tại thời điểm hiện tại và có thể thay đổi tùy vào vật liệu bạn chọn.
a. Chi phí thiết kế: Hiện tại, đơn giá thiết kế nhà phố 3 tầng hiện đại (Kiến trúc + Kết cấu + Điện nước + 3D ngoại thất) của Techhome là: 108.000đ/m2.
-
Tổng diện tích sàn anh An (3 tầng x ~140m2/sàn) = ~420m2.
-
Chi phí thiết kế trọn gói: Khoảng 45 – 48 triệu đồng. (Một khoản đầu tư quá nhỏ để tránh rủi ro đập đi xây lại).
b. Chi phí thi công xây dựng (Trọn gói chìa khóa trao tay):
Với mức đầu tư vật tư loại Khá (Cửa Xingfa, Gạch lại loại 1, Thiết bị vệ sinh Inax/Toto, Sơn Dulux…), đơn giá xây dựng hiện nay tại Hải Phòng khoảng 6.500.000đ – 7.500.000đ/m2.
-
Tổng chi phí xây dựng ước tính: 420m2 x 7.000.000đ = ~2.9 tỷ – 3 tỷ đồng.
-
Nếu bạn chỉ xây phần thô và tự hoàn thiện, giá sẽ rẻ hơn, khoảng 4.500.000đ/m2.
Lưu ý: Đây chỉ là mức chi phí ước tính. Để nhận được báo giá chính xác và chi tiết nhất cho công trình của bạn, vui lòng liên hệ trực tiếp với chúng tôi. Hoặc để tìm hiểu rõ hơn về tiêu chuẩn vật liệu xây dựng và các yếu tố ảnh hưởng đến chi phí, bạn có thể tham khảo thêm tại các bài viết chuyên sâu về vật liệu xây dựng cao cấp trên Wikipedia.

6. Tại sao bạn nên chọn Techhome cho ngôi nhà của mình?
Giữa hàng trăm đơn vị ngoài kia, tại sao anh An lại chọn Techhome để gửi gắm bản thiết kế nhà phố 3 tầng hiện đại tâm huyết này?
-
Thực chiến: Chúng tôi không vẽ tranh để ngắm. Chúng tôi vẽ để xây. Mọi chi tiết từ bản vẽ kỹ thuật cửa , bản vẽ lát sàn, đến bản vẽ điện nước đều được tính toán để thợ nề dễ làm nhất, ít hao hụt vật tư nhất.
-
Lắng nghe: Chúng tôi hiểu nhà là của bạn. Techhome không áp đặt cái tôi của kiến trúc sư lên ngôi nhà của bạn. Chúng tôi chỉ dùng chuyên môn để hiện thực hóa mong muốn của bạn một cách khoa học nhất.
-
Minh bạch: Hồ sơ thiết kế rõ ràng từng con số kích thước, từng chủng loại vật liệu (như chi tiết cửa nhôm hệ kính dày 8.38mm ). Không có chuyện “treo đầu dê bán thịt chó”.

7. Lời khuyên từ chuyên gia Techhome
Nếu bạn đang ấp ủ dự định xây một ngôi nhà tương tự như mẫu thiết kế nhà phố 3 tầng hiện đại của anh An, hãy lưu ý 3 điều sau:
-
Đừng tiếc tiền thiết kế: Nhiều người tiếc vài chục triệu tiền thiết kế để rồi khi xây lên, phòng thì bí, cửa thì va vào nhau, đập đi sửa lại tốn gấp mười lần.
-
Dự trù kinh phí phát sinh: Luôn chuẩn bị thêm 10-15% tổng chi phí dự toán để phòng trường hợp vật giá leo thang hoặc bạn muốn thay đổi vật liệu xịn hơn.
-
Chọn nhà thầu có tâm: Bản vẽ đẹp là một nửa, thợ xây chuẩn là một nửa còn lại. Hãy chọn đơn vị có năng lực thực sự.
Kết luận:
Ngôi nhà của anh An tại Hải Phòng là một minh chứng rõ nét cho việc: Một ngôi nhà làm nghề sản xuất vẫn có thể đẹp, sang trọng và tiện nghi nếu có bàn tay của kiến trúc sư. Mẫu thiết kế nhà phố 3 tầng hiện đại này không chỉ là nơi che mưa che nắng, mà còn là bệ phóng vững chắc cho kinh tế gia đình.
Bạn đã có đất, có ý tưởng, nhưng chưa biết bắt đầu từ đâu? Đừng ngần ngại, hãy liên hệ ngay với Techhome. Chúng tôi luôn sẵn sàng lắng nghe và cùng bạn kiến tạo nên tổ ấm mơ ước.
CÔNG TY CỔ PHẦN KIẾN TRÚC VÀ XÂY DỰNG TECHHOME
-
Hotline: 0364.04.2222 – 0387.60.3333
-
Website: https://nhadeptechhome.vn/
Hãy để Techhome biến ngôi nhà trong mơ của bạn thành hiện thực!
