Nếu ai đó hỏi tôi rằng xu hướng nhà ở nào đang “làm mưa làm gió” tại các vùng quê và ven đô Bắc Ninh năm nay, tôi sẽ không ngần ngại chỉ tay về phía những mẫu nhà 2 tầng mái Nhật. Không quá phô trương như lâu đài cổ điển, cũng không quá đơn điệu như nhà mái bằng, mẫu nhà 2 tầng mái Nhật mang trong mình vẻ đẹp của sự cân bằng – thứ mà gia đình chị Trang tại Bắc Ninh đã tìm kiếm bấy lâu và gửi gắm trọn vẹn niềm tin vào Techhome.
Hôm nay, hãy cùng Techhome “bóc tách” hồ sơ thiết kế mã số 389 này để xem tại sao nó lại khiến gia chủ gật đầu ngay từ bản vẽ đầu tiên nhé.
1. Cái duyên với mảnh đất Bắc Ninh và bài toán của gia chủ
Chị Trang tìm đến Techhome với một đề bài vừa dễ mà lại vừa khó. Dễ là vì đất nhà chị khá vuông vắn, kích thước phủ bì khoảng 9,8m x 12m, rất lý tưởng để lên khối. Nhưng khó ở chỗ, chị muốn một ngôi nhà phải thật sang, công năng phải tối ưu cho gia đình đông người, nhưng chi phí không được “vung tay quá trán”. Và quan trọng nhất, nó phải là mẫu nhà 2 tầng mái Nhật – kiểu kiến trúc mà chị đã “phải lòng” từ lâu.
Tại sao lại là mẫu nhà 2 tầng mái Nhật? Bởi vì hệ mái này có độ dốc vừa phải, thoát nước tốt (rất hợp với mưa nồm miền Bắc), lại tản nhiệt nhanh giúp nhà mát về mùa hè. Nhìn vào phối cảnh 3D, bạn sẽ thấy hệ mái màu ghi than ôm trùm lấy khối nhà trắng sứ, tạo nên một cảm giác vừa vững chãi, vừa thanh thoát.

2. “Soi” chi tiết công năng: Sống là phải tiện nghi
Một ngôi nhà đẹp không chỉ để ngắm, mà quan trọng là sống trong đó phải sướng. Với diện tích sàn xây dựng khoảng 110m2/sàn, các kiến trúc sư Techhome đã bố trí công năng cho mẫu nhà 2 tầng mái Nhật này một cách “kín kẽ”.
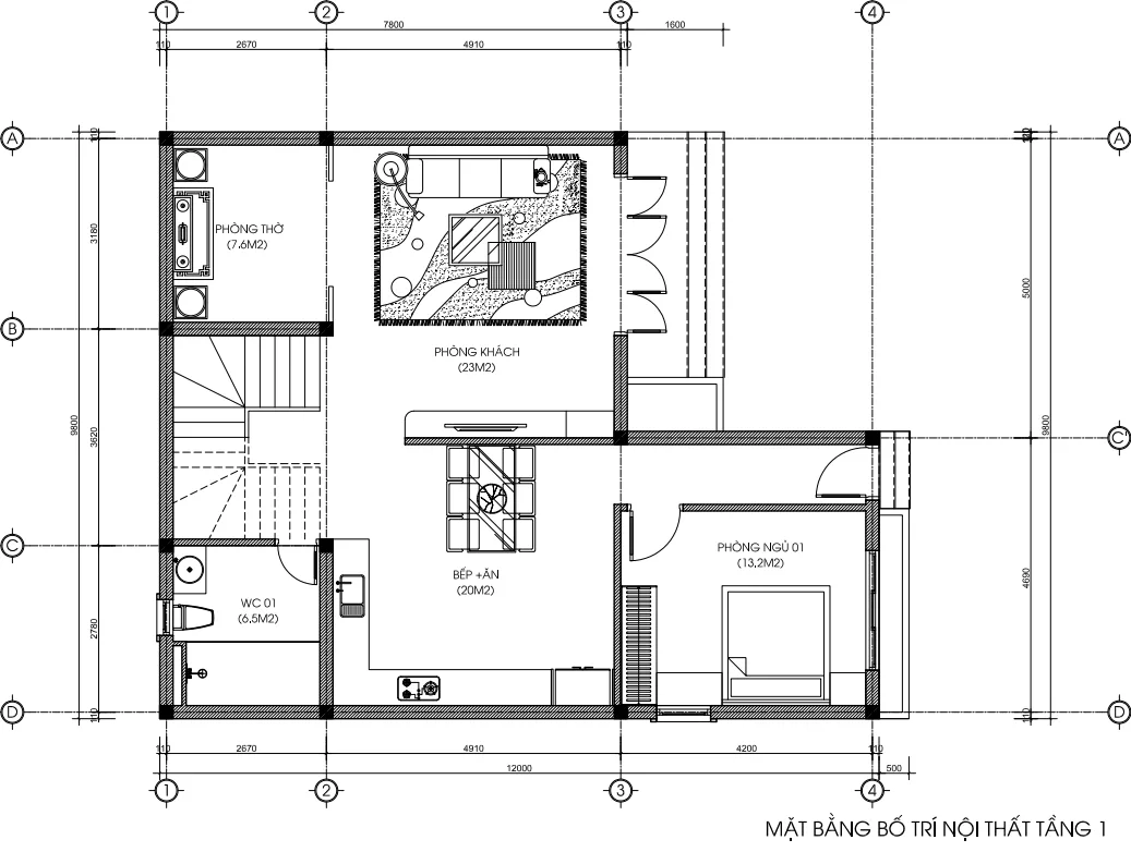
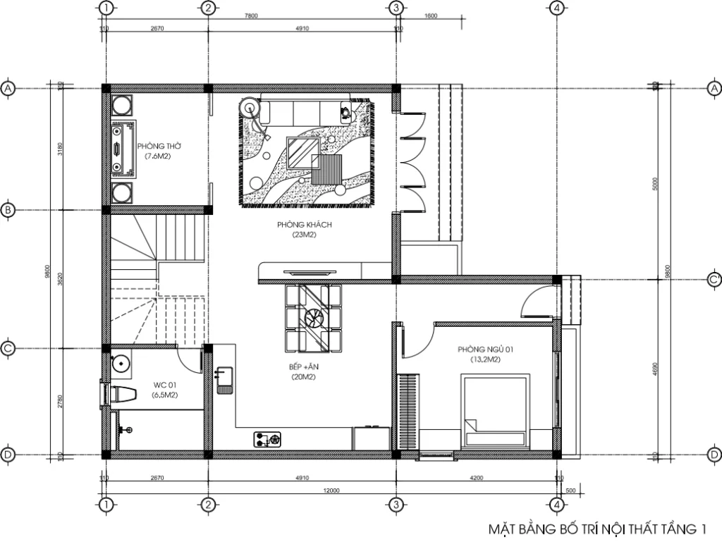
Tầng 1: Sự kết nối ấm cúng
Bước qua sảnh chính là không gian Phòng Khách rộng 23m2. Đây là “bộ mặt” của ngôi nhà nên được ưu tiên diện tích lớn nhất, liên thông trực tiếp với khu vực sảnh đệm, tạo cảm giác cực kỳ rộng rãi.
Điểm đặc biệt trong mẫu nhà 2 tầng mái Nhật này là vị trí Phòng Thờ. Thay vì đưa lên tầng cao nhất như thường thấy, gia đình chị Trang chọn đặt Phòng Thờ (7.6m2) ngay tại tầng 1, nhìn thẳng ra mặt tiền. Điều này rất thuận tiện cho việc hương khói của người lớn tuổi trong nhà, thể hiện sự hiếu kính gia tiên.
Bếp và phòng ăn rộng 20m2 được ngăn cách nhẹ nhàng với phòng khách bằng hệ vách CNC hoặc tủ trang trí, giúp mùi thức ăn không bay ra ngoài nhưng nhà vẫn thoáng. Ngoài ra, tầng 1 còn có 01 Phòng ngủ (13.2m2) dành cho ông bà để tránh leo cầu thang, và một WC chung (6.5m2) được đặt kín đáo dưới gầm cầu thang, góc khuất, đảm bảo thẩm mỹ.

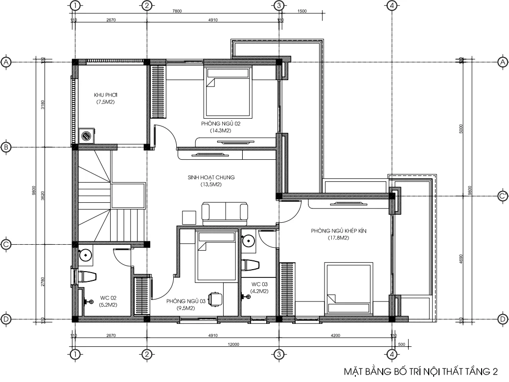
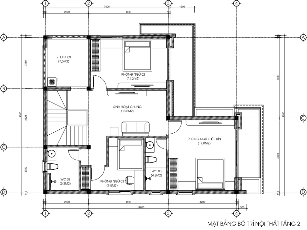
Tầng 2: Không gian riêng tư
Leo lên cầu thang 21 bậc chuẩn phong thủy (cung Sinh), chúng ta đến với không gian nghỉ ngơi chính. Mẫu nhà 2 tầng mái Nhật này bố trí tới 3 phòng ngủ trên tầng 2:
-
Phòng ngủ khép kín (Master) rộng 17.8m2 dành cho vợ chồng chị Trang, có vệ sinh riêng đảm bảo sự riêng tư tuyệt đối.
-
Hai phòng ngủ con (14.3m2 và 9.5m2) sử dụng chung một WC.
-
Đặc biệt, có một phòng Sinh hoạt chung (13.5m2) ngay sảnh thang. Đây là nơi cả nhà ngồi xem tivi, đọc sách trước khi đi ngủ – một không gian gắn kết mà các mẫu nhà 2 tầng mái Nhật hiện đại rất chú trọng.
-
Khu phơi (7.5m2) được bố trí kín đáo phía sau, đảm bảo quần áo không bị “lộ thiên” làm xấu mặt tiền.

3. Phối cảnh ngoại thất: Đơn giản nhưng không đơn điệu
Nhìn vào mặt tiền, mẫu nhà 2 tầng mái Nhật của gia đình chị Trang toát lên vẻ hiện đại, khỏe khoắn. Chúng tôi không dùng các phào chỉ rườm rà. Thay vào đó là những mảng tường ốp đá màu ghi xám ở chân cột và các diện tường trang trí tầng 1. Điều này không chỉ giúp ngôi nhà trông “sang” hơn mà còn giúp bảo vệ chân tường khỏi rêu mốc – một chi tiết nhỏ nhưng cực kỳ quan trọng với khí hậu Việt Nam.
Hệ thống lan can kính cường lực ở ban công tầng 2 giúp mở rộng tầm nhìn, khiến ngôi nhà trông thoáng đãng hơn hẳn so với việc dùng con tiện bê tông truyền thống. Đây chính là điểm “ăn tiền” khiến mẫu nhà 2 tầng mái Nhật này trở nên trẻ trung hơn rất nhiều.
4. Tại sao “Mẫu nhà 2 tầng mái Nhật” lại là lựa chọn kinh tế?
Nhiều người nghĩ làm mái Nhật tốn kém. Đúng, nó tốn hơn mái bằng một chút vì phải làm hệ vì kèo thép. Nhưng bù lại, mẫu nhà 2 tầng mái Nhật lại rẻ hơn mái Thái khá nhiều do độ dốc thấp hơn, tiết kiệm diện tích mái và nhân công thi công.
Hơn nữa, tầng áp mái trong thiết kế này đóng vai trò như một lớp đệm không khí khổng lồ. Nhờ đó, tầng 2 luôn mát mẻ, giảm thiểu chi phí điện năng cho điều hòa. Xét về lâu dài, đây là một khoản đầu tư sinh lời về sức khỏe và năng lượng.

5. Phong thủy và ánh sáng – Yếu tố không thể bỏ qua
Trong thiết kế này, Techhome cực kỳ chú trọng đến việc lấy sáng. Hệ thống cửa sổ nhôm kính Xingfa được bố trí dày đặc quanh các mặt thoáng. Dù bạn đứng ở bếp, phòng khách hay phòng ngủ, ánh sáng tự nhiên luôn tràn ngập.
Với mẫu nhà 2 tầng mái Nhật, độ cao của trần tầng 1 là 3.9m và tầng 2 là 3.6m. Đây là “kích thước vàng” giúp luân chuyển dòng khí đối lưu trong nhà, tránh cảm giác bí bách thường thấy ở các ngôi nhà ống đô thị.
6. Báo giá thiết kế và thi công mẫu nhà 2 tầng mái Nhật
Rất nhiều khách hàng gọi tới Hotline 0364042222 của Techhome để hỏi giá. Thực tế, chi phí xây dựng mẫu nhà 2 tầng mái Nhật phụ thuộc rất nhiều vào vật liệu hoàn thiện và thời điểm thi công. Tuy nhiên, để quý khách dễ hình dung, Techhome xin đưa ra bảng khái toán sơ bộ cho căn nhà của chị Trang (diện tích sàn ~220m2) như sau:
| Hạng mục | Đơn giá tham khảo (VNĐ) | Diễn giải |
| Thiết kế kiến trúc | 108.000đ/m2 |
Bao gồm hồ sơ 3D, kỹ thuật, điện nước, kết cấu |
| Thi công phần thô | 3.800.000 – 4.200.000đ/m2 | Bao gồm gạch, cát, đá, xi măng, sắt thép, nhân công. |
| Thi công trọn gói | 6.500.000 – 7.500.000đ/m2 | Chìa khóa trao tay (đã bao gồm cửa, sơn, lát nền, thiết bị vệ sinh…). |
| Chi phí mái ngói | 700.000 – 1.200.000đ/m2 mái | Tùy chọn ngói sóng hay ngói phẳng, kèo thép nhẹ hay thép hộp. |
Lưu ý: Đây chỉ là mức chi phí ước tính. Để nhận được báo giá chính xác và chi tiết nhất cho công trình của bạn, vui lòng liên hệ trực tiếp với chúng tôi. Hoặc để tìm hiểu rõ hơn về tiêu chuẩn vật liệu xây dựng và các yếu tố ảnh hưởng đến chi phí, bạn có thể tham khảo thêm tại các bài viết chuyên sâu về vật liệu xây dựng cao cấp trên Wikipedia.

7. Quy trình làm việc tại Techhome
Để ra đời được một bộ hồ sơ “chất” như nhà chị Trang, chúng tôi tuân thủ quy trình 6 bước:
-
Khảo sát hiện trạng đất tại Bắc Ninh.
-
Lên phương án mặt bằng (chốt công năng).
-
Dựng phối cảnh 3D (chốt ngoại thất mẫu nhà 2 tầng mái Nhật).
-
Triển khai hồ sơ kỹ thuật thi công (Kiến trúc, Kết cấu, Điện nước)
-
Bàn giao hồ sơ và dự toán.
-
Giám sát tác giả trong quá trình thi công.

8. Lời kết
Ngôi nhà của chị Trang tại Bắc Ninh là minh chứng rõ nhất cho thấy: Không cần quá cầu kỳ, chỉ cần sự tinh tế trong sắp xếp hình khối và công năng, bạn hoàn toàn có thể sở hữu một không gian sống đẳng cấp. Mẫu nhà 2 tầng mái Nhật này chắc chắn sẽ còn là xu hướng bền vững trong 5-10 năm tới.
Nếu bạn đang ấp ủ dự định xây nhà và cũng trót yêu mẫu nhà 2 tầng mái Nhật, đừng ngần ngại nhấc máy gọi cho Techhome. Chúng tôi không chỉ vẽ nhà, chúng tôi vẽ tổ ấm.
CÔNG TY CỔ PHẦN KIẾN TRÚC VÀ XÂY DỰNG TECHHOME
-
Hotline: 0364.04.2222 / 0387.60.3333
-
Địa chỉ: Hà Nội.
- Xem thêm các dự án nổi bật khác của Techhome tại https://nhadeptechhome.vn/
GÓC CHUYÊN GIA: LỜI KHUYÊN TỪ TECHHOME
Là người trực tiếp biên tập và phân tích hàng trăm hồ sơ thiết kế, ngoài những thông tin trên, tôi muốn chia sẻ thêm với bạn một vài “mẹo” nhỏ nhưng cực quan trọng khi xây dựng mẫu nhà 2 tầng mái Nhật như nhà chị Trang:
1. Đừng tiếc tiền cho phần “chống thấm mái”:
Mái Nhật có nhiều điểm giao cắt (khe lưu thủy) giữa các mái. Hồ sơ kỹ thuật nhà chị Trang đã thể hiện rất kỹ phần này, nhưng khi thi công, bạn cần nhắc thợ làm kỹ lớp chống thấm và lợp ngói đúng kỹ thuật tại các vị trí giao nhau. Đây là nơi dễ bị thấm dột nhất sau vài năm sử dụng.
2. Lựa chọn màu sơn theo hướng nắng:
Nhìn vào phối cảnh, nhà chị Trang dùng tông trắng – ghi. Đây là lựa chọn an toàn và bền màu. Tuy nhiên, nếu nhà bạn ở hướng Tây, hãy cân nhắc dùng sơn ngoại thất dòng cao cấp có khả năng phản xạ nhiệt (Heat-reflective paint) để giảm tải nhiệt cho tường, giúp nhà mát hơn.

3. Lưu ý về phong thủy Cầu Thang:
Trong bản vẽ, cầu thang nhà chị Trang có 21 bậc. Đây là số lẻ (rơi vào cung Sinh trong Sinh-Lão-Bệnh-Tử). Tuyệt đối không tự ý thay đổi chiều cao tầng dẫn đến thay đổi số bậc thành số chẵn (ví dụ 20 hay 22 bậc) vì sẽ rơi vào cung Lão hoặc Bệnh, không tốt cho phong thủy.
4. Tận dụng tầng áp mái:
Nhiều gia chủ xây mẫu nhà 2 tầng mái Nhật thường bỏ qua tầng áp mái. Tôi khuyên bạn nên đổ sàn bê tông phẳng ở trên tầng 2 rồi mới lợp vì kèo. Khoảng không gian áp mái đó hãy chừa một cửa thăm nhỏ. Đó sẽ là cái kho khổng lồ để chứa đồ ít dùng, hoặc đơn giản là nơi để bồn nước, máy bơm, giúp mái nhà gọn gàng thẩm mỹ hơn rất nhiều so với việc để bồn nước lộ thiên.
Hy vọng những chia sẻ “rút ruột gan” này sẽ giúp bạn có thêm kinh nghiệm để xây dựng tổ ấm của mình!
