Nếu có ai hỏi tôi rằng xu hướng xây dựng nào đang “làm mưa làm gió” tại các vùng quê và ngoại thành Việt Nam trong 3 năm trở lại đây, tôi sẽ không ngần ngại trả lời: Đó chính là nhà 2 tầng mái Nhật. Không quá phô trương như lâu đài cổ điển, cũng không quá đơn điệu như nhà mái bằng, những ngôi nhà mái Nhật mang trong mình vẻ đẹp thanh thoát, cân đối và đặc biệt là công năng sử dụng cực kỳ tối ưu cho gia đình đa thế hệ.
Hôm nay, Techhome xin mời quý vị cùng “ghé thăm” công trình tâm huyết mà chúng tôi vừa hoàn thiện hồ sơ thiết kế cho gia đình anh Huỳnh tại Hiệp Hòa, Bắc Giang. Đây là một ví dụ điển hình cho sự kết hợp hoàn hảo giữa thẩm mỹ hiện đại và lối sống thực tế của người Việt.
1. Tổng quan công trình nhà 2 tầng mái Nhật – Anh Huỳnh
Trước khi đi sâu vào chi tiết “mổ xẻ” ngôi nhà, hãy cùng điểm qua những thông số kỹ thuật cơ bản để các bạn dễ hình dung quy mô công trình này.
-
Chủ đầu tư: Anh Huỳnh
-
Địa điểm xây dựng: Hiệp Hòa, Bắc Giang
-
Đơn vị thiết kế: Công ty Cổ phần Kiến trúc và Xây dựng Techhome
-
Loại hình: Nhà ở gia đình (Biệt thự mini 2 tầng)
-
Phong cách: Hiện đại kết hợp tân cổ điển nhẹ, hệ mái Nhật.
-
Kích thước xây dựng: Mặt tiền khoảng 8.6m x Chiều sâu 15.1m.
-
Công năng chính: 5 phòng ngủ, 1 phòng khách, 1 phòng thờ, các công trình phụ khép kín và chung.
Với diện tích xây dựng sàn tầng 1 khoảng hơn 110m2, mẫu nhà 2 tầng mái Nhật này giải quyết bài toán không gian cho một gia đình đông người (từ 6-8 thành viên) một cách cực kỳ thoải mái.

2. Phân tích vẻ đẹp ngoại thất: Sự bề thế đến từ sự giản đơn
Nhìn vào phối cảnh 3D mặt tiền, điều đầu tiên đập vào mắt chúng ta chính là sự cân đối đến mức “chuẩn mực”. Anh Huỳnh là người yêu thích sự bền vững, không thích những chi tiết quá rườm rà, sến súa. Vì vậy, các kiến trúc sư của Techhome đã lựa chọn ngôn ngữ thiết kế hiện đại, điểm xuyết một chút phào chỉ nhẹ nhàng để tạo nét sang trọng.
Hệ mái Nhật – “Linh hồn” của ngôi nhà
Hệ mái Nhật (hay còn gọi là mái lùn) của ngôi nhà này được thiết kế với độ dốc vừa phải, mở rộng ra các hướng khác nhau. Điều này không chỉ giúp thoát nước mưa nhanh, chống nóng hiệu quả vào mùa hè miền Bắc mà còn tạo nên một tổng thể hình khối vững chãi, đầm mắt. Màu ngói xanh than được lựa chọn là gam màu “bất hủ”, vừa sạch sẽ, vừa nổi bật trên nền sơn trắng sứ chủ đạo.
Màu sắc và vật liệu: Tinh tế từng chi tiết
Toàn bộ ngôi nhà 2 tầng mái Nhật được khoác lên mình lớp sơn trắng. Đây là màu sắc không bao giờ lỗi mốt, giúp ngôi nhà trông sáng hơn và lớn hơn so với diện tích thực.
-
Chân tường: Được ốp đá thẻ màu ghi xám sẫm. Chi tiết này tuy nhỏ nhưng rất quan trọng, giúp bảo vệ chân tường khỏi rêu mốc, nước mưa bắn ngược, đồng thời tạo cảm giác vững chãi cho khối đế.
-
Hệ cột: Cột sảnh chính và sảnh phụ là hệ cột vuông to khỏe, được kẻ chỉ lõm dọc thân cột tạo điểm nhấn, tránh cảm giác thô cứng. Phần đầu cột và chân cột được đắp phào chỉ nổi tỉ mỉ.
-
Cửa: Hệ thống cửa chính sử dụng gỗ Lim Nam Phi pano đặc kính, mang lại sự sang trọng, ấm cúng. Trong khi đó, hệ thống cửa sổ lại sử dụng nhôm hệ kính cường lực Xingfa. Đây là sự lựa chọn thông minh: Cửa gỗ tạo uy nghi cho mặt tiền, còn cửa nhôm kính giúp lấy sáng tối đa và không bị cong vênh dưới thời tiết khắc nghiệt.

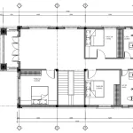
3. “Mổ xẻ” mặt bằng công năng: Đỉnh cao của sự tiện dụng
Một ngôi nhà 2 tầng mái Nhật đẹp đến mấy mà công năng bất hợp lý thì cũng chỉ là “bình hoa di động”. Với gia đình anh Huỳnh, Techhome đã tính toán kỹ lưỡng để từng mét vuông đều có giá trị sử dụng.
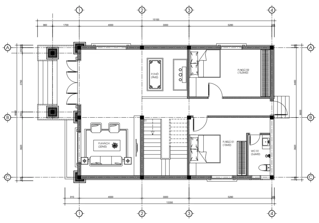
Tầng 1: Không gian kết nối và nghỉ ngơi cho người lớn tuổi
Nhìn vào bản vẽ mặt bằng nội thất tầng 1, chúng ta thấy sự bố trí rất khoa học:
-
Phòng khách (32m2): Bước từ sảnh chính vào là không gian phòng khách rộng rãi. Diện tích này đủ sức chứa bộ sofa gỗ kích thước đại, là nơi gia chủ tiếp đón khách khứa phương xa về chơi.
-
Phòng thờ (9m2): Nằm ngay cạnh phòng khách, hướng ra mặt tiền. Việc đặt phòng thờ ở tầng 1 là nét văn hóa rất riêng của nhiều gia đình Bắc Bộ, thuận tiện cho việc hương khói của người lớn tuổi mà không phải leo tầng cao.
-
Phòng ngủ 01 (15m2) & Phòng ngủ 02 (15.5m2): Hai phòng ngủ này được đặt phía sau. Đặc biệt, việc bố trí tới 2 phòng ngủ ở tầng 1 là cực kỳ lý tưởng cho gia đình có ông bà già hoặc trẻ nhỏ, hạn chế việc leo cầu thang.
-
Khu vực vệ sinh: Có 1 WC khép kín (3.6m2) trong phòng ngủ 01
Các bạn có để ý bản vẽ không thấy khu bếp không? Đây là đặc điểm rất “đời thường” ở các vùng quê như Bắc Giang. Gia đình anh Huỳnh sở hữu đất rộng, nên khu bếp nấu và ăn uống được tách biệt ra nhà ngang bên cạnh. Điều này giúp ngôi nhà chính luôn sạch sẽ, không bị ám mùi thức ăn và dầu mỡ – một tư duy rất thực tế!

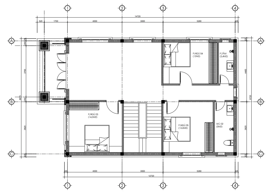
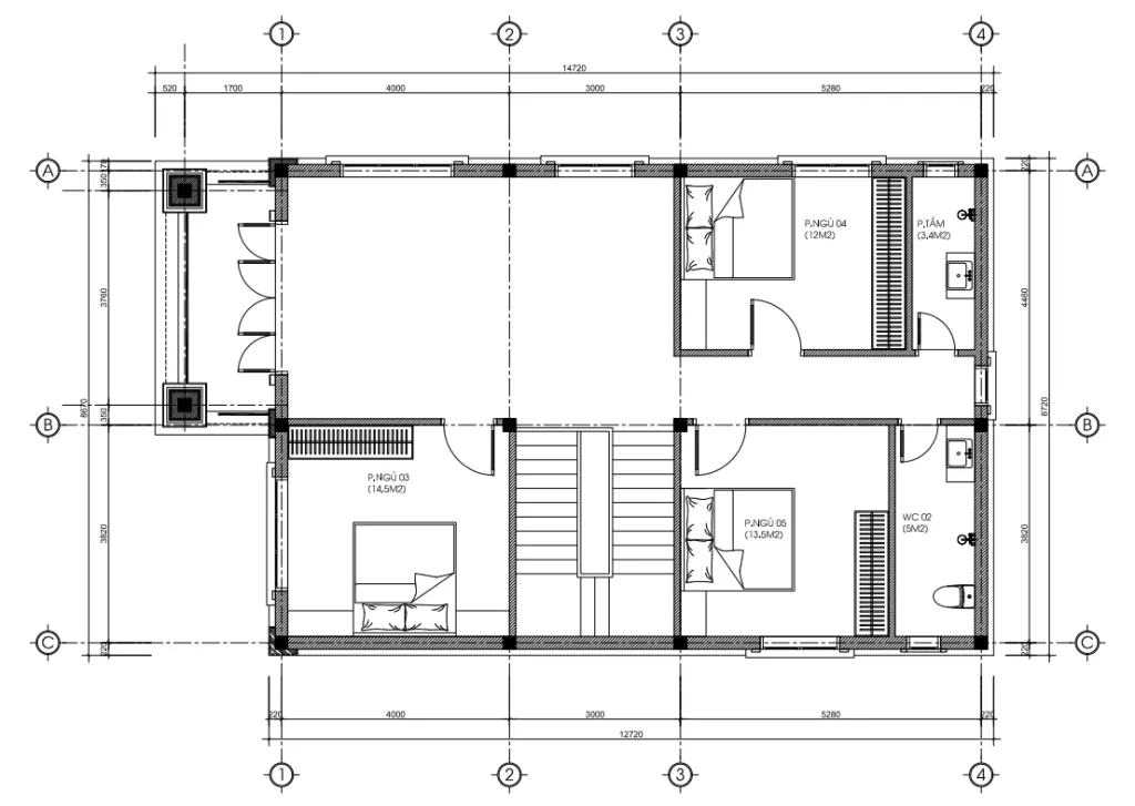
Tầng 2: Thế giới riêng tư
Lên đến tầng 2 của mẫu nhà 2 tầng mái Nhật này, không gian được dành trọn cho sự nghỉ ngơi:
-
3 Phòng ngủ: Gồm Phòng ngủ 03 (14.5m2), Phòng ngủ 04 (12m2) và Phòng ngủ 05 (13.5m2). Diện tích này là vừa đủ cho các con, đảm bảo sự riêng tư nhưng vẫn ấm cúng.
-
Khu vệ sinh: Một WC chung rộng 5m2 và một phòng tắm riêng biệt 3.4m2. Việc tách biệt khu vệ sinh và khu tắm giúp việc sinh hoạt buổi sáng của cả nhà không bị “tắc nghẽn”.
-
Ban công: Khu vực ban công phía trước là nơi lý tưởng để đặt vài chậu cây cảnh, hóng gió vào mỗi buổi chiều tà.
Tổng cộng ngôi nhà có tới 5 phòng ngủ. Đây là con số ấn tượng với một diện tích sàn hơn 100m2, giải quyết triệt để nhu cầu ngủ nghỉ khi nhà có công việc, giỗ chạp đông người.

4. Chi tiết kỹ thuật – Những điều ít ai nói cho bạn biết
Là đơn vị thiết kế và thi công trọn gói, Techhome muốn chia sẻ những chi tiết kỹ thuật trong hồ sơ nhà 2 tầng mái Nhật này để bạn thấy độ tỉ mỉ của một bản vẽ chất lượng.
Chiều cao tầng:
-
Tầng 1 cao 3.9m. Đây là chiều cao lý tưởng, giúp nhà thông thoáng, lắp quạt trần hay đèn chùm đều đẹp, không bị bí bách.
-
Tầng 2 cao 3.7m (cốt trần đến sàn mái)
-
Chiều cao mái khoảng 2.9m. Độ cao này giúp tản nhiệt cực tốt.
Cầu thang:
-
Cầu thang được thiết kế 25 bậc. Theo phong thủy “Sinh – Lão – Bệnh – Tử”, bậc 25 rơi vào cung “Sinh”, mang lại sức khỏe và may mắn cho gia chủ.
-
Mặt bậc được ốp đá Granite, cổ bậc ốp đá trắng hoặc sơn trắng. Đây là xu hướng hiện đại, giúp cầu thang nhìn rõ ràng, sạch sẽ và sang trọng hơn hẳn so với việc ốp đá đen toàn bộ.
Sàn và Trần:
-
Sàn tầng 1 lát gạch Granite 800×800 tạo cảm giác rộng rãi
-
Trần thạch cao giật cấp kết hợp hệ thống đèn LED âm trần và đèn hắt, tạo hiệu ứng ánh sáng lung linh vào ban đêm

5. Tại sao bạn nên chọn mẫu nhà 2 tầng mái Nhật này?
Dưới góc độ chuyên gia, tôi khuyên bạn nên cân nhắc mẫu nhà 2 tầng mái Nhật này vì 3 lý do sau:
-
Tiết kiệm chi phí xây dựng: So với mái Thái (với độ dốc lớn, tốn nhiều vật liệu ngói và xà gồ) hay biệt thự cổ điển (với nhiều phào chỉ đắp vẽ thủ công), mẫu nhà mái Nhật phong cách hiện đại này tối ưu chi phí hơn rất nhiều. Hình khối vuông vắn cũng giúp giảm thiểu hao hụt vật tư trong quá trình thi công.
-
Không lỗi thời: Vẻ đẹp của sự đơn giản là vẻ đẹp trường tồn. 10 hay 20 năm nữa, ngôi nhà của anh Huỳnh vẫn sẽ giữ được nét thanh lịch vốn có.
-
Phù hợp khí hậu Việt Nam: Hệ mái đua rộng ra các phía giúp che nắng mưa cho hệ cửa sổ và tường, bảo vệ ngôi nhà bền bỉ hơn trước thời tiết nồm ẩm hay nắng gắt.

6. Báo giá thiết kế và thi công (Tham khảo 2026)
Đây chắc chắn là phần các bạn mong chờ nhất. Tuy nhiên, xin lưu ý rằng giá cả xây dựng nhà 2 tầng mái Nhật phụ thuộc rất nhiều vào vị trí địa lý (nhân công Bắc Giang sẽ khác Hà Nội), thời điểm khởi công và chủng loại vật liệu bạn chọn.
Techhome xin đưa ra bảng khái toán dựa trên mức đầu tư trung bình khá để bạn chuẩn bị ngân sách:
| Hạng mục | Đơn giá tham khảo (VNĐ) | Ghi chú |
| Chi phí thiết kế | 108.000 đ/m2 | Bao gồm kiến trúc, kết cấu, điện nước, 3D |
| Thi công phần thô | 3.800.000 – 4.500.000 đ/m2 | Bao gồm nhân công + vật tư thô (sắt, xi, gạch, cát…) |
| Thi công trọn gói | 6.500.000 – 7.500.000 đ/m2 | Chìa khóa trao tay (đã bao gồm ốp lát, sơn bả, thiết bị vệ sinh cơ bản, cửa…) |
Ví dụ cụ thể cho nhà anh Huỳnh (Tổng diện tích sàn khoảng 230m2):
-
Chi phí xây thô: Khoảng 900 triệu – 1 tỷ đồng.
-
Chi phí hoàn thiện cơ bản: Khoảng 1.5 tỷ – 1.7 tỷ đồng.
Lưu ý: Đây chỉ là mức chi phí ước tính. Để nhận được báo giá chính xác và chi tiết nhất cho công trình của bạn, vui lòng liên hệ trực tiếp với chúng tôi. Hoặc để tìm hiểu rõ hơn về tiêu chuẩn vật liệu xây dựng và các yếu tố ảnh hưởng đến chi phí, bạn có thể tham khảo thêm tại các bài viết chuyên sâu về vật liệu xây dựng cao cấp trên Wikipedia.

7. Quy trình làm việc tại Techhome – Uy tín tạo niềm tin
Để ra được bộ hồ sơ chất lượng như của anh Huỳnh, Techhome tuân thủ quy trình 6 bước chặt chẽ:
-
Tiếp nhận thông tin: Lắng nghe mong muốn về ngôi nhà 2 tầng mái Nhật mơ ước của bạn.
-
Khảo sát hiện trạng: Đo đạc đất, xem hướng gió, hướng nắng, phong thủy.
-
Lên phương án mặt bằng: Bố trí công năng 2D (Giai đoạn quan trọng nhất).
-
Dựng phối cảnh 3D: Giúp bạn nhìn thấy ngôi nhà trong tương lai.
-
Triển khai hồ sơ kỹ thuật: Kết cấu, điện nước, dự toán chi tiết
-
Bàn giao & Giám sát tác giả: Hỗ trợ giải đáp thắc mắc cho thợ trong quá trình thi công

Lời kết
Ngôi nhà 2 tầng mái Nhật của gia đình anh Huỳnh tại Hiệp Hòa, Bắc Giang không chỉ là một chốn đi về, mà còn là niềm tự hào, là thành quả lao động của cả một đời người. Techhome rất vinh dự khi được đồng hành cùng gia chủ kiến tạo nên tổ ấm này.
Nếu bạn cũng đang ấp ủ dự định xây một ngôi nhà 2 tầng mái Nhật đẹp, công năng tối ưu và chi phí hợp lý, đừng ngần ngại nhấc máy lên.
Bạn muốn sở hữu một bản thiết kế “độc bản” như thế này?
👉 Hãy liên hệ ngay với Techhome để được tư vấn miễn phí:
-
Hotline Kỹ Thuật: 0364.04.2222 – 0387.60.3333
-
Website: https://nhadeptechhome.vn/
Chúng tôi không chỉ vẽ nhà, chúng tôi vẽ nên ước mơ của bạn!
