Thiết Kế Nhà Phố 3 Tầng 4x18m Hiện Đại Tại Vĩnh Phúc | Techhome

Trong bối cảnh quỹ đất tại các đô thị đang dần thu hẹp, bài toán làm sao để sở hữu một không gian sống vừa thoáng đãng, vừa đầy đủ công năng cho nhiều thành viên luôn là trăn trở lớn. Đặc biệt tại Vĩnh Phúc, xu hướng thiết kế nhà phố 3 tầng đang lên ngôi bởi khả năng tối ưu hóa diện tích tuyệt vời.

Hôm nay, Kiến trúc Techhome xin giới thiệu đến quý khách hàng một “siêu phẩm” nhà phố mang mã số 583 – Tâm huyết mà đội ngũ KTS Techhome dành riêng cho gia đình chị Dung. Đây không chỉ là một ngôi nhà, đó là tổ ấm được “đo ni đóng giày” cho cuộc sống hiện đại.

1. Thông tin tổng quan dự án

Trước khi đi sâu vào chi tiết, mời quý vị cùng điểm qua những thông số kỹ thuật cơ bản của dự án này:

  • Chủ đầu tư: Chị Dung

  • Địa điểm xây dựng: Vĩnh Phúc

  • Đơn vị thiết kế: Công ty Cổ phần Kiến trúc và Xây dựng Techhome

  • Loại hình: Nhà phố (Nhà ống) hiện đại

  • Số tầng: 03 tầng

  • Diện tích xây dựng:

    • Tầng 1: 65m2

    • Tầng 2: 70m2

    • Tầng 3: 28m2 (chưa tính sân chơi)

  • Kích thước mặt tiền: 3.78m

  • Chiều dài đất: ~18.3m

Phối cảnh mặt tiền mẫu thiết kế nhà phố 3 tầng hiện đại rộng 4m tại Vĩnh Phúc.
Phối cảnh mặt tiền mẫu thiết kế nhà phố 3 tầng hiện đại rộng 4m tại Vĩnh Phúc.

2. Câu chuyện thiết kế: Khi “Hiện đại” gặp gỡ “Tiện nghi”

Chị Dung tìm đến Techhome với một đề bài khá phổ biến nhưng cũng đầy thách thức, Chị Dung chia sẻ với KTS Techhome rằng: “Đất nhà chị bề ngang chỉ gần 4m, nhưng chị cần 4 phòng ngủ để các con và ông bà đều có không gian riêng. Làm sao để nhà không bị bí bách? Chị rất sợ nhà ống bị thiếu sáng, sợ cảm giác bước vào nhà như đi vào cái hộp kín mít.”

Hiểu được nỗi lo đó, các kiến trúc sư Techhome đã định hướng ngay phương án thiết kế nhà phố 3 tầng theo phong cách hiện đại, sử dụng hình khối mạnh mẽ và vật liệu kính để lấy sáng tối đa.

Vẻ đẹp ngoại thất: Sang trọng từ sự tối giản

Nhìn vào phối cảnh mặt tiền, bạn sẽ thấy sự cuốn hút đến từ những đường nét vuông vức, khỏe khoắn. Techhome không lạm dụng các chi tiết phào chỉ rườm rà của phong cách tân cổ điển, thay vào đó là sự lên ngôi của các mảng khối giật cấp đầy nghệ thuật.

Mặt tiền tầng 2 và tầng 3 được thiết kế với ban công đua ra hợp lý, sử dụng lan can sắt hộp sơn tĩnh điện vừa an toàn, vừa tạo độ thoáng cho tầm nhìn. Điểm nhấn đắt giá nằm ở phần trần ban công ốp gỗ nhựa (conwood) kết hợp hệ thống đèn downlight, tạo nên vẻ ấm cúng, sang trọng mỗi khi thành phố lên đèn.

Hệ thống cửa chính và cửa sổ đều sử dụng nhôm kính Xingfa cao cấp. Đây là giải pháp “vàng” trong thiết kế nhà phố 3 tầng hiện nay, giúp ngôi nhà luôn tràn ngập ánh sáng tự nhiên, xóa tan cảm giác chật hẹp của nhà ống.

Góc nghiêng mẫu nhà phố 3 tầng mái bằng đẹp với ban công và trần ốp gỗ.
Góc nghiêng mẫu nhà phố 3 tầng mái bằng đẹp với ban công và trần ốp gỗ.

3. Khám phá công năng “thực dụng” bên trong ngôi nhà

Một bản thiết kế nhà phố 3 tầng đẹp không chỉ ở cái vỏ bên ngoài, mà quan trọng nhất là sự bố trí công năng bên trong phải thuận tiện cho sinh hoạt hàng ngày. Dưới đây là cách Techhome giải bài toán công năng cho gia đình chị Dung:

Tầng 1: Không gian kết nối (Diện tích 65m2)

Bước qua hệ cửa cuốn an toàn và cửa kính 4 cánh rộng mở, chúng ta đến với phòng khách rộng 20m2. Đây là bộ mặt của ngôi nhà, nơi được thiết kế để đặt bộ sofa lớn, kệ tivi hiện đại, tạo sự bề thế khi khách đến chơi nhà.

Tiếp nối là khu vực cầu thang và phòng bếp ăn rộng 16m2. Việc đặt bếp lùi về phía sau giúp ngăn mùi thức ăn bay ra phòng khách. Đặc biệt, tại tầng 1, KTS đã khéo léo bố trí 01 phòng ngủ nhỏ phía cuối nhà. Đây là chi tiết rất tinh tế trong thiết kế nhà phố 3 tầng, dành riêng cho người lớn tuổi hạn chế leo cầu thang hoặc khách đến chơi ngủ lại.

Bản vẽ mặt bằng bố trí công năng tầng 1 mẫu thiết kế nhà phố 3 tầng kích thước 3,78x18,3m.
Bản vẽ mặt bằng bố trí công năng tầng 1 mẫu thiết kế nhà phố 3 tầng kích thước 3,78×18,3m.

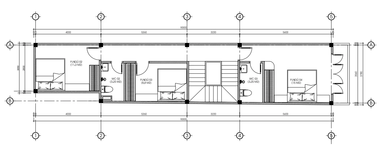
Tầng 2: Không gian nghỉ ngơi riêng tư (Diện tích 70m2)

Tầng 2 là khu vực tập trung mật độ phòng ngủ cao nhất để gắn kết các thành viên. Techhome đã bố trí tới 03 phòng ngủ tại đây:

  • Phòng ngủ 04 (15m2): Rộng rãi, hướng ra mặt tiền với ban công thoáng mát. Kết hợp WC khép kín 3,25m2.

  • Phòng ngủ 02 (11.3m2) và Phòng ngủ 03 (8.8m2): Dành cho các con. Dù diện tích khiêm tốn, nhưng nhờ cách bố trí nội thất thông minh và hệ thống giếng trời, các phòng đều đảm bảo sự lưu thông không khí. vệ sinh chung WC 02 được đặt ở vị trí thuận tiện giao thông.

Bản vẽ mặt bằng bố trí công năng tầng 2 mẫu thiết kế nhà phố 3 tầng kích thước 3,78x18,3m.
Bản vẽ mặt bằng bố trí công năng tầng 2 mẫu thiết kế nhà phố 3 tầng kích thước 3,78×18,3m.

Tầng 3: Tâm linh và Thư giãn (Diện tích 28m2)

Trong văn hóa người Việt, phòng thờ luôn được đặt ở nơi cao nhất và trang trọng nhất. Phòng thờ 9m2 được đặt tại tầng 3, hướng ra sân chơi phía trước, đảm bảo sự yên tĩnh và tôn nghiêm. Bên cạnh đó là một kho nhỏ 3.25m2 để đồ ít dùng.

Sân thượng rộng rãi phía trước và sau là nơi gia chủ có thể trồng cây, làm sân phơi hoặc tổ chức những bữa tiệc BBQ ngoài trời cuối tuần.

Bản vẽ mặt bằng bố trí công năng tầng 3 mẫu thiết kế nhà phố 3 tầng kích thước 3,78x18,3m.
Bản vẽ mặt bằng bố trí công năng tầng 3 mẫu thiết kế nhà phố 3 tầng kích thước 3,78×18,3m.

4. Tại sao nên chọn Techhome cho dự án nhà phố của bạn?

Giữa hàng trăm đơn vị trên thị trường, Techhome vẫn luôn là cái tên được khách hàng tại Vĩnh Phúc và miền Bắc “chọn mặt gửi vàng” khi cần thiết kế nhà phố 3 tầng. Chúng tôi cam kết:

  1. Pháp lý rõ ràng: Hồ sơ bản vẽ đầy đủ, chuẩn chỉ phục vụ xin cấp phép xây dựng.

  2. Tối ưu chi phí: Dự toán chính xác, hạn chế tối đa phát sinh.

  3. Phong thủy khoa học: Tư vấn hướng nhà, hướng bếp, kích thước cửa Lỗ Ban hợp mệnh gia chủ.

  4. Hỗ trợ giám sát: Đồng hành cùng chủ nhà từ khi đặt viên gạch đầu tiên đến khi về nhà mới.

thiết kế nhà phố 3 tầng

5. Báo giá thiết kế và thi công nhà phố 3 tầng (Cập nhật 2026)

Rất nhiều khách hàng thắc mắc chi phí để sở hữu một mẫu thiết kế nhà phố 3 tầng như nhà chị Dung là bao nhiêu. Techhome xin đưa ra bảng báo giá tham khảo để quý vị dễ dàng dự trù ngân sách:

Chi phí thiết kế kiến trúc

Hiện tại, đơn giá thiết kế nhà phố 3 tầng tại Techhome đang là 108.000đ/m2.

Với tổng diện tích sàn khoảng 170m2 – 200m2 như nhà chị Dung, chi phí thiết kế trọn bộ hồ sơ (Kiến trúc, Kết cấu, Điện nước, 3D) sẽ nằm trong khoảng 18 – 20 triệu đồng. Đây là một khoản đầu tư quá nhỏ để đổi lấy sự an tâm tuyệt đối và một ngôi nhà chuẩn chỉ.

Chi phí thi công xây dựng trọn gói

Đối với gói “Chìa khóa trao tay”, đơn giá xây dựng nhà phố hiện đại năm 2026 dao động khoảng:

  • Xây dựng phần thô: 3.800.000đ – 4.200.000đ/m2.

  • Xây dựng trọn gói (Hoàn thiện cơ bản): 6.500.000đ – 7.500.000đ/m2 (tùy thuộc vào chủng loại vật liệu hoàn thiện như gạch ốp lát, thiết bị vệ sinh, cửa…).

Lưu ý: Đây chỉ là mức chi phí ước tính. Để nhận được báo giá chính xác và chi tiết nhất cho công trình của bạn, vui lòng liên hệ trực tiếp với chúng tôi. Hoặc để tìm hiểu rõ hơn về tiêu chuẩn vật liệu xây dựng và các yếu tố ảnh hưởng đến chi phí, bạn có thể tham khảo thêm tại các bài viết chuyên sâu về vật liệu xây dựng cao cấp trên Wikipedia.

6. Lời kết

Mẫu nhà phố của chị Dung tại Vĩnh Phúc là minh chứng rõ nét cho việc: Diện tích đất không quyết định chất lượng sống, mà chính giải pháp thiết kế mới là chìa khóa. Nếu bạn đang ấp ủ dự định xây dựng tổ ấm và cần một bản thiết kế nhà phố 3 tầng tối ưu nhất, đừng ngần ngại liên hệ với Techhome.

Chúng tôi không chỉ vẽ nên những ngôi nhà, chúng tôi kiến tạo không gian sống hạnh phúc cho gia đình bạn.


CÔNG TY CỔ PHẦN KIẾN TRÚC VÀ XÂY DỰNG TECHHOME

Để lại một bình luận

Email của bạn sẽ không được hiển thị công khai. Các trường bắt buộc được đánh dấu *

    Vui lòng nhấn nút YÊU CẦU TƯ VẤN và đợi 1 - 2 giây đến khi thấy thông báo thành công

    YÊU CẦU TƯ VẤN