Chào các bác, các anh chị em đang đau đầu tìm ý tưởng xây nhà!
Câu chuyện làm nhà chưa bao giờ là dễ dàng, nhất là với những gia đình trẻ sở hữu những mảnh đất phân lô phố thị. Đất mặt tiền 5m thì nhiều, nhưng làm sao để xây lên một ngôi nhà vừa thoáng, vừa đẹp, lại tối ưu chi phí thì không phải ai cũng biết. Hôm nay, TechHome xin phép ngồi lại, chia sẻ tường tận về quá trình chúng tôi tư vấn và thiết kế mẫu nhà phố 2 tầng 1 tum cho gia đình anh Dân tại Hưng Yên.
Tại sao lại là mẫu nhà phố 2 tầng 1 tum? Bởi vì qua khảo sát thực tế, đây chính là “kiến trúc vàng” cân bằng giữa công năng sinh hoạt cho gia đình 2-3 thế hệ và túi tiền của gia chủ. Hãy cùng TechHome “mổ xẻ” chi tiết công trình này để xem có gì đáng để các bác tham khảo nhé!
1. Thông tin tổng quan về dự án
Trước khi đi vào chi tiết, TechHome xin điểm qua “lý lịch” của công trình để mọi người nắm rõ bối cảnh. Đây là cơ sở quan trọng để chúng tôi lên phương án thiết kế mẫu nhà phố 2 tầng 1 tum này:
-
Chủ đầu tư: Anh Dân.
-
Địa chỉ: Hưng Yên.
-
Kích thước đất: Mặt tiền 5m, chiều sâu 18m.
-
Đơn vị thiết kế: Công ty Cổ phần Kiến trúc và Xây dựng TechHome.
-
Phong cách: Hiện đại, mái bằng.
Với diện tích đất 90m2 (5x18m), đề bài anh Dân đặt ra là cần nhiều phòng ngủ nhưng không được bí bách. Các KTS của TechHome đã ngay lập tức đề xuất phương án mẫu nhà phố 2 tầng 1 tum để giải quyết bài toán thông gió và lấy sáng, đồng thời tạo ra khoảng sân chơi thư giãn trên cao.

2. Đánh giá mặt tiền: Hiện đại, tinh tế và không lỗi mốt
Điểm ấn tượng đầu tiên khi nhìn vào phối cảnh mẫu nhà phố 2 tầng 1 tum của nhà anh Dân chính là sự khỏe khoắn. Chúng tôi không sử dụng những đường phào chỉ rườm rà của tân cổ điển, mà thay vào đó là những khối hình vuông vức, xếp chồng lên nhau tạo chiều sâu hút mắt.
Tông màu chủ đạo được sử dụng là màu trắng sứ, kết hợp với màu nâu ấm áp của hệ trần giả gỗ tại ban công tầng 2 và trần tầng 1. Hệ thống cửa sử dụng nhôm kính Xingfa màu ghi đen, vừa bền bỉ với thời tiết miền Bắc, vừa giúp lấy sáng tối đa cho không gian bên trong. Lan can sắt giúp mặt tiền của mẫu nhà phố 2 tầng 1 tum trông nhẹ nhàng, thanh thoát hơn hẳn so với việc xây tường gạch đặc hay dùng con tiện bê tông truyền thống.

3. “Soi” bản vẽ công năng – Nghệ thuật sắp đặt không gian
Đẹp bên ngoài thôi chưa đủ, cái cốt lõi để gia chủ gật đầu chốt phương án chính là sự tiện dụng bên trong. Mời các bác cùng xem cách TechHome bố trí nội thất cho mẫu nhà phố 2 tầng 1 tum diện tích 5x18m này nhé.
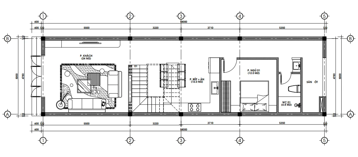
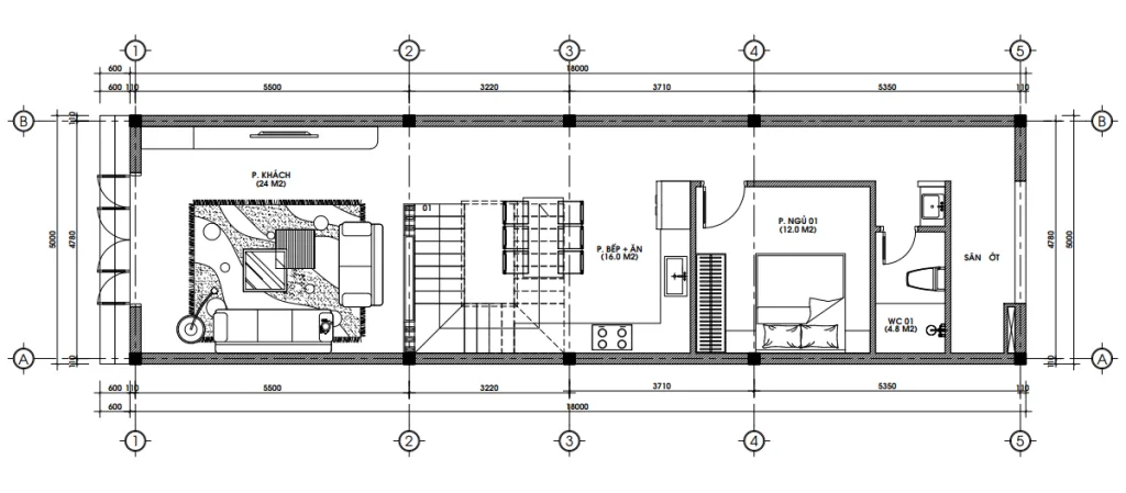
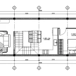
Tầng 1: Sự kết nối không gian mở
Bước vào tầng 1, chúng ta sẽ gặp ngay phòng khách rộng rãi với diện tích 24m2. Với chiều ngang nhà 5m, việc bố trí sofa chạy dọc tường giúp lối đi lại cực kỳ thông thoáng. Đây là điểm cộng lớn của mẫu nhà phố 2 tầng 1 tum khi biết cách tận dụng chiều sâu 18m để tạo liên kết.
Tiếp đến là khu vực cầu thang bộ đóng vai trò xương sống, ngăn nhẹ phòng khách và bếp. Phòng bếp ăn rộng 16m2 được đặt ở trung tâm, đủ chỗ cho bộ bàn ăn 6 người. Đặc biệt, tại tầng 1 chúng tôi bố trí 01 phòng ngủ rộng 12m2. Đây là thiết kế cực kỳ tâm lý dành cho gia đình có người lớn tuổi, giúp ông bà hạn chế leo trèo. Một nhà vệ sinh chung (WC 01) rộng 4.8m2 được đặt kín đáo cuối nhà cạnh sân ướt, đảm bảo sạch sẽ và phong thủy.

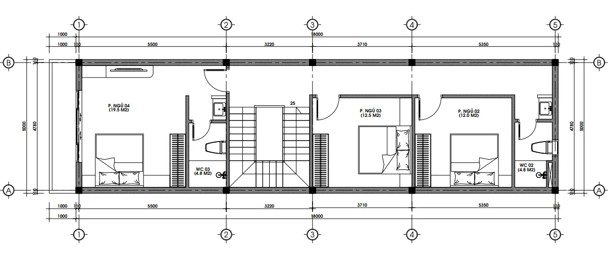
Tầng 2: Không gian nghỉ ngơi riêng tư
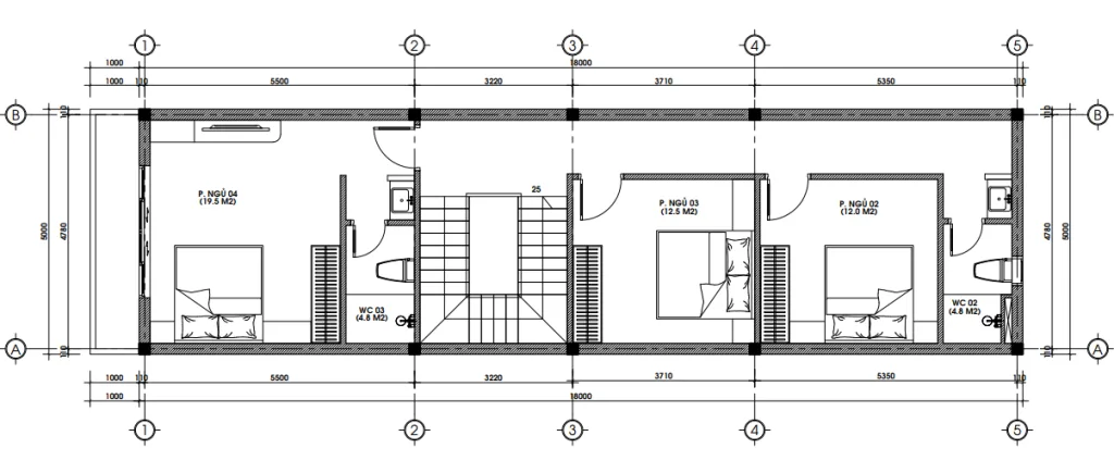
Lên đến tầng 2 của mẫu nhà phố 2 tầng 1 tum, không gian được tối ưu hóa triệt để cho việc nghỉ ngơi với mật độ 3 phòng ngủ:
-
Phòng ngủ 04 (Master): Diện tích 19.5m2, hướng ra ban công mặt tiền cực thoáng. Phòng này dành cho vợ chồng anh Dân, có vệ sinh khép kín (WC 03) rộng 4.8m2.
-
Phòng ngủ 02 và 03: Diện tích lần lượt là 12m2 và 12.5m2. Dù diện tích không quá lớn nhưng vuông vức, dễ kê đồ.
-
Việc bố trí tới 3 phòng ngủ trên một sàn mà vẫn đảm bảo giao thông thuận tiện là ưu điểm nổi bật của mẫu nhà phố 2 tầng 1 tum do TechHome thiết kế.

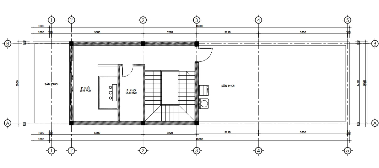
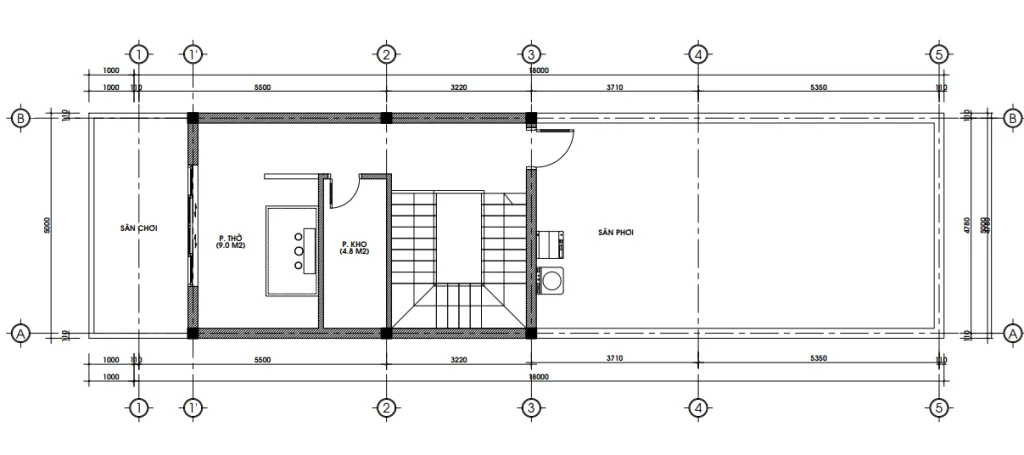
Tầng Tum: Góc tâm linh và khoảng trời riêng
Tầng tum là nơi cao nhất, yên tĩnh nhất, được TechHome bố trí Phòng thờ rộng 9m2 trang trọng hướng ra sân chơi phía trước. Phía sau là kho chứa đồ 4.8m2 và sân phơi rộng rãi.
Không gian tầng tum của mẫu nhà phố 2 tầng 1 tum này chính là lớp cách nhiệt tự nhiên, giúp các phòng ngủ ở tầng 2 mát mẻ hơn vào mùa hè oi bức của Hưng Yên.

4. Tại sao nên chọn thiết kế nhà ống 2 tầng 1 tum?
Nhiều bác hay hỏi tôi: “Sao không xây hẳn 3 tầng mà lại làm 2 tầng 1 tum?”. Thực ra, việc lựa chọn mẫu nhà phố 2 tầng 1 tum là một nước đi “cao tay” về kinh tế.
Thứ nhất, tầng tum không tính 100% diện tích xây dựng như tầng thường, giúp giảm chi phí phần thô. Thứ hai, về mặt thẩm mỹ, độ cao 2.5 tầng giúp tỉ lệ ngôi nhà mặt tiền 5m trông cân đối, không bị “lêu nghêu” quá mức. Đây là lý do vì sao mẫu nhà phố 2 tầng 1 tum đang trở thành xu hướng “hot” nhất năm nay tại các vùng ven đô và thành phố.

5. Báo giá thiết kế và thi công (Cập nhật mới nhất)
Để các bác dễ hình dung và chuẩn bị tài chính, TechHome xin đưa ra bảng dự toán sơ bộ để xây dựng hoàn thiện mẫu nhà phố 2 tầng 1 tum với tổng diện tích sàn khoảng 220m2 (Tầng 1 + Tầng 2 + Tum) như nhà anh Dân:
| Hạng mục công việc | Đơn giá tham khảo (VNĐ/m2) | Ước tính tổng chi phí |
| Thiết kế kiến trúc & Kết cấu | 108.000đ | 24.000.000đ |
| Thi công phần thô & Nhân công | 3.800.000đ – 4.200.000đ | ~ 900.000.000đ |
| Thi công trọn gói (Chìa khóa trao tay) | 6.000.000đ – 7.000.000đ | ~ 1.3 tỷ – 1.6 tỷ |
Lưu ý: Báo giá xây dựng mẫu nhà phố 2 tầng 1 tum sẽ thay đổi tùy thuộc vào thời điểm, giá vật liệu sắt thép tại địa phương và loại vật liệu hoàn thiện (gạch ốp lát, thiết bị vệ sinh) mà gia chủ lựa chọn.
Đây chỉ là mức chi phí ước tính. Để nhận được báo giá chính xác và chi tiết nhất cho công trình của bạn, vui lòng liên hệ trực tiếp với chúng tôi. Hoặc để tìm hiểu rõ hơn về tiêu chuẩn vật liệu xây dựng và các yếu tố ảnh hưởng đến chi phí, bạn có thể tham khảo thêm tại các bài viết chuyên sâu về vật liệu xây dựng cao cấp trên Wikipedia.

6. Lời khuyên của chuyên gia TechHome
Là người làm nghề lâu năm, khi tư vấn mẫu nhà phố 2 tầng 1 tum, tôi luôn khuyên chủ nhà chú trọng vào phần kết cấu móng và chống thấm mái.
Với nhà anh Dân, chiều cao tầng 1 là 3m9 và tầng 2 là 3m6, đây là chiều cao lý tưởng để nhà luôn thoáng. Tuy nhiên, phần sân thượng tầng tum cần được xử lý chống thấm kỹ càng và lát gạch chống nóng để đảm bảo độ bền cho công trình. TechHome luôn hỗ trợ tư vấn kỹ thuật xây dựng 24/7 qua hotline 0364.04.2222 để đảm bảo quá trình thi công mẫu nhà phố 2 tầng 1 tum diễn ra suôn sẻ nhất, ngay cả khi các bác tự thuê thợ địa phương.

7. Kết luận
Ngôi nhà không chỉ là tài sản, nó là tổ ấm. Với thiết kế mẫu nhà phố 2 tầng 1 tum của gia đình anh Dân, TechHome hy vọng đã mang đến cho các bác một gợi ý thực tế, hữu ích cho kế hoạch xây dựng sắp tới.
Sự hài lòng của khách hàng chính là thước đo giá trị của chúng tôi. Nếu các bác cũng đang ấp ủ dự định sở hữu mẫu nhà phố 2 tầng 1 tum đẹp, hiện đại và tối ưu công năng như thế này, đừng ngần ngại liên hệ với TechHome.
Hãy để TechHome giúp bạn hiện thực hóa giấc mơ an cư!
Liên hệ tư vấn thiết kế mẫu nhà phố 2 tầng 1 tum miễn phí:
-
Công ty Cổ phần Kiến trúc và Xây dựng TechHome
-
Địa chỉ: B1.1 LK18 Ô 3 – KĐT Thanh Hà – Cienco 5 – Thanh Oai- Hà Nội.
-
Hotline/Zalo: 0364.04.2222 / 0387.60.3333
-
Website: https://nhadeptechhome.vn/
