Chiêm ngưỡng mẫu thiết kế nhà ống tân cổ điển 3 tầng 1 tum sang trọng của gia đình anh Thản tại Văn Lâm, Hưng Yên. Techhome kiến tạo không gian sống đẳng cấp, tiện nghi với chi phí tối ưu. Liên hệ tư vấn: 0364.04.2222.
1. Giới thiệu chung về dự án thiết kế nhà ống tân cổ điển tại Văn Lâm
Trong xu hướng kiến trúc hiện đại ngày nay, phong cách Tân cổ điển vẫn luôn giữ vững vị thế “vương giả” của mình nhờ vẻ đẹp trường tồn với thời gian. Không quá rườm rà như cổ điển, cũng không quá đơn điệu như hiện đại, thiết kế nhà ống tân cổ điển là sự giao thoa tinh tế, mang lại vẻ đẹp sang trọng, thanh lịch và đầy cuốn hút.
Dự án lần này Techhome vinh dự được hợp tác là công trình Nhà ở gia đình kết hợp kinh doanh của Anh Thản tại huyện Văn Lâm, tỉnh Hưng Yên. Với diện tích đất lý tưởng (khoảng 5m x 16,4m), anh Thản mong muốn một ngôi nhà vừa thể hiện được vị thế của gia chủ, vừa đảm bảo công năng kinh doanh và sinh hoạt tiện nghi cho đại gia đình.
Thông tin tổng quan dự án:
-
Chủ đầu tư: Anh Thản.
-
Địa điểm: Văn Lâm – Hưng Yên.
-
Đơn vị thiết kế & thi công: Công ty Cổ phần Kiến trúc và Xây dựng Techhome.
-
Loại hình: Nhà ống/Nhà phố.
-
Phong cách: Tân cổ điển.
-
Quy mô: 3 tầng, 1 tum.
-
Diện tích xây dựng: Khoảng 85m2 – 90m2/sàn.

2. Phối cảnh ngoại thất ấn tượng: Vẻ đẹp của kiến trúc Tân cổ điển
Điểm nhấn đầu tiên khi nhìn vào thiết kế nhà ống tân cổ điển này chính là sự bề thế và cân đối. Các kiến trúc sư Techhome đã khéo léo sử dụng các thức cột Corinthian và Ionic giả lập để tạo nên sự vững chãi nhưng vẫn mềm mại cho mặt tiền.
Màu sắc và Vật liệu mặt tiền
Mặt tiền tầng 1 được ốp đá Marble màu vàng hoàng gia vân mây tự nhiên. Đây là giải pháp hoàn hảo cho các mẫu thiết kế nhà ống tân cổ điển kết hợp kinh doanh, giúp mặt tiền luôn sạch sẽ, sang trọng và nổi bật giữa khu phố. Hệ thống cửa cuốn hiện đại kết hợp cửa kính cường lực lớn giúp tối đa hóa khả năng trưng bày sản phẩm hoặc làm gara ô tô.
Từ tầng 2 trở lên, Techhome sử dụng tông màu trắng sứ chủ đạo. Màu trắng không chỉ giúp công trình trông thanh thoát, rộng rãi hơn mà còn làm nổi bật các đường gờ, phào chỉ đắp nổi tinh xảo. Các chi tiết hoa văn tại đầu cột, ban công được giản lược bớt sự cầu kỳ, hướng đến sự tinh tế, phù hợp với gu thẩm mỹ thời thượng.
Hệ thống cửa và Ban công
Hệ thống cửa sổ và cửa đi ban công sử dụng nhôm hệ kính cường lực Xingfa màu đen tuyền. Sự tương phản giữa màu trắng của tường và màu đen của khung cửa tạo nên nét chấm phá hiện đại trong tổng thể thiết kế nhà ống tân cổ điển. Lan can ban công được làm từ sắt mỹ thuật (sắt nghệ thuật) được uốn hoa văn mềm mại, sơn tĩnh điện màu đen, đồng bộ với hệ cửa, tạo nên một mặt tiền hài hòa và đậm chất nghệ thuật.
Ánh sáng
Hệ thống đèn rọi cột và đèn ốp trần ban công được bố trí khoa học, giúp ngôi nhà lung linh và nổi bật khi về đêm, tôn vinh từng đường nét kiến trúc của bản thiết kế nhà ống tân cổ điển này.

3. Phân tích mặt bằng công năng tối ưu: Tiện nghi và Khoa học
Thách thức lớn nhất của nhà ống là vấn đề thông gió và ánh sáng. Tuy nhiên, với kinh nghiệm dày dặn, Techhome đã giải quyết bài toán này triệt để thông qua việc bố trí giếng trời và thang máy hợp lý. Dưới đây là chi tiết công năng trong bản thiết kế nhà ống tân cổ điển của anh Thản:
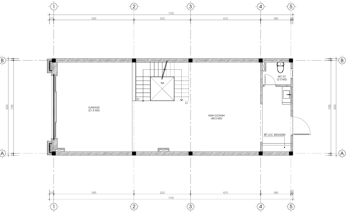
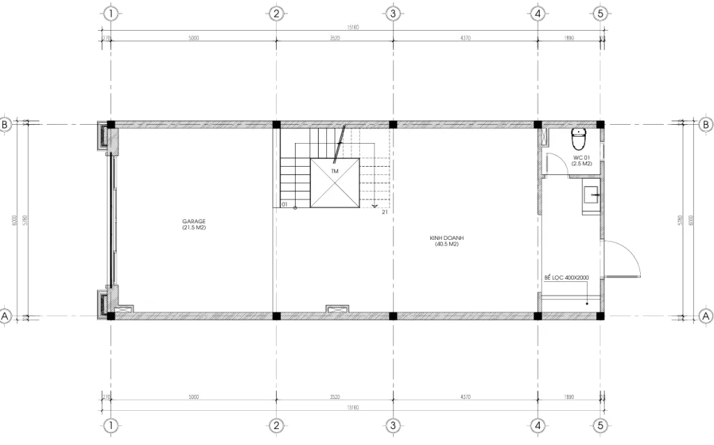
Tầng 1: Không gian kinh doanh và Gara
-
Diện tích sàn khoảng 90m2.
-
Khoảng trước nhà được bố trí làm Gara ô tô (21.5m2) hoặc có thể linh hoạt chuyển đổi mục đích sử dụng.
-
Khu vực giữa là Cầu thang bộ ôm lấy Thang máy (TM) – một trang bị không thể thiếu trong các ngôi nhà phố cao tầng hiện đại.
-
Phía sau là khu vực Kinh doanh rộng rãi (40.5m2) và 01 nhà vệ sinh nhỏ (2.5m2) .

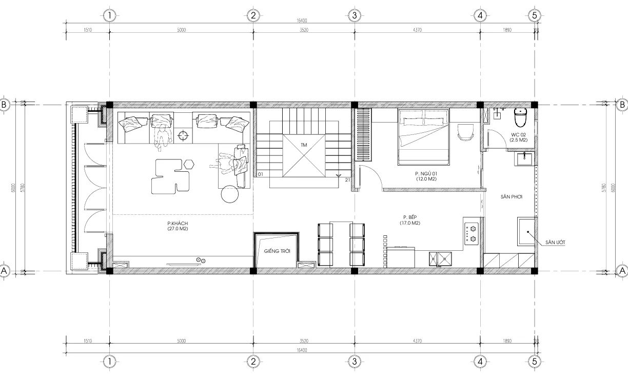
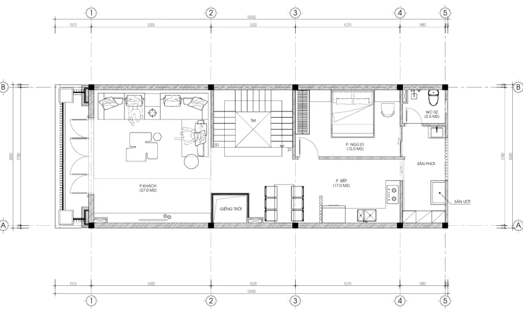
Tầng 2: Trái tim của ngôi nhà
-
Diện tích sàn khoảng 97m2.
-
Phòng khách sang trọng (27m2) nằm phía mặt tiền, có cửa lớn ra ban công, đón trọn ánh sáng tự nhiên.
-
Phòng bếp + Ăn (17m2) liên thông nhưng vẫn giữ được sự riêng tư cần thiết.
-
Một phòng ngủ (12m2) dành cho người lớn tuổi hoặc khách, bố trí cạnh giếng trời để lấy thoáng.
-
Khu vực sân phơi và WC chung được bố trí phía sau cùng để đảm bảo thẩm mỹ.

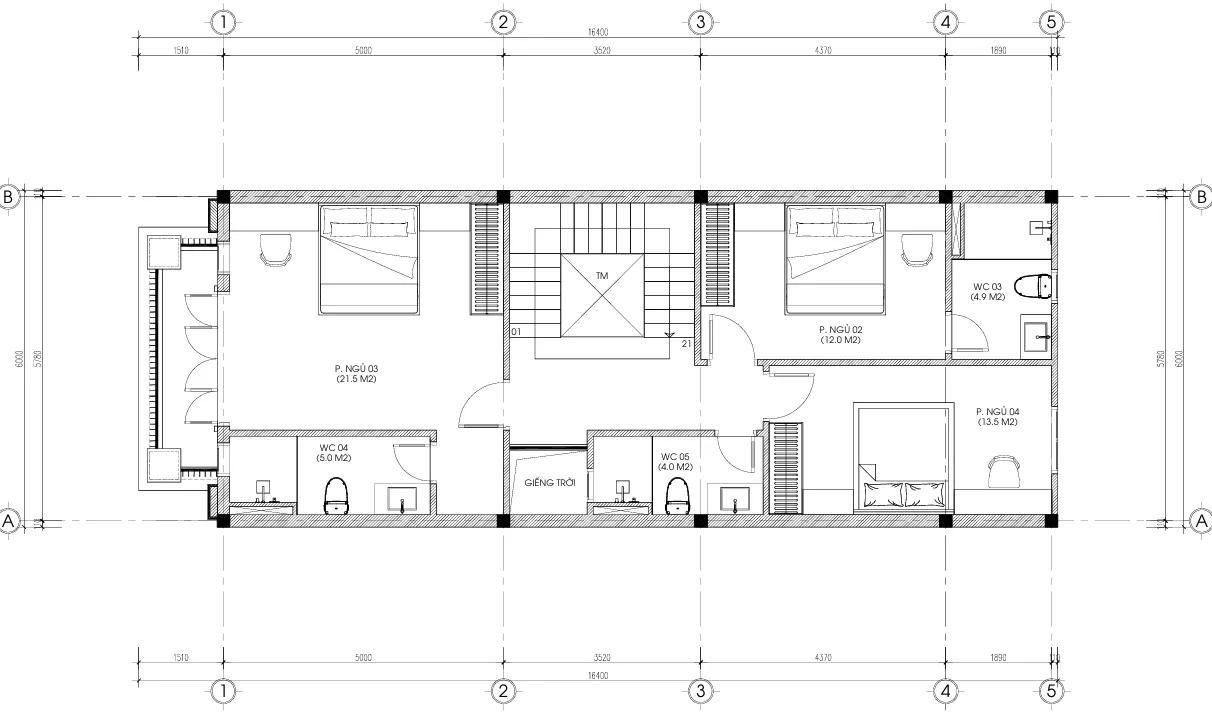
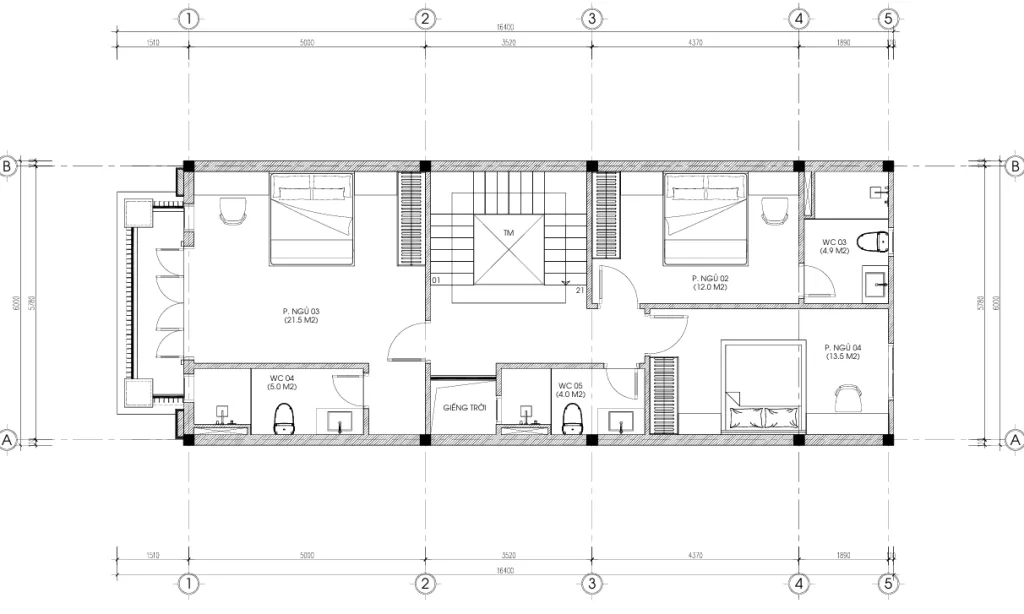
Tầng 3: Không gian nghỉ ngơi riêng tư
-
Diện tích sàn 95m2.
-
Tầng này tập trung tối đa cho việc nghỉ ngơi với 03 phòng ngủ.
-
Phòng ngủ Master 03 (21.5m2) phía trước nhà có WC khép kín (5.0m2) rộng rãi, đầy đủ tiện nghi tắm đứng.
-
Phía sau là phòng ngủ 02 (12m2), có WC khép kín 4,9m2. Và phòng ngủ 04 (13.5m2) và 1 vệ sinh chung 4m2, đảm bảo sự tiện dụng cho các thành viên trong gia đình.

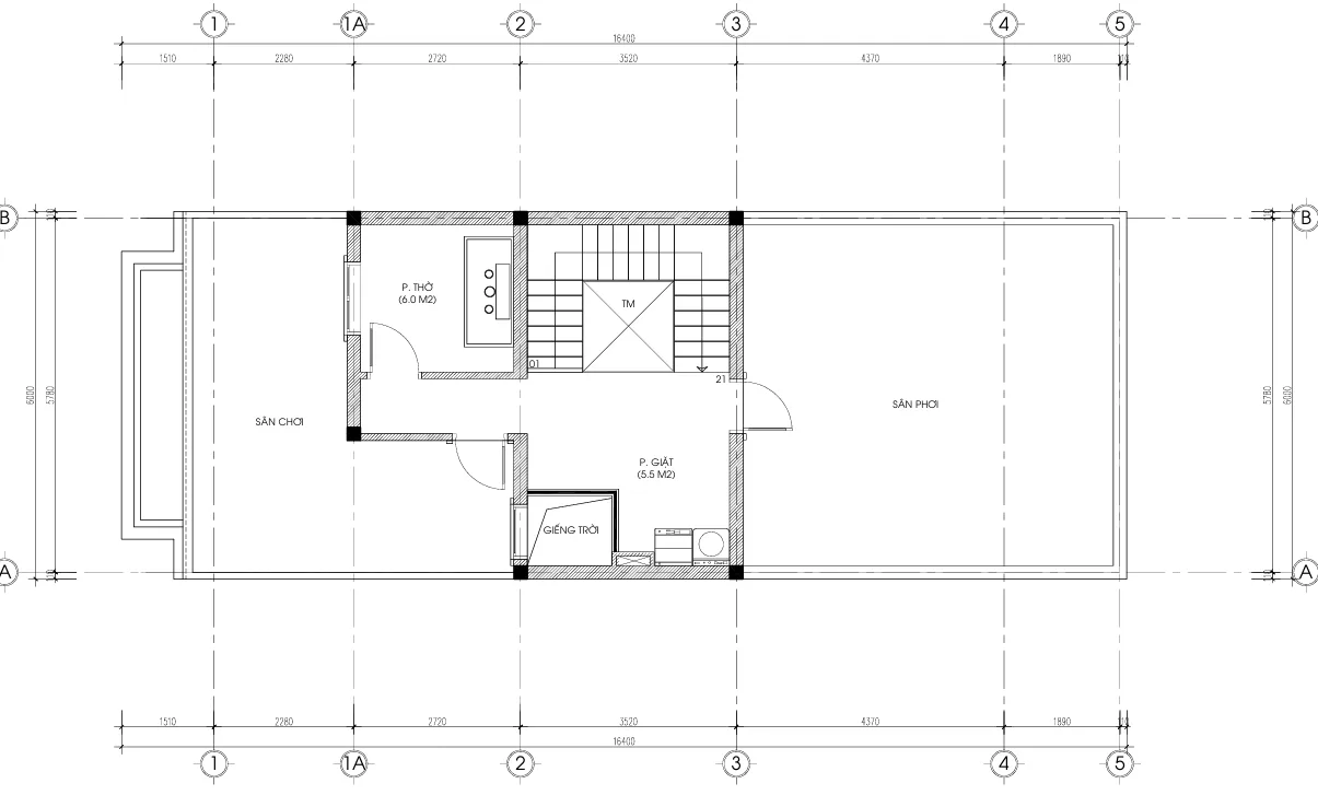
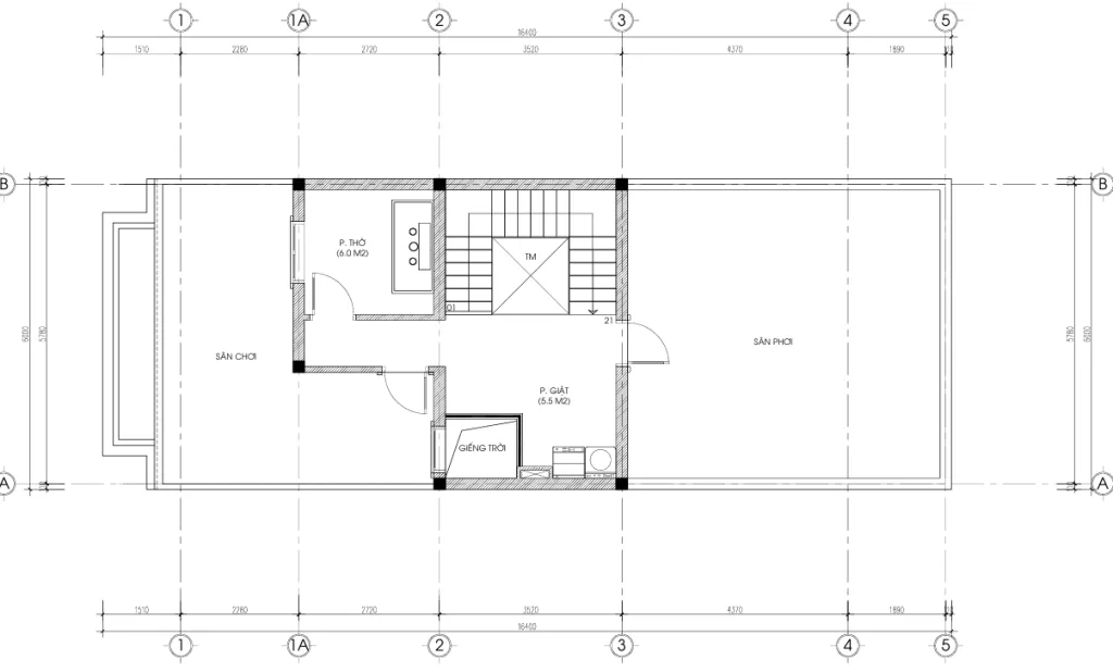
Tầng Tum: Không gian thờ tự và Thư giãn
-
Diện tích sàn xây dựng khoảng 31m2.
-
Phòng thờ (6m2) được đặt ở vị trí trang trọng nhất, hướng ra sân chơi phía trước (Sân thượng), đảm bảo yếu tố phong thủy.
-
Sân chơi phía trước rộng rãi, gia chủ có thể bố trí tiểu cảnh, bàn trà để thư giãn.
-
Phía sau là khu vực phòng giặt (5.5m2) và sân phơi.
Cách bố trí này cho thấy sự am hiểu về thói quen sinh hoạt và tư duy thiết kế nhà ống tân cổ điển thông minh của Techhome, biến ngôi nhà thành tổ ấm thực sự.

4. Đánh giá về Kết cấu và Vật liệu xây dựng
Để hiện thực hóa bản thiết kế nhà ống tân cổ điển đẹp như mơ này, chất lượng kết cấu là yếu tố sống còn.
-
Kết cấu móng: Dựa trên khảo sát địa chất tại Văn Lâm – Hưng Yên, Techhome đề xuất sử dụng móng cọc bê tông cốt thép để đảm bảo khả năng chịu lực cho công trình cao tầng có thang máy.
-
Khung cột: Hệ khung bê tông cốt thép chịu lực, sàn đổ bê tông toàn khối.
-
Tường xây: Sử dụng gạch đặc cho các vị trí chịu lực và gạch lỗ cho các vách ngăn để giảm tải trọng, đồng thời tăng khả năng cách âm, cách nhiệt.
-
Vật liệu hoàn thiện:
-
Sàn nhà lát gạch Granite khổ lớn (800×800) vân đá sang trọng tại phòng khách, và gạch giả gỗ ấm cúng cho phòng ngủ.
-
Cầu thang lát đá Granite tự nhiên màu đen, cổ bậc màu trắng, tạo độ tương phản mạnh mẽ và sạch sẽ.
-
Trần thạch cao khung xương chìm Vĩnh Tường, kết hợp hệ thống đèn LED âm trần và đèn chùm pha lê, đặc trưng của thiết kế nhà ống tân cổ điển.
-

5. Lợi ích và Giá trị khi chọn Techhome
Tại sao anh Thản tại Hưng Yên lại tin tưởng lựa chọn Techhome cho bản thiết kế nhà ống tân cổ điển của mình?
-
Chuyên môn sâu: Chúng tôi sở hữu đội ngũ KTS dày dặn kinh nghiệm, am hiểu sâu sắc về tỉ lệ vàng trong kiến trúc Tân cổ điển.
-
Giải pháp toàn diện: Từ thiết kế kiến trúc, kết cấu, điện nước đến thi công trọn gói và hoàn thiện nội thất.
-
Tối ưu chi phí: Techhome cam kết không phát sinh chi phí vô lý. Bảng dự toán được bóc tách chi tiết, minh bạch ngay từ đầu.
-
Phong thủy ứng dụng: Mỗi bản vẽ thiết kế nhà ống tân cổ điển đều được tư vấn phong thủy kỹ lưỡng, mang lại tài lộc và bình an cho gia chủ.
-
Hỗ trợ pháp lý: Hỗ trợ chủ đầu tư trong quá trình xin cấp phép xây dựng và hoàn công.
-
Giám sát chặt chẽ: Đội ngũ kỹ sư giám sát 24/7, đảm bảo thi công đúng bản vẽ 100%. Thông tin liên hệ hỗ trợ kỹ thuật luôn sẵn sàng: 0364042222 – 0387603333.

6. Mẫu thiết kế nhà ống tân cổ điển này có giá bao nhiêu?
Chi phí là vấn đề được nhiều gia chủ quan tâm nhất. Đối với mẫu thiết kế nhà ống tân cổ điển 3 tầng 1 tum như nhà anh Thản, chi phí sẽ phụ thuộc vào mức độ đầu tư vật liệu hoàn thiện.
Dưới đây là bảng ước tính chi phí tham khảo (tại thời điểm thi công):
-
Chi phí thiết kế: 100.000/m2.
-
Chi phí xây thô: Khoảng 3.800.000đ – 4.200.000đ/m2.
-
Chi phí hoàn thiện: Từ 7.000.000đ – 9.000.000đ/m2 (Tùy thuộc vào loại đá ốp, loại cửa nhôm, thiết bị vệ sinh…).
Ví dụ: Với tổng diện tích sàn khoảng 320m2, chi phí xây dựng trọn gói chìa khóa trao tay sẽ rơi vào khoảng 2,3 tỷ – 2.8 tỷ đồng. Đây là mức đầu tư rất hợp lý để sở hữu một cơ ngơi thiết kế nhà ống tân cổ điển đẳng cấp.
Lưu ý: Đây chỉ là mức chi phí ước tính. Để nhận được báo giá chính xác và chi tiết nhất cho công trình của bạn, vui lòng liên hệ trực tiếp với chúng tôi. Hoặc để tìm hiểu rõ hơn về tiêu chuẩn vật liệu xây dựng và các yếu tố ảnh hưởng đến chi phí, bạn có thể tham khảo thêm tại các bài viết chuyên sâu về vật liệu xây dựng cao cấp trên Wikipedia.

7. Kết luận
Mẫu thiết kế nhà ống tân cổ điển 3 tầng 1 tum của gia đình anh Thản tại Hưng Yên là minh chứng rõ nét cho năng lực và gu thẩm mỹ của đội ngũ Techhome. Ngôi nhà không chỉ là nơi che mưa che nắng, mà còn là tác phẩm nghệ thuật khẳng định vị thế của gia chủ.
Nếu bạn đang sở hữu một mảnh đất phố và yêu thích vẻ đẹp sang trọng, tinh tế của phong cách Tân cổ điển, đừng ngần ngại liên hệ với chúng tôi. Techhome sẵn sàng lắng nghe và hiện thực hóa ngôi nhà trong mơ của bạn.
CÔNG TY CỔ PHẦN KIẾN TRÚC VÀ XÂY DỰNG TECHHOME
-
Địa chỉ: B1.1 LK17 – Ô số 4, KĐT Thanh Hà, Thanh Oai, Hà Nội
-
Hotline/Zalo: 0364.04.2222 – 0387.60.3333
- Xem thêm các dự án nổi bật khác của Techhome tại https://nhadeptechhome.vn/
Hãy gọi ngay hôm nay để nhận tư vấn miễn phí và ưu đãi thiết kế hấp dẫn!
