Người ta vẫn thường bảo, xây nhà là chuyện hệ trọng của cả một đời người. Nó không đơn thuần là việc xếp chồng những viên gạch lên nhau để che mưa che nắng, mà là hành trình kiến tạo một tổ ấm, nơi gói ghém những cảm xúc chân thật nhất của tình thân. Giữa cái nắng gió hanh hao nhưng đầy tình tứ của vùng đất Na Sầm, Lạng Sơn, công trình của gia đình anh Huy hiện lên như một nốt nhạc trong trẻo, hiện đại nhưng vẫn giữ được nét bình dị, gần gũi.
Hôm nay, hãy cùng Techhome ngồi lại, nhâm nhi tách trà và ngắm nhìn thật sâu vào thiết kế nhà mái Nhật 2 tầng này, để hiểu vì sao lối kiến trúc ấy lại đang trở thành “chân ái” của biết bao gia đình Việt.
1. Khi kiến trúc giao hòa cùng cảm xúc: Ấn tượng từ cái nhìn đầu tiên
Điều đầu tiên chạm vào mắt người nhìn ở ngôi nhà của anh Huy chính là cảm giác “vừa vặn”. Không quá phô trương cầu kỳ như những tòa lâu đài cổ điển, cũng không quá đơn điệu như những khối hộp vô hồn, bản thiết kế nhà mái Nhật 2 tầng này mang một vẻ đẹp thanh thoát, nhẹ nhàng mà người trong nghề hay gọi là sự tinh tế của kiến trúc Á Đông hiện đại.
Dựa trên phối cảnh 3D mặt tiền, ngôi nhà khoác lên mình “tấm áo” màu trắng sứ tinh khôi, điểm xuyết bởi những mảng tường ốp gạch thẻ màu xanh ghi. Đây là một sự lựa chọn màu sắc cực kỳ thông minh. Màu trắng giúp ngôi nhà bừng sáng giữa không gian xanh của vùng núi Lạng Sơn, trong khi màu xanh ghi của hệ mái và các chi tiết trang trí lại tạo nên sự vững chãi, trầm ổn.
Hệ mái Nhật (mái lùn) với độ dốc vừa phải tỏa ra các hướng không chỉ giúp thoát nước mưa tốt – điều cực kỳ quan trọng với khí hậu nhiệt đới gió mùa – mà còn tạo nên một tỉ lệ cân đối, hài hòa cho tổng thể công trình. Nhìn vào thiết kế nhà mái Nhật 2 tầng của anh Huy, ta thấy được sự nâng niu từng đường nét, từ hệ phào chỉ chạy dọc thân cột sảnh cho đến những chi tiết giàn hoa bê tông trên tầng 2, nơi sau này sẽ rợp bóng mát của những giàn dây leo, làm mềm đi sự khô cứng của bê tông cốt thép.

2. Phòng khách – Nơi lưu giữ những tiếng cười
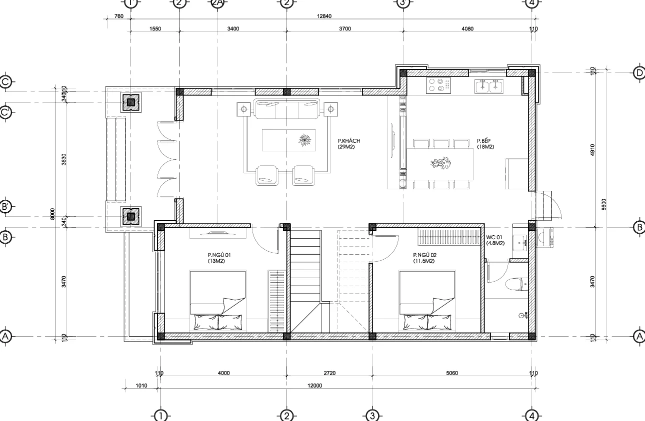
Bước qua sảnh chính bề thế với hệ cột vuông vức, chúng ta tiến vào không gian sinh hoạt chung. Theo hồ sơ kỹ thuật thi công, phòng khách của gia đình anh Huy có diện tích lên tới 29m2. Đây là một con số lý tưởng cho một thiết kế nhà mái Nhật 2 tầng dành cho gia đình đa thế hệ.
Tại sao lại nói là lý tưởng? Bởi 29m2 đủ rộng để bố trí một bộ sofa gỗ bề thế, một kệ tivi hiện đại mà vẫn còn dư dả không gian cho trẻ con chạy nhảy. Trong văn hóa người Việt, phòng khách là bộ mặt của gia chủ, nhưng cũng là trái tim của ngôi nhà. Đó là nơi bố ngồi uống trà mỗi sáng, nơi mẹ đón tiếp họ hàng, và là nơi cả nhà quây quần xem Táo Quân mỗi đêm 30 Tết.
Các kiến trúc sư của Techhome đã khéo léo bố trí phòng khách liên thông với khu vực sảnh đệm cầu thang, tạo nên một luồng đối lưu không khí tuyệt vời. Ngồi ở phòng khách, bạn có thể cảm nhận được gió trời lùa qua cửa chính, mang theo hơi thở trong lành của vùng cao Na Sầm vào từng ngóc ngách.

3. Bếp ăn và sự gắn kết của hương vị
Nằm sâu bên trong, nhưng không hề tách biệt, là khu vực bếp và phòng ăn rộng 18m2. Trong thiết kế nhà mái Nhật 2 tầng này, bếp được đặt ở vị trí kín đáo hơn nhưng vẫn giữ sự kết nối với phòng khách qua hệ lam trang trí hoặc vách ngăn lửng (tùy biến nội thất).
Diện tích 18m2 cho phép bố trí hệ tủ bếp chữ L tiện dụng cùng một bàn ăn 6-8 ghế. Hãy tưởng tượng những bữa cơm chiều muộn, khi mùi thơm của thức ăn lan tỏa, tiếng lạch cạch của bát đũa hòa cùng tiếng cười nói rôm rả. Một căn bếp ấm cúng chính là ngọn lửa giữ gìn hạnh phúc gia đình. Việc bố trí bếp ăn liên hoàn với sảnh phụ bên hông nhà cũng là một điểm cộng lớn về mặt công năng, giúp việc đi chợ về hay sơ chế thực phẩm sống trở nên sạch sẽ, không ảnh hưởng đến không gian tiếp khách bên ngoài.

4. Giải bài toán công năng cho gia đình đa thế hệ
Một trong những thách thức lớn nhất khi làm thiết kế nhà mái Nhật 2 tầng là làm sao bố trí đủ số lượng phòng ngủ cho đông thành viên mà không làm không gian bị bí bách. Bản vẽ mặt bằng công năng nhà anh Huy chính là lời giải xuất sắc cho bài toán này.
Tầng 1: Sự hiếu nghĩa vẹn tròn
Ở tầng 1, ngoài khách và bếp, Techhome đã bố trí 02 phòng ngủ: Phòng ngủ 01 (13m2) và Phòng ngủ 02 (11.5m2).
Đây là một tư duy thiết kế rất nhân văn và thực tế. Thông thường, tầng 1 là nơi ưu tiên dành cho ông bà hoặc người lớn tuổi. Người già thường ngại leo cầu thang, xương khớp đau mỏi, nên việc có phòng ngủ ngay tầng trệt, gần phòng khách và bếp, gần nhà vệ sinh chung là sự thuận tiện tối đa. Nó thể hiện sự hiếu thảo và quan tâm sâu sắc của gia chủ đến sức khỏe của các bậc sinh thành.

Tầng 2: Thế giới riêng tư và sự tôn nghiêm
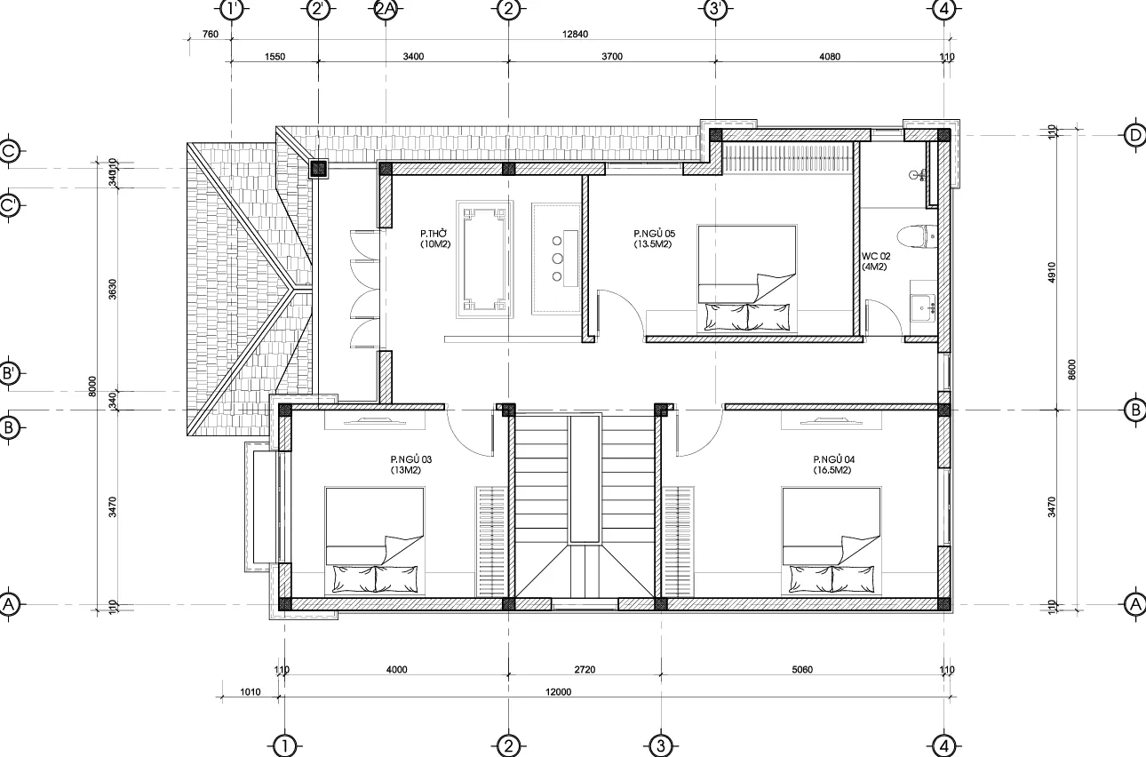
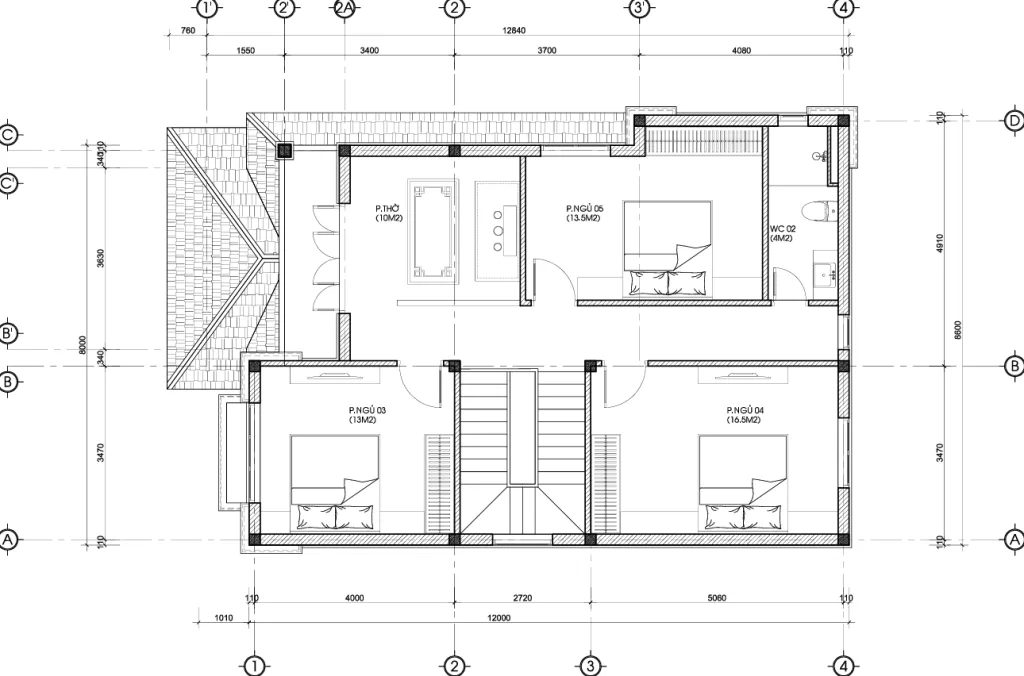
Bước lên tầng 2 thông qua hệ cầu thang 21 bậc được tính toán kỹ lưỡng theo thước Lỗ Ban (Sinh – Lão – Bệnh – Tử), chúng ta đến với không gian nghỉ ngơi riêng tư hơn.
Tầng 2 của mẫu thiết kế nhà mái Nhật 2 tầng này sở hữu tới 03 phòng ngủ:
-
Phòng ngủ 03: 13m2.
-
Phòng ngủ 04: 16.5m2 (Rộng nhất, có thể là phòng Master).
-
Phòng ngủ 05: 13.5m2.
Như vậy, tổng cộng ngôi nhà có tới 5 phòng ngủ! Một con số ấn tượng trên diện tích sàn xây dựng khoảng hơn 100m2/sàn. Điều này đảm bảo mỗi thành viên trong gia đình, từ vợ chồng anh Huy đến các con, đều có một khoảng trời riêng để học tập, làm việc và nghỉ ngơi mà không ai làm phiền ai.
Đặc biệt, không thể không nhắc đến Phòng Thờ rộng 10m2 đặt ở vị trí trang trọng nhất phía trước nhà, hướng ra ban công mặt tiền. Trong văn hóa tâm linh người Việt, bàn thờ gia tiên luôn phải được đặt ở nơi cao ráo, sạch sẽ và tĩnh lặng nhất. Vị trí này trong thiết kế nhà mái Nhật 2 tầng vừa đảm bảo yếu tố phong thủy “tọa cát hướng cát”, vừa đón được vượng khí, thể hiện lòng thành kính của con cháu đối với tổ tiên.

5. Những “khoảng thở” quý giá trong kiến trúc
Sống ở phố núi, điều tuyệt vời nhất là được hòa mình vào thiên nhiên. Hiểu được điều đó, bản thiết kế nhà mái Nhật 2 tầng của anh Huy không tận dụng triệt để diện tích để xây kín mít, mà chừa lại những “khoảng thở” cực kỳ giá trị.
Đó là khu vực sân ướt và ban công. Nhìn vào mặt bằng tầng 2, ta thấy hệ thống ban công đua ra phía trước và bên hông, được che chắn bởi hệ mái Nhật đua rộng. Đây sẽ là nơi lý tưởng để đặt một vài chậu cây cảnh, hay đơn giản là đứng hóng gió vào những đêm trăng thanh mát.
Hệ thống cửa sổ cũng được Techhome bố trí dày đặc quanh các mặt thoáng của ngôi nhà. Từ cửa sổ phòng ngủ đến cửa sổ dọc cầu thang , tất cả đều sử dụng hệ nhôm kính xingfa hiện đại. Chất liệu kính không chỉ giúp lấy sáng tự nhiên, tiết kiệm điện năng mà còn xóa nhòa ranh giới giữa bên trong và bên ngoài, giúp ngôi nhà luôn tràn ngập năng lượng dương tích cực.

6. Chất lượng đến từ những chi tiết nhỏ nhất
Một ngôi nhà đẹp không chỉ ở hình dáng bên ngoài, mà phải bền bỉ từ “cốt” bên trong. Cầm bộ hồ sơ thiết kế nhà mái Nhật 2 tầng của Techhome trên tay, ta mới thấy được sự tỉ mỉ của đội ngũ kỹ sư.
Từng chi tiết nhỏ như mặt cắt cầu thang, độ cao của từng bậc (155-160mm) để bước chân không bị mỏi , hay chi tiết lát sàn với gạch Granite 800×800 cho sảnh chính để tạo độ sang trọng , gạch chống trơn 300×300 cho nhà vệ sinh để đảm bảo an toàn… đều được quy định rõ ràng.
Ngay cả hệ thống cửa đi, cửa sổ cũng được lên bản vẽ chi tiết từng milimet, từ cửa đi 4 cánh mặt tiền kích thước 2500x2700mm làm bằng gỗ Lim Nam Phi kết hợp kính an toàn, cho đến các cửa thông phòng nhôm hệ. Sự chỉn chu này trong thiết kế nhà mái Nhật 2 tầng giúp gia chủ kiểm soát được chất lượng thi công, tránh được những sai sót không đáng có và quan trọng nhất là đảm bảo độ bền của công trình trước thời gian.
Để tìm hiểu rõ hơn về tiêu chuẩn vật liệu xây dựng và các yếu tố ảnh hưởng đến chi phí, bạn có thể tham khảo thêm tại các bài viết chuyên sâu về vật liệu xây dựng cao cấp trên Wikipedia.

7. Mái Nhật – Lựa chọn của người yêu sự dung dị
Tại sao anh Huy lại chọn mái Nhật mà không phải mái Thái hay mái bằng? Có lẽ, câu trả lời nằm ở hai chữ “dung dị”.
Mái Nhật trong thiết kế nhà mái Nhật 2 tầng có độ dốc thấp hơn mái Thái, nó mở rộng ra các hướng khác nhau, tạo cảm giác che chở, bao bọc. Nhìn từ xa, ngôi nhà như một cây nấm khổng lồ, vững chãi bám vào đất mẹ. Kiểu mái này đại diện cho sự khiêm nhường, không phô trương nhưng lại toát lên khí chất sang trọng ngầm.
Hơn nữa, về mặt công năng, mái Nhật tản nhiệt cực tốt. Vào những ngày hè oi ả của miền Bắc, lớp ngói cùng khoảng không gian đệm dưới mái giúp tầng 2 luôn mát mẻ. Còn vào mùa mưa, độ dốc vừa đủ giúp nước thoát nhanh, không gây ứ đọng, thấm dột. Đó là sự kết hợp hoàn hảo giữa thẩm mỹ và thực dụng.
8. Câu chuyện về sự tin tưởng
Để ra đời được một bản vẽ hoàn chỉnh như thế này, đó là quá trình làm việc, trao đổi và thấu hiểu giữa anh Huy và đội ngũ Techhome. Từ những yêu cầu sơ khai ban đầu, qua bàn tay của Kiến trúc sư và sự kiểm duyệt khắt khe của Kỹ sư, ý tưởng về một ngôi nhà mơ ước đã dần hình thành trên giấy.
Bản thiết kế nhà mái Nhật 2 tầng này không chỉ là một sản phẩm thương mại, nó là tâm huyết của người làm nghề. Khi nhìn vào bản vẽ mặt bằng định vị công trình, thấy ngôi nhà nằm gọn gàng trên mảnh đất Na Sầm, ta hiểu rằng Techhome không chỉ thiết kế nhà, mà đang thiết kế một không gian sống hòa hợp với thổ nhưỡng và con người nơi đây.

9. Lời kết
Ngôi nhà của anh Huy tại Na Sầm, Lạng Sơn là một minh chứng sống động cho thấy: Một ngôi nhà đẹp không cần phải quá to lớn hay dát vàng son lộng lẫy. Đẹp là khi nó phù hợp. Phù hợp với nhu cầu sử dụng, phù hợp với gu thẩm mỹ của gia chủ và phù hợp với cảnh quan xung quanh.
Mẫu thiết kế nhà mái Nhật 2 tầng này mang trong mình hơi thở của thời đại mới – tiện nghi, khoa học – nhưng vẫn giữ lại cái hồn của nếp nhà Việt xưa qua không gian thờ cúng trang nghiêm và những góc sân vườn gần gũi. Nó là chốn đi về bình yên sau những ngày dài mưu sinh, là nơi bão dừng sau cánh cửa.
Nếu bạn cũng đang ấp ủ giấc mơ về một tổ ấm như thế, một ngôi nhà không chỉ để ở mà là để “sống” trọn vẹn từng khoảnh khắc, thì đừng ngần ngại tìm hiểu về phong cách thiết kế nhà mái Nhật 2 tầng. Biết đâu, đó chính là mảnh ghép bạn đang tìm kiếm cho hành trình xây dựng hạnh phúc của mình.
Hãy để Techhome đồng hành cùng bạn, biến những nét vẽ trên giấy thành hiện thực vững bền, như cách chúng tôi đã làm với ngôi nhà của anh Huy giữa đại ngàn Lạng Sơn. Bởi vì với chúng tôi, mỗi bản thiết kế nhà mái Nhật 2 tầng được trao đi, là một niềm hạnh phúc được nhận lại.
Xem thêm các dự án nổi bật khác của Techhome tại https://nhadeptechhome.vn/
