Trong dòng chảy của kiến trúc hiện đại, những ngôi nhà mang phong cách tân cổ điển vẫn luôn giữ một vị thế độc tôn bởi vẻ đẹp sang trọng, bền bỉ với thời gian. Không chỉ là nơi để ở, ngôi nhà còn là tuyên ngôn về gu thẩm mỹ và vị thế của gia chủ. Đặc biệt, với những lô đất mặt phố có mặt tiền 5m, việc lựa chọn phong cách này đòi hỏi sự khéo léo tuyệt vời của kiến trúc sư để tạo nên sự bề thế mà không bị rối mắt.
Hôm nay, TechHome xin trân trọng giới thiệu đến quý khách hàng một mẫu thiết kế nhà phố tân cổ điển tiêu biểu mà chúng tôi vừa hoàn thiện hồ sơ thi công cho gia đình anh Dự tại Thanh Hóa. Đây là sự kết hợp hoàn hảo giữa những chuẩn mực của kiến trúc Pháp và công năng sử dụng tiện nghi cho gia đình đa thế hệ.
1. Sức Hút Mãnh Liệt Của Xu Hướng Thiết Kế Nhà Phố Tân Cổ Điển 2025
Tại sao giữa muôn vàn phong cách, anh Dự lại lựa chọn thiết kế nhà phố tân cổ điển cho tổ ấm của mình? Câu trả lời nằm ở sự “vừa đủ” đầy tinh tế. Tân cổ điển là sự chắt lọc tinh hoa từ quá khứ, cộng hưởng với nét phóng khoáng của hiện đại. Nó lược bỏ các chi tiết phù điêu quá rườm rà của phong cách Cổ điển, thay vào đó là những mảng tường phẳng, những đường phào chỉ nhẹ nhàng và tỷ lệ hình khối cân đối.
Dự báo trong năm 2025, thiết kế nhà phố tân cổ điển sẽ tiếp tục lên ngôi, đặc biệt tại các khu vực đang phát triển mạnh về xây dựng như Thanh Hóa, Hải Phòng hay Hà Nội. Nó mang lại cảm giác vững chãi, kiên cố và một vẻ đẹp “không tuổi”, càng ngắm càng thấy sang.

2. Tổng Quan Về Công Trình Nhà Phố Của Anh Dự – Thanh Hóa
Để hiểu rõ hơn về vẻ đẹp của dự án thiết kế nhà phố tân cổ điển này, chúng ta hãy cùng điểm qua các thông số kỹ thuật “vàng” được trích xuất từ hồ sơ bản vẽ thi công:
-
Tên công trình: Nhà ở gia đình.
-
Chủ đầu tư: Anh Dự.
-
Địa điểm xây dựng: Thanh Hóa.
-
Đơn vị thiết kế: Công ty Cổ phần Kiến trúc và Xây dựng TechHome.
-
Kích thước đất & xây dựng: Mặt tiền 5,1m x Chiều sâu 16.8m (Tổng chiều sâu đất bao gồm sân là khoảng 24m).
-
Quy mô: 3 tầng.
-
Phong cách: Tân cổ điển sang trọng.
-
Công năng: 5 phòng ngủ, 1 phòng thờ, 1 phòng sách, phòng khách, bếp ăn.
Đây là một đề bài khá thú vị: Đất dài (gần 17m xây dựng) nhưng mặt tiền chỉ 5m. Nhiệm vụ của TechHome là phải tạo ra một bản thiết kế nhà phố tân cổ điển vừa thoáng đãng, vừa đảm bảo số lượng phòng ngủ lớn (5 phòng) cho gia đình đông người.

3. Phân Tích Vẻ Đẹp Kiến Trúc Mặt Tiền: Tỷ Lệ Vàng Trong Thiết Kế
Mặt tiền chính là linh hồn của ngôi nhà. Nhìn vào phối cảnh 3D, chúng ta có thể thấy sự đầu tư kỹ lưỡng của đội ngũ kiến trúc sư TechHome trong việc xử lý hình khối.
3.1. Sự bề thế của hệ cột và mái vòm
Điểm nhấn đắt giá nhất trong bản thiết kế nhà phố tân cổ điển này chính là hệ cột trụ tròn chạy thông tầng từ tầng 2 lên tầng 3. Thủ pháp này giúp “kéo dài” chiều cao của ngôi nhà về mặt thị giác, khiến công trình trông thanh thoát và uy nghi hơn hẳn so với việc ngắt tầng thông thường.
Tại tầng 3, hệ mái vòm cong bán nguyệt bao trọn lấy ban công và cửa kính lớn. Chi tiết gối vòm và phù điêu đắp nổi được tính toán tỉ mỉ, tạo nên nét chấm phá mềm mại, quyến rũ, cân bằng lại sự cứng cáp của các khối bê tông. Đây là đặc trưng không thể nhầm lẫn của kiến trúc Châu Âu.
3.2. Màu sắc và vật liệu ngoại thất cao cấp
Màu sắc trong thiết kế nhà phố tân cổ điển thường ưu tiên các gam màu hoàng gia. Ở công trình này, TechHome sử dụng:
-
Tầng 1: Ốp đá Marble màu vàng nâu vân mây toàn bộ mặt tiền và hệ cột sảnh. Điều này tạo cảm giác vững chãi cho phần đế công trình, đồng thời giúp mặt tiền luôn sạch sẽ, dễ vệ sinh.
-
Tầng 2 & 3: Sử dụng sơn ngoại thất màu trắng sứ. Màu trắng làm nền hoàn hảo để tôn lên các đường nét phào chỉ và màu đen của khung cửa nhôm kính Xingfa.
-
Lan can: Hệ lan can nhôm đúc nghệ thuật mạ vàng kim uốn lượn tại ban công tầng 2 và tầng 3 là điểm nhấn kim loại đắt giá, tăng thêm vẻ lộng lẫy cho ngôi nhà.

4. Khám Phá Công Năng Bên Trong: Tối Ưu Hóa Diện Tích 5x17m
Một bản thiết kế nhà phố tân cổ điển đẹp không chỉ ở lớp áo bên ngoài mà còn phải khoa học ở bên trong. Với chiều sâu xây dựng 16.8m, TechHome đã bố trí công năng như sau:
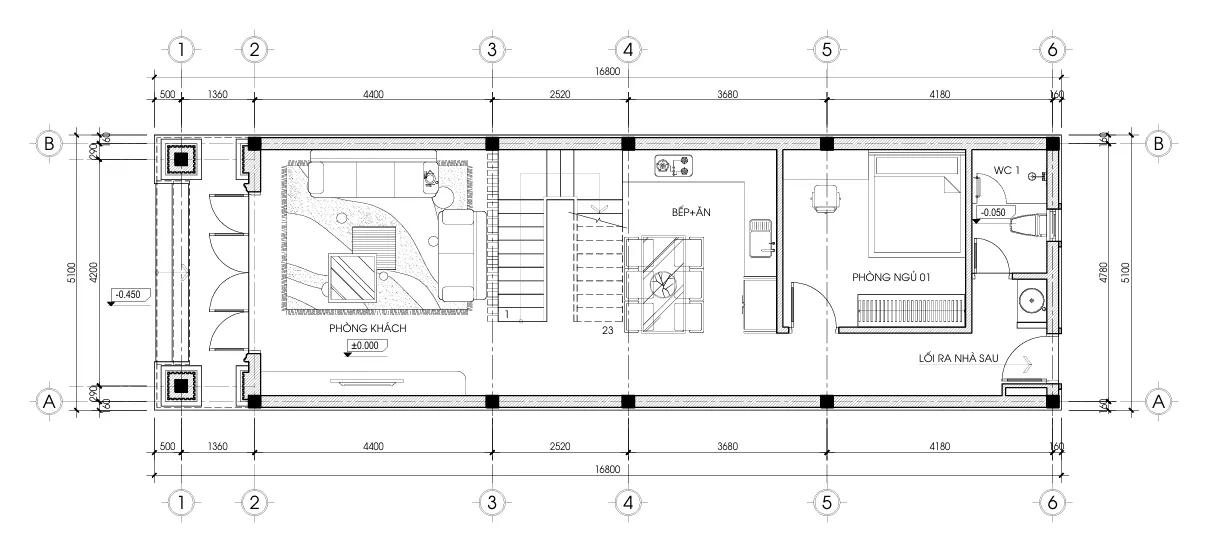
Tầng 1: Không gian kết nối và tiện ích
-
Sân trước (7m): Một khoảng lùi đáng giá dùng làm gara ô tô và sân vườn tiểu cảnh, giúp giảm tiếng ồn và khói bụi từ đường lớn.
-
Phòng Khách : Bước qua sảnh chính là phòng khách sang trọng, được ngăn chia với cầu thang bằng vách CNC hoặc lan can con tiện gỗ, giúp không gian rộng mở.
-
Bếp & Ăn: Nằm ở vị trí trung tâm, kết nối các thành viên.
-
Phòng Ngủ 01: Được bố trí cuối nhà, dành cho người lớn tuổi để hạn chế leo cầu thang. Bên cạnh là lối ra sân sau giúp đối lưu không khí tuyệt vời.

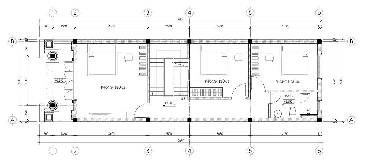
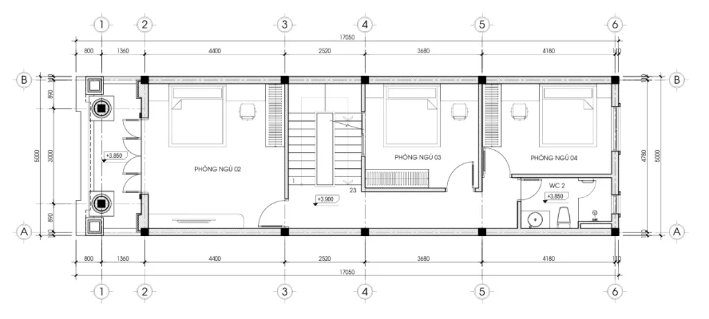
Tầng 2: Không gian nghỉ ngơi riêng tư
Tầng 2 được dành trọn vẹn cho việc nghỉ ngơi với mật độ phòng ngủ cao:
-
03 Phòng ngủ: Bao gồm Phòng ngủ 02 (phía trước), Phòng ngủ 03 (giữa) và Phòng ngủ 04 (phía sau).
-
Dù diện tích 85m2 sàn nhưng việc bố trí 3 phòng ngủ đòi hỏi sự tính toán rất kỹ trong thiết kế nhà phố tân cổ điển. TechHome đã thiết kế hành lang giao thông mạch lạc, đảm bảo các phòng đều vuông vắn và dễ kê đồ nội thất.
-
Vệ sinh: Một vệ sinh chung lớn (WC2) đặt cuối hành lang phục vụ cho cả tầng.

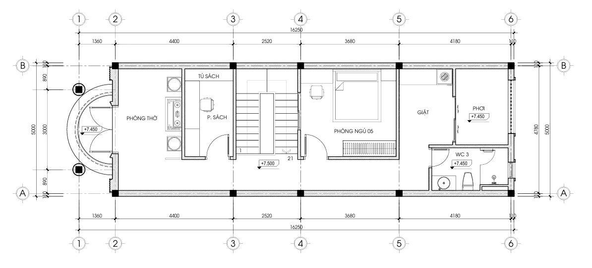
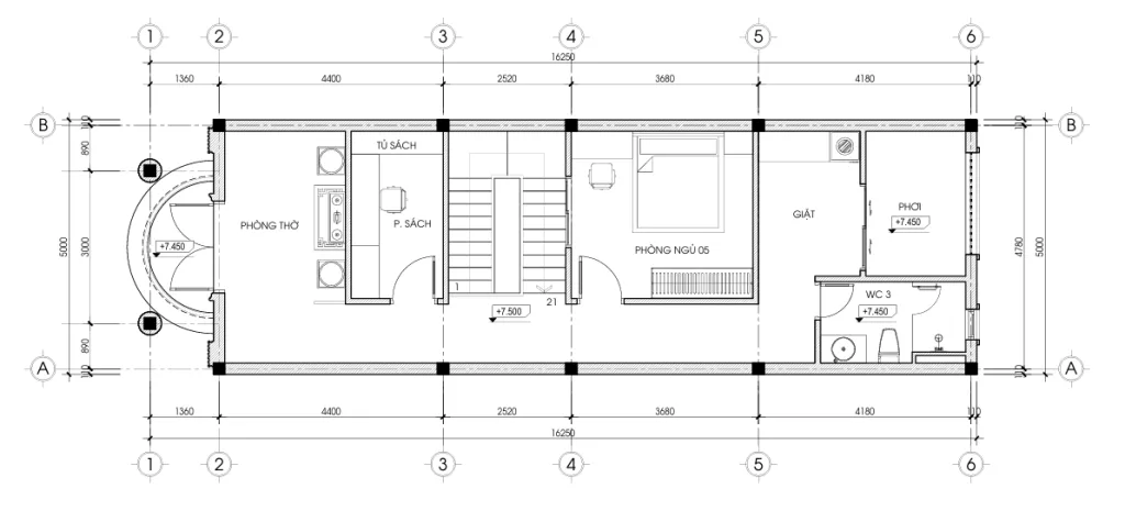
Tầng 3: Tâm linh và Tri thức
Đây là tầng thể hiện chiều sâu văn hóa của gia đình:
-
Phòng Thờ: Đặt tại vị trí trang trọng nhất phía trước nhà, hướng ra ban công vòm lớn để đón vượng khí.
-
Phòng Sách/Làm việc: Nằm ngay cạnh phòng thờ. Trong thời đại 4.0, một không gian làm việc tại nhà yên tĩnh là vô cùng cần thiết.
-
Phòng Ngủ 05: Dành cho khách hoặc thành viên khác.
-
Khu giặt phơi: Bố trí kín đáo phía sau, đảm bảo thẩm mỹ cho mặt tiền.

5. Giải Pháp Kỹ Thuật Thi Công Nhà Phố Tân Cổ Điển
Khác với nhà phố hiện đại, thi công theo bản vẽ thiết kế nhà phố tân cổ điển đòi hỏi tay nghề thợ cao hơn và kỹ thuật phức tạp hơn.
5.1. Hệ thống Phào chỉ và Hoa văn
Trong hồ sơ kỹ thuật chi tiết, TechHome đã chỉ định rõ kích thước từng loại phào:
-
Phào cửa: Sử dụng các loại phào KT-21, KT-22 để tạo khung viền sắc nét cho cửa sổ và cửa đi.
-
Phù điêu: Các chi tiết phù điêu đầu cột và phù điêu mái được vẽ chi tiết từng đường cong, đảm bảo khi đắp vẽ thực tế sẽ đạt độ tinh xảo cao nhất.
5.2. Kết cấu và Vật liệu
-
Hệ cột giả: Để tạo thẩm mỹ mà không ảnh hưởng đến diện tích sử dụng, các hệ cột ốp tường (Cột giả 1, Cột giả 2) được sử dụng khéo léo.
-
Cửa: Hệ thống cửa đi D1 là cửa 4 cánh mở quay, kích thước lớn 3000x2700mm, sử dụng cửa thép vân gỗ kết hợp kính an toàn, vừa đảm bảo an ninh vừa đồng bộ với vẻ đẹp cổ điển.

6. Lưu Ý Quan Trọng Khi Xây Dựng Nhà Phố Tân Cổ Điển
Nếu bạn đang ấp ủ dự định xây dựng một ngôi nhà theo phong cách này, hãy lưu ý những điểm sau để bản thiết kế nhà phố tân cổ điển được hiện thực hóa hoàn hảo nhất:
-
Tỷ lệ là chìa khóa: Kiến trúc tân cổ điển sống chết ở tỷ lệ. Tỷ lệ giữa cột và mái, giữa cửa và tường, giữa độ vươn của ban công và chiều cao tầng. Sai một ly là mất đi cái “thần” của phong cách.
-
Đầu tư vào vật liệu hoàn thiện: Đừng tiếc tiền cho đá ốp mặt tiền, sơn ngoại thất chất lượng cao hay hệ lan can nhôm đúc. Đây là những yếu tố quyết định độ sang của ngôi nhà.
-
Lựa chọn đơn vị thiết kế chuyên sâu: Không phải kiến trúc sư nào cũng vẽ được tân cổ điển đúng chất. Cần một đơn vị có kinh nghiệm thực chiến và am hiểu sâu sắc về thức cột, phào chỉ như TechHome.

7. Chi Phí Thiết Kế Và Thi Công
Nhiều gia chủ lo ngại chi phí cho thiết kế nhà phố tân cổ điển sẽ rất cao. Thực tế, chi phí thiết kế chỉ chiếm khoảng 2-3% tổng mức đầu tư nhưng quyết định 99% giá trị thẩm mỹ ngôi nhà.
Về chi phí thi công, do đặc thù nhiều chi tiết đắp vẽ thủ công và vật liệu cao cấp, đơn giá xây dựng nhà tân cổ điển thường cao hơn nhà hiện đại khoảng 10-15%. Tuy nhiên, giá trị mà nó mang lại là sự trường tồn và đẳng cấp vượt trội. TechHome luôn có bảng dự toán chi tiết, bóc tách từng hạng mục như trong hồ sơ của anh Dự để gia chủ chủ động tài chính.
Lưu ý: Đây chỉ là mức chi phí ước tính. Để nhận được báo giá chính xác và chi tiết nhất cho công trình của bạn, vui lòng liên hệ trực tiếp với chúng tôi. Hoặc để tìm hiểu rõ hơn về tiêu chuẩn vật liệu xây dựng và các yếu tố ảnh hưởng đến chi phí, bạn có thể tham khảo thêm tại các bài viết chuyên sâu về vật liệu xây dựng cao cấp trên Wikipedia.

8. Tại Sao Nên Chọn TechHome?
Công trình của anh Dự tại Thanh Hóa là một minh chứng cho năng lực của chúng tôi. TechHome cam kết:
-
Hồ sơ chi tiết: Từ bản vẽ kiến trúc, kết cấu đến điện nước đều được thể hiện tường tận.
-
Thẩm mỹ đỉnh cao: Luôn cập nhật xu hướng thiết kế nhà phố tân cổ điển mới nhất.
-
Hỗ trợ trọn đời: Tư vấn kỹ thuật 24/7 trong suốt quá trình thi công.
9. Lời Kết
Ngôi nhà phố 3 tầng của anh Dự không chỉ là một chốn đi về, mà là một tác phẩm nghệ thuật giữa lòng thành phố Thanh Hóa. Mẫu thiết kế nhà phố tân cổ điển này đã giải quyết xuất sắc bài toán về thẩm mỹ và công năng cho lô đất 5x17m.
Nếu bạn cũng yêu thích vẻ đẹp sang trọng, quý phái này và muốn sở hữu một bản vẽ thiết kế độc bản, hãy liên hệ ngay với TechHome. Chúng tôi sẵn sàng lắng nghe và kiến tạo nên ngôi nhà mơ ước của bạn.
CÔNG TY CỔ PHẦN KIẾN TRÚC VÀ XÂY DỰNG TECHHOME
-
Địa chỉ: B1.1 LK17 – Ô số 4, KĐT Thanh Hà, Thanh Oai, Hà Nội.
-
Hotline: 0364.042.222 – 0387.603.333.
- Xem thêm các dự án nổi bật khác của Techhome tại https://nhadeptechhome.vn/
TechHome – Kiến tâm, xây tầm!
