Có những ngôi nhà, chỉ cần nhìn qua một lần là đã thấy sự bình yên. Có những thiết kế, không cần quá phô trương cầu kỳ, nhưng lại toát lên vẻ sang trọng, bề thế khiến ai đi qua cũng phải ngoái nhìn. Đó chính xác là cảm giác mà mẫu thiết kế nhà 2 tầng mái Nhật của gia đình anh Chức tại Lương Tài – Bắc Ninh mang lại.
Không chỉ là một chốn đi về, ngôi nhà này là tâm huyết cả đời, là nơi gắn kết các thế hệ trong gia đình. Hôm nay, hãy cùng TechHome “đột nhập” vào hồ sơ thiết kế và những hình ảnh 3D chân thực nhất để xem ngôi nhà này có gì mà khiến gia chủ ưng ý đến vậy nhé!
1. Duyên nợ với mảnh đất Lương Tài và lựa chọn “Mái Nhật”
Lương Tài, Bắc Ninh – vùng đất của những con người chịu thương chịu khó. Khi tìm đến TechHome, anh Chức chia sẻ rất thật lòng: “Anh muốn làm một cái nhà, không cần phải là lâu đài cung điện gì đâu, nhưng nó phải đàng hoàng, phải hiện đại và quan trọng là nhìn nó phải ‘tình’ một chút.”
Sau khi khảo sát thực địa và lắng nghe mong muốn của anh, các kiến trúc sư của TechHome đã thống nhất phương án: Một mẫu thiết kế nhà 2 tầng mái Nhật theo phong cách hiện đại. Tại sao lại là mái Nhật mà không phải mái Thái hay mái bằng?
Đơn giản vì mái Nhật (hay còn gọi là mái lùn) có độ dốc vừa phải, mở rộng ra các hướng khác nhau, tạo cảm giác ngôi nhà “ôm” lấy đất, rất vững chãi và thanh bình. Hơn nữa, với khí hậu nóng ẩm mưa nhiều ở miền Bắc, thiết kế nhà 2 tầng mái Nhật giúp thoát nước mưa cực nhanh, chống nóng hiệu quả vào mùa hè – một sự lựa chọn “ăn chắc mặc bền” đúng tính cách người Bắc Ninh.

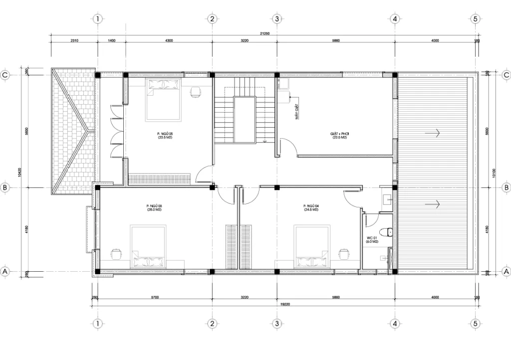
2. “Mổ xẻ” công năng: Khi sự tiện nghi lên ngôi
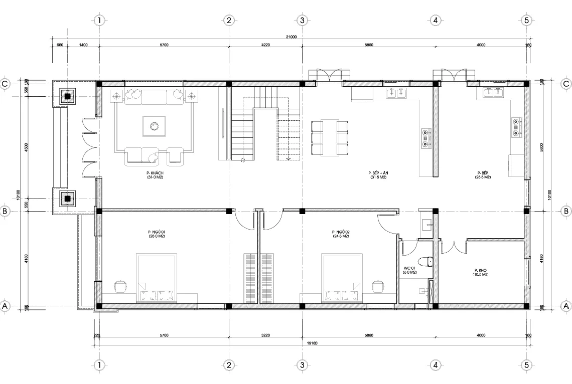
Đẹp bên ngoài thôi chưa đủ, một thiết kế nhà 2 tầng mái Nhật hoàn hảo phải là nơi phục vụ tốt nhất cho sinh hoạt của gia chủ. Hãy cùng xem bản vẽ mặt bằng công năng để thấy sự bố trí tài tình của các kiến trúc sư TechHome.
Tầng 1: Không gian kết nối và sum vầy
Bước qua sảnh chính, chúng ta sẽ đến với không gian phòng khách cực kỳ rộng rãi với diện tích lên tới 31.0 m2. Đây là trái tim của ngôi nhà, nơi anh Chức dự định sẽ đặt bộ bàn ghế gỗ Đồng Kỵ hoành tráng để tiếp đón bạn bè, họ hàng mỗi dịp lễ Tết.
Đi sâu vào bên trong là khu vực Bếp và Phòng ăn rộng 31.5 m2. Trong văn hóa người Việt, cái bếp là nơi giữ lửa hạnh phúc. Việc thiết kế nhà 2 tầng mái Nhật với không gian bếp rộng rãi, liên thông nhưng vẫn có sự riêng tư cần thiết giúp cho việc nấu nướng của các bà, các mẹ trở nên thoải mái hơn bao giờ hết.
Điểm đặc biệt ở tầng 1 chính là việc bố trí tới 02 phòng ngủ khép kín và rộng rãi:
-
Phòng ngủ 01: Diện tích 28.0 m2.
-
Phòng ngủ 02: Diện tích 24.5 m2.
Việc đặt 2 phòng ngủ lớn ở tầng 1 là một tư duy rất thực tế trong thiết kế nhà 2 tầng mái Nhật hiện nay, đặc biệt là với gia đình có người lớn tuổi. Ông bà sẽ không phải leo cầu thang mệt nhọc, đồng thời vẫn có không gian riêng tư, yên tĩnh để nghỉ ngơi. Ngoài ra tầng 1 còn có 1 kho chứa đồ rộng 10.5 m2 và 1 nhà vệ sinh chung rộng 6.0 m2, đảm bảo sự tiện lợi tối đa.

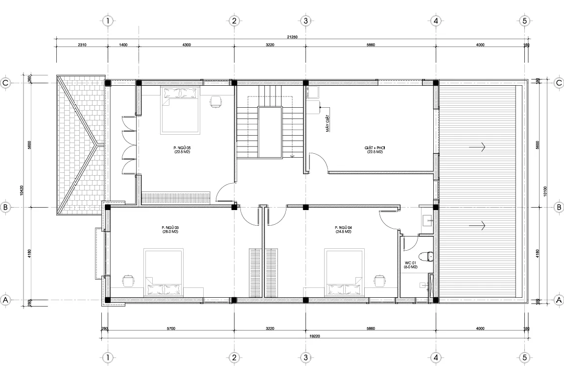
Tầng 2: Không gian nghỉ ngơi riêng tư
Di chuyển lên tầng 2 qua cầu thang bộ rộng rãi, chúng ta sẽ bắt gặp một không gian sinh hoạt với mật độ phòng ngủ dày đặc, đáp ứng nhu cầu cho đại gia đình đông người. Mặt bằng tầng 2 bao gồm:
-
Phòng ngủ 03: Diện tích 28.0 m2.
-
Phòng ngủ 04: Diện tích 24.5 m2.
-
Phòng ngủ 05: Diện tích 22.5 m2.
Tổng cộng ngôi nhà này có tới 5 phòng ngủ! Đây là một bài toán khó nhưng đã được giải quyết gọn gàng. Với thiết kế nhà 2 tầng mái Nhật này, dù nhà anh Chức có đông con cháu hay khách khứa đến chơi ngủ lại cũng không bao giờ lo thiếu chỗ.
Ngoài ra, tầng 2 còn bố trí khu vực giặt và phơi đồ rộng 22.5 m2. Khu vực này được thiết kế ở vị trí đón nắng gió, đảm bảo quần áo luôn thơm tho nhưng vẫn kín đáo, không làm mất mỹ quan chung của ngôi nhà.

3. Vẻ đẹp ngoại thất: Hiện đại, tinh tế từng đường nét
Nhìn vào bản phối cảnh 3D ngoại thất, bạn sẽ thấy ngay sự cuốn hút của ngôi nhà này.
Màu sắc và vật liệu – Sự kết hợp hoàn hảo
Ngôi nhà khoác lên mình “bộ cánh” màu trắng sứ chủ đạo, điểm xuyết là những mảng tường ốp gạch thẻ màu ghi xám sang trọng ở các cột trụ và chân tường. Đây là thủ pháp “nhấn nhá” trong thiết kế nhà 2 tầng mái Nhật giúp công trình không bị đơn điệu, đồng thời phần chân tường ốp đá cũng giúp ngôi nhà sạch sẽ hơn, tránh rêu mốc qua năm tháng.
Hệ mái Nhật màu xanh than nổi bật trên nền trời, tạo nên sự tương phản đẹp mắt với sơn tường trắng. Hệ thống cửa chính bằng gỗ tự nhiên màu nâu ấm áp, bề thế, kết hợp với hệ cửa sổ nhôm kính xingfa hiện đại giúp lấy sáng tối đa.
Hình khối kiến trúc vững chãi
Mặt tiền ngôi nhà được thiết kế theo lối phi đối xứng nhưng lại rất cân bằng. Hệ cột vuông vức, khỏe khoắn nâng đỡ phần mái sảnh đón, tạo nên sự uy nghi cho mặt tiền. Đặc biệt, phần ban công tầng 2 được thiết kế với lam che nắng nghệ thuật, vừa có tác dụng che mưa nắng, vừa là giàn hoa để gia chủ có thể trồng vài giỏ lan hay cây dây leo, thổi hồn thiên nhiên vào không gian sống.
Trong thiết kế nhà 2 tầng mái Nhật, việc xử lý hình khối sao cho không bị nặng nề là rất quan trọng. Ở đây, TechHome đã sử dụng các đường phào chỉ lõm chạy ngang thân nhà, tạo cảm giác ngôi nhà rộng hơn và mềm mại hơn.

4. Tại sao “Cơn sốt” nhà mái Nhật vẫn chưa hạ nhiệt?
Có thể thấy, mẫu nhà của anh Chức là minh chứng rõ nhất cho việc tại sao xu hướng thiết kế nhà 2 tầng mái Nhật lại “làm mưa làm gió” tại Việt Nam trong những năm gần đây.
Thứ nhất, nó không lỗi mốt. Kiến trúc hiện đại kết hợp với mái Nhật tạo ra vẻ đẹp lai tây, vừa phảng phất nét truyền thống Á Đông, vừa có sự phóng khoáng của phương Tây. Dù 10 hay 20 năm nữa, nhìn ngôi nhà vẫn rất hợp thời.
Thứ hai, nó tối ưu chi phí. So với các mẫu nhà cổ điển hay tân cổ điển với nhiều phù điêu đắp vẽ cầu kỳ, tốn kém nhân công, thì thiết kế nhà 2 tầng mái Nhật phong cách hiện đại tập trung vào hình khối phẳng, vật liệu hiện đại, giúp gia chủ tiết kiệm được một khoản kha khá để đầu tư vào nội thất bên trong.
Thứ ba, nó phù hợp phong thủy. Mái nhà có độ dốc tượng trưng cho sự thoát khí, tránh tích tụ tà khí trên nóc nhà. Ngôi nhà cao ráo, thoáng mát luôn được coi là mang lại vượng khí, tài lộc cho gia chủ.

5. Quy trình làm việc tận tâm của TechHome
Để ra được bộ hồ sơ “Hồ sơ thiết kế kỹ thuật thi công” dày dặn và chi tiết như thế này, đội ngũ TechHome đã làm việc không ngừng nghỉ.
Từ bản vẽ mặt bằng định vị cột, mặt bằng xây dựng, cho đến chi tiết từng cái cửa đi, cửa sổ, từng bậc cầu thang đều được tính toán kỹ lưỡng. Ví dụ, nhìn vào bản vẽ chi tiết thang , TechHome ghi chú rõ ràng: Cổ bậc lát đá Granite, mặt bậc lát đá Granite, lan can tay vịn… hay chiều cao bậc, số lượng bậc đều tuân thủ phong thủy “Sinh – Lão – Bệnh – Tử”.
Hay như chi tiết cửa đi , quy cách cửa 4 cánh mở quay, kích thước 2700x2700mm, chất liệu nhôm hệ kính dày 8.38mm… tất cả đều được quy định rõ ràng để thợ thi công không thể làm sai, và anh Chức cũng dễ dàng giám sát, nghiệm thu. Chính sự tỉ mỉ trong từng bản vẽ thiết kế nhà 2 tầng mái Nhật này là điều khiến khách hàng tin tưởng TechHome tuyệt đối.

6. Lời khuyên cho bạn khi muốn xây nhà 2 tầng mái Nhật
Nếu bạn đang ấp ủ giấc mơ về một tổ ấm tương tự như nhà anh Chức, hãy lưu ý một vài điều sau:
-
Xác định nhu cầu sử dụng: Bạn cần bao nhiêu phòng ngủ? Có cần phòng ngủ ở tầng 1 cho người già không? (Như cách anh Chức đã làm rất đúng đắn).
-
Dự trù kinh phí: Thiết kế nhà 2 tầng mái Nhật có nhiều mức giá tùy thuộc vào vật liệu hoàn thiện. Hãy chia sẻ thật lòng khả năng tài chính với kiến trúc sư để họ cân đối giúp bạn.
-
Lựa chọn đơn vị thiết kế uy tín: Một bản vẽ đẹp trên 3D là chưa đủ, nó cần phải khả thi khi thi công. Hồ sơ kỹ thuật của TechHome thể hiện rõ các mặt cắt, chi tiết sắt thép, điện nước… đảm bảo ngôi nhà bền vững từ cốt lõi.
Để tìm hiểu rõ hơn về tiêu chuẩn vật liệu xây dựng và các yếu tố ảnh hưởng đến chi phí, bạn có thể tham khảo thêm tại các bài viết chuyên sâu về vật liệu xây dựng cao cấp trên Wikipedia.

7. Kết luận
Ngôi nhà của anh Chức tại Bắc Ninh không chỉ là một công trình xây dựng, nó là câu chuyện về ước mơ và sự nỗ lực. Mẫu thiết kế nhà 2 tầng mái Nhật này đã giải quyết trọn vẹn bài toán về thẩm mỹ, công năng và kinh tế cho gia chủ.
Giữa cuộc sống bộn bề, được trở về một ngôi nhà rộng rãi, thoáng mát, quây quần bên mâm cơm cùng gia đình trong gian bếp ấm cúng, hay ngồi thưởng trà ngoài ban công ngắm nhìn quê hương… đó chẳng phải là hạnh phúc giản đơn mà ai cũng khao khát sao?
Nếu bạn cũng đã “phải lòng” mẫu thiết kế nhà 2 tầng mái Nhật này, hay muốn kiến tạo một không gian sống đậm chất riêng của mình, đừng ngần ngại liên hệ với TechHome. Chúng tôi không chỉ vẽ nhà, chúng tôi vẽ nên tổ ấm của bạn.
Thông tin liên hệ:
CÔNG TY CỔ PHẦN KIẾN TRÚC VÀ XÂY DỰNG TECHHOME
-
Hotline: 0364.04.2222 – 0387.60.3333
-
Dịch vụ: Tư vấn thiết kế kiến trúc, nội thất, thi công trọn gói.
- Xem thêm các dự án nổi bật khác của Techhome tại https://nhadeptechhome.vn/
Hãy để TechHome đồng hành cùng bạn xây dựng ngôi nhà mơ ước!
