Đã bao giờ bạn cảm thấy đau đầu vì sở hữu mảnh đất có chiều sâu hun hút nhưng mặt tiền lại khiêm tốn? Làm sao để xây dựng một tổ ấm vừa sang trọng, vừa đủ chỗ ngủ cho cả đại gia đình 3 thế hệ mà không bị bí bách? Đó cũng chính là trăn trở của anh Minh tại Thái Bình trước khi tìm đến Kiến trúc Techhome.
Hôm nay, Techhome xin giới thiệu đến quý khách hàng một siêu phẩm thiết kế nhà ống 2 tầng mái Thái vừa được chúng tôi hoàn thiện hồ sơ. Đây không chỉ là một ngôi nhà, đó là lời giải hoàn hảo cho bài toán công năng trên diện tích đất 5,8m x 22,8m, mang lại không gian sống đẳng cấp và ấm cúng.
1. Vẻ đẹp vượt thời gian của kiến trúc tân cổ điển lai hiện đại
Khi nhắc đến thiết kế nhà ống 2 tầng mái Thái, nhiều người thường nghĩ ngay đến những khối bê tông cứng nhắc xếp chồng lên nhau. Tuy nhiên, với công trình của anh Minh, các kiến trúc sư Techhome đã khéo léo thổi hồn vào đó sự mềm mại của phong cách Tân cổ điển nhẹ nhàng.
Nhìn vào phối cảnh mặt tiền, bạn sẽ bị thu hút ngay bởi hệ vòm cong uyển chuyển ở ban công tầng 2 và cửa sổ mái. Đây là điểm nhấn “đắt giá” giúp xóa tan cảm giác cao lêu nghêu thường thấy của nhà ống. Hệ cột trụ vuông vắn, vững chãi nâng đỡ mái sảnh, kết hợp với các đường phào chỉ chạy dọc tường tạo nên sự thanh thoát, cao ráo cho ngôi nhà.
Màu sơn trắng sứ chủ đạo làm nền cho hệ mái Thái màu xanh than nổi bật. Không chỉ mang tính thẩm mỹ, hệ mái Thái chữ A với độ dốc lớn còn giúp thoát nước mưa nhanh chóng, chống nóng hiệu quả vào mùa hè – một yếu tố cực kỳ quan trọng với khí hậu nhiệt đới tại Thái Bình.
Việc sử dụng hệ cửa kính khung nhôm xingfa kết hợp với cửa chính bằng gỗ tự nhiên vừa đảm bảo sự sang trọng, vừa giúp lấy sáng tối đa cho không gian bên trong. Đây là tiêu chuẩn vàng trong thiết kế nhà ống 2 tầng mái Thái hiện nay.

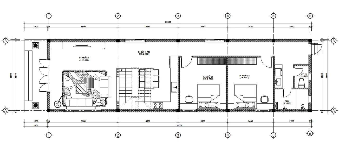
2. Mặt bằng công năng: Bài toán “chia hình học” đỉnh cao
Nếu ngoại thất là chiếc áo đẹp, thì công năng bên trong chính là cơ thể khỏe mạnh. Với chiều dài đất lên tới gần 23m, thách thức đặt ra cho Techhome là làm sao bố trí các phòng ốc liền mạch nhưng vẫn đảm bảo sự riêng tư và thông thoáng. Dưới đây là cách chúng tôi giải quyết bài toán này:
Tầng 1: Không gian gắn kết và nghỉ ngơi cho người lớn tuổi
Bước qua bậc tam cấp ốp đá sang trọng và sảnh chính, chúng ta tiến vào phòng khách rộng lớn với diện tích 29.5m2. Đây là “bộ mặt” của gia chủ, nơi anh Minh dự định đặt một bộ sofa gỗ bề thế.
Liên thông với phòng khách là khu vực cầu thang và bếp ăn rộng 18.5m2. Thiết kế liên thông này giúp luồng khí lưu thông xuyên suốt từ cửa chính vào sâu bên trong, khắc phục nhược điểm bí khí của nhà ống. Các bà nội trợ sẽ cực kỳ yêu thích không gian này vì vừa nấu nướng vừa có thể quan sát, trò chuyện với mọi người ở phòng khách.
Điểm đặc biệt nhất trong bản vẽ thiết kế nhà ống 2 tầng mái Thái này là khu vực phía sau. Techhome đã bố trí 02 phòng ngủ liên tiếp:
-
Phòng ngủ 01 (15.5m2): Dành cho ông bà, giúp người lớn tuổi hạn chế leo cầu thang.
-
Phòng ngủ 02 (15.0m2): Dành cho khách hoặc thành viên khác trong gia đình.
Một nhà vệ sinh chung (WC 01) được đặt cuối nhà, vừa kín đáo, sạch sẽ lại không ảnh hưởng đến phong thủy phòng khách. Sân ướt phía sau cũng được tính toán kỹ để sơ chế thức ăn sống khi nhà có cỗ bàn.

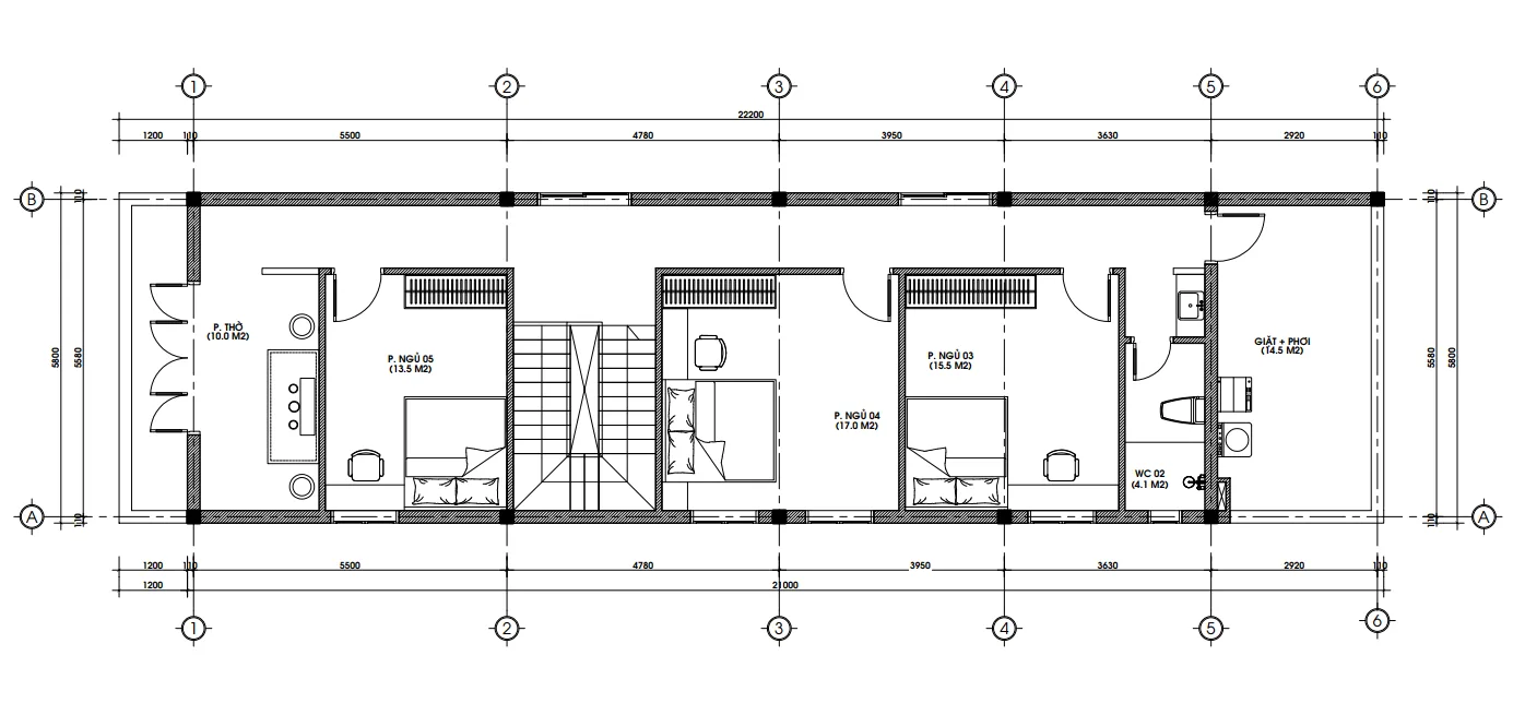
Tầng 2: Thế giới riêng tư và nơi thờ tự tôn nghiêm
Di chuyển lên tầng 2, không gian được chia nhỏ hơn để tối ưu hóa số lượng phòng ngủ cho đại gia đình.
-
Phòng thờ (10.0m2): Đặt ở vị trí trang trọng nhất phía trước nhà, hướng ra ban công để đón vượng khí.
-
3 Phòng ngủ tiện nghi: Bao gồm Phòng ngủ 05 (13.5m2), Phòng ngủ 04 rộng nhất (17.0m2) và Phòng ngủ 03 (15.5m2). Việc bố trí tới 3 phòng ngủ trên một sàn yêu cầu sự tính toán kỹ lưỡng về hành lang giao thông (rộng 1.2m) để việc đi lại không bị chồng chéo.
-
Khu giặt phơi (14.5m2): Đặt cuối nhà, đảm bảo quần áo luôn thơm tho nhờ gió trời và nắng tự nhiên mà không làm mất mỹ quan mặt tiền.
Với tổng cộng 5 phòng ngủ, mẫu thiết kế nhà ống 2 tầng mái Thái này thực sự là tổ ấm lý tưởng cho những gia đình có từ 5-8 thành viên cùng chung sống.

3. Tại sao mẫu thiết kế nhà ống 2 tầng mái Thái lại được ưa chuộng năm 2025?
Không phải ngẫu nhiên mà anh Minh và nhiều gia chủ khác lại lựa chọn phong cách này.
-
Tối ưu chi phí: So với biệt thự hay lâu đài, nhà ống mái Thái tiết kiệm chi phí xây dựng hơn nhiều nhưng vẫn giữ được nét sang trọng.
-
Phù hợp lô đất hẹp: Với mặt tiền chỉ từ 5-6m, kiến trúc mái Thái giúp ngôi nhà trông cao ráo và thanh thoát hơn.
-
Công năng linh hoạt: Như bạn thấy, dù là nhà ống nhưng chúng ta vẫn có thể bố trí tới 5 phòng ngủ, đáp ứng nhu cầu của gia đình đông người – điều mà các căn hộ chung cư khó làm được.
4. Báo giá thiết kế và thi công nhà ống 2 tầng mái Thái (Cập nhật 2026)
Một trong những câu hỏi Techhome nhận được nhiều nhất là: “Xây nhà đẹp thế này hết bao nhiêu tiền?”. Để giúp bạn dễ hình dung, chúng tôi xin đưa ra bảng dự toán chi phí dựa trên diện tích xây dựng thực tế của nhà anh Minh (Tổng diện tích sàn khoảng 225m2 + Mái).
Lưu ý: Đây là bảng giá tham khảo, giá thực tế phụ thuộc vào thời điểm thi công, chủng loại vật liệu và vị trí địa lý.
| Hạng mục | Đơn giá (VNĐ/m2) | Diễn giải |
| Thiết kế kiến trúc | 108.000 | Bản vẽ 3D, kết cấu, điện nước |
| Thi công phần thô | 3.800.000 – 4.200.000 | Bao gồm: Móng, khung cột, xây trát, mái, điện nước âm tường. |
| Thi công trọn gói | 6.500.000 – 8.000.000 | Chìa khóa trao tay (Đã bao gồm gạch ốp lát, thiết bị vệ sinh, cửa, sơn bả…) |
Chi phí dự tính cho công trình nhà anh Minh:
-
Diện tích xây dựng: Tầng 1 (110m2) + Tầng 2 (115m2) + Mái (tính 50% diện tích sàn) = ~280m2.
-
Tổng chi phí phần thô: ~ 1.1 tỷ – 1.2 tỷ VNĐ.
-
Tổng chi phí hoàn thiện (mức khá): ~ 1.8 tỷ – 2 tỷ VNĐ.
Lưu ý: Đây chỉ là mức chi phí ước tính. Để nhận được báo giá chính xác và chi tiết nhất cho công trình của bạn, vui lòng liên hệ trực tiếp với chúng tôi. Hoặc để tìm hiểu rõ hơn về tiêu chuẩn vật liệu xây dựng và các yếu tố ảnh hưởng đến chi phí, bạn có thể tham khảo thêm tại các bài viết chuyên sâu về vật liệu xây dựng cao cấp trên Wikipedia.

5. Những lưu ý “vàng” khi xây nhà ống 2 tầng mái Thái
Là chuyên gia trong lĩnh vực thiết kế nhà ống 2 tầng mái Thái, Techhome khuyên bạn:
-
Chú trọng giếng trời: Với nhà dài trên 20m như nhà anh Minh, việc bố trí giếng trời ở khu vực cầu thang là bắt buộc để lấy sáng và lưu thông không khí.
-
Phong thủy: Hãy chú ý hướng bếp và hướng ban thờ. Trong mẫu nhà này, chúng tôi đã tọa hướng ban thờ nhìn về mặt tiền, hợp tuổi gia chủ để đón tài lộc.
-
Lựa chọn vật liệu: Phần mái nên sử dụng ngói khung kèo thép nhẹ để giảm tải trọng lên móng và tiết kiệm chi phí so với dán ngói bê tông.

6. Vì sao nên chọn Techhome làm đơn vị thiết kế & thi công?
Giữa hàng trăm đơn vị, Techhome tự hào được anh Minh và nhiều khách hàng tại Thái Bình tin tưởng nhờ:
-
Minh bạch pháp lý: Hợp đồng rõ ràng, cam kết không phát sinh chi phí.
-
Đội ngũ chuyên sâu: Dưới sự chủ trì của KTS và KS, mỗi bản vẽ đều được kiểm duyệt khắt khe.
-
Thực chiến: Chúng tôi có kinh nghiệm xử lý hàng trăm công trình nhà phố, nhà ống trên nền đất yếu, đất méo.

Kết luận
Mẫu thiết kế nhà ống 2 tầng mái Thái của gia đình anh Minh là minh chứng rõ nét cho việc kết hợp giữa thẩm mỹ và công năng. Một ngôi nhà không cần quá cầu kỳ nhưng phải “chất” và ấm áp.
Nếu bạn đang sở hữu mảnh đất tương tự và muốn hiện thực hóa giấc mơ an cư, đừng ngần ngại liên hệ với Techhome. Chúng tôi sẽ giúp bạn vẽ nên ngôi nhà mơ ước với chi phí tối ưu nhất.
CÔNG TY CỔ PHẦN KIẾN TRÚC VÀ XÂY DỰNG TECHHOME
-
Địa chỉ: B1.1 LK18 Ô 3 – KĐT Thanh Hà – Cienco 5 – Thanh Oai- Hà Nội.
-
Hotline tư vấn kỹ thuật: 0364.04.2222 – 0387.60.3333
-
Website: nhadeptechhome.vn


