Mẫu nhà mái Thái 2 tầng của anh Cường tại Phù Cừ, Hưng Yên là một trong những công trình tiêu biểu mà Techhome vừa hoàn thiện. Ngay từ khi bước vào, ngôi nhà đã tạo ấn tượng mạnh với vẻ đẹp bề thế, sang trọng nhưng vẫn gần gũi, truyền thống. Đây không chỉ là nơi ở, mà còn là biểu tượng của sự thành đạt, gu thẩm mỹ và giá trị sống bền vững mà nhiều gia chủ mơ ước.
Trong bài viết này, chúng ta sẽ cùng khám phá chi tiết về thiết kế, công năng, cũng như những giá trị đặc biệt mà mẫu nhà mái Thái 2 tầng này mang lại.

🔑 Điểm nhấn nổi bật trong thiết kế nhà mái Thái 2 tầng của anh Cường
1. Kiến trúc mái Thái – sang trọng và bền vững
Mái Thái từ lâu đã là lựa chọn hàng đầu trong các thiết kế nhà ở tại Việt Nam. Với độ dốc vừa phải, hệ mái giúp ngôi nhà chống nóng hiệu quả, thoát nước nhanh và bền bỉ trước thời tiết.
Trong công trình này, Techhome lựa chọn tông màu xám ghi hiện đại kết hợp cùng kiến trúc tân cổ điển sang trọng. Sự kết hợp này vừa giữ nét truyền thống, vừa khẳng định phong cách đẳng cấp.
2. Mặt tiền cuốn hút – điểm nhấn khác biệt
Nhà mái Thái 2 tầng với mặt tiền được thiết kế cân đối, hài hòa, sử dụng hệ cột trụ vuông kết hợp hoa văn tinh xảo. Ban công uốn cong mềm mại với lan can sơn mạ vàng ánh kim tạo nên sự quyền quý, nổi bật giữa khu phố.
Cửa chính làm từ gỗ tự nhiên kết hợp kính cường lực, vừa chắc chắn, vừa đón sáng tối đa, giúp không gian nội thất luôn thoáng đãng.
3. Công năng khoa học – tối ưu không gian sống

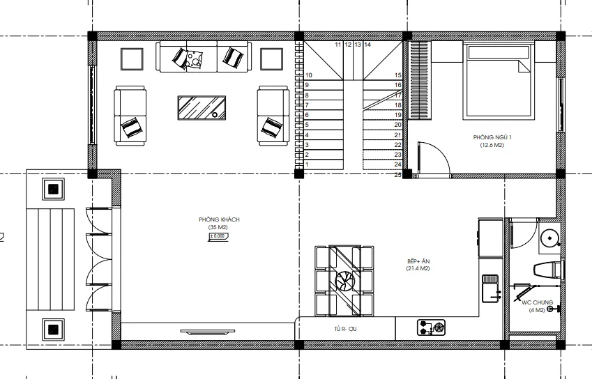
Bản vẽ công năng nhà mái Thái 2 tầng được Techhome nghiên cứu kỹ lưỡng để đáp ứng đầy đủ nhu cầu sinh hoạt của gia đình:
-
Tầng 1:
-
Phòng khách rộng rãi (35m²) – không gian tiếp khách sang trọng.
-
Bếp + ăn (21,4m²) – thiết kế hiện đại, liên kết mở, thuận tiện cho sinh hoạt.
-
01 phòng ngủ (12,6m²) – phù hợp cho người lớn tuổi, hạn chế di chuyển cầu thang.
-
WC chung tiện lợi.
-
-
Tầng 2:
-
03 phòng ngủ – bố trí hợp lý cho các thành viên.
-
Phòng sinh hoạt chung – nơi kết nối tình cảm gia đình.
-
Ban công rộng – không gian thư giãn, ngắm cảnh.
-
4. Thiết kế nhà mái Thái 2 tầng tinh tế – sang trọng và tiện nghi

Bên trong ngôi nhà mái Thái 2 tầng, nội thất được lựa chọn theo phong cách tân cổ điển hiện đại. Tông màu trắng – vàng – nâu gỗ tạo cảm giác ấm cúng, trang nhã và sang trọng.
Đặc biệt, ánh sáng tự nhiên được tận dụng tối đa qua hệ cửa kính lớn, giúp không gian luôn tràn ngập năng lượng tích cực.
5. Ý nghĩa phong thủy – đem lại may mắn, tài lộc
Theo phong thủy, mái Thái có độ dốc cao, phần mái vươn rộng được coi là biểu tượng của sự che chở, bình an cho gia đình.
Kết hợp cùng hướng nhà hợp tuổi gia chủ, mẫu thiết kế này hứa hẹn mang đến may mắn, tài lộc và sự thịnh vượng lâu dài.
🎯 Vì sao nhà mái Thái 2 tầng được ưa chuộng?
-
Phong cách sang trọng, bền vững với thời gian.
-
Công năng tiện nghi, phù hợp gia đình nhiều thế hệ.
-
Khả năng chống nóng, thoát nước tốt, phù hợp khí hậu Việt Nam.
-
Dễ dàng phối hợp với cảnh quan sân vườn, tường rào.
Để tìm hiểu rõ hơn về tiêu chuẩn vật liệu xây dựng và các yếu tố ảnh hưởng đến chi phí, bạn có thể tham khảo thêm tại các bài viết chuyên sâu về vật liệu xây dựng cao cấp trên Wikipedia.
Lợi Ích và Giá Trị Khi Tin Chọn TECHHOME
TECHHOME, với tên đầy đủ là Công ty Cổ phần Kiến trúc và Xây dựng Techhome, tự hào là đơn vị uy tín hàng đầu trong lĩnh vực thiết kế và thi công nhà ở gia đình. Khi chọn Techhome, khách hàng nhận được:
- Thiết kế Tối ưu: Đội ngũ KTS và KS giàu kinh nghiệm, đảm bảo mỗi hồ sơ thiết kế kỹ thuật thi công là một giải pháp hoàn chỉnh, khoa học, phù hợp với nhu cầu sử dụng và ngân sách của gia chủ.
- Minh bạch về Chi phí và Vật liệu: Mọi quy cách vật tư, từ kích thước cửa đến chi tiết lát sàn, đều được thể hiện rõ ràng trong hồ sơ, giúp gia chủ kiểm soát chất lượng và chi phí tuyệt đối.
- Chất lượng Thi công Đảm bảo: Techhome cam kết quy trình thi công nghiêm ngặt, đúng kỹ thuật, sử dụng vật liệu chuẩn và đội ngũ thợ lành nghề, mang lại công trình bền vững, đẹp như bản vẽ 3D.
- Hỗ trợ Kỹ thuật Toàn diện: Cung cấp dịch vụ hỗ trợ tư vấn kỹ thuật xây dựng qua Hotline 0364042222 – 0387603333, sẵn sàng giải đáp mọi thắc mắc trong suốt quá trình triển khai dự án.
Đừng để ý tưởng về ngôi nhà mơ ước chỉ dừng lại trên bản vẽ! Hãy liên hệ ngay với CÔNG TY CỔ PHẦN KIẾN TRÚC VÀ XÂY DỰNG TECHHOME để được tư vấn miễn phí, nhận báo giá chi tiết và biến ngôi nhà mơ ước của bạn thành hiện thực.
Hotline Tư vấn 24/7: 0364042222 – 0387603333
Hãy để TECHHOME đồng hành cùng bạn trên hành trình xây dựng tổ ấm!
Xem thêm các dự án nổi bật khác của Techhome tại https://nhadeptechhome.vn/
