Có những ngôi nhà khi nhìn vào, ta không chỉ thấy gạch đá, bê tông mà còn thấy cả một câu chuyện về sự tận tâm và khát vọng an cư. Công trình thiết kế nhà ống 3 tầng mà Techhome vừa hoàn thiện hồ sơ cho gia đình anh Thắng tại Thường Tín, Hà Nội chính là một ví dụ điển hình như thế.
Giữa bối cảnh đất chật người đông, làm sao để một ngôi nhà phố mặt tiền 4,5m vẫn thoáng đãng, sang trọng và đầy đủ công năng? Hãy cùng Techhome “mổ xẻ” chi tiết bản vẽ này để tìm câu trả lời nhé.
1. Tổng quan dự án: Khi hiện đại hòa quyện cùng thiên nhiên
Trước khi đi sâu vào chi tiết, mời bạn điểm qua những thông tin cơ bản nhất của dự án này. Đây là “đề bài” mà anh Thắng đã đặt ra cho đội ngũ kiến trúc sư Techhome:
| Hạng mục | Thông tin chi tiết |
| Chủ đầu tư |
Anh Thắng |
| Địa điểm |
Thường Tín – Hà Nội |
| Loại hình |
Nhà ở gia đình (Nhà phố/Nhà ống) |
| Diện tích đất |
4.5m x 16m (Diện tích sàn xây dựng ~72m2 – 77m2/sàn) |
| Quy mô |
3 tầng |
| Phong cách | Hiện đại, mái bằng, không gian mở |
| Đơn vị thiết kế |
Công ty Cổ phần Kiến trúc và Xây dựng Techhome |
Mẫu thiết kế nhà ống 3 tầng này không chạy theo những chi tiết phào chỉ cầu kỳ của tân cổ điển. Thay vào đó, chúng tôi tập trung vào hình khối khỏe khoắn, vật liệu hiện đại và quan trọng nhất là “công năng thở” – tức là nhà phải có gió, có sáng.

2. Phân tích ngoại thất: Vẻ đẹp đến từ sự giản đơn
Nhìn vào phối cảnh mặt tiền (3D), bạn sẽ thấy ngôi nhà toát lên vẻ thanh lịch khó cưỡng. Anh Thắng là người trẻ, yêu thích sự năng động nên các kiến trúc sư đã lựa chọn phong cách hiện đại .
Điểm nhấn vật liệu và màu sắc
Mặt tiền sử dụng tông màu trắng sứ làm chủ đạo, kết hợp với các mảng ốp giả gỗ (conwood hoặc nhựa giả gỗ ngoài trời) tại ban công tầng 2 và tầng 3. Cách phối màu này giúp mẫu thiết kế nhà ống 3 tầng trông ấm áp hơn, xua tan đi cảm giác lạnh lẽo của bê tông cốt thép.
Hệ thống cửa nhôm kính Xingfa khổ lớn được sử dụng triệt để. Điều này không chỉ giúp lấy sáng tự nhiên tối đa cho các phòng ngủ mặt tiền mà còn tạo hiệu ứng thị giác, khiến ngôi nhà trông rộng hơn so với kích thước thực tế 4,5m bề ngang.
Mái bằng và giải pháp năng lượng
Một điểm cộng lớn trong thiết kế nhà ống 3 tầng này là phần mái. Thay vì lợp mái thái tốn kém và khó vệ sinh, Techhome tư vấn anh Thắng sử dụng mái bằng bê tông cốt thép.
Trên mái, chúng tôi bố trí sẵn vị trí cho bồn nước và thái dương năng (máy nước nóng năng lượng mặt trời). Đặc biệt, phần giếng trời được thiết kế ngay trên mái, có mái kính che chắn, giúp lấy sáng cho toàn bộ khu vực cầu thang bộ ở giữa nhà. Đây là giải pháp “cứu cánh” cho những căn nhà ống dài 16m như nhà anh Thắng, giúp ban ngày không cần bật điện mà nhà vẫn sáng trưng.

3. Công năng chi tiết: Bài toán diện tích và sự tiện nghi
Đẹp bên ngoài là chưa đủ, một bản thiết kế nhà ống 3 tầng thành công phải là nơi mà gia chủ cảm thấy thoải mái nhất khi trở về. Với diện tích sàn tầng 1 là 72m2, việc bố trí công năng đòi hỏi sự tính toán kỹ lưỡng.
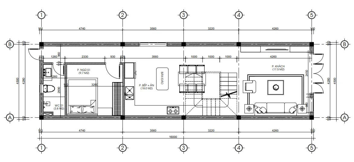
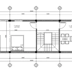
Tầng 1: Không gian kết nối và sự hiếu nghĩa
Bước từ sân vào sảnh chính, chúng ta sẽ gặp ngay phòng khách rộng 17.5m2. Đây là diện tích vừa đủ để bố trí một bộ sofa chữ L hiện đại và kệ tivi đối diện.
Đi sâu vào bên trong là khu vực cầu thang và phòng Bếp + Ăn rộng 18.0m2. Bếp được thiết kế có bán đảo, vừa tăng diện tích sơ chế đồ ăn, vừa làm quầy bar mini cực “chill” cho gia đình trẻ.
Đặc biệt, tầng 1 được bố trí một phòng ngủ nhỏ (P. Ngủ 01) diện tích 9.7m2.
-
Lời bàn: Nhiều người khi làm thiết kế nhà ống 3 tầng thường bỏ qua phòng ngủ tầng 1 để làm gara ô tô. Tuy nhiên, với gia đình có người lớn tuổi hoặc ông bà, phòng ngủ này là cực kỳ nhân văn, giúp các cụ hạn chế leo cầu thang, đảm bảo an toàn tuyệt đối.
Khu vực vệ sinh chung (WC 01) rộng 3.8m2 được đặt kín đáo cạnh phòng ngủ, thuận tiện cho sinh hoạt chung.

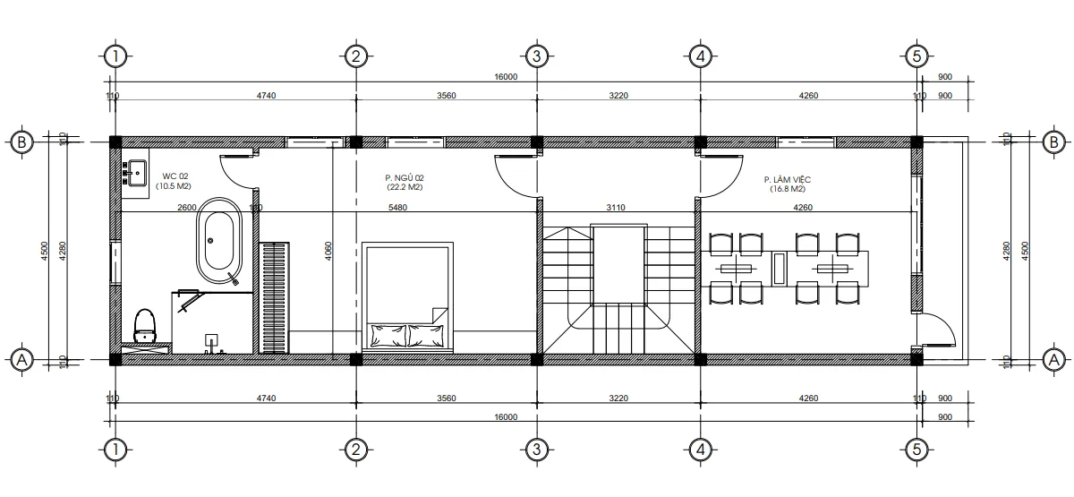
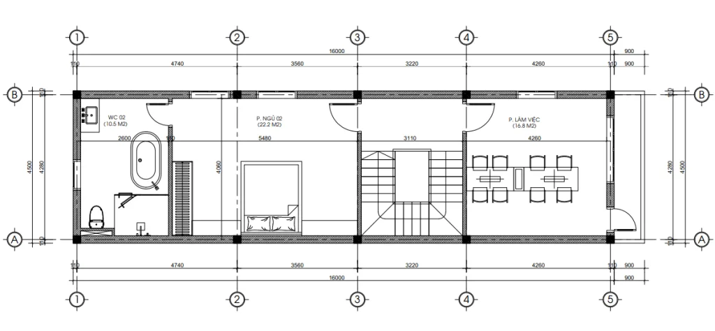
Tầng 2: Thế giới riêng tư và góc làm việc lý tưởng
Lên đến tầng 2, không gian được mở rộng hơn với diện tích sàn 77m2 nhờ phần đua ban công. Đây là nơi tập trung cho sự nghỉ ngơi và làm việc của vợ chồng anh Thắng.
-
Phòng ngủ Master (P. Ngủ 02): Diện tích lên tới 22.2m2. Đây là không gian mơ ước rộng rãi thoáng đãng kết hợp với WC khép kín: Rộng tới 10.5m2. Bạn không nghe nhầm đâu! Một phòng tắm rộng hơn 10m2 cho phép bố trí cả bồn tắm nằm, biến nơi này thành một spa tại gia thực thụ. Đây là điểm đắt giá nhất trong bản thiết kế nhà ống 3 tầng này, nâng tầm chất lượng sống lên rất nhiều.
- Phòng làm việc: Rộng 16.8m2. Trong thời đại làm việc từ xa lên ngôi, việc dành riêng một không gian yên tĩnh để làm việc, đọc sách là cực kỳ cần thiết.

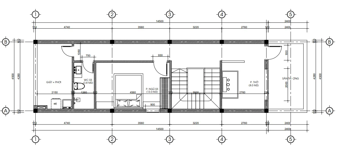
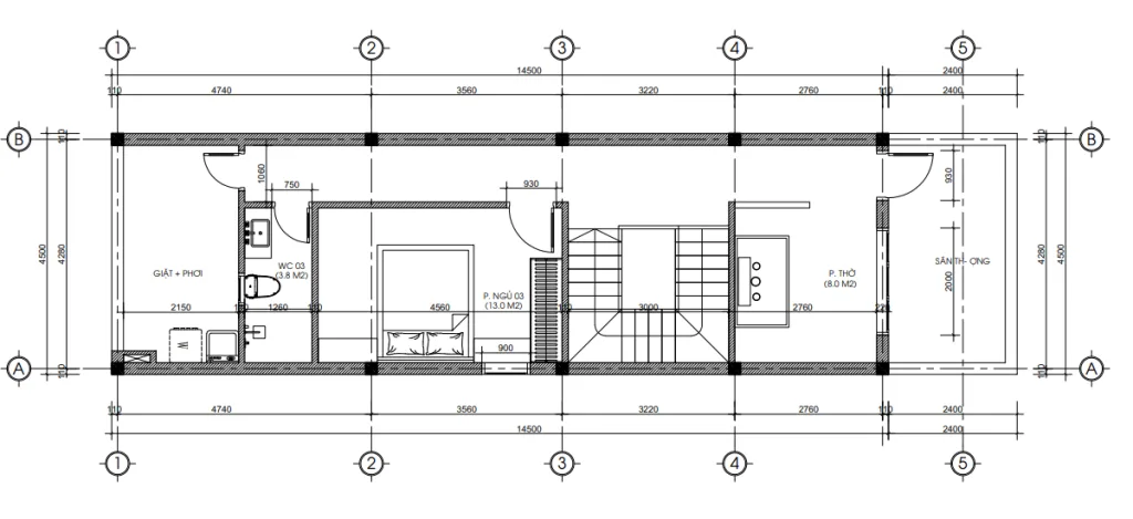
Tầng 3: Tâm linh và tiện ích mở rộng
Tầng cao nhất của ngôi nhà (diện tích 50m2 ) được bố trí khéo léo:
-
Phòng thờ: Diện tích 8.0m2, đặt ở vị trí trang trọng, hướng ra sân thượng, đảm bảo sự tôn nghiêm và thông thoáng.
-
Phòng ngủ 03: Diện tích 13.0m2, dành cho con cái hoặc khách đến chơi nhà.
-
Khu giặt phơi: Khu vực này được bố trí riêng biệt phía sau, đảm bảo thẩm mỹ cho mặt tiền ngôi nhà.
Sự phân chia này cho thấy bản thiết kế nhà ống 3 tầng của anh Thắng đã giải quyết triệt để bài toán công năng: Tầng 1 động (khách, bếp), Tầng 2 tĩnh (ngủ, làm việc), Tầng 3 tâm linh và dịch vụ.

4. Tại sao mẫu thiết kế này lại “Hot” tại Thường Tín?
Thời gian gần đây, Techhome nhận được rất nhiều yêu cầu tư vấn thiết kế nhà ống 3 tầng tương tự như nhà anh Thắng. Lý do nằm ở tính thực dụng:
-
Tiết kiệm chi phí: Hình khối đơn giản giúp giảm chi phí nhân công đắp vẽ và thời gian thi công.
-
Không lỗi mốt: Phong cách hiện đại luôn trường tồn với thời gian. 10 hay 20 năm nữa nhìn lại, ngôi nhà vẫn sang trọng.
-
Dễ dàng thi công: Các vật liệu như nhôm kính, gạch ốp lát, sơn bả đều sẵn có tại thị trường Thường Tín, dễ mua và dễ thay thế.

5. Báo giá thiết kế và thi công (Cập nhật 2026)
Đây chắc chắn là phần mà các bạn quan tâm nhất. Là một người làm nghề lâu năm, tôi xin chia sẻ mức giá tham khảo để bạn dự trù ngân sách cho một căn nhà tương tự mẫu thiết kế nhà ống 3 tầng của anh Thắng.
(Lưu ý: Đơn giá mang tính chất tham khảo tại thời điểm viết bài và có thể thay đổi tùy thuộc vào chủng loại vật tư bạn chọn).
5.1. Chi phí thiết kế kiến trúc
Hiện tại, đơn giá thiết kế cho gói hồ sơ kỹ thuật thi công là:
-
Đơn giá: 108.000đ/m2.
-
Tổng diện tích thiết kế: ~220m2 (3 sàn).
- Tổng chi phí thiết kế: Khoảng 24 triệu đồng.
=> Đầu tư 24 triệu để có một bộ hồ sơ thiết kế nhà ống 3 tầng chuẩn chỉ, tránh đập đi xây lại, liệu có đắt không? Chắc chắn là quá rẻ!
5.2. Dự toán chi phí xây dựng trọn gói (Chìa khóa trao tay)
Nếu bạn chọn phương án xây nhà trọn gói (Techhome lo từ A-Z), bảng giá ước tính cho căn nhà khoảng 220m2 sàn như sau:
| Hạng mục | Đơn giá trung bình (VNĐ/m2) | Thành tiền ước tính (VNĐ) |
| Xây dựng phần thô + Nhân công hoàn thiện | 4.200.000 – 4.500.000 | ~ 950 triệu – 1 tỷ |
| Vật tư hoàn thiện (Gạch, sơn, thiết bị vệ sinh…) | 2.500.000 – 3.500.000 | ~ 550 triệu – 750 triệu |
| Tổng cộng | ~ 1.5 tỷ – 1.8 tỷ |
Ghi chú:
-
Gói vật tư trung bình khá.
-
Chưa bao gồm nội thất rời (giường, tủ, bàn ghế sofa…).
-
Với mẫu thiết kế nhà ống 3 tầng này, phần móng có thể phát sinh chi phí nếu nền đất yếu cần ép cọc bê tông.
Lưu ý: Đây chỉ là mức chi phí ước tính. Để nhận được báo giá chính xác và chi tiết nhất cho công trình của bạn, vui lòng liên hệ trực tiếp với chúng tôi. Hoặc để tìm hiểu rõ hơn về tiêu chuẩn vật liệu xây dựng và các yếu tố ảnh hưởng đến chi phí, bạn có thể tham khảo thêm tại các bài viết chuyên sâu về vật liệu xây dựng cao cấp trên Wikipedia.

6. Góc chuyên gia: Lời khuyên từ Techhome
Dưới góc độ là một người đồng hành cùng hàng trăm chủ nhà, tôi có vài lời khuyên “gan ruột” cho các bạn đang có ý định sử dụng mẫu thiết kế nhà ống 3 tầng này:
Thứ nhất: Đừng tiếc tiền cho chống thấm.
Với nhà mái bằng như nhà anh Thắng, sàn mái là nơi chịu nắng mưa trực tiếp. Hãy yêu cầu nhà thầu sử dụng quy trình chống thấm 3 lớp (sika, màng khò, gạch chống nóng) ngay từ đầu. Đừng để khi thấm dột mới sửa, chi phí sẽ gấp 3 lần.
Thứ hai: Lưu ý hệ thống điện nước cho phòng tắm lớn.
Ở tầng 2, phòng vệ sinh rộng 10.5m2 có bồn tắm nằm. Bạn cần tính toán kỹ phương án cấp nước nóng. Bình nóng lạnh 30L thông thường sẽ không đủ cho bồn tắm. Hãy cân nhắc hệ thống nước nóng trung tâm hoặc năng lượng mặt trời công suất lớn để trải nghiệm tắm được trọn vẹn.
Thứ ba: Phong thủy cầu thang.
Trong bản thiết kế nhà ống 3 tầng này, cầu thang có 21 bậc. Theo quy luật “Sinh – Lão – Bệnh – Tử”, bậc 21 rơi vào cung “Sinh” (khởi đầu may mắn). Đây là chi tiết nhỏ nhưng Techhome đã tính toán rất kỹ cho gia chủ. Khi xây nhà, bạn tuyệt đối phải tuân thủ số bậc này, đừng vì chiều cao tầng thay đổi mà làm sai lệch số bậc.
Thứ tư: Tận dụng giếng trời.
Đừng bịt kín giếng trời bằng kính cố định hoàn toàn. Hãy làm hệ thống mái kính trượt hoặc cửa chớp để gió có thể đối lưu. Nhà ống sợ nhất là bí khí, giếng trời chính là “lá phổi” giúp ngôi nhà hô hấp.

7. Kết luận
Mẫu thiết kế nhà ống 3 tầng của gia đình anh Thắng tại Thường Tín không chỉ là một công trình xây dựng, mà là tổ ấm được kiến tạo từ sự lắng nghe và thấu hiểu. Techhome tự hào khi biến những con số khô khan trên bản vẽ thành không gian sống đầy cảm xúc.
Nếu bạn đang sở hữu một mảnh đất mặt phố và cũng mơ ước về một ngôi nhà:
-
Công năng tối ưu cho gia đình 3 thế hệ.
-
Chi phí xây dựng hợp lý, minh bạch.
-
Phong cách hiện đại, không lo lỗi thời.
Thì mẫu thiết kế nhà ống 3 tầng này chính là gợi ý hoàn hảo dành cho bạn. Đừng ngần ngại liên hệ với Techhome. Chúng tôi không chỉ vẽ nhà, chúng tôi vẽ nên ước mơ của bạn.
CÔNG TY CỔ PHẦN KIẾN TRÚC VÀ XÂY DỰNG TECHHOME
-
Hotline: 0364.04.2222 – 0387.60.3333
-
Website: https://nhadeptechhome.vn/
-
Địa chỉ: B1.1 LK18 Ô 3 – KĐT Thanh Hà – Cienco 5 – Thanh Oai- Hà Nội.
Bạn đang phân vân về chi phí hay phong thủy? Hãy để lại bình luận hoặc gọi ngay cho Techhome, chúng tôi sẽ trực tiếp kết nối bạn với KTS – chủ trì thiết kế dự án này để tư vấn miễn phí nhé!
