Chiêm ngưỡng mẫu nhà phố 3 tầng hiện đại tại Phố Nối, Hưng Yên do Techhome thiết kế. Giải pháp kiến trúc vòm mềm mại, xử lý đất vát thông minh và tối ưu chi phí. Xem ngay bản vẽ chi tiết!
1. Giới thiệu chung: Xu hướng nhà phố 3 tầng hiện đại lên ngôi
Tại các khu vực đang phát triển mạnh mẽ như Phố Nối – Hưng Yên, quỹ đất ngày càng trở nên khan hiếm và đắt đỏ. Chính vì vậy, việc tìm kiếm một giải pháp kiến trúc vừa đảm bảo tính thẩm mỹ, vừa tối ưu hóa diện tích sử dụng là bài toán khó đối với nhiều gia chủ. Trong bối cảnh đó, mẫu nhà phố 3 tầng hiện đại đã và đang trở thành sự lựa chọn hàng đầu, đáp ứng hoàn hảo nhu cầu sinh hoạt của các gia đình từ 2 đến 3 thế hệ.
Dự án thiết kế nhà ở gia đình cho anh Công là một ví dụ điển hình cho tư duy kiến trúc mới của Techhome. Không đơn thuần là việc chồng tầng để lấy diện tích, chúng tôi tập trung vào việc kiến tạo một không gian sống “thở”, nơi ánh sáng và gió trời lưu thông, mang lại vượng khí cho gia chủ. Với phong cách nhà phố 3 tầng hiện đại kết hợp các đường nét kiến trúc vòm, công trình này đã phá vỡ sự đơn điệu của những khối bê tông cốt thép thường thấy, tạo nên một diện mạo đầy chất thơ giữa lòng phố thị sầm uất.

2. Phân tích mặt bằng công năng: Giải pháp cho thế đất vát
Một ngôi nhà phố 3 tầng hiện đại đẹp không chỉ ở lớp áo bên ngoài mà cốt lõi nằm ở sự tiện nghi bên trong. Thách thức lớn nhất của dự án này là khu đất có mặt tiền bị vát chéo hình thang. Tuy nhiên, Techhome đã biến nhược điểm này thành ưu điểm bằng cách bố trí khoảng lùi hợp lý để làm khu vực để xe và sảnh đệm.
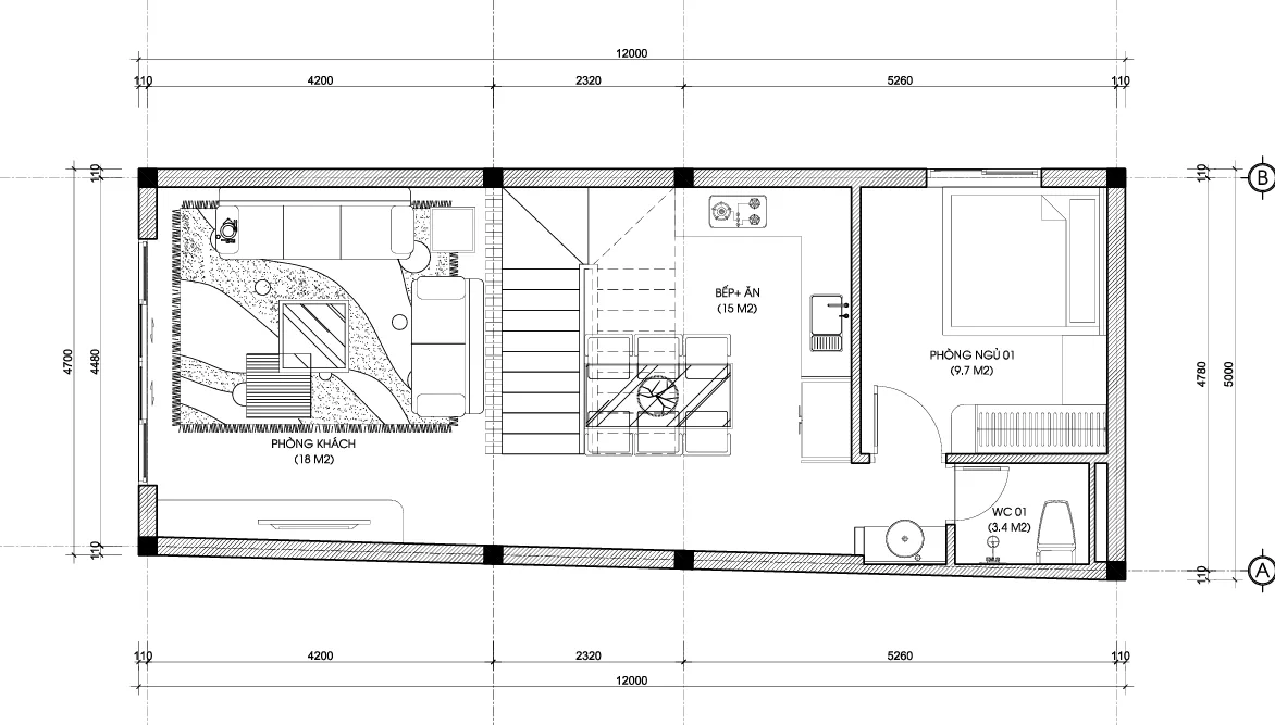
Tầng 1: Sự kết nối không gian mở
Mặt bằng tầng 1 được thiết kế theo không gian mở (Open Plan), đặc trưng của các mẫu nhà phố 3 tầng hiện đại.
-
Phòng khách (18m2): Bước qua sảnh chính là phòng khách rộng rãi. Với chiều ngang nhà hơn 4m, việc bố trí nội thất theo chiều dọc giúp không gian có chiều sâu và thông thoáng.
-
Bếp và Phòng ăn (15m2): Nằm liên thông với phòng khách qua khu vực cầu thang. Cầu thang được bố trí nép dọc nhà giúp tiết kiệm diện tích và không cản trở tầm nhìn.
-
Phòng ngủ 01 (9.7m2): Một phòng ngủ nhỏ được bố trí kín đáo phía cuối nhà dành cho người lớn tuổi, giúp hạn chế việc leo cầu thang, đảm bảo an toàn và sự yên tĩnh.
-
Vệ sinh chung (3.4m2): Đặt cuối nhà, đảm bảo sự kín đáo và vệ sinh.

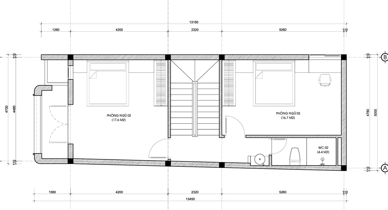
Tầng 2: Không gian nghỉ ngơi riêng tư
Tầng 2 của ngôi nhà phố 3 tầng hiện đại này được dành trọn vẹn cho việc nghỉ ngơi với 2 phòng ngủ lớn.
-
Phòng ngủ 02 (17.6m2): Phòng ngủ Master phía trước nhà có diện tích lớn, kết nối trực tiếp với ban công vòm thoáng đãng. Đây là nơi gia chủ tái tạo năng lượng sau một ngày làm việc.
-
Phòng ngủ 03 (16.7m2): Phòng ngủ phía sau dành cho con cái, đủ rộng để bố trí góc học tập và tủ quần áo lớn.
-
Vệ sinh chung (4.4m2): Được thiết kế rộng rãi, nằm giữa hai phòng để tiện sử dụng chung.

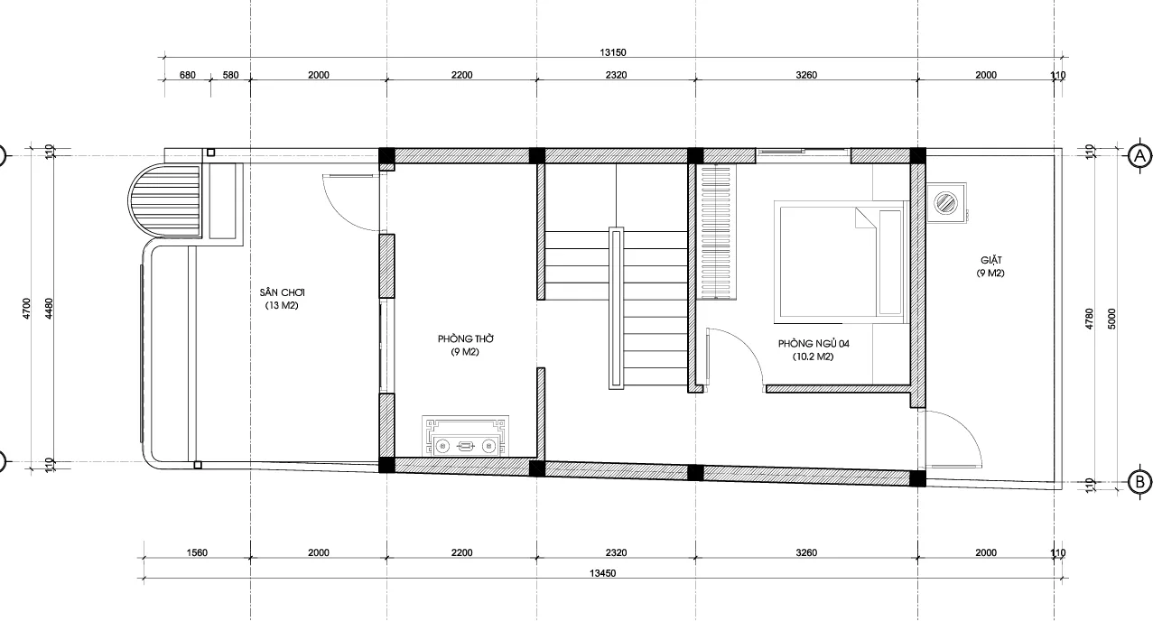
Tầng 3: Tâm linh và Tiện ích mở rộng
Tầng cao nhất của mẫu nhà phố 3 tầng hiện đại này được bố trí khoa học:
-
Phòng thờ (9m2): Đặt ở vị trí trang trọng phía trước, hướng ra sân chơi, đảm bảo yếu tố phong thủy.
-
Sân chơi (13m2): Khu vực bán lộ thiên có mái kính, là nơi trồng cây, thưởng trà hoặc tổ chức tiệc nướng BBQ.
-
Phòng ngủ 04 (10.2m2) & Phòng giặt (9m2): Đáp ứng nhu cầu cho khách ngủ lại hoặc thành viên mới trong tương lai.

3. Phối cảnh ngoại thất ấn tượng: Điểm nhấn từ những đường cong
Khi nhắc đến khái niệm nhà phố 3 tầng hiện đại, người ta thường nghĩ ngay đến những khối hình vuông vức, khỏe khoắn. Tuy nhiên, với dự án của anh Công, đội ngũ kiến trúc sư Techhome đã khéo léo lồng ghép ngôn ngữ “Soft Modernism” – sự hiện đại mềm mại – để tạo nên sự khác biệt.
Kiến trúc vòm và Hệ mái kính nghệ thuật
Điểm nhấn đắt giá nhất của mặt tiền chính là hệ vòm cong tại ban công tầng 2 và tầng 3. Chi tiết này không chỉ giúp mặt tiền ngôi nhà trở nên duyên dáng, mềm mại hơn mà còn tạo ra hiệu ứng thị giác chiều sâu độc đáo. Phía trên cùng, hệ mái kính khung thép nghệ thuật che chắn cho sân chơi tầng thượng vừa có tác dụng che mưa, vừa lấy sáng tối đa, biến khu vực này thành một “Sky Garden” lý tưởng. Đây là một sáng tạo trong thiết kế nhà phố 3 tầng hiện đại nhằm tận dụng tối đa không gian thư giãn cho gia chủ.
Phối màu và Vật liệu mặt tiền
Techhome sử dụng tông màu trắng sứ làm chủ đạo, kết hợp với màu xám ghi của hệ nhôm kính và màu nâu gỗ của trần ốp ban công (Conwood hoặc nhựa giả gỗ). Sự tương phản này tạo nên vẻ đẹp thanh lịch, sang trọng. Đặc biệt, toàn bộ mặt tiền tầng 1 được ốp đá Granite vân mây màu tối. Việc ốp đá không chỉ giúp công trình thêm phần bề thế, vững chãi đúng chất của một ngôi nhà phố 3 tầng hiện đại cao cấp, mà còn giúp bảo vệ khu vực chân tường khỏi rêu mốc, bụi bẩn và dễ dàng vệ sinh theo thời gian.

4. Đánh giá về Kết cấu và Vật liệu xây dựng
Độ bền vững của một ngôi nhà phố 3 tầng hiện đại phụ thuộc hoàn toàn vào kết cấu và vật liệu. Tại dự án nhà anh Công, Techhome áp dụng các tiêu chuẩn kỹ thuật khắt khe nhất.
Hệ thống cửa nhôm kính cao cấp
Toàn bộ hệ thống cửa đi và cửa sổ đều sử dụng nhôm hệ (như Xingfa) kết hợp kính dán an toàn 6.38mm hoặc 8.38mm.
-
Ưu điểm: Loại cửa này có khả năng cách âm, cách nhiệt vượt trội, chống chịu tốt với thời tiết nắng mưa khắc nghiệt của miền Bắc.
-
Thẩm mỹ: Khung nhôm màu ghi đen hoặc đen tuyền tạo nên nét đẹp khỏe khoắn, hiện đại, rất phù hợp với phong cách nhà phố 3 tầng hiện đại.
Vật liệu hoàn thiện sàn và trần
-
Sàn nhà: Tầng 1 và các khu vực sảnh được lát gạch Granite vân đá kích thước lớn 800×800, tạo cảm giác không gian rộng hơn và sang trọng hơn. Các tầng trên sử dụng gạch 600×600 hoặc sàn gỗ tùy chọn.
-
Trần thạch cao: Techhome sử dụng hệ trần thạch cao khung xương chìm, kết hợp đèn LED Downlight và đèn hắt khe. Hệ thống chiếu sáng này là yếu tố quan trọng giúp tôn lên vẻ đẹp nội thất của ngôi nhà phố 3 tầng hiện đại vào ban đêm.
Kết cấu bê tông cốt thép chịu lực
Với mặt bằng xây dựng tầng 1, hệ thống cột dầm được tính toán kỹ lưỡng để chịu tải trọng cho toàn bộ ngôi nhà, đảm bảo tuổi thọ công trình lên đến hàng chục năm. Đặc biệt, các chi tiết lanh tô, ô văng cửa sổ đều được đổ bê tông cốt thép chắc chắn để chống nứt tường.

5. Lợi ích và Giá trị khi chọn Techhome
Tại sao anh Công và rất nhiều khách hàng khác lại tin tưởng lựa chọn Techhome để hiện thực hóa giấc mơ về ngôi nhà phố 3 tầng hiện đại của mình?
-
Tư duy thiết kế đột phá: Chúng tôi không sao chép rập khuôn. Mỗi ngôi nhà phố 3 tầng hiện đại do Techhome thiết kế đều mang một dấu ấn riêng, giải quyết triệt để các nhược điểm của khu đất (như đất méo, đất hướng Tây) để mang lại không gian sống tối ưu nhất.
-
Hồ sơ kỹ thuật chi tiết đến từng milimet: Khác với các bản vẽ sơ sài trên thị trường, bộ hồ sơ của Techhome bao gồm đầy đủ kiến trúc, kết cấu, điện nước (ME), chi tiết lát sàn, chi tiết cửa…. Điều này giúp gia chủ và thợ thi công dễ dàng đọc hiểu, giám sát, tránh sai sót và phát sinh chi phí.
-
Đồng hành trọn đời: Techhome cam kết hỗ trợ tư vấn kỹ thuật 24/7 trong suốt quá trình thi công qua Hotline. Chúng tôi coi mỗi công trình nhà phố 3 tầng hiện đại hoàn thiện là một “đứa con tinh thần” cần được chăm chút.

6. Mẫu nhà phố 3 tầng hiện đại có giá bao nhiêu?
Chi phí luôn là mối quan tâm hàng đầu khi xây dựng nhà. Với mẫu nhà phố 3 tầng hiện đại có diện tích và mức độ đầu tư vật liệu như nhà anh Công, Techhome xin đưa ra bảng khái toán tham khảo như sau:
-
Diện tích xây dựng: Khoảng 180m2 – 200m2 (Tổng 3 sàn + mái).
-
Chi phí thiết kế: 100.000đ/m2. Techhome cung cấp gói thiết kế kiến trúc với mức giá cực kỳ cạnh tranh trên thị trường, đi kèm với bộ hồ sơ chất lượng cao.
-
Chi phí thi công trọn gói (Chìa khóa trao tay): Với phong cách hiện đại, sử dụng vật liệu khá tốt (Nhôm hệ, đá Granite tự nhiên, thiết bị vệ sinh chính hãng…), đơn giá xây dựng hoàn thiện dao động từ 6.000.000đ – 7.500.000đ/m2.
Như vậy, tổng chi phí đầu tư cho một ngôi nhà phố 3 tầng hiện đại tiện nghi, sang trọng như thế này sẽ nằm trong khoảng hợp lý, phù hợp với tài chính của nhiều gia đình trẻ.
Lưu ý: Đây chỉ là mức chi phí ước tính. Để nhận được báo giá chính xác và chi tiết nhất cho công trình của bạn, vui lòng liên hệ trực tiếp với chúng tôi. Hoặc để tìm hiểu rõ hơn về tiêu chuẩn vật liệu xây dựng và các yếu tố ảnh hưởng đến chi phí, bạn có thể tham khảo thêm tại các bài viết chuyên sâu về vật liệu xây dựng cao cấp trên Wikipedia.
7. Kết luận
Mẫu nhà phố 3 tầng hiện đại của gia đình anh Công tại Phố Nối – Hưng Yên là minh chứng rõ nét cho năng lực thiết kế và thi công của Techhome. Chúng tôi đã biến một mảnh đất có hình thù không vuông vức thành một tác phẩm kiến trúc hài hòa, công năng khoa học và thẩm mỹ tinh tế.
Nếu bạn đang sở hữu một lô đất phố và mong muốn xây dựng một ngôi nhà phố 3 tầng hiện đại, thể hiện đẳng cấp và gu thẩm mỹ riêng, hãy để Techhome đồng hành cùng bạn.
Đừng ngần ngại, hãy liên hệ ngay với chúng tôi để nhận được sự tư vấn miễn phí và báo giá chi tiết nhất!
CÔNG TY CỔ PHẦN KIẾN TRÚC VÀ XÂY DỰNG TECHHOME
-
Hotline tư vấn: 0364.04.2222 – 0387.60.3333
- Xem thêm các dự án nổi bật khác của Techhome tại https://nhadeptechhome.vn/


