Khám phá mẫu thiết kế nhà 2 tầng mái Nhật đẹp hút hồn tại Yên Mỹ, Hưng Yên. Công trình là sự kết hợp hoàn hảo giữa kiến trúc tân cổ điển nhẹ nhàng và công năng tiện nghi, được TechHome thực hiện bằng cả tâm huyết dành cho gia đình chị Vân Anh. Xem ngay bản vẽ và báo giá chi tiết!
1. Duyên lành kiến tạo tổ ấm tại Hưng Yên
Có những ngôi nhà được xây lên không chỉ để ở, mà để gói ghém yêu thương và sự hiếu nghĩa. Cơ duyên đưa TechHome đến với mảnh đất Yên Phú, Yên Mỹ, Hưng Yên để gặp gỡ chị Vân Anh là một hành trình đầy cảm xúc như thế.
Khi tìm kiếm một đơn vị thiết kế nhà 2 tầng mái Nhật, chị Vân Anh chia sẻ với chúng tôi về mong muốn một không gian sống vừa hiện đại, vừa phảng phất nét truyền thống, quan trọng nhất là phải ấm cúng và tiện dụng cho sinh hoạt của gia đình nhiều thế hệ. Hiểu được tâm tư đó, đội ngũ Kiến trúc sư đã dành trọn tâm sức để lên phương án cho công trình đặc biệt này.
Không chỉ là một bản vẽ, đây là giải pháp thiết kế nhà 2 tầng mái Nhật tối ưu nhất, giải quyết bài toán về diện tích đất ~8m mặt tiền và nhu cầu sử dụng thực tế của gia đình.

2. Vẻ đẹp ngoại thất: Khi “Mái Nhật” giao duyên cùng Tân Cổ Điển
Nhìn vào phối cảnh 3D, bạn sẽ bị thu hút ngay bởi hệ mái Nhật thanh thoát. Trong xu hướng kiến trúc hiện nay, thiết kế nhà 2 tầng mái Nhật đang lên ngôi bởi khả năng thoát nước tốt, chống nóng hiệu quả – cực kỳ phù hợp với khí hậu miền Bắc.
Kiến trúc mặt tiền thu hút
Ngôi nhà khoác lên mình màu sơn trắng sứ chủ đạo, làm nền cho những đường phào chỉ đắp nổi tinh tế nhưng không quá rườm rà. Các chi tiết cột sảnh chính và cột giả được KTS tính toán tỷ lệ vàng, tạo sự vững chãi, bề thế.
-
Hệ cửa vòm mềm mại: Điểm nhấn đắt giá nằm ở chi tiết cửa sổ vòm và ban công tầng 2, mang lại nét duyên dáng, lãng mạn đặc trưng của phong cách tân cổ điển.
-
Vật liệu cao cấp: Chân tường được ốp đá sẫm màu, không chỉ tạo điểm nhấn thẩm mỹ mà còn giúp công trình sạch sẽ, tránh rêu mốc theo thời gian.
Sự kết hợp giữa ngói màu xanh than và tường trắng tạo nên một tổng thể thiết kế nhà 2 tầng mái Nhật vừa sang trọng, vừa gần gũi, đời thường, không bị lỗi mốt theo thời gian.

3. Phân tích công năng: Bài toán “tròn trịa” cho gia đình đa thế hệ
Một thiết kế nhà 2 tầng mái Nhật đẹp thôi chưa đủ, nó phải “sống” cùng gia chủ. Dựa trên hồ sơ thiết kế kỹ thuật, TechHome xin phân tích chi tiết cách bố trí công năng thông minh của ngôi nhà này:
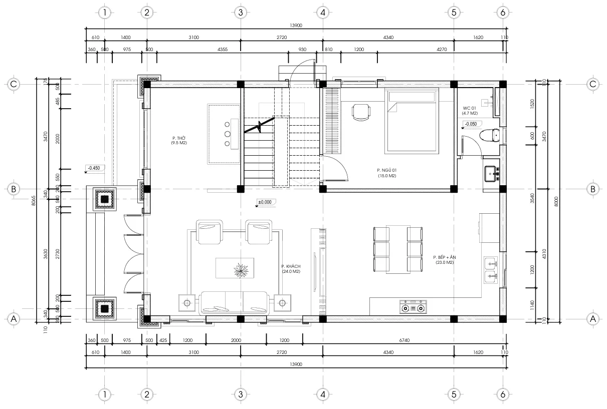
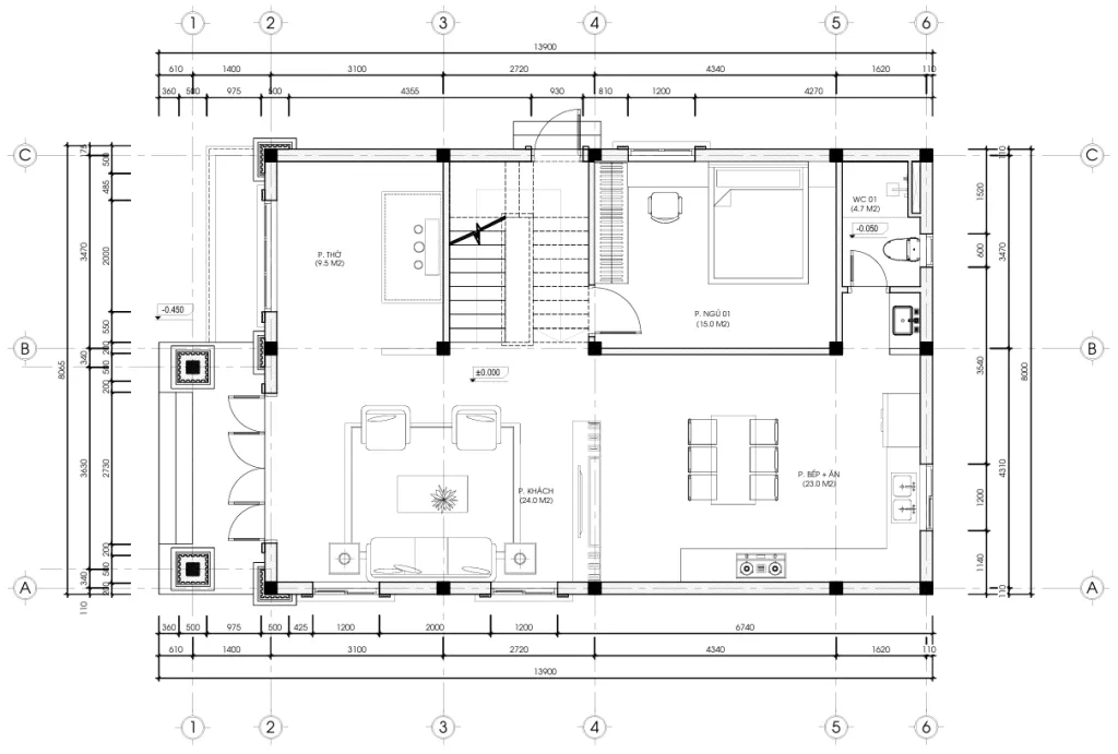
Tầng 1: Không gian kết nối (Diện tích sàn xây dựng ~112m2)
Mặt bằng tầng 1 được thiết kế mở, tập trung vào sự gắn kết các thành viên:
-
Phòng khách (24m2): Được đặt ngay sảnh chính, rộng rãi để đón tiếp khách khứa và là nơi sum họp chung.
-
Phòng thờ (9.5m2): Đặt tại vị trí trang trọng nhất, hướng ra mặt tiền, thể hiện lòng thành kính tổ tiên.
-
Phòng Bếp + Ăn (23.0m2): Không gian bếp liên thông tạo cảm giác rộng rãi.
-
Phòng ngủ 01 (15.0m2): Đây là thiết kế nhân văn dành cho ông bà hoặc người lớn tuổi, hạn chế việc leo cầu thang, đảm bảo an toàn tuyệt đối.
-
Vệ sinh chung (4.7m2): Bố trí khéo léo, kín đáo nhưng thuận tiện sử dụng.
Việc bố trí phòng ngủ tại tầng 1 trong các mẫu thiết kế nhà 2 tầng mái Nhật là một xu hướng rất được ưa chuộng tại các vùng quê như Hưng Yên, nơi văn hóa “tam đại đồng đường” vẫn được gìn giữ.

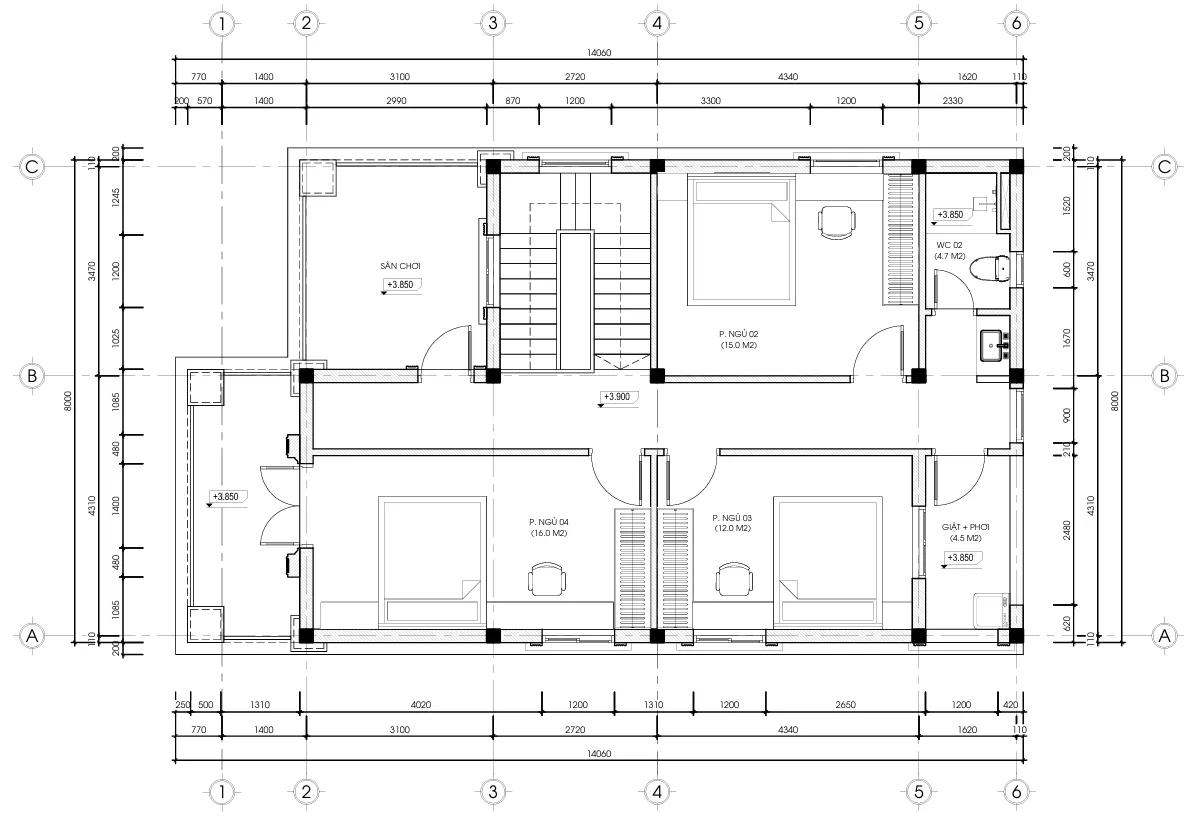
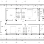
Tầng 2: Không gian riêng tư
Bước lên cầu thang với 21 bậc chuẩn phong thủy (Sinh – Lão – Bệnh – Tử), không gian tầng 2 mở ra sự riêng tư cần thiết:
-
03 Phòng ngủ: Bao gồm P.Ngủ 02 (15m2), P.Ngủ 03 (12m2) và P.Ngủ 04 (16m2). Các phòng đều có cửa sổ lớn đón gió và ánh sáng tự nhiên.
-
Khu giặt phơi + Sân chơi: Tận dụng tối đa diện tích để tạo khoảng không gian thoáng đãng cho việc phơi phóng và thư giãn.
Với bố trí 4 phòng ngủ trên tổng diện tích, mẫu thiết kế nhà 2 tầng mái Nhật này đáp ứng hoàn hảo cho gia đình từ 5-7 thành viên sinh sống thoải mái.

4. Bóc tách kỹ thuật: Những điều chỉ có trong hồ sơ thi công của TechHome
Nhiều khách hàng khi tìm kiếm thiết kế nhà 2 tầng mái Nhật thường chỉ quan tâm đến phối cảnh mà quên mất phần “xương sống” kỹ thuật. Tại TechHome, sự minh bạch và chính xác được đặt lên hàng đầu:
-
Kết cấu bền vững: Chúng tôi sử dụng bê tông cốt thép chịu lực, móng được tính toán kỹ dựa trên địa chất Hưng Yên. Tường xây gạch đặc, trát phẳng, sơn lót kháng kiềm và phủ 2 lớp sơn màu theo chỉ định.
-
Cửa gỗ Lim Nam Phi: Hệ thống cửa chính và cửa thông phòng sử dụng gỗ Lim Nam Phi, pano đặc dày 30mm. Đây là loại gỗ “vua” trong xây dựng nhà ở miền Bắc nhờ độ cứng, vân đẹp và khả năng chống mối mọt tuyệt vời.
-
Hệ nhôm kính Xingfa: Các cửa sổ sử dụng nhôm hệ kết hợp kính an toàn 6.38mm hoặc 8.38mm, giúp lấy sáng tối đa và cách âm tốt.
-
Đá Granite tự nhiên: Cầu thang và bậc tam cấp được ốp đá Granite đen/trắng, tạo độ bóng, sang trọng và độ bền vĩnh cửu với thời gian.
Chính những chi tiết kỹ thuật tỉ mỉ này đã làm nên thương hiệu thiết kế nhà 2 tầng mái Nhật uy tín của TechHome.

5. Tại sao chọn TechHome cho ngôi nhà của bạn?
Giữa hàng trăm đơn vị thiết kế nhà 2 tầng mái Nhật, tại sao chị Vân Anh lại chọn TechHome?
-
Hồ sơ chi tiết: Như bạn thấy, từ mặt bằng lát sàn, mặt bằng trần đèn, đến chi tiết từng con tiện cầu thang đều được thể hiện rõ ràng.
-
Đồng hành thực tế: Chúng tôi không “đem con bỏ chợ”. KTS TechHome luôn sẵn sàng hỗ trợ tư vấn kỹ thuật xây dựng qua hotline 0364.04.2222 trong suốt quá trình thi công.
-
Tối ưu chi phí: Thiết kế nhà 2 tầng mái Nhật tại TechHome luôn cân đối giữa thẩm mỹ và túi tiền của gia chủ, hạn chế tối đa chi phí phát sinh.

6. Báo giá thiết kế và thi công nhà 2 tầng mái Nhật (Tham khảo 2025)
TechHome xin gửi tới quý khách hàng bảng báo giá tham khảo để bạn dễ dàng dự trù kinh phí cho mẫu thiết kế nhà 2 tầng mái Nhật tương tự nhà chị Vân Anh (Tổng diện tích sàn khoảng 220m2).
(Lưu ý: Giá có thể thay đổi tùy thuộc vào thời điểm, vị trí địa lý và vật liệu cụ thể)
| Hạng mục | Đơn giá (VNĐ) | Thành tiền dự kiến (220m2 sàn) |
| 1. Thiết kế kiến trúc & Kết cấu | 100.000/m2 | ~ 22.000.000 – 25.000.000 |
| 2. Thi công phần thô | 4.000.000 – 5.000.000/m2 | ~ 880.000.000 – 1.100.000.000 |
| 3. Thi công trọn gói (Chìa khóa trao tay) | 7.000.000 – 8.000.000/m2 | ~ 1.600.000.000 – 1.800.000.000 |
Chi tiết vật tư phần thô:
-
Thép: Hòa Phát/Việt Úc.
-
Xi măng: Hoàng Thạch/Bỉm Sơn.
-
Gạch: Tuynel loại A1.
-
Bê tông: Thương phẩm mác 250.
Chi tiết vật tư hoàn thiện cơ bản:
-
Gạch ốp lát: Ceramic/Granite chống trơn.
-
Sơn: Dulux/Jotun (Sơn 2 lớp màu, 1 lớp lót).
-
Cửa: Gỗ Lim Nam Phi (cửa chính), Nhôm hệ Xingfa (cửa sổ).
-
Thiết bị vệ sinh: Inax/Toto (Bệt, Lavabo, Sen tắm).
Để nhận báo giá chính xác nhất cho mẫu thiết kế nhà 2 tầng mái Nhật trên lô đất của bạn, hãy liên hệ ngay với chúng tôi.

7. Kinh nghiệm “vàng” khi xây nhà 2 tầng mái Nhật tại Hưng Yên
Là người làm nghề lâu năm, Techhome muốn chia sẻ thêm vài lưu ý nhỏ nhưng “có võ” cho các bác ở Hưng Yên hay các tỉnh lân cận khi xây mẫu nhà này:
-
Chú ý độ dốc mái: Thiết kế nhà 2 tầng mái Nhật có độ dốc thấp hơn mái Thái (thường < 40 độ). Cần thi công kèo thép và lợp ngói chuẩn xác để tránh dột và đảm bảo thoát nước.
-
Hệ thống điện nước: Nên sử dụng các thương hiệu uy tín và có bản vẽ kỹ thuật chi tiết như TechHome cung cấp để dễ dàng sửa chữa về sau.
-
Phong thủy: Hướng bếp và hướng bàn thờ cần được xem xét kỹ theo tuổi gia chủ để mang lại tài lộc.

8. Lời kết
Ngôi nhà của chị Vân Anh tại Yên Mỹ, Hưng Yên không chỉ là một công trình xây dựng, đó là minh chứng cho sự tận tâm của TechHome trong lĩnh vực thiết kế nhà 2 tầng mái Nhật.
Nếu bạn đang ấp ủ giấc mơ về một ngôi nhà khang trang, bền vững và thẩm mỹ, hãy để TechHome trở thành người bạn đồng hành tin cậy. Chúng tôi không chỉ vẽ nên ngôi nhà, chúng tôi kiến tạo không gian sống hạnh phúc.
CÔNG TY CỔ PHẦN KIẾN TRÚC VÀ XÂY DỰNG TECHHOME
-
Hotline tư vấn kỹ thuật: 0364.04.2222 – 0387.60.3333
-
Website: nhadeptechhome.vn
Bạn có muốn TechHome khảo sát thực tế và lên phương án thiết kế nhà 2 tầng mái Nhật cho khu đất nhà mình ngay hôm nay không? Hãy để lại tin nhắn cho chúng tôi nhé!
