Có bao giờ bạn đi ngang qua một con phố, bất chợt dừng lại và ngẩn ngơ trước một ngôi nhà không quá phô trương nhưng lại toát lên vẻ cuốn hút kỳ lạ? Đó chính xác là cảm xúc mà Techhome muốn gửi gắm qua công trình nhà phố 2 tầng 1 tum của gia đình anh Đạt tại Thọ Xuân, Thanh Hóa.
Không đi theo lối mòn của những khối bê tông vuông vức, khô cứng thường thấy ở các đô thị, Techhome đã thổi vào đó sự mềm mại, tinh tế và một chút “thơ” của kiến trúc hiện đại phi đối xứng. Hãy cùng Techhome “mổ xẻ” chi tiết hồ sơ thiết kế nhà phố 2 tầng 1 tum này để thấy được sự tâm huyết của đội ngũ kiến trúc sư nhé!
1. Thông Tin Tổng Quan Dự Án
Trước khi đi sâu vào chi tiết, mời bạn điểm qua những “con số biết nói” trong hồ sơ kỹ thuật thi công của công trình này:
-
Chủ đầu tư: Anh Đạt.
-
Địa điểm xây dựng: Huyện Thọ Xuân, Tỉnh Thanh Hóa.
-
Đơn vị thiết kế: Công ty Cổ phần Kiến trúc và Xây dựng Techhome.
-
Loại hình: Nhà phố 2 tầng 1 tum (Nhà ở gia đình).
-
Kích thước xây dựng: Mặt tiền 6m x Chiều sâu 12m.
-
Phong cách: Hiện đại, sử dụng đường cong kiến trúc (Soft Architecture).

2. Câu Chuyện Thiết Kế: Khi “Nhà” Là Nơi Vỗ Về Cảm Xúc
Anh Đạt tìm đến Techhome với một đề bài khá phổ biến nhưng cũng đầy thách thức: “Anh có mảnh đất mặt phố, muốn xây một ngôi nhà phố 2 tầng 1 tum đủ công năng cho gia đình, nhưng anh sợ cảm giác bí bách của nhà ống. Anh muốn ngôi nhà phải thoáng, nhìn vào thấy dễ chịu, không góc cạnh sắc nhọn.”
Hiểu được tâm tư đó, đội ngũ KTS Techhome đã quyết định phá bỏ tư duy hình khối vuông vức truyền thống. Thay vào đó, chúng tôi sử dụng ngôn ngữ thiết kế “Curved Line” (Đường cong).
Nhìn vào phối cảnh mặt tiền, bạn sẽ thấy các mảng tường, ban công tầng 2 và mái che tầng tum được bo tròn cực kỳ mềm mại. Điểm nhấn là sự kết hợp giữa màu trắng tinh khôi của sơn tường và màu nâu trầm ấm của gỗ nhựa (conwood) ốp trần ban công. Nó tạo nên một nhà phố 2 tầng 1 tum vừa sang trọng, vừa gần gũi, xóa tan sự lạnh lẽo của vật liệu bê tông cốt thép.

3. Phân Tích Công Năng: Bài Toán Diện Tích Và Tiện Nghi
Với diện tích sàn xây dựng không quá lớn (khoảng hơn 70m2/sàn), việc bố trí công năng cho nhà phố 2 tầng 1 tum đòi hỏi sự tính toán kỹ lưỡng từng centimet. Dưới đây là cách Techhome giải bài toán này dựa trên hồ sơ bản vẽ kỹ thuật:
3.1. Tầng 1: Không Gian Kết Nối (Diện tích sàn ~72m2)
Mặt bằng tầng 1 được thiết kế tập trung vào sự liên kết các thành viên.
-
Sân trước: Có chiều sâu 1.5m, vừa đủ để làm khoảng đệm, để xe máy và trồng cây xanh, tách biệt khói bụi đường phố với không gian sống.
-
Phòng khách (24m2): Bước qua cửa chính là phòng khách rộng rãi. Kích thước 4.46m x 5.78m cho phép bố trí bộ sofa lớn sang trọng. Đây là “bộ mặt” của nhà phố 2 tầng 1 tum, nơi anh Đạt tiếp đón bạn bè.
-
Cầu thang & Bếp ăn (20m2): Cầu thang được đặt giữa nhà, đóng vai trò như vách ngăn ước lệ. Phía sau là khu bếp ăn ấm cúng. Điểm hay ở đây là bếp có lối ra sân ướt phía sau (Sân ướt 1.3m), giúp việc sơ chế gà vịt hay rửa dọn cực kỳ thoáng khí, không bị ám mùi vào nhà.
-
Vệ sinh chung (3.5m2): Đặt kín đáo cuối nhà.

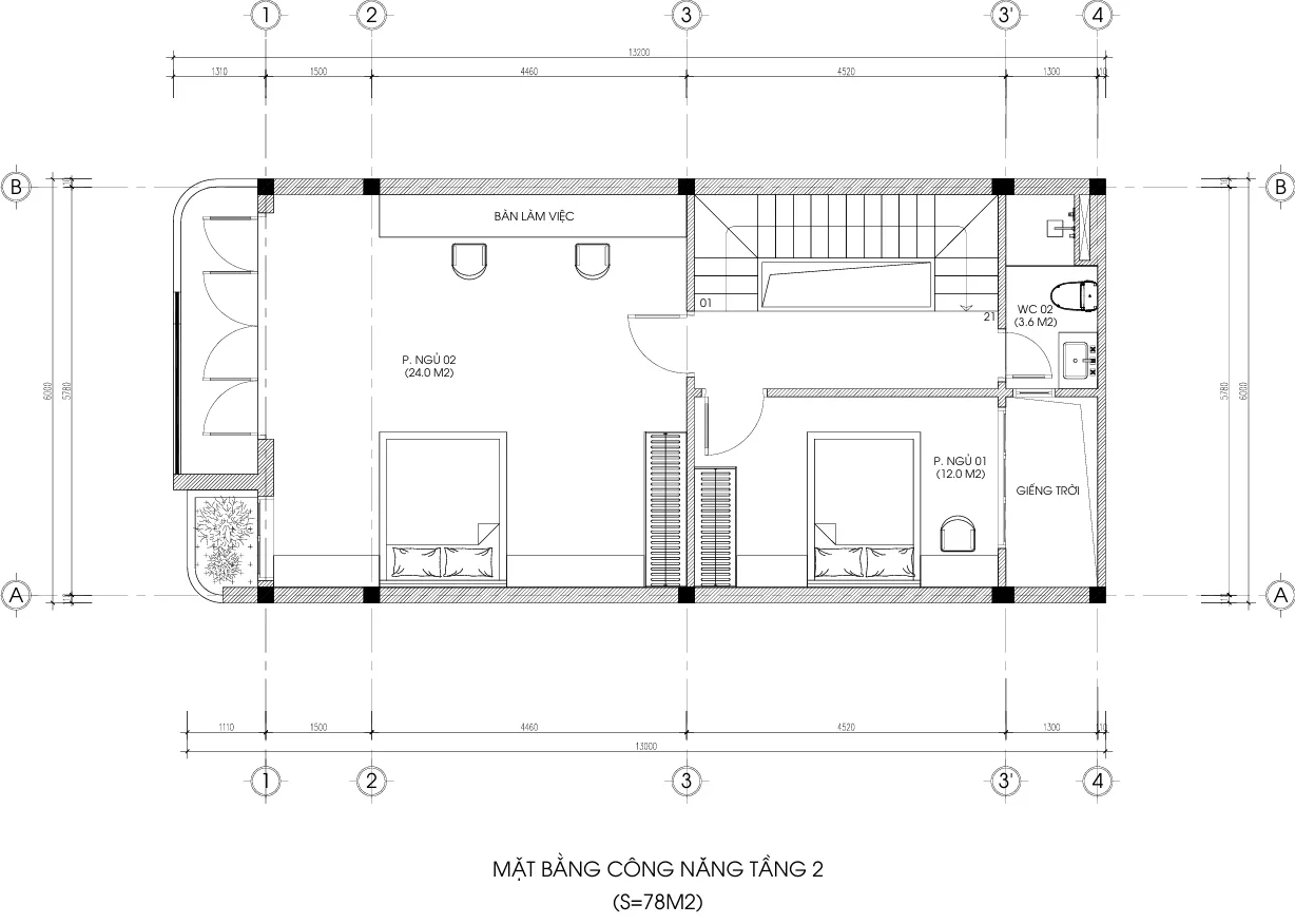
3.2. Tầng 2: Chốn Riêng Tư Và Thư Giãn (Diện tích sàn ~78m2)
Lên đến tầng 2, không gian của mẫu nhà phố 2 tầng 1 tum này được mở rộng hơn nhờ ban công đua ra.
-
Phòng ngủ Master 02 (24m2): Nằm phía trước nhà, sở hữu ban công bo cong tuyệt đẹp. Cửa kính lớn kịch trần giúp đón trọn ánh sáng tự nhiên. Đây là nơi nghỉ ngơi lý tưởng của vợ chồng anh Đạt.
-
Phòng ngủ con 01 (12m2): Nằm phía sau, yên tĩnh, đảm bảo sự tập trung cho việc học tập.
-
Giếng trời: Đây là “lá phổi” của ngôi nhà. Việc bố trí giếng trời cạnh phòng ngủ giúp đối lưu không khí, gió tươi luôn luân chuyển trong thiết kế nhà phố 2 tầng 1 tum này.

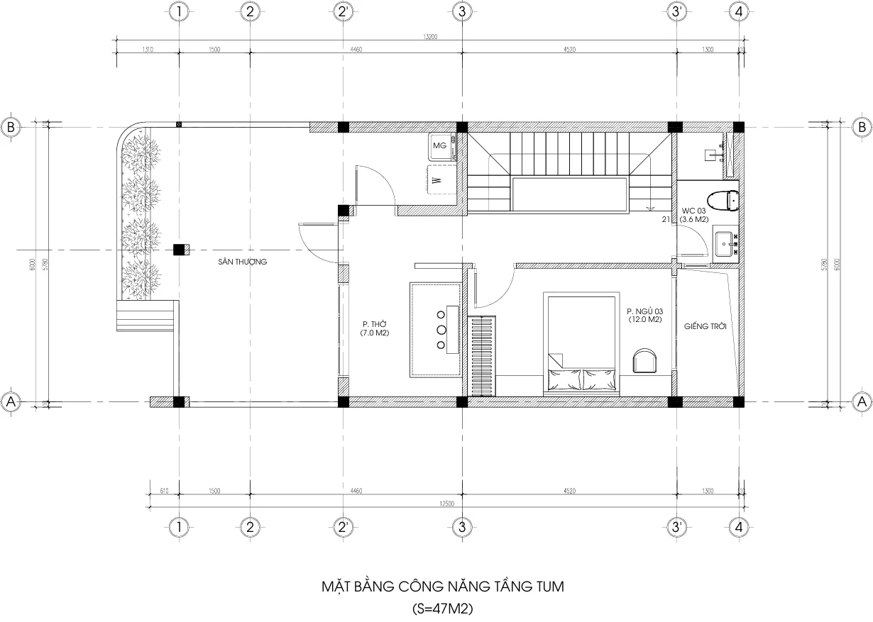
3.3. Tầng Tum: Tâm Linh Và Khoảng Xanh (Diện tích sàn ~47m2)
Tầng tum (hay còn gọi là tầng thượng) là điểm “ăn tiền” của mẫu nhà này.
-
Phòng thờ (7m2): Được đặt ở vị trí trang trọng nhất, hướng ra sân thượng phía trước, đảm bảo yếu tố phong thủy và sự tôn nghiêm.
-
Phòng ngủ 03 (12m2): Một phòng ngủ dự phòng cho khách hoặc cho con lớn sau này.
-
Sân thượng: Khoảng sân thượng phía trước (Sân thông) rộng rãi, được thiết kế lam che nắng nghệ thuật. Anh Đạt có thể đặt bàn trà, trồng giàn hoa giấy, biến nơi đây thành “Sky Bar” tại gia.

4. Giải Mã Sức Hút Của Mẫu Nhà Phố 2 Tầng 1 Tum
Tại sao mẫu thiết kế này lại được nhiều gia đình tại Thanh Hóa và các tỉnh lân cận yêu thích đến vậy? Dưới góc nhìn chuyên môn, tôi xin chỉ ra 3 yếu tố cốt lõi:
4.1. Kiến Trúc Xanh “Thở” Cùng Thiên Nhiên
Nhìn vào phối cảnh, bạn sẽ thấy cây xanh xuất hiện ở mọi nơi: từ bồn hoa ban công tầng 2, giàn dây leo rủ xuống từ tầng tum, cho đến cây lớn ở góc ban công. Nhà phố 2 tầng 1 tum giờ đây không còn là cái lồng kính, mà là một thực thể sống, xanh mát và dễ chịu.
4.2. Vật Liệu Hiện Đại, Bền Bỉ
Techhome sử dụng hệ cửa nhôm kính Xingfa cao cấp cho toàn bộ mặt tiền. Lan can kính cường lực trong suốt giúp “khoe” được đường cong kiến trúc và mở rộng tầm nhìn . Trần ban công ốp gỗ nhựa ngoài trời chịu nước, chống cong vênh, giải quyết triệt để nỗi lo mối mọt của gỗ tự nhiên.
4.3. Tối Ưu Chi Phí Xây Dựng
Với tổng diện tích sàn khoảng 200m2, mẫu nhà phố 2 tầng 1 tum này là lựa chọn kinh tế cho các gia đình trẻ. Kết cấu móng bè hoặc móng băng (tùy địa chất Thọ Xuân) kết hợp với hệ khung cột bê tông cốt thép đảm bảo sự vững chãi trăm năm nhưng chi phí thi công phần thô lại rất hợp lý.

5. Báo Giá Thiết Kế Và Thi Công Nhà Phố 2 Tầng 1 Tum (Tham Khảo 2024-2025)
Đây chắc hẳn là phần bạn quan tâm nhất. Là người làm nghề, Tôi xin chia sẻ bảng giá tham khảo chân thật nhất để bạn dự trù ngân sách cho ngôi nhà phố 2 tầng 1 tum .
Lưu ý: Giá có thể thay đổi tùy thời điểm và giá vật liệu tại địa phương.
5.1. Chi Phí Thiết Kế
Tại Techhome, chúng tôi không “bán bản vẽ”, chúng tôi bán “giải pháp sống”.
-
Gói thiết kế kiến trúc: 100.000đ/m2.
Với căn nhà của anh Đạt (tổng diện tích ~200m2), phí thiết kế trọn bộ hồ sơ chỉ dao động khoảng 20 triệu đồng. Một khoản đầu tư quá nhỏ để đổi lấy sự an tâm tuyệt đối và một ngôi nhà phố 2 tầng 1 tum chuẩn chỉ từng viên gạch.
5.2. Chi Phí Thi Công Trọn Gói (Chìa Khóa Trao Tay)
-
Gói Vật tư Trung bình – Khá: 5.500.000đ – 6.000.000đ/m2 sàn.
-
Tổng chi phí dự kiến: ~1.1 tỷ – 1.2 tỷ đồng.
-
-
Gói Vật tư Khá – Tốt: 6.500.000đ – 7.500.000đ/m2 sàn.
-
Tổng chi phí dự kiến: ~1.3 tỷ – 1.5 tỷ đồng.
-
Bao gồm:
-
Phần thô (Sắt thép Hòa Phát/Việt Úc, Xi măng Bỉm Sơn/Hoàng Thạch, Gạch tuynel…).
-
Điện nước (Dây Cadivi/Trần Phú, Ống Tiền Phong…).
-
Hoàn thiện (Sơn Dulux/Jotun, Gạch ốp lát Prime/Viglacera, Thiết bị vệ sinh Inax/Toto…).
Lời khuyên từ Techhome: Đừng ham rẻ chọn nhà thầu báo giá quá thấp (dưới 5 triệu/m2). Tiền nào của nấy, nhà phố 2 tầng 1 tum là gia sản cả đời, hãy chọn vật liệu tốt cho phần thô và điện nước âm tường để tránh sửa chữa sau này.

6. Tại Sao Nên Chọn Techhome Cho Ngôi Nhà Của Bạn?
Giữa hàng trăm đơn vị thiết kế, tại sao anh Đạt ở Thọ Xuân lại tin tưởng Techhome dù trụ sở chính của chúng tôi ở Hà Nội?
-
Hồ sơ kỹ thuật “siêu” chi tiết: Nhìn vào bản vẽ Techhome cung cấp , bạn sẽ thấy chúng tôi vẽ chi tiết đến từng viên gạch lát nền , từng thanh sắt bảo vệ cửa sổ, từng vị trí ổ cắm điện. Thợ xây nhìn vào là làm được ngay, không cần hỏi lại.
-
Giám sát từ xa hiệu quả: Chúng tôi có quy trình giám sát online và cử kỹ sư về kiểm tra các giai đoạn sắt thép móng, mái. Dù bạn xây nhà phố 2 tầng 1 tum ở Thanh Hóa, Nghệ An hay bất cứ đâu, chất lượng vẫn được đảm bảo.
-
Hỗ trợ trọn đời: Số hotline hỗ trợ kỹ thuật 0364.04.2222 luôn túc trực để giải đáp mọi thắc mắc của chủ nhà và thợ thi công trong suốt quá trình xây dựng.

7. Góc Chuyên Gia: Gợi Ý Nâng Tầm Không Gian Sống
Với tư cách là một người bạn đồng hành, Techhome xin gợi ý thêm vài điểm để ngôi nhà phố 2 tầng 1 tum này trở nên hoàn hảo hơn nữa (những điều này có thể nằm ngoài hồ sơ thiết kế cơ bản):
-
Smart Home (Nhà thông minh): Với chi phí chỉ khoảng 20-30 triệu đồng, bạn có thể lắp hệ thống công tắc thông minh, rèm tự động. Hãy tưởng tượng đi làm về, chỉ cần nói “Về nhà”, đèn phòng khách tự bật, rèm mở ra, điều hòa đã mát rượi. Rất đáng tiền!
-
Hệ thống lọc nước tổng: Nguồn nước ở một số vùng tại Thanh Hóa có thể chưa đảm bảo. Hãy dành một góc nhỏ trên tầng tum (khu vực đặt bồn nước) để lắp hệ thống lọc tổng đầu nguồn. Sức khỏe gia đình là vô giá.
-
Vật liệu ốp cổng: Thay vì dùng cổng sắt sơn tĩnh điện thông thường, hãy thử kết hợp khung sắt với nan gỗ nhựa 2 mặt. Nó sẽ đồng bộ tuyệt đối với trần ban công tầng 2, nâng tầm đẳng cấp cho mặt tiền ngôi nhà phố 2 tầng 1 tum của bạn ngay từ cái nhìn đầu tiên.

Lời Kết
Ngôi nhà phố 2 tầng 1 tum của gia đình anh Đạt tại Thọ Xuân là minh chứng rõ nét cho triết lý thiết kế của Techhome: Đẹp, Tiện nghi và Kinh tế. Một ngôi nhà đẹp không cần phải quá to lớn hay dát vàng, nó chỉ cần được thiết kế bằng cả trái tim, thấu hiểu nhu cầu của người ở và hòa hợp với môi trường xung quanh.
Nếu bạn đang ấp ủ dự định xây dựng tổ ấm, dù là nhà phố 2 tầng 1 tum, biệt thự vườn hay nhà cấp 4, đừng ngần ngại liên hệ với Techhome. Chúng tôi không chỉ vẽ nhà, chúng tôi vẽ nên những giấc mơ!
CÔNG TY CỔ PHẦN KIẾN TRÚC VÀ XÂY DỰNG TECHHOME
-
Hotline/Zalo: 0364 04 2222 / 0387 60 3333
-
Website: https://nhadeptechhome.vn/
- Địa chỉ: B1.1 LK17 ô số 4 – KĐT Thanh Hà, Thanh Oai, Hà Nội
