Nếu bạn đang tìm kiếm một không gian sống vừa hiện đại, tiện nghi lại vừa mang nét đẹp thanh lịch, không bao giờ lỗi mốt thì mẫu nhà 2 tầng mái Nhật chính là “chân ái”. Hôm nay, TechHome xin giới thiệu đến quý khách hàng một siêu phẩm tâm huyết mà chúng tôi vừa hoàn thiện hồ sơ thiết kế thi công cho gia đình anh Đức tại mảnh đất Hà Tĩnh đầy nắng gió.
Đây không chỉ là một bản vẽ, đây là câu chuyện về tổ ấm mơ ước, nơi kết hợp hoàn hảo giữa thẩm mỹ kiến trúc và công năng sử dụng thực tế. Hãy cùng chúng tôi “mổ xẻ” chi tiết công trình này nhé!
1. Tổng quan dự án nhà 2 tầng mái Nhật của anh Đức
Trước khi đi sâu vào chi tiết, mời bạn điểm qua những thông tin cơ bản nhất của dự án này. Việc nắm rõ các thông số sẽ giúp bạn dễ dàng hình dung và áp dụng cho lô đất của chính mình.
| Hạng mục | Thông tin chi tiết |
| Chủ đầu tư |
Anh Đức |
| Địa điểm |
Hà Tĩnh |
| Đơn vị thiết kế |
Công ty Cổ phần Kiến trúc và Xây dựng TechHome |
| Loại hình | Nhà ở gia đình – Nhà 2 tầng mái Nhật |
| Kích thước xây dựng | Khoảng 8m x 13.7m (phủ bì) |
| Công năng tầng 1 | Phòng khách, Bếp ăn, 2 Phòng ngủ, 1 WC chung |
| Công năng tầng 2 | Phòng thờ, Phòng sinh hoạt chung, 2 Phòng ngủ, Sân phơi, Ban công, 1 WC chung |
| Phong cách | Hiện đại, mái Nhật, tông màu trắng – xanh |
Công trình này là minh chứng rõ nét cho thấy nhà 2 tầng mái Nhật đang là xu hướng “quốc dân” tại các vùng quê và thị trấn ở Việt Nam hiện nay.

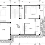
2. Phân tích công năng: Bài toán diện tích và nhu cầu sử dụng
Một ngôi nhà đẹp không chỉ ở cái vỏ bên ngoài, mà quan trọng nhất là “nội thất” bên trong phải bố trí sao cho thuận tiện sinh hoạt. Với mẫu nhà 2 tầng mái Nhật này, các kiến trúc sư của TechHome đã tính toán kỹ lưỡng từng mét vuông.
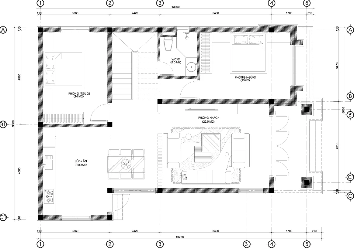
Tầng 1: Không gian kết nối và nghỉ ngơi
Mặt bằng tầng 1 được thiết kế mở, tối ưu hóa sự thông thoáng:
-
Phòng khách (22.5m2): Bước qua sảnh chính là phòng khách rộng rãi. Đây là bộ mặt của gia chủ, nơi anh Đức tiếp đón bạn bè. Diện tích này đủ lớn để kê một bộ sofa hoành tráng và kệ tivi hiện đại.
-
Bếp ăn (20.3m2): Được ngăn cách nhẹ nhàng với phòng khách bằng lam gỗ hoặc vách CNC, khu bếp có cửa phụ đi ra sảnh phụ bên hông. Chi tiết này cực kỳ đắt giá: đi chợ về có thể vào thẳng bếp không cần qua phòng khách, và giúp mùi thức ăn thoát ra ngoài dễ dàng.
-
02 Phòng ngủ: Tầng 1 bố trí 2 phòng ngủ (Phòng ngủ 01: 13m2 và Phòng ngủ 02: 14m2). Việc có phòng ngủ ở tầng 1 trong mẫu nhà 2 tầng mái Nhật là cực kỳ cần thiết nếu gia đình có người lớn tuổi, giúp ông bà hạn chế leo cầu thang.
-
Vệ sinh chung (3.6m2): Đặt kín đáo ở góc, thuận tiện sử dụng chung cho cả tầng.

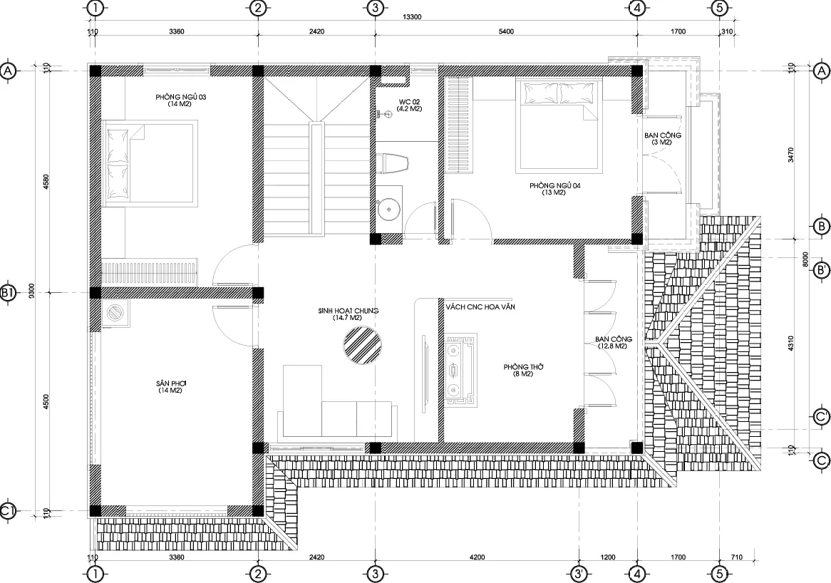
Tầng 2: Không gian riêng tư và tâm linh
Lên đến tầng 2, không gian được chia nhỏ để đảm bảo sự riêng tư:
-
Phòng thờ (8m2): Đặt ở vị trí trang trọng nhất phía trước nhà, hướng ra ban công. Đây là vị trí “tọa cát hướng cát”, mang lại tài lộc và bình an cho gia chủ theo quan niệm phong thủy.
-
Phòng sinh hoạt chung (14.7m2): Nằm ngay sảnh thang đi lên. Đây là nơi cả nhà quây quần xem phim, trò chuyện mỗi tối trước khi đi ngủ, gắn kết tình cảm gia đình.
-
02 Phòng ngủ tiếp theo: Phòng ngủ 03 (14m2) và Phòng ngủ 04 (13m2) dành cho các con hoặc khách đến chơi nhà ngủ lại.
-
Sân phơi (14m2): Khu vực phía sau nhà rộng rãi để giặt giũ, phơi phóng, đảm bảo thẩm mỹ mặt tiền không bị ảnh hưởng bởi quần áo phơi.
Cách bố trí này biến ngôi nhà 2 tầng mái Nhật thành một tổ hợp sống khép kín, đầy đủ, đáp ứng nhu cầu của gia đình từ 4-6 thành viên thoải mái.

3. Phối cảnh ngoại thất: Vẻ đẹp hiện đại, sang trọng mà gần gũi
Ấn tượng đầu tiên khi nhìn vào ngôi nhà của anh Đức chính là sự bề thế nhưng không hề phô trương.
Hệ mái Nhật – Linh hồn của ngôi nhà
Tại sao anh Đức lại chọn nhà 2 tầng mái Nhật thay vì mái Thái hay mái bằng? Câu trả lời nằm ở sự cân đối và tính thực dụng. Hệ mái Nhật (lùn hơn mái Thái một chút) mở rộng ra các hướng, tạo cảm giác che chở, vững chãi. Với khí hậu khắc nghiệt, mưa nắng thất thường ở Hà Tĩnh, độ dốc của mái Nhật giúp thoát nước mưa cực nhanh, đồng thời lớp ngói sóng màu xanh than giúp tản nhiệt, giữ cho tầng 2 luôn mát mẻ vào mùa hè.
Màu sắc và vật liệu mặt tiền
TechHome đã khéo léo phối hợp tông màu trắng sứ chủ đạo với các điểm nhấn màu xanh ghi và ốp đá chân tường.
-
Màu trắng: Giúp ngôi nhà trông sáng sủa, sạch sẽ và “ăn gian” kích thước, tạo cảm giác rộng hơn so với diện tích thực.
-
Màu xanh: Từ hệ mái ngói đến các đường phào chỉ chạy dọc thân nhà tạo nên sự đồng bộ, mát mắt.
-
Vật liệu: Hệ thống cửa chính được làm bằng gỗ Lim Nam Phi kết hợp pano kính, tạo sự sang trọng, bề thế cho mặt tiền. Trong khi đó, hệ thống cửa sổ sử dụng nhôm hệ kính cường lực Xingfa giúp lấy sáng tối đa, không lo cong vênh hay mối mọt dưới thời tiết miền Trung.
Nhìn từ trên cao xuống, ngôi nhà 2 tầng mái Nhật này hiện lên như một biệt thự nghỉ dưỡng thu nhỏ, nổi bật giữa khu dân cư nhưng vẫn rất hài hòa với cảnh quan xung quanh.

4. Tại sao mẫu nhà 2 tầng mái Nhật lại được ưa chuộng đến thế?
Không phải ngẫu nhiên mà anh Đức chốt phương án thiết kế này ngay từ lần trình bày đầu tiên. Dưới đây là những lý do khiến nhà 2 tầng mái Nhật trở thành “ngôi sao” trong làng kiến trúc:
-
Tính thẩm mỹ cao: Hệ mái Nhật có độ dốc vừa phải, đua ra các phía tạo khối kiến trúc cân đối, thanh thoát, không quá cao vút như mái Thái nhưng vẫn đủ bề thế.
-
Phù hợp khí hậu Việt Nam: Mái Nhật thường được thiết kế với lớp ngói không nung hoặc ngói sóng, bên dưới có thể đổ trần bê tông hoặc làm trần thạch cao, tạo ra lớp đệm không khí cách nhiệt tuyệt vời.
-
Chi phí xây dựng hợp lý: So với các mẫu lâu đài cổ điển hay biệt thự mái Thái cầu kỳ, việc thi công nhà 2 tầng mái Nhật thường tiết kiệm chi phí nhân công và vật liệu hơn do ít các chi tiết phào chỉ rườm rà, tập trung vào hình khối phẳng, thẳng.
-
Dễ dàng bố trí công năng: Hình khối vuông vức của nhà mái Nhật giúp việc chia phòng ốc bên trong cực kỳ dễ dàng, không bị các góc chết hay góc méo.

5. Chi tiết kỹ thuật và vật liệu sử dụng
Để ngôi nhà bền đẹp theo thời gian, TechHome luôn chú trọng vào quy cách vật liệu. Trong bản vẽ kỹ thuật của nhà anh Đức, chúng tôi quy định rõ:
-
Cửa đi chính (D1): Sử dụng cửa gỗ Lim Nam Phi, pano kính an toàn dày 8.38mm. Kích thước lọt sáng được tính toán theo thước Lỗ Ban để đón tài lộc (Kích thước cửa 3000x2700mm).
-
Cửa sổ và cửa đi phụ: Sử dụng nhôm hệ (như Xingfa), kính an toàn 6.38mm hoặc 8.38mm. Ưu điểm là kín khít, chống ồn, chống nước tuyệt đối.
-
Gạch lát nền: Sử dụng gạch Granite vân đá kích thước 800x800mm cho phòng khách để tạo sự sang trọng, gạch chống trơn 300x300mm cho nhà vệ sinh để đảm bảo an toàn.
-
Kết cấu: Móng và khung cột bê tông cốt thép chịu lực, đảm bảo sự vững chãi cho ngôi nhà 2 tầng mái Nhật trên nền đất tại Hà Tĩnh.

6. Báo giá thiết kế và thi công nhà 2 tầng mái Nhật (Cập nhật 2024-2025)
Rất nhiều khách hàng khi xem mẫu nhà này đều thắc mắc: “Để xây được ngôi nhà 2 tầng mái Nhật đẹp như thế này thì cần bao nhiêu tiền?”. TechHome xin đưa ra bảng báo giá tham khảo để quý khách dự trù ngân sách.
(Lưu ý: Giá cả có thể thay đổi tùy thuộc vào thời điểm, vị trí địa lý, giá vật liệu tại địa phương và yêu cầu cụ thể của gia chủ)
6.1. Chi phí thiết kế kiến trúc
Để có một bộ hồ sơ “chất như nước cất” như của anh Đức (bao gồm kiến trúc, kết cấu, điện nước, 3D ngoại thất, bổ kỹ thuật chi tiết…), mức giá thị trường hiện nay dao động:
-
Đơn giá: 100.000đ/m2.
-
Với nhà anh Đức: Tổng diện tích sàn khoảng 230m2 (2 tầng), chi phí thiết kế trọn gói sẽ rơi vào khoảng 23 triệu đồng. Đây là khoản đầu tư nhỏ nhưng cực kỳ quan trọng để tránh lãng phí tiền tỷ khi xây dựng sai sót.
6.2. Chi phí thi công xây dựng trọn gói
Đối với mẫu nhà 2 tầng mái Nhật phong cách hiện đại, mức đầu tư được chia thành các gói:
-
Gói xây thô và nhân công hoàn thiện: 4.000.000đ – 4.500.000đ/m2.
-
Ước tính: Khoảng 900 triệu – 1,1 tỷ đồng.
-
-
Gói chìa khóa trao tay (Vật tư trung bình khá): 6.500.000đ – 7.500.000đ/m2.
-
Ước tính: Khoảng 1.5 tỷ – 1.8 tỷ đồng.
-
Bảng vật tư tham khảo cho gói chìa khóa trao tay:
-
Sắt thép: Hòa Phát, Việt Nhật.
-
Xi măng: Hoàng Thạch, Bỉm Sơn.
-
Gạch xây: Gạch tuynel nhà máy loại A.
-
Cửa nhôm: Xingfa nhập khẩu Quảng Đông tem đỏ.
-
Sơn: Dulux hoặc Jotun (bả matit 2 lớp, sơn lót 1 lớp, sơn phủ 2 lớp).
-
Thiết bị vệ sinh: Inax hoặc Toto dòng trung cấp.
Lưu ý: Nếu quý khách tự quản lý vật tư và thuê nhân công, chi phí có thể giảm xuống đôi chút, nhưng sẽ tốn rất nhiều thời gian và công sức quản lý. Việc xây dựng một ngôi nhà 2 tầng mái Nhật đòi hỏi kỹ thuật xử lý mái khéo léo, nên việc chọn nhà thầu uy tín là yếu tố sống còn.

7. Quy trình làm việc tại TechHome
Để hoàn thiện được bộ hồ sơ cho anh Đức, chúng tôi đã trải qua quy trình 6 bước chặt chẽ:
-
Tiếp nhận thông tin: Lắng nghe mong muốn xây nhà 2 tầng mái Nhật của anh Đức.
-
Khảo sát hiện trạng: Đội ngũ KTS về tận Hà Tĩnh đo đạc đất, xem hướng gió, hướng nắng.
-
Lên phương án mặt bằng: Bố trí công năng (như đã phân tích ở phần 3).
-
Dựng phối cảnh 3D: Giúp anh Đức nhìn thấy ngôi nhà tương lai của mình “bằng xương bằng thịt” trên máy tính.
-
Triển khai hồ sơ kỹ thuật: Hàng trăm bản vẽ chi tiết từ móng, cột, dầm, điện, nước, đến từng viên gạch lát nền.
-
Bàn giao và giám sát: Hỗ trợ giải đáp thắc mắc cho thợ xây trong suốt quá trình thi công qua Hotline: 0364.04.2222.
8. Kinh nghiệm xây nhà 2 tầng mái Nhật đẹp và tiết kiệm
Là những người làm nghề, TechHome muốn chia sẻ vài lời khuyên “ruột gan” cho các bạn:
-
Đừng tham chi tiết: Với nhà 2 tầng mái Nhật, vẻ đẹp đến từ tỷ lệ hình khối. Đừng đắp quá nhiều phào chỉ hoa văn rối mắt, vừa tốn tiền nhân công, vừa nhanh lỗi mốt và khó vệ sinh.
-
Chú trọng phần mái: Độ dốc mái Nhật thấp hơn mái Thái, nên việc thi công ngói phải cực kỳ cẩn thận để tránh dột/thấm ngược khi mưa lớn kèm gió. Hãy yêu cầu thợ làm khung kèo thép nhẹ mạ kẽm để đảm bảo độ bền.
-
Ánh sáng là then chốt: Hãy tận dụng cửa kính lớn. Ngôi nhà nhiều ánh sáng tự nhiên sẽ luôn mang lại sinh khí tốt.
-
Dự trù phát sinh: Luôn chuẩn bị thêm 10-15% ngân sách dự phòng. Xây nhà là việc lớn, không tránh khỏi những ý tưởng mới nảy sinh trong quá trình làm.

9. Lời kết
Ngôi nhà 2 tầng mái Nhật của anh Đức tại Hà Tĩnh là một ví dụ điển hình cho xu hướng kiến trúc hiện đại: Đẹp – Bền – Tiện Nghi. Nó không cần phải là tòa lâu đài nguy nga, nhưng nó là tổ ấm bình yên, vững chãi mà ai đi xa cũng muốn trở về.
Cảm ơn anh Đức đã tin tưởng giao phó trọng trách kiến tạo không gian sống cho TechHome. Sự hài lòng của anh khi cầm trên tay bộ hồ sơ thiết kế chính là động lực lớn nhất của chúng tôi.
Nếu bạn cũng đang ấp ủ dự định xây một ngôi nhà 2 tầng mái Nhật cho riêng mình, hay bất kỳ mẫu nhà nào khác, đừng ngần ngại liên hệ với TechHome. Chúng tôi không chỉ vẽ nhà, chúng tôi vẽ nên những giấc mơ.
Đừng để ngôi nhà mơ ước chỉ nằm trong suy nghĩ! Hãy để TechHome hiện thực hóa nó ngay hôm nay.
LIÊN HỆ TƯ VẤN THIẾT KẾ & THI CÔNG TRỌN GÓI
CÔNG TY CỔ PHẦN KIẾN TRÚC VÀ XÂY DỰNG TECHHOME
-
Hotline/Zalo: 0364.04.2222 – 0387.60.3333
- Xem thêm các dự án nổi bật khác của Techhome tại https://nhadeptechhome.vn/
Bạn muốn nhận báo giá chi tiết cho mẫu nhà 2 tầng mái Nhật kích thước đất của bạn? Hãy gọi ngay hoặc để lại tin nhắn, KTS của chúng tôi sẽ tư vấn miễn phí 24/7!
