Nếu ví ngôi nhà là một bản nhạc, thì mẫu thiết kế biệt thự nhà vườn mái Nhật của gia đình anh Hải (Tiền Hải – Thái Bình) chính là một nốt trầm xao xuyến, nơi sự hiện đại hòa quyện cùng nét bình dị của làng quê Bắc Bộ. Không phô trương, cầu kỳ, công trình là minh chứng rõ nét cho xu hướng kiến trúc “chữa lành” mà Techhome đang theo đuổi.
Trong bài viết này, hãy cùng Kiến trúc Techhome phân tích sâu hơn về giải pháp thiết kế biệt thự nhà vườn mái Nhật này, từ công năng, thẩm mỹ cho đến bảng dự toán chi phí chi tiết nhất năm 2025.
1. Tổng Quan Công Trình Nhà Vườn Mái Nhật Tại Thái Bình
Trước khi đi vào chi tiết, Techhome xin gửi đến quý khách hàng bảng thông tin tóm tắt của dự án để tiện theo dõi:
Chủ đầu tư: Anh Hải
Địa điểm xây dựng : Tiền Hải – Thái Bình
Loại hình kiến trúc : Nhà ở gia đình / Biệt thự vườn 1 tầng
Phong cách thiết kế : Kiến trúc Hiện đại – Hệ mái Nhật (Mái lùn)
Đơn vị thiết kế : Công ty Cổ phần Kiến trúc và Xây dựng Techhome
Công năng chính : 1 Phòng khách, 1 Phòng thờ, 1 bếp ăn, 4 Phòng ngủ (1 khép kín), WC chung.
Dự án này là một bài toán thú vị mà anh Hải đặt ra cho đội ngũ Techhome: Làm sao để thiết kế biệt thự nhà vườn mái Nhật trên khuôn viên đất có ao hồ, vừa đảm bảo 4 phòng ngủ cho gia đình đông thành viên, vừa giữ được sự thông thoáng tối đa?

2. Câu Chuyện Thiết Kế: Khi “Hồn” Quê Gặp Gỡ Kiến Trúc Hiện Đại
Thái Bình – mảnh đất của những cánh đồng lúa bạt ngàn và gió biển mặn mòi. Khi tiếp nhận yêu cầu từ anh Hải, chúng tôi nhận thấy khu đất xây dựng có đặc điểm rất đặc trưng: Phía bên cạnh giáp một ao nước lớn. Đây vừa là thách thức về nền móng, nhưng lại là “mỏ vàng” về phong thủy và vi khí hậu nếu biết cách tận dụng.
Thay vì xây dựng những tòa nhà cao tầng chót vót, KTS đã tư vấn cho gia chủ phương án thiết kế biệt thự nhà vườn mái Nhật 1 tầng. Lý do rất đơn giản: Nhà 1 tầng giúp gắn kết các thành viên trong gia đình tốt hơn, đồng thời hệ mái Nhật có độ dốc vừa phải giúp công trình không bị “lọt thỏm” giữa không gian sân vườn rộng lớn, mà ngược lại, nó tạo thế “tựa sơn đạp thủy” vững chãi.
Vẻ Đẹp Ngoại Thất: Tinh Tế Trong Từng Đường Nét
Nhìn vào phối cảnh 3D, bạn sẽ thấy ngôi nhà khoác lên mình màu sơn trắng sứ chủ đạo. Đây là gam màu “kinh điển”, không bao giờ lỗi mốt và làm nền hoàn hảo để tôn lên màu xanh than của hệ mái Nhật.
-
Hệ mái Nhật (Mái lùn): Khác với mái Thái cao vút, thiết kế biệt thự nhà vườn mái Nhật của anh Hải có độ dốc nhẹ hơn, mở rộng ra các hướng khác nhau. Điều này không chỉ giúp thoát nước mưa tốt (phù hợp khí hậu nhiệt đới gió mùa tại Thái Bình) mà còn tạo cảm giác cân bằng, thanh thoát.
-
Hệ cột và sảnh đón: Hai cột sảnh chính vuông vức, ốp đá phần chân tạo sự bề thế, vững chãi. Bậc tam cấp được tính toán theo thước Lỗ Ban (Sinh – Lão – Bệnh – Tử) để đón tài lộc vào nhà.
-
Vật liệu hiện đại: Toàn bộ hệ thống cửa sử dụng nhôm kính Xingfa (hoặc tương đương). Kính cường lực giúp lấy sáng tự nhiên tối đa, ngồi trong phòng khách hay phòng ngủ đều có thể ngắm nhìn khu vườn và ao cá bên ngoài. Chân tường được ốp đá rối màu sẫm, vừa thẩm mỹ vừa bảo vệ tường khỏi rêu mốc, nồm ẩm.

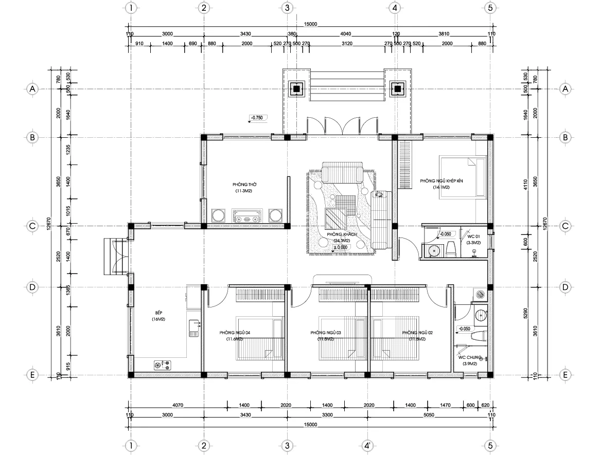
3. Phân Tích Mặt Bằng Công Năng: Bài Toán 4 Phòng Ngủ
Điểm đắt giá nhất trong bản vẽ thiết kế biệt thự nhà vườn mái Nhật này chính là cách bố trí công năng cực kỳ khoa học trên diện tích sàn khoảng 160m2 (Kích thước trục 15m x 12.67m ).
Dựa trên hồ sơ kỹ thuật thi công, chúng ta có một bố cục “tụ khí” như sau:
-
Đại sảnh dẫn vào Phòng khách ( 24.3m2) : Đây là trung tâm của ngôi nhà, nơi kết nối các không gian còn lại.
-
Phòng Thờ (11.3m2): Được đặt trang trọng ngay cạnh phòng khách, hướng nhìn ra mặt tiền. Trong văn hóa người Việt, vị trí này thể hiện lòng thành kính với gia tiên. Việc tách biệt phòng thờ nhưng vẫn nằm ở mặt trước giúp không gian thờ cúng vừa ấm cúng, vừa thoáng đãng.
-
Hệ thống 4 Phòng ngủ: Đây là yêu cầu kiên quyết của anh Hải để đảm bảo chỗ ngủ cho cả gia đình 3 thế hệ.
-
Phòng ngủ 01 (Khép kín – 14.1m2): Dành cho gia chủ, có nhà vệ sinh riêng (WC 01 – 3.3m2) đảm bảo sự riêng tư.
-
Phòng ngủ 02 (11.6m2), Phòng ngủ 03 (11.5m2), Phòng ngủ 04 (11.6m2): Được bố trí khoa học, tận dụng các mặt thoáng để mở cửa sổ.
-
-
Khu vực Bếp & Ăn: Một điểm tinh tế trong thiết kế này là khu bếp không nằm trực diện trong khối nhà chính. Được đặt bên hông nhà với diện tích 16m2.

4. Tại Sao Nên Chọn Thiết Kế Biệt Thự Nhà Vườn Mái Nhật Của Techhome?
Giữa hàng trăm đơn vị thiết kế, tại sao anh Hải tại Thái Bình lại tin tưởng Techhome?
-
Hồ sơ kỹ thuật chi tiết đến từng “chân tơ kẽ tóc”: Bạn có thể thấy, từ bản vẽ mặt bằng, mặt đứng, mặt cắt cho đến chi tiết lát sàn, chi tiết cửa, chi tiết vệ sinh,… đều được Techhome thể hiện rõ ràng. Điều này giúp thợ xây (dù là thợ quê) cũng dễ dàng đọc hiểu và thi công chính xác.
-
Tối ưu chi phí: Thiết kế biệt thự nhà vườn mái Nhật 1 tầng giúp tiết kiệm chi phí làm móng và nhân công leo tầng so với nhà cao tầng.
-
Hỗ trợ kỹ thuật 24/7: Trên mỗi bản vẽ đều có hotline hỗ trợ kỹ thuật: 0364042222 – 0387603333. Chúng tôi không chỉ bán bản vẽ, chúng tôi đồng hành cùng bạn đến khi “tân gia”.

5. Báo Giá Thiết Kế Và Thi Công Biệt Thự Nhà Vườn Mái Nhật (Cập Nhật 2025)
Rất nhiều khách hàng thắc mắc: “Xây một ngôi nhà đẹp như của anh Hải hết bao nhiêu tiền?”. Dưới đây, Techhome xin đưa ra bảng dự toán tham khảo dựa trên mức giá thị trường xây dựng năm 2025 tại khu vực Thái Bình và các tỉnh lân cận.
(Lưu ý: Đây là mức giá ước tính, giá thực tế phụ thuộc vào thời điểm mua vật liệu, vị trí đất và loại vật liệu gia chủ chọn).
5.1. Chi Phí Thiết Kế
Đối với gói thiết kế biệt thự nhà vườn mái Nhật, đơn giá thiết kế kiến trúc hiện nay 100.000đ/m2.
Với diện tích sàn khoảng 160m2, chi phí thiết kế trọn bộ hồ sơ (Kiến trúc, Kết cấu, Điện nước, 3D) sẽ khoảng: 16.000.000đ
5.2. Dự Toán Chi Phí Xây Dựng (Diện tích ~160m2)
| Hạng mục | Đơn giá tham khảo (VNĐ/m2) | Thành tiền ước tính (VNĐ) | Diễn giải |
| Xây thô + Nhân công | 3.800.000 – 4.200.000 | ~ 608.000.000 – 670.000.000 | Bao gồm: Móng, khung cột, xây trát, mái ngói, điện nước âm tường. |
| Gói hoàn thiện cơ bản | 5.500.000 – 6.000.000 | ~ 880.000.000 – 960.000.000 | Bao gồm: Sơn bả, gạch ốp lát, thiết bị vệ sinh cơ bản, cửa nhôm kính, trần thạch cao. |
| Gói hoàn thiện cao cấp | > 7.000.000 | > 1.100.000.000 | Sử dụng gỗ tự nhiên, thiết bị vệ sinh nhập khẩu, đá ốp cao cấp,… |
Tổng mức đầu tư dự kiến cho ngôi nhà này (chìa khóa trao tay mức khá): Khoảng 1,1 tỷ – 1,3 tỷ đồng.
Đây là một mức giá cực kỳ hợp lý cho một không gian sống đẳng cấp, tiện nghi với 4 phòng ngủ.

6. Lời Khuyên Của Chuyên Gia Khi Xây Nhà Vườn Mái Nhật
Là người đã “thổi hồn” vào bản vẽ thiết kế biệt thự nhà vườn mái Nhật này, tôi muốn chia sẻ thêm một vài lưu ý nhỏ nhưng quan trọng:
-
Đừng tham chi tiết: Mái Nhật đẹp ở sự thanh thoát. Đừng đắp quá nhiều phào chỉ rườm rà như kiến trúc Cổ điển, sẽ khiến ngôi nhà bị nặng nề và “kém sang”.
-
Chú trọng độ dốc mái: Mái Nhật có độ dốc thấp hơn mái Thái (thường < 40 độ). Nếu thợ thi công không có kinh nghiệm, làm mái quá dốc sẽ biến thành mái Thái, hoặc quá bằng sẽ gây đọng nước. Hãy tuân thủ đúng bản vẽ mặt cắt mái mà Techhome đã cung cấp.
-
Phong thủy phòng thờ: Như trong thiết kế của anh Hải, phòng thờ nhìn thẳng ra hướng cửa chính là “tọa cát hướng cát”. Tuy nhiên, cần lưu ý không để bàn thờ tựa lưng vào tường nhà vệ sinh. (Trong bản vẽ này, Techhome đã khéo léo xử lý: Phòng thờ tựa lưng vào Phòng ngủ 04, hoàn toàn hợp lý ).

7. Kết Luận
Công trình của anh Hải tại Tiền Hải – Thái Bình không chỉ là một ngôi nhà, đó là tổ ấm, là nơi để trở về sau những bộn bề lo toan. Mẫu thiết kế biệt thự nhà vườn mái Nhật này thực sự là giải pháp hoàn hảo cho những gia đình yêu thích sự bình yên, tiện nghi và thẩm mỹ tinh tế.
Nếu bạn đang sở hữu một mảnh đất ở quê và ấp ủ giấc mơ về một ngôi nhà vườn như thế, đừng ngần ngại liên hệ với Techhome. Chúng tôi không chỉ vẽ nhà, chúng tôi vẽ nên những giấc mơ.
Mọi thông tin chi tiết xin vui lòng liên hệ:
CÔNG TY CỔ PHẦN KIẾN TRÚC VÀ XÂY DỰNG TECHHOME
-
Hotline Tư Vấn Kỹ Thuật: 0364042222 – 0387603333
- Xem thêm các dự án nổi bật khác của Techhome tại https://nhadeptechhome.vn/
- Địa chỉ: B1.1 LK17 ô số 4 – KĐT Thanh Hà, Thanh Oai, Hà Nội
