Giữa bộn bề của cuộc sống hiện đại, xu hướng tìm về những giá trị bình yên, gần gũi đang lên ngôi mạnh mẽ. Không cần những tòa nhà cao tầng chọc trời hay biệt thự cầu kỳ xa hoa, một ngôi nhà vườn tinh tế, công năng khoa học mới là “trạm sạc năng lượng” lý tưởng nhất. Thấu hiểu điều đó, thiết kế nhà cấp 4 mái Nhật đang trở thành lựa chọn hàng đầu của nhiều gia chủ tại Việt Nam.
Hôm nay, Kiến trúc Techhome xin mời quý khách hàng cùng “ghé thăm” công trình tâm huyết mà chúng tôi vừa bàn giao hồ sơ cho gia đình anh Lăng tại mảnh đất Hải Dương hiếu khách. Đây không chỉ là một bản vẽ, đó là câu chuyện về tổ ấm mơ ước được hiện thực hóa.
1. Cơ duyên và bài toán thiết kế từ gia chủ
Anh Lăng tìm đến Techhome vào một ngày đẹp trời với mong muốn rất đỗi giản dị nhưng cũng đầy trăn trở. Sở hữu mảnh đất tại Hải Dương, anh muốn xây dựng một ngôi nhà không quá phô trương nhưng phải thật sự “chất”. Anh chia sẻ: “Anh thích sự đơn giản, hiện đại nhưng nhìn vào phải thấy sang. Quan trọng nhất là bố trí phòng ốc phải hợp lý để các con có không gian riêng, mà cả nhà vẫn có chỗ quây quần ấm cúng.”
Sau khi khảo sát thực địa và lắng nghe tâm tư của anh, đội ngũ kiến trúc sư (KTS) Techhome đã tư vấn phương án thiết kế nhà cấp 4 mái Nhật. Đây là giải pháp “vàng” giúp cân bằng giữa thẩm mỹ ngoại thất và công năng sử dụng, lại cực kỳ phù hợp với khí hậu miền Bắc.

2. Vẻ đẹp ngoại thất: Sự giao thoa giữa hiện đại và truyền thống
Nhìn vào phối cảnh mặt tiền, ấn tượng đầu tiên chính là hệ mái Nhật màu xanh than đầy uy quyền nhưng cũng rất đỗi thanh lịch. Không nhọn và dốc gắt như mái Thái, thiết kế nhà cấp 4 mái Nhật có độ dốc vừa phải, mở rộng ra các hướng, tạo cảm giác che chở, vững chãi cho ngôi nhà.
Hình khối kiến trúc khỏe khoắn
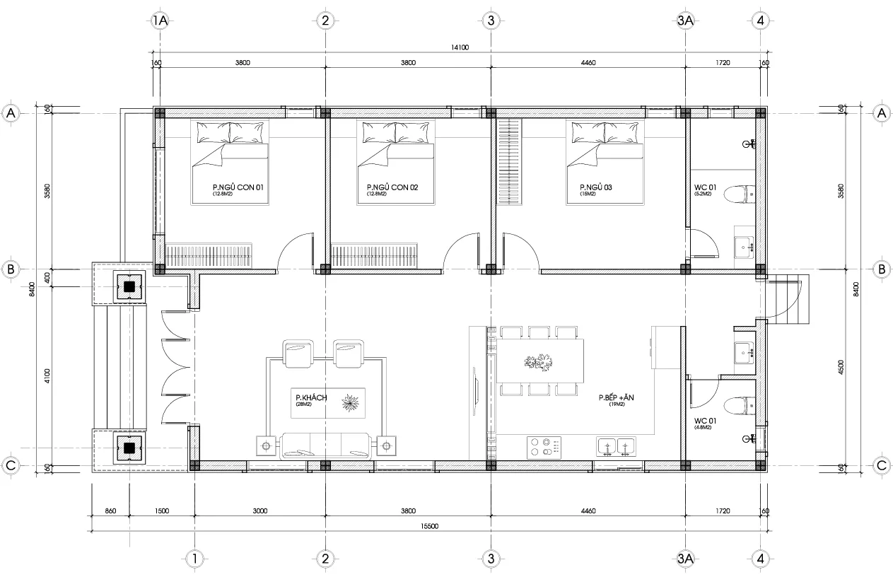
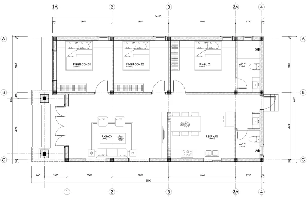
Ngôi nhà được thiết kế trên hệ trục kích thước xây dựng khoảng 8.4m x 15.5m, một tỉ lệ vàng cho các mẫu nhà sân vườn. Techhome đã khéo léo sử dụng tông màu trắng sứ làm chủ đạo cho các mảng tường. Màu trắng không bao giờ lỗi mốt, lại làm nền hoàn hảo để tôn lên các đường kẻ chỉ lõm chạy ngang thân nhà, tạo hiệu ứng thị giác giúp ngôi nhà trông rộng hơn và bớt đơn điệu.
Phần chân tường được ốp đá thẻ màu ghi xám. Đây là một chi tiết nhỏ nhưng thể hiện sự tinh tế của người thiết kế. Ở vùng quê hay ngoại thành, chân tường rất dễ bị bẩn do mưa bắn hoặc rêu mốc. Lớp đá ốp này vừa giúp bảo vệ công trình bền bỉ theo thời gian, vừa tạo điểm nhấn vững chãi cho tổng thể khối đế.
Hệ thống cửa và ánh sáng
Để tối ưu hóa ánh sáng tự nhiên cho một mẫu thiết kế nhà cấp 4 mái Nhật, chúng tôi sử dụng toàn bộ hệ thống cửa nhôm kính Xingfa cao cấp
-
Cửa chính: Là loại cửa 4 cánh mở quay, kết hợp kính cường lực an toàn, mang lại vẻ bề thế cho mặt tiền
-
Cửa sổ: Được bố trí dày đặc quanh các mặt thoáng của ngôi nhà. Kích thước cửa sổ lớn giúp gió trời lưu thông, đối lưu không khí cực tốt. Sống trong ngôi nhà này, gia đình anh Lăng sẽ hiếm khi phải bật đèn vào ban ngày.

3. “Mổ xẻ” công năng: Khi sự tiện nghi lên ngôi
Nếu ngoại thất là chiếc áo đẹp, thì nội thất và công năng chính là linh hồn của ngôi nhà. Với diện tích sàn sử dụng thoải mái, phương án thiết kế nhà cấp 4 mái Nhật của anh Lăng được Techhome bố trí như sau
Phòng khách – Trái tim của ngôi nhà
Bước qua sảnh chính và bậc tam cấp bề thế, chúng ta tiến vào phòng khách rộng rãi với diện tích khoảng 28m2 . Đây là không gian trang trọng nhất để gia chủ đón tiếp bạn bè. Cách bố trí vuông vức giúp anh Lăng dễ dàng kê bộ sofa gỗ sồi lớn và kệ tivi hiện đại mà lối đi vẫn thênh thang.
Phòng bếp và ăn – Nơi giữ lửa yêu thương
Liên thông với phòng khách nhưng vẫn giữ được sự riêng tư cần thiết là khu vực Bếp + Ăn. Trong các mẫu thiết kế nhà cấp 4 mái Nhật hiện đại, Techhome luôn ưu tiên không gian mở. Tuy nhiên, ở công trình này, KTS đã khéo léo đặt bếp lùi về phía sau, có cửa phụ đi ra sân ướt bên hông.
Điều này cực kỳ quan trọng trong nếp sống người Việt: khi nhà có giỗ chạp hay mua thực phẩm tươi sống về, các bà các mẹ có thể đi lối cửa phụ vào bếp sơ chế mà không cần xách đồ đi ngang qua phòng khách, giữ cho nhà cửa luôn sạch sẽ, lịch sự.
Không gian nghỉ ngơi riêng tư
Điểm đắt giá nhất của bản vẽ này chính là sự phân chia không gian tĩnh và động. 03 phòng ngủ được bố trí chạy dọc theo một bên nhà, tách biệt hẳn với khu vực sinh hoạt chung.
-
Phòng ngủ 01 và 02: Dành cho các con, diện tích vừa vặn (12.8m2), đủ để bố trí giường, tủ quần áo và bàn học. Cửa sổ lớn giúp các bé luôn có ánh sáng tự nhiên để học tập.
-
Phòng ngủ 03 (Master): Dành cho vợ chồng anh Lăng, có diện tích lớn hơn và đặc biệt là có nhà vệ sinh khép kín (WC 01) bên trong, đảm bảo sự riêng tư tuyệt đối.
Khu vực vệ sinh
Ngoài WC khép kín trong phòng ngủ Master, ngôi nhà còn có 01 WC chung (4.8m2) đặt ở vị trí cuối hành lang, gần bếp. Cách bố trí này rất khoa học: khách đến chơi nhà có thể sử dụng dễ dàng mà không ảnh hưởng đến không gian ngủ nghỉ của gia chủ. Cả hai nhà vệ sinh đều được thiết kế phân khu khô – ướt, sử dụng vách kính tắm đứng hiện đại.

4. Tại sao lại là “Thiết kế nhà cấp 4 mái Nhật”?
Nhiều khách hàng hỏi Techhome: “Tại sao dạo này đi đâu cũng thấy người ta xây mái Nhật?”. Câu trả lời nằm ở tính ưu việt của nó, đặc biệt là với mẫu thiết kế nhà cấp 4 mái Nhật của anh Lăng:
-
Thẩm mỹ hài hòa: Mái Nhật không quá cao như mái Thái, độ dốc vừa phải giúp tiết kiệm chi phí thi công (ít vật liệu ngói và xà gồ hơn) nhưng vẫn đảm bảo thoát nước mưa cực nhanh, chống thấm dột tuyệt đối cho trần nhà.
-
Chống nóng hiệu quả: Với kết cấu mái ngói, bên dưới là lớp không khí đệm và trần thạch cao/bê tông, ngôi nhà luôn mát mẻ vào mùa hè. Đây là yếu tố sống còn với khí hậu nắng nóng khắc nghiệt của miền Bắc.
-
Linh hoạt trong phong cách: Thiết kế nhà cấp 4 mái Nhật dễ dàng kết hợp với nhiều phong cách từ cổ điển, tân cổ điển đến hiện đại. Ở công trình nhà anh Lăng, đó là nét đẹp hiện đại, phóng khoáng.

5. Chi tiết kỹ thuật: Sự chỉn chu trong từng nét vẽ
Techhome không chỉ vẽ đẹp, chúng tôi vẽ để thi công. Trong bộ hồ sơ bàn giao cho anh Lăng, từng chi tiết nhỏ đều được tính toán kỹ lưỡng:
-
Kết cấu mái: Sử dụng xà gồ hợp kim nhôm siêu nhẹ. Đây là công nghệ mới giúp giảm tải trọng lên móng nhà, đồng thời chống rỉ sét vĩnh viễn, bền bỉ hơn hẳn so với khung sắt hộp truyền thống.
-
Chiều cao thông thủy: Chiều cao từ cốt nền hoàn thiện đến trần là 3.9m. Đây là chiều cao lý tưởng để ngôi nhà luôn thoáng đãng, tránh cảm giác bí bách thường thấy ở các căn hộ chung cư thấp trần.
-
Hệ thống điện nước: Được bố trí khoa học, với các vị trí đèn downlight, đèn hắt trần được định vị chính xác trên bản vẽ trần đèn, giúp thợ thi công dễ dàng lắp đặt mà không phải “vừa làm vừa mò”.

6. Báo giá thiết kế và thi công nhà cấp 4 mái Nhật (Tham khảo)
Rất nhiều quý khách hàng khi xem mẫu thiết kế nhà cấp 4 mái Nhật đẹp như nhà anh Lăng đều thắc mắc về chi phí. Techhome xin gửi đến bảng báo giá tham khảo
(Lưu ý: Giá thực tế có thể thay đổi tùy vào thời điểm, vị trí địa lý và vật liệu gia chủ lựa chọn).
Bảng dự toán chi phí xây dựng (Đơn vị: VNĐ)
| Hạng mục | Đơn giá tham khảo | Diễn giải |
| 1. Thiết kế kiến trúc | 100.000đ/m2 | Bao gồm: Bản vẽ 3D, Kiến trúc, Kết cấu, Điện nước. |
| 2. Thi công phần thô | 3.800.000 – 4.200.000đ/m2 | Bao gồm: Móng, bể nước, khung cột, xây tường, trát, mái ngói, điện nước âm tường. |
| 3. Thi công trọn gói | 6.000.000 – 7.000.000đ/m2 | “Chìa khóa trao tay”. Bao gồm phần thô + ốp lát, sơn bả, cửa, thiết bị vệ sinh cơ bản. |
| 4. Chi phí mái Nhật | Tính theo hệ số mái | Mái ngói khung kèo thép siêu nhẹ hoặc đổ bê tông dán ngói (tùy lựa chọn). |
Ví dụ: Với ngôi nhà anh Lăng diện tích khoảng 130m2 sàn sử dụng + diện tích mái đua, tổng chi phí hoàn thiện cơ bản (chưa bao gồm nội thất rời như bàn ghế, giường tủ) sẽ dao động trong khoảng từ 900 triệu đến 1.1 tỷ đồng. Đây là mức đầu tư cực kỳ hợp lý cho một cơ ngơi khang trang, bền đẹp.
Lưu ý: Để có bảng báo giá chính xác nhất cho khu đất của mình, quý khách hãy gọi ngay Hotline: 0364.04.2222 để KTS Techhome bóc tách khối lượng chi tiết.

7. Góc chia sẻ: Kinh nghiệm xương máu khi xây nhà cấp 4
Là đơn vị thực chiến hàng trăm công trình, Techhome muốn chia sẻ với các bạn vài kinh nghiệm khi chọn thiết kế nhà cấp 4 mái Nhật:
-
Đừng ham rẻ phần móng: Nhà cấp 4 tuy thấp tầng nhưng phần móng cực kỳ quan trọng để tránh nứt tường sau này. Hãy yêu cầu khảo sát địa chất kỹ.
-
Chú trọng độ đua của mái: Mái Nhật đẹp ở phần “bay”. Độ đua mái nên từ 60cm – 80cm để che nắng mưa tốt và tạo dáng nhà đẹp.
-
Lựa chọn màu ngói: Nếu mệnh Thủy hoặc Kim như anh Lăng, ngói màu xanh than là tuyệt vời. Nếu mệnh Hỏa/Thổ, có thể cân nhắc ngói đỏ hoặc nâu. Màu sắc hợp phong thủy giúp gia chủ an tâm, làm ăn phát đạt.
8. Tại sao anh Lăng và hàng ngàn khách hàng chọn Techhome?
Không phải ngẫu nhiên mà bản vẽ thiết kế nhà cấp 4 mái Nhật được anh Lăng chốt phương án ngay từ lần đầu tiên. Tại Techhome, chúng tôi cam kết:
-
Tư vấn tận tâm: Coi nhà khách hàng như nhà mình.
-
Bản vẽ chính xác: Hồ sơ chi tiết, thợ quê nhìn vào cũng thi công được ngay.
-
Hỗ trợ trọn đời: Giải đáp thắc mắc kỹ thuật 24/7 trong suốt quá trình xây dựng

Kết luận
Ngôi nhà của anh Lăng tại Hải Dương là minh chứng rõ nét cho thấy: Một thiết kế nhà cấp 4 mái Nhật đẹp không cần phải quá cầu kỳ, mà cần sự tinh tế trong tỷ lệ và khoa học trong công năng.
Bạn đang ấp ủ dự định xây nhà? Bạn muốn sở hữu một không gian sống lý tưởng như gia đình anh Lăng? Đừng ngần ngại, hãy để Techhome đồng hành cùng bạn vẽ nên tổ ấm.
LIÊN HỆ TƯ VẤN THIẾT KẾ & THI CÔNG TRỌN GÓI:
-
CÔNG TY CỔ PHẦN KIẾN TRÚC VÀ XÂY DỰNG TECHHOME
-
Hotline/Zalo: 0364.04.2222 – 0387.60.3333
-
Website: https://nhadeptechhome.vn/
