Mẫu Thiết Kế Nhà Cấp 4 Mái Nhật 4 Phòng Ngủ Đẹp Mê Ly Tại Vĩnh Bảo – Hải Phòng

Giữa nhịp sống hối hả, xu hướng tìm về những giá trị bình yên, gần gũi với thiên nhiên đang lên ngôi. Không cần phải là những tòa nhà cao tầng chọc trời, đôi khi, một ngôi nhà cấp 4 mái Nhật với sân vườn rộng thoáng, công năng tiện nghi lại là niềm mơ ước của biết bao người. Hôm nay, Kiến trúc Techhome xin giới thiệu đến quý khách hàng một “siêu phẩm” mới nhất mà chúng tôi vừa bàn giao hồ sơ thiết kế cho gia đình anh Tùng tại Vĩnh Bảo, Hải Phòng.

Đây không chỉ là một ngôi nhà, đó là câu chuyện về sự kết hợp hoàn hảo giữa thẩm mỹ hiện đại và công năng sử dụng tối ưu cho gia đình đa thế hệ.

1. Cơ duyên đến với dự án nhà cấp 4 mái Nhật tại Hải Phòng

Anh Tùng tìm đến Techhome vào một ngày đẹp trời với mong muốn kiến tạo một không gian sống đầm ấm trên mảnh đất quê hương Vĩnh Bảo. Là một người yêu thích sự đơn giản nhưng phải tinh tế, anh đã tham khảo rất nhiều mẫu nhà cấp 4 mái Nhật trên thị trường nhưng chưa tìm được thiết kế ưng ý.

Bài toán anh đặt ra cho đội ngũ kiến trúc sư Techhome khá thách thức: Một ngôi nhà 1 tầng nhưng phải bố trí được 4 phòng ngủ để đảm bảo không gian riêng tư cho các thành viên, đồng thời phòng khách và bếp phải rộng rãi để cả gia đình quây quần. Quan trọng hơn, ngôi nhà phải toát lên vẻ đẹp hiện đại, bề thế nhưng không được quá phô trương, hòa hợp với cảnh quan làng quê yên bình.

Thấu hiểu tâm tư đó, bản vẽ kỹ thuật mã số 436 đã ra đời, là sự hiện thực hóa giấc mơ về một ngôi nhà cấp 4 mái Nhật lý tưởng.

nhà cấp 4 mái Nhật

2. Khám phá công năng “đỉnh cao” bên trong

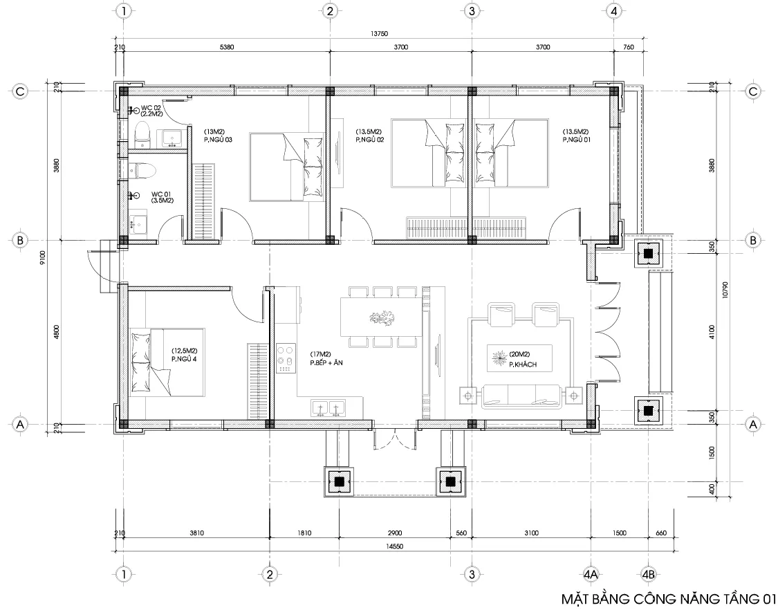
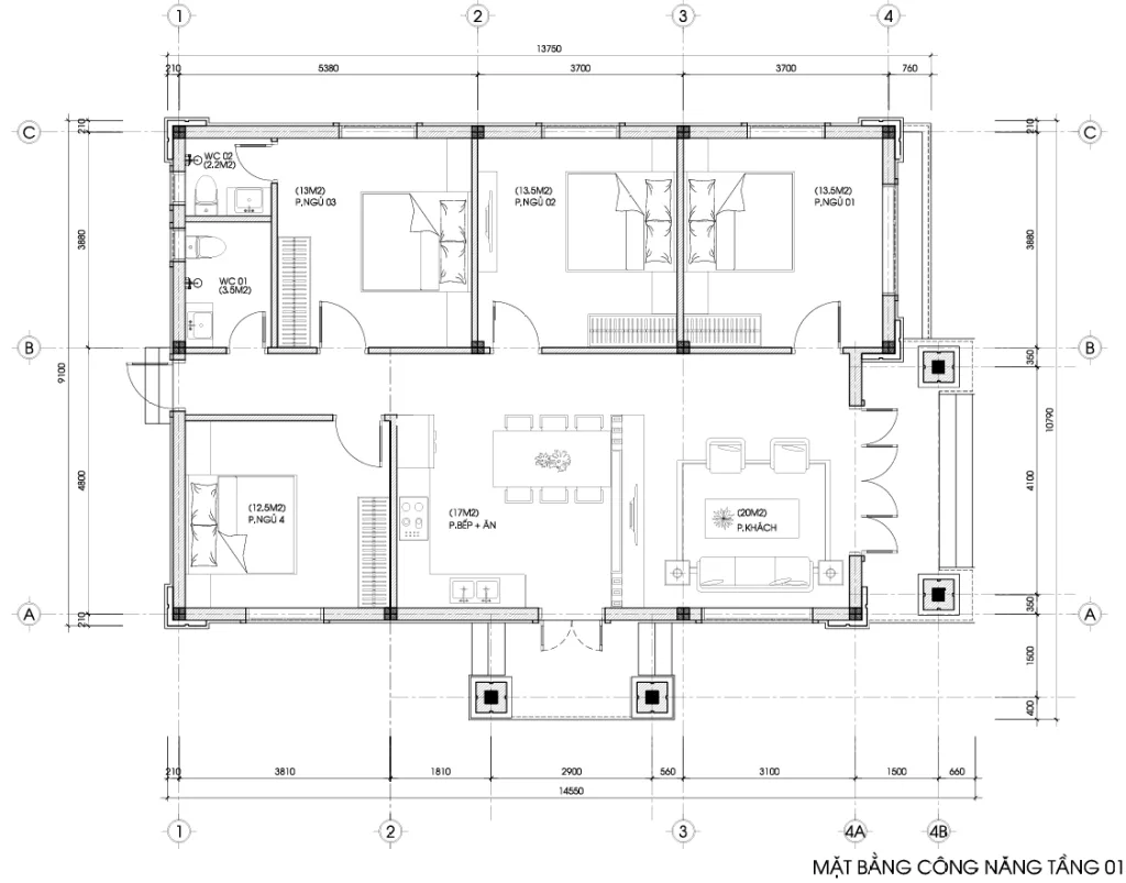
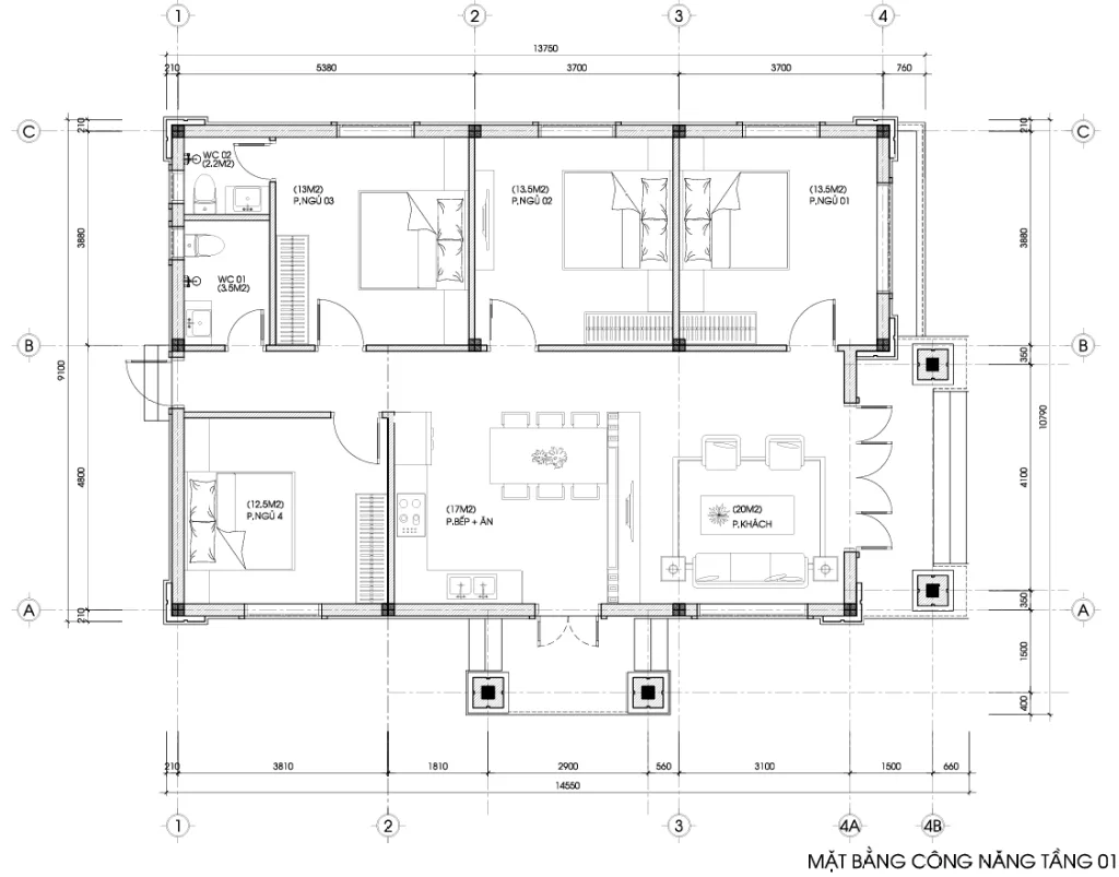
Điều khiến mẫu nhà cấp 4 mái Nhật này trở nên đặc biệt chính là cách bố trí mặt bằng công năng cực kỳ khoa học trên diện tích xây dựng khoảng 9.1m x 14.55m.

Phòng khách – Trái tim của ngôi nhà

Bước qua sảnh chính rộng rãi với bậc tam cấp ốp đá sang trọng, bạn sẽ tiến vào phòng khách có diện tích 20m2. Đây là không gian trung tâm, nơi gia chủ tiếp đón khách khứa và cũng là nơi sinh hoạt chung của cả gia đình. Với kích thước này, anh Tùng có thể thoải mái bố trí bộ sofa gỗ bề thế cùng kệ tivi hiện đại mà vẫn đảm bảo lối đi thông thoáng.

Phòng bếp và ăn – Nơi giữ lửa yêu thương

Liên thông với phòng khách là khu vực Bếp + Ăn rộng 17m2. Thiết kế mở này là đặc trưng của các mẫu nhà cấp 4 mái Nhật hiện đại, giúp kết nối các thành viên trong gia đình ngay cả khi nấu nướng hay xem tivi. Hệ thống cửa sổ lớn được bố trí tại khu vực này giúp mùi thức ăn thoát ra ngoài dễ dàng, giữ cho không khí trong nhà luôn tươi mới.

Hệ thống 4 phòng ngủ – Riêng tư tuyệt đối

Giải quyết bài toán “nhà đông người”, KTS Techhome đã khéo léo sắp xếp 4 phòng ngủ bao quanh không gian sinh hoạt chung:

  • Phòng ngủ 01 & 02: Đồng diện tích 13.5m2, thích hợp cho ông bà hoặc con cái, với không gian vuông vức dễ kê đồ.

  • Phòng ngủ 03: Diện tích 13m2, nằm ở vị trí yên tĩnh phía cuối nhà kết hợp WC khép kín.

  • Phòng ngủ 04: Diện tích 12.5m2, nhỏ nhắn nhưng ấm cúng.

Việc bố trí tới 4 phòng ngủ trong một thiết kế nhà cấp 4 mái Nhật với diện tích sàn khoảng 130m2 là một nỗ lực lớn của đội ngũ thiết kế, đảm bảo không có diện tích thừa, mọi ngóc ngách đều được tận dụng triệt để.

Khu vực vệ sinh

Ngôi nhà được bố trí 2 nhà vệ sinh:

  • WC 01: Diện tích 3.5m2, là vệ sinh chung cho cả gia đình, đặt ở vị trí thuận tiện gần bếp và phòng ngủ 4.

  • WC 02: Diện tích 2.2m2, vệ sinh khép kín của phòng ngủ 3.

Cả hai phòng vệ sinh đều được thiết kế cốt nền thấp hơn cốt sàn nhà -0.050m để đảm bảo nước không tràn ra ngoài, ốp gạch Ceramic chống trơn kích thước 300×300 đảm bảo an toàn tuyệt đối cho người già và trẻ nhỏ.

mặt bằng nhà cấp 4 mái Nhật

3. Vẻ đẹp ngoại thất: Sự giao thoa giữa hiện đại và truyền thống

Kiến trúc mái Nhật – Linh hồn của ngôi nhà

Điểm nhấn đầu tiên khi nhìn vào phối cảnh 3D của công trình chính là hệ mái Nhật đồ sộ và đăng đối. Khác với mái Thái cao vút, nhà cấp 4 mái Nhật (hay còn gọi là mái lùn) có độ dốc vừa phải, mở rộng ra các hướng, tạo cảm giác che chở, vững chãi.

Theo hồ sơ kỹ thuật, hệ khung mái được sử dụng là xà gồ hợp kim nhôm siêu nhẹ 100x75mm và lito hợp kim nhôm 61x75mm. Điều này không chỉ giúp giảm tải trọng lên móng nhà mà còn đảm bảo độ bền tuyệt đối trước điều kiện thời tiết khắc nghiệt của miền Bắc. Ngói lợp màu xanh than theo phối cảnh cực kỳ ăn ý với tông màu trắng chủ đạo của tường nhà, tạo nên nét thanh lịch, sang trọng khó cưỡng.

Phối màu và hình khối

Ngôi nhà cấp 4 mái Nhật của anh Tùng khoác lên mình “bộ cánh” màu trắng tinh khôi, điểm xuyết là những mảng tường ốp gạch thẻ màu xanh ghi ở phần cổ trần và chân tường. Hệ thống cột trụ vuông vức, khỏe khoắn được trang trí bằng các đường phào chỉ lõm đơn giản nhưng sắc nét.

Phần chân tường được ốp đá rối màu ghi sẫm, không chỉ tạo cảm giác vững chãi cho khối đế mà còn giúp bảo vệ công trình khỏi rêu mốc, bụi bẩn – một giải pháp cực kỳ thiết thực cho những ngôi nhà ở vùng quê.

nhà cấp 4 mái Nhật

4. Tại sao mẫu nhà cấp 4 mái Nhật lại được ưa chuộng tại Hải Phòng?

Không ngẫu nhiên mà anh Tùng và rất nhiều gia chủ khác tại Hải Phòng lại lựa chọn nhà cấp 4 mái Nhật.

  1. Thẩm mỹ không lỗi thời: Kiến trúc mái Nhật mang vẻ đẹp trường tồn, không quá cầu kỳ như cổ điển nhưng lại sang trọng hơn mái bằng đơn điệu.

  2. Chống nóng và chống thấm tốt: Với độ dốc vừa phải, mái Nhật thoát nước mưa nhanh, đồng thời lớp không khí đệm dưới mái giúp ngôi nhà mát mẻ vào mùa hè – điều cực kỳ quan trọng với khí hậu miền Bắc.

  3. Chi phí xây dựng hợp lý: So với nhà cao tầng, nhà cấp 4 mái Nhật tiết kiệm chi phí làm móng và nhân công vận chuyển vật liệu lên cao, giúp gia chủ giảm bớt gánh nặng tài chính.

  4. Gắn kết tình thân: Không gian sinh hoạt trên một mặt sàn giúp các thành viên trong gia đình dễ dàng tương tác, chăm sóc lẫn nhau, tránh tình trạng “mạnh ai nấy sống” ở các tầng riêng biệt.

nhà cấp 4 mái Nhật

5. Bóc tách kỹ thuật: Những con số biết nói

Để xây dựng một ngôi nhà cấp 4 mái Nhật bền đẹp, Techhome luôn chú trọng vào từng chi tiết kỹ thuật nhỏ nhất trong hồ sơ:

  • Chiều cao thông thủy: Chiều cao từ cốt 0.000 đến trần là 3.9m, tạo không gian cao ráo, thoáng đãng. Đỉnh mái cao tới 7.0m, giúp ngôi nhà trông bề thế như một biệt thự mini.

  • Hệ thống cửa: Cửa chính là cửa gỗ Lim Nam Phi 4 cánh mở quay, kết hợp kính an toàn 8.38mm, kích thước 2700x2700mm. Cửa sổ sử dụng nhôm hệ kính an toàn, vừa lấy sáng tốt vừa bền bỉ với thời gian. Các chi tiết này cho thấy sự đầu tư bài bản cho ngôi nhà cấp 4 mái Nhật của gia chủ.

  • Kết cấu tường: Tường xây gạch chỉ, trát phẳng, sơn màu theo chỉ định. Chân tường ốp gạch cao 120mm để chống ẩm mốc.

nhà cấp 4 mái Nhật

6. Báo giá thiết kế và thi công nhà cấp 4 mái Nhật (Tham khảo 2025)

Rất nhiều khách hàng thắc mắc: “Xây dựng một ngôi nhà cấp 4 mái Nhật đẹp như của anh Tùng hết bao nhiêu tiền?”. Techhome xin đưa ra bảng dự toán chi phí (mang tính chất tham khảo, giá thực tế phụ thuộc vào thời điểm và vật liệu):

Hạng mục Đơn giá (VNĐ) Diễn giải
Thiết kế kiến trúc 100.000đ/m2 Bao gồm hồ sơ 3D, kiến trúc, kết cấu, điện nước 
Thi công phần thô 3.800.000 – 4.200.000đ/m2 Bao gồm vật tư thô (sắt, thép, xi măng, gạch…) và nhân công.
Thi công trọn gói 5.500.000 – 6.500.000đ/m2 Chìa khóa trao tay (Gồm cả cửa, sơn, lát nền, thiết bị vệ sinh cơ bản…).
Chi phí mái ngói 700.000 – 1.200.000đ/m2 mái Tùy thuộc vào khung kèo thép hay đổ bê tông dán ngói.

Ví dụ: Với diện tích sàn khoảng 130m2 như nhà anh Tùng, chi phí xây dựng hoàn thiện cơ bản cho mẫu nhà cấp 4 mái Nhật này sẽ dao động từ 900 triệu – 1 tỷ đồng.

Lưu ý: Đây chỉ là mức chi phí ước tính. Để nhận được báo giá chính xác và chi tiết nhất cho công trình của bạn, vui lòng liên hệ trực tiếp với chúng tôi. Hoặc để tìm hiểu rõ hơn về tiêu chuẩn vật liệu xây dựng và các yếu tố ảnh hưởng đến chi phí, bạn có thể tham khảo thêm tại các bài viết chuyên sâu về vật liệu xây dựng cao cấp trên Wikipedia.

nhà cấp 4 mái Nhật

7. Góc nhìn chuyên gia kiến trúc sư Techhome

Là người trực tiếp tham gia kiểm duyệt hồ sơ, có vài lời khuyên cho các bạn khi có ý định xây nhà cấp 4 mái Nhật:

  1. Đừng tham lam chi tiết: Vẻ đẹp của mái Nhật nằm ở sự tinh tế. Đừng đắp vẽ quá nhiều phào chỉ rườm rà khiến ngôi nhà bị “nặng nề” và rối mắt. Hãy nhìn vào mặt tiền nhà anh Tùng, sự đơn giản tạo nên nét sang trọng.

  2. Chú trọng hệ thống thoát nước mái: Vì độ dốc mái Nhật thấp hơn mái Thái, việc thi công ngói và máng thu nước cần kỹ thuật cao để tránh thấm dột ngược khi mưa bão lớn. Techhome luôn sử dụng gờ ngắt nước và xử lý kỹ các vị trí giao thủy.

  3. Lựa chọn vật liệu cửa: Với khí hậu nóng ẩm ở Hải Phòng, cửa sổ nhôm kính Xingfa hoặc các hệ nhôm cao cấp là lựa chọn tối ưu hơn gỗ tự nhiên (dễ cong vênh) cho phần bao che bên ngoài.

8. Quy trình làm việc tại Techhome

Để ra đời một bộ hồ sơ chất lượng như hồ sơ mã 436, chúng tôi tuân thủ quy trình 6 bước nghiêm ngặt:

  1. Tiếp nhận thông tin & Khảo sát hiện trạng.

  2. Lên phương án mặt bằng & Phối cảnh 3D.

  3. Chốt phương án .

  4. Triển khai hồ sơ kỹ thuật thi công (Kiến trúc, Kết cấu, Điện nước).

  5. Bàn giao hồ sơ & Hỗ trợ giám sát tác giả.

  6. Bảo hành & Đồng hành cùng gia chủ.

nhà cấp 4 mái Nhật

9. Tại sao nên chọn Techhome cho ngôi nhà của bạn?

Giữa “ma trận” các đơn vị thiết kế, Techhome tự hào là điểm tựa tin cậy cho hàng nghìn gia đình Việt.

  • Đội ngũ thực chiến: Giám đốc và các cộng sự đều có kinh nghiệm dày dặn.

  • Hồ sơ chi tiết: Bản vẽ của chúng tôi chi tiết đến từng viên gạch lát , từng thanh thép bảo vệ cửa sổ, giúp thợ thi công dễ dàng đọc hiểu và làm đúng.

  • Hỗ trợ tận tâm: Số điện thoại hỗ trợ kỹ thuật 0364.04.2222  luôn mở 24/7 để giải đáp thắc mắc cho thợ xây tại công trình.

Lời kết

Mẫu nhà cấp 4 mái Nhật 4 phòng ngủ của gia đình anh Tùng tại Hải Phòng là minh chứng rõ nét cho thấy: Một ngôi nhà đẹp không cần phải quá cao sang, chỉ cần được thiết kế bằng cả tâm huyết và sự thấu hiểu. Hy vọng bài viết này đã mang lại cho bạn những ý tưởng tuyệt vời cho tổ ấm tương lai.

Nếu bạn cũng đang ấp ủ giấc mơ về một ngôi nhà cấp 4 mái Nhật tiện nghi, chi phí hợp lý, đừng ngần ngại chia sẻ với chúng tôi.


Bạn muốn sở hữu một bản thiết kế “đo li đóng giày” cho riêng mình?

👉 Hãy để Techhome giúp bạn! Liên hệ ngay Zalo/Hotline: 0364.04.2222 để nhận tư vấn miễn phí và báo giá ưu đãi nhất trong tháng này.

Xem thêm các dự án nổi bật khác của Techhome tại https://nhadeptechhome.vn/

Để lại một bình luận

Email của bạn sẽ không được hiển thị công khai. Các trường bắt buộc được đánh dấu *

    Vui lòng nhấn nút YÊU CẦU TƯ VẤN và đợi 1 - 2 giây đến khi thấy thông báo thành công

    YÊU CẦU TƯ VẤN