Review Mẫu Nhà 2 Tầng 1 Tum Đẹp Hiện Đại Tại An Khánh: Giải Pháp Không Gian Hoàn Hảo Cho Gia Đình 3 Thế Hệ

Thông tin công trình:

  • Chủ đầu tư: Anh Việt Anh

  • Địa điểm: An Khánh – Hoài Đức – Hà Nội

  • Đơn vị thiết kế & thi công: Công ty Cổ phần Kiến trúc và Xây dựng TechHome

  • Diện tích xây dựng: ~84m2/sàn (Kích thước đất 5.5m x 14.1m)

  • Phong cách: Hiện đại, tối giản, đường cong Soft-Architecture.


Giữa nhịp sống hối hả của thủ đô, việc tìm kiếm một không gian sống vừa vặn – nơi không quá phô trương nhưng đủ đầy tiện nghi, ấm áp – là mong mỏi của biết bao gia đình. Câu chuyện về ngôi nhà của anh Việt Anh tại An Khánh chính là minh chứng rõ nét nhất cho xu hướng này. Hôm nay, hãy cùng TechHome “bóc tách” từng chi tiết của mẫu nhà 2 tầng 1 tum đẹp xuất sắc này, để xem các kiến trúc sư đã giải bài toán công năng và thẩm mỹ như thế nào trên diện tích đất phố nhé.

mẫu nhà 2 tầng 1 tum đẹp

1. Kiến Trúc Mặt Tiền: Khi Đường Cong “Làm Mềm” Bê Tông

Ngay từ cái nhìn đầu tiên vào phối cảnh 3D, bạn sẽ thấy ngôi nhà này không hề bị “cứng” như những khối nhà ống thông thường. Đây là một mẫu nhà 2 tầng 1 tum đẹp đại diện cho tư duy thiết kế mới: hiện đại nhưng phải có cảm xúc.

Sự lên ngôi của kiến trúc vòm (Arched Design)

Điểm nhấn đắt giá nhất của mặt tiền chính là mảng tường bên trái được khoét vòm cong mềm mại nối liền từ tầng 2 lên tầng tum. Chi tiết này không chỉ tạo hiệu ứng thị giác độc đáo, giúp ngôi nhà trông cao ráo hơn, mà còn đóng vai trò như một “khung tranh” khổng lồ, ôm lấy ban công và những mảng xanh thiên nhiên.

Sự kết hợp màu sắc cũng là một điểm cộng lớn. Trên nền sơn trắng chủ đạo (màu sứ), các kiến trúc sư TechHome đã khéo léo phối thêm màu ghi xám của đá ốp tầng 1 và màu nâu gỗ của trần ban công (sử dụng vật liệu nhựa giả gỗ chịu nước). Chính sự tương phản nhẹ nhàng này đã làm cho mẫu nhà 2 tầng 1 tum đẹp và sang trọng hơn rất nhiều so với việc chỉ dùng sơn nước đơn thuần.

Hệ thống cửa và lấy sáng

Nhìn vào bản vẽ kỹ thuật, chúng ta thấy toàn bộ hệ thống cửa mặt tiền đều sử dụng nhôm hệ kính cường lực. Cụ thể, cửa đi chính tầng 1 là cửa 4 cánh mở quay kích thước rộng 3000mm x cao 2700mm. Việc sử dụng cửa kính khổ lớn giúp ngôi nhà luôn tràn ngập ánh sáng tự nhiên, xóa bỏ cảm giác bí bách thường thấy của nhà phố. Đây là yếu tố tiên quyết để tạo nên một mẫu nhà 2 tầng 1 tum đẹp và thoáng đãng.

mẫu nhà 2 tầng 1 tum đẹp

2. Phân Tích Công Năng: Bài Toán Chia Phòng “Siêu” Hợp Lý

Với diện tích sàn khoảng 84m2, làm sao để bố trí đủ không gian cho ông bà, bố mẹ và các con mà vẫn rộng rãi? TechHome đã giải bài toán này một cách thuyết phục.

Tầng 1: Sự kết nối ấm cúng

Bước qua sảnh chính, chúng ta đến với không gian sinh hoạt chung.

  • Phòng khách (22.5 m2): Diện tích này đủ để kê một bộ sofa góc chữ L lớn và kệ tivi hiện đại. Đây là nơi cả gia đình quây quần mỗi tối. Với chiều cao trần lên tới 3.9m, phòng khách cực kỳ thoáng, giảm nhiệt hiệu quả vào mùa hè.

  • Phòng bếp + Ăn (18.0 m2): Nằm liên thông với phòng khách qua cầu thang bộ. Bếp được thiết kế chữ L tối ưu hóa thao tác nấu nướng. 

  • Phòng ngủ 01 (13.0 m2): Đây là phòng dành cho người lớn tuổi. Đặt phòng ngủ ông bà ở tầng 1 là tiêu chuẩn “vàng” trong thiết kế nhà đa thế hệ, giúp hạn chế việc leo cầu thang, đảm bảo an toàn tuyệt đối.

  • Vệ sinh chung (3.3 m2): Bố trí cạnh phòng ngủ và cuối nhà, tiết kiệm diện tích nhưng vẫn đầy đủ tiện nghi.

Việc bố trí công năng tầng 1 như vậy giúp mẫu nhà 2 tầng 1 tum đẹp này ghi điểm tuyệt đối về sự tiện dụng và nhân văn.

mặt bằng mẫu nhà 2 tầng 1 tum đẹp

Tầng 2: Không gian riêng tư cho vợ chồng và con cái

Nếu tầng 1 là sự kết nối, thì tầng 2 là nơi mỗi thành viên tìm về thế giới riêng của mình.

  • Phòng ngủ 03 (Master – 17.5 m2): Dành cho vợ chồng anh Việt Anh. Phòng này nằm ở phía trước mặt tiền, có cửa ra ban công rộng thoáng. Đặc biệt, phòng có vệ sinh khép kín (3.8 m2), đảm bảo sự riêng tư tối đa.

  • Phòng ngủ 02 (13.0 m2) và Phòng ngủ 04 (11.0 m2): Dành cho các con. Dù diện tích không quá lớn (11-13m2) nhưng nhờ cách bố trí cửa sổ thông minh và nội thất âm tường, các bé vẫn có đủ không gian học tập và vui chơi.

  • Vệ sinh chung (3.3 m2): Đặt thẳng với vệ sinh tầng 1, thuận tiện cho đường ống, cho sinh hoạt.

Với 3 phòng ngủ trên một sàn, mẫu nhà 2 tầng 1 tum đẹp của anh Việt Anh đã tận dụng triệt để từng mét vuông sàn mà không tạo cảm giác chật chội.

mặt bằng mẫu nhà 2 tầng 1 tum đẹp

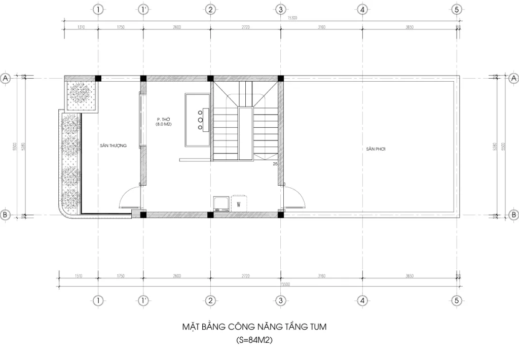
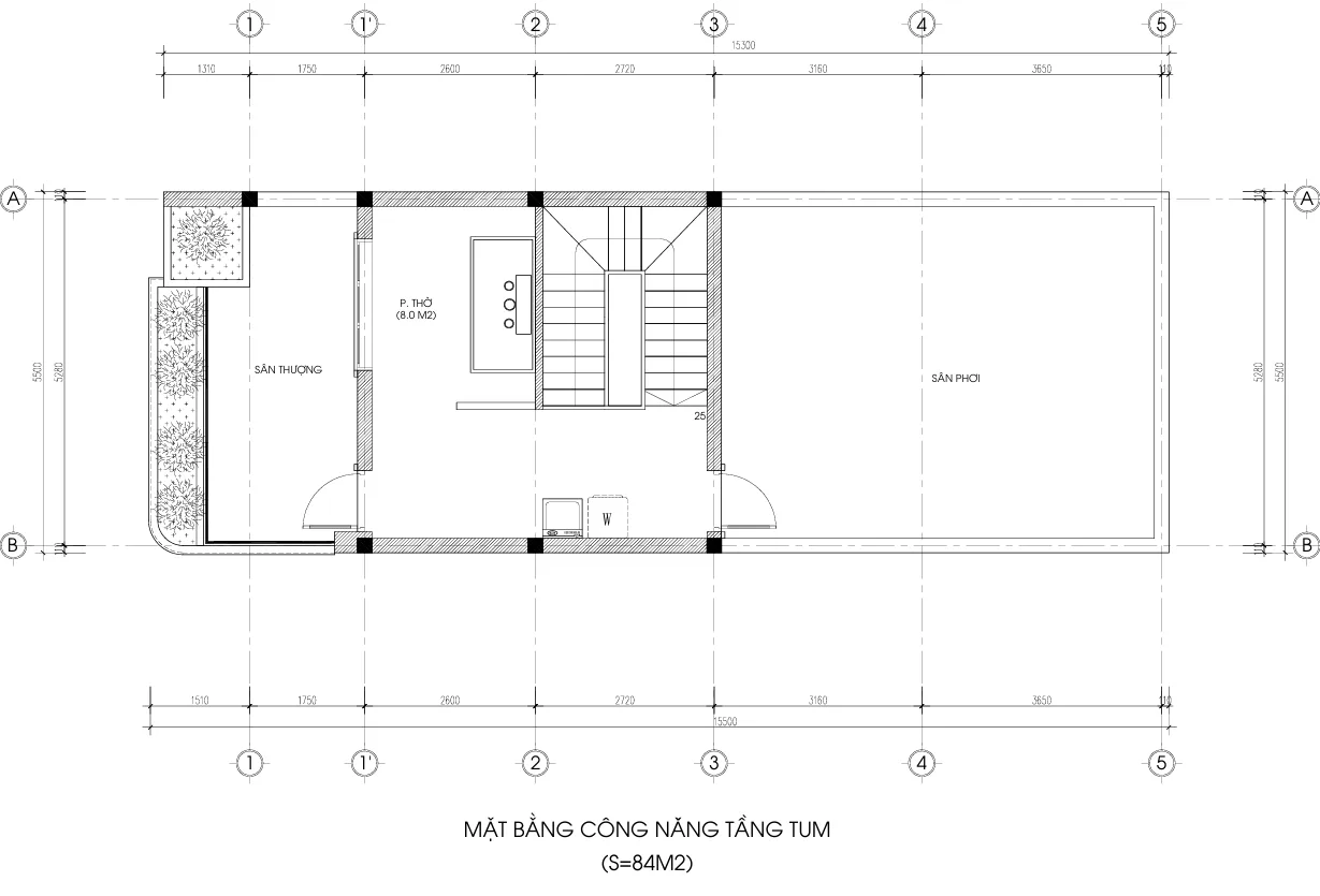
Tầng Tum: Khoảng trời bình yên

Tầng tum là nơi “chữa lành” đúng nghĩa.

  • Phòng thờ (8.0 m2): Đặt ở vị trí cao nhất, trang nghiêm nhất, hướng ra sân thượng phía trước. Đây là nơi con cháu tưởng nhớ tổ tiên, giữ gìn nề nếp gia phong.

  • Sân chơi và Sân phơi: Sân thượng phía trước được thiết kế giàn hoa bê tông (pergola) để gia chủ có thể trồng lan, cây cảnh hoặc đặt một bàn trà nhỏ. Phía sau là sân phơi kín đáo, có vị trí để máy giặt và téc nước.

Rõ ràng, một mẫu nhà 2 tầng 1 tum đẹp không chỉ cần đẹp ở mặt tiền mà còn phải “đẹp” trong cách sắp xếp cuộc sống sinh hoạt hàng ngày.

3. Tại Sao “Mẫu Nhà 2 Tầng 1 Tum Đẹp” Lại Là Xu Hướng Của Năm 2025?

Không phải ngẫu nhiên mà anh Việt Anh và rất nhiều khách hàng của TechHome lại lựa chọn quy mô xây dựng này. Dưới đây là những lý do thực tế nhất:

Chi phí xây dựng hợp lý

So với nhà 3 tầng hay 4 tầng, mẫu nhà 2 tầng 1 tum đẹp giúp tiết kiệm đáng kể chi phí xây dựng phần thô và hoàn thiện. Phần tum thường chỉ xây dựng khoảng 50-60% diện tích sàn, giúp giảm tải trọng móng và giảm tiền vật tư, nhân công.

Chống nóng hiệu quả

Tầng tum đóng vai trò như một lớp đệm cách nhiệt khổng lồ. Nhờ có khoảng không gian của phòng thờ và sân thượng bên trên, các phòng ngủ ở tầng 2 sẽ mát hơn rất nhiều so với việc để trần bê tông tiếp xúc trực tiếp với ánh nắng mặt trời. Đây là ưu điểm kỹ thuật cực lớn của mẫu nhà 2 tầng 1 tum đẹp tại miền Bắc.

Thẩm mỹ cân đối

Về tỷ lệ hình khối, mẫu nhà 2 tầng 1 tum đẹp thường có tỷ lệ chiều cao và chiều rộng rất hài hòa (với mặt tiền 5-6m). Nó không quá cao lênh khênh như nhà ống 4-5 tầng, tạo cảm giác vững chãi và gần gũi.

4. Giải Mã Kỹ Thuật Thi Công Của TechHome

Để tạo nên một mẫu nhà 2 tầng 1 tum đẹp bền vững với thời gian, TechHome luôn tuân thủ các quy chuẩn kỹ thuật nghiêm ngặt thể hiện rõ trong hồ sơ thiết kế:

  • Kết cấu sàn và trần: Sử dụng bê tông cốt thép đổ tại chỗ. Trần thạch cao khung xương chìm chống ẩm được sử dụng cho các khu vực vệ sinh và bếp để đảm bảo độ bền.

  • Hệ thống điện nước: Được đi ngầm tường, sử dụng ống ghen cứng bảo vệ. Bản vẽ mặt bằng trần cho thấy hệ thống đèn Downlight âm trần và đèn LED hắt khe được bố trí khoa học, tạo ánh sáng sang trọng.

  • Vật liệu ốp lát: Sàn tầng 1 sử dụng gạch Granite vân đá khổ lớn (800×800) tạo sự sang trọng. Sàn vệ sinh dùng gạch chống trơn 300×300 để đảm bảo an toàn cho người già và trẻ nhỏ. Cầu thang ốp đá Granite tự nhiên màu đen, cổ bậc sơn trắng – một phong cách kinh điển không bao giờ lỗi mốt.

Sự tỉ mỉ trong từng chi tiết kỹ thuật chính là chìa khóa để mẫu nhà 2 tầng 1 tum đẹp của TechHome luôn nhận được sự tin tưởng của khách hàng.

5. Báo Giá Xây Dựng Mẫu Nhà 2 Tầng 1 Tum (Cập Nhật Quý 1/2025)

Nhiều bạn thắc mắc: “Để sở hữu một mẫu nhà 2 tầng 1 tum đẹp và tiện nghi như nhà anh Việt Anh thì cần chuẩn bị bao nhiêu tài chính?”. TechHome xin gửi đến bạn bảng khái toán tham khảo dựa trên mức giá thị trường hiện tại.

Lưu ý: Đơn giá có thể thay đổi tùy thuộc vào vị trí ngõ rộng/hẹp, thời điểm thi công và chủng loại vật tư gia chủ lựa chọn.

a. Gói Nhân Công & Phần Thô (Gói cơ bản)

Đây là gói dành cho các gia chủ muốn tự tay chọn lựa vật liệu hoàn thiện (gạch, thiết bị vệ sinh, đèn…).

  • Đơn giá: Dao động từ 3.900.000 VNĐ – 4.200.000 VNĐ/m2 sàn xây dựng.

  • Tổng chi phí ước tính: Với tổng diện tích sàn khoảng 240m2 (bao gồm móng, tầng 1, tầng 2, tum và mái), chi phí phần thô rơi vào khoảng 950 triệu – 1.05 tỷ VNĐ.

  • Hạng mục: Thi công móng, cột, dầm, sàn, xây trát tường, đi đế âm điện, đường nước ngầm, chống thấm.

b. Gói Chìa Khóa Trao Tay (Trọn gói)

Đây là giải pháp tối ưu cho những người bận rộn. TechHome sẽ lo từ A-Z.

  • Đơn giá: Dao động từ 6.500.000 VNĐ – 7.500.000 VNĐ/m2.

  • Tổng chi phí ước tính: Khoảng 1.6 tỷ – 1.8 tỷ VNĐ.

  • Vật tư hoàn thiện:

    • Cửa nhôm kính Xingfa nhập khẩu hoặc tương đương.

    • Gạch ốp lát Prime, Viglacera hoặc nhập khẩu (tùy gói).

    • Thiết bị vệ sinh Inax, Toto.

    • Sơn Dulux, Jotun.

    • Trần thạch cao Vĩnh Tường.

    • Đá ốp cầu thang, tay vịn gỗ Lim Nam Phi.

Một mẫu nhà 2 tầng 1 tum đẹp hoàn thiện với mức giá dưới 2 tỷ đồng tại Hà Nội là một khoản đầu tư cực kỳ xứng đáng cho tổ ấm lâu dài.

6. Góc Chuyên Gia: Những Lưu Ý “Sống Còn” Khi Xây Nhà

Là người trực tiếp tư vấn và giám sát, tôi muốn chia sẻ thêm vài kinh nghiệm “xương máu” để mẫu nhà 2 tầng 1 tum đẹp của bạn thực sự hoàn hảo:

  1. Đừng tiếc tiền cho hệ cửa: Nhà phố thường ồn và bụi. Hãy đầu tư vào hệ nhôm kính chất lượng có gioăng cao su kép. Nó sẽ giúp nhà bạn yên tĩnh tuyệt đối và tiết kiệm điện điều hòa. Trong công trình này, chúng tôi dùng kính an toàn 8.38mm, rất an toàn kể cả khi bị vỡ.

  2. Chú trọng chống thấm sàn mái: Tầng tum là nơi chịu nắng mưa trực tiếp. Hãy yêu cầu nhà thầu đánh dốc thoát nước thật tốt (độ dốc i=1-2%) và xử lý chống thấm kỹ lưỡng các cổ ống. Đừng để đến lúc trần tầng 2 bị ố vàng mới lo sửa chữa.

  3. Ánh sáng là nghệ thuật: Đừng chỉ lắp mỗi đèn tuýp. Hãy kết hợp đèn Downlight (ánh sáng chung) và đèn hắt (ánh sáng trang trí). Một mẫu nhà 2 tầng 1 tum đẹp sẽ lung linh hơn rất nhiều vào buổi tối nhờ hệ thống chiếu sáng thông minh.

  4. Phong thủy cầu thang: Số bậc cầu thang nên rơi vào cung “Sinh” (thường là 21 hoặc 25 bậc). Tại nhà anh Việt Anh, cầu thang tầng 1 lên tầng 2 có 25 bậc , tầng 2 lên tum cũng 25 bậc. Đây là con số rất đẹp trong phong thủy, mang lại sức khỏe và tài lộc.

7. Quy Trình Làm Việc Tại TechHome

Để ra đời một mẫu nhà 2 tầng 1 tum đẹp và chỉnh chu như hồ sơ bạn đang xem, TechHome tuân thủ quy trình 6 bước chuyên nghiệp:

  1. Khảo sát hiện trạng: Đo đạc kích thước đất thực tế, kiểm tra hướng nắng, hướng gió.

  2. Tư vấn phương án: Lên mặt bằng công năng (2D) phù hợp nhu cầu và ngân sách.

  3. Thiết kế phối cảnh 3D: Giúp chủ nhà hình dung rõ ngôi nhà trong tương lai.

  4. Triển khai hồ sơ kỹ thuật: Kết cấu, điện nước, dự toán chi tiết .

  5. Thi công & Giám sát: Đội ngũ kỹ sư giám sát chặt chẽ từng hạng mục.

  6. Bàn giao & Bảo hành: Cam kết bảo hành kết cấu dài hạn.

8. Lời Kết

Ngôi nhà không chỉ là nơi che mưa che nắng, nó là nơi nuôi dưỡng tâm hồn và gắn kết yêu thương. Mẫu nhà 2 tầng 1 tum đẹp tại An Khánh của gia đình anh Việt Anh là một ví dụ điển hình cho sự cân bằng giữa thẩm mỹ, công năng và chi phí.

Nếu bạn đang ấp ủ dự định xây dựng tổ ấm cho riêng mình, đừng ngần ngại chia sẻ với chúng tôi. Dù mảnh đất của bạn hình thù ra sao, nhu cầu phức tạp thế nào, đội ngũ KTS TechHome cũng sẽ tìm ra giải pháp tối ưu nhất.

Bạn ấn tượng nhất điều gì ở mẫu nhà 2 tầng 1 tum đẹp này? Là mặt tiền đường cong mềm mại hay cách bố trí phòng ngủ thông minh? Hãy để lại bình luận bên dưới để chúng ta cùng thảo luận nhé!


CÔNG TY CỔ PHẦN KIẾN TRÚC VÀ XÂY DỰNG TECHHOME

Hãy liên hệ ngay hôm nay để nhận được tư vấn miễn phí và ưu đãi thiết kế cho mẫu nhà 2 tầng 1 tum đẹp của riêng bạn!

Để lại một bình luận

Email của bạn sẽ không được hiển thị công khai. Các trường bắt buộc được đánh dấu *

    Vui lòng nhấn nút YÊU CẦU TƯ VẤN và đợi 1 - 2 giây đến khi thấy thông báo thành công

    YÊU CẦU TƯ VẤN