Nếu có dịp ghé qua vùng đất Quỳnh Sơn, Nghệ An những ngày này, chắc hẳn bạn sẽ bị thu hút bởi một công trình kiến trúc vừa hiện đại, vừa phảng phất nét truyền thống Á Đông đang dần hoàn thiện. Đó chính là tổ ấm của gia đình anh Hiếu – một khách hàng mà Kiến trúc Techhome vô cùng trân quý. Không quá phô trương hay cầu kỳ, ngôi nhà hiện lên như một nốt nhạc thanh bình giữa làng quê, là minh chứng rõ nét nhất cho sức hút của những mẫu nhà mái Nhật 2 tầng đang “làm mưa làm gió” trên thị trường hiện nay.
Hôm nay, hãy cùng Techhome “mổ xẻ” chi tiết hồ sơ thiết kế của ngôi nhà này, để xem vì sao thiết kế này lại được lòng các gia chủ đến vậy nhé!
1. Câu chuyện đằng sau bản vẽ: Khi “An Cư” là để “Lạc Nghiệp”
Anh Hiếu tìm đến Techhome với một đề bài vừa dễ mà lại vừa khó. Anh bảo: “Anh cần một ngôi nhà không cần quá to, nhưng phải đủ. Đủ công năng cho cả gia đình, đủ hiện đại để không bị lỗi thời, nhưng phải đủ ấm cúng và gần gũi với nếp sống quê mình”.
Sau khi khảo sát thực địa tại Quỳnh Sơn, các kiến trúc sư (KTS) của Techhome nhận thấy mảnh đất có vị trí khá đẹp, nhưng để tối ưu hóa diện tích sử dụng mà vẫn đảm bảo tính thẩm mỹ, thì mẫu nhà mái Nhật 2 tầng là sự lựa chọn hoàn hảo nhất.
Tại sao lại là mái Nhật? Bởi hệ mái này có độ dốc vừa phải, thoát nước tốt – cực kỳ phù hợp với khí hậu nắng lắm mưa nhiều của miền Trung, lại tạo cảm giác ngôi nhà cao ráo, thanh thoát hơn. Bản thiết kế lần này không chỉ là một ngôi nhà, nó là tâm huyết của anh Hiếu và sự sáng tạo của KTS cùng các cộng sự.

2. Phối cảnh ngoại thất: Vẻ đẹp từ sự tinh tế
Nhìn vào phối cảnh mặt tiền, bạn sẽ thấy mẫu nhà mái Nhật 2 tầng của anh Hiếu toát lên vẻ đẹp khỏe khoắn nhưng không hề thô cứng.
Màu sắc và vật liệu – Bản giao hưởng hiện đại
Ngôi nhà sử dụng tông màu trắng sứ làm chủ đạo. Đây là gam màu “huyền thoại” trong thiết kế, giúp công trình luôn tươi mới và bắt sáng tốt. Nổi bật trên nền trắng ấy là hệ mái ngói màu xanh ghi lịch lãm và các mảng tường ốp đá thẻ trang trí tại chân cột và các đường phân tầng.
Điểm nhấn đắt giá nhất ở mặt tiền chính là bộ cửa chính 4 cánh được làm bằng gỗ Lim Nam Phi. Gỗ Lim không chỉ bền bỉ với thời gian mà màu nâu đỏ của gỗ còn mang lại sự sang trọng, ấm áp, cân bằng lại nét lạnh của các vật liệu hiện đại như kính và bê tông. Hệ thống cửa sổ sử dụng nhôm hệ kính an toàn 8.38mm, giúp lấy sáng tối đa, để khi ngồi trong nhà, anh Hiếu vẫn có thể phóng tầm mắt ngắm nhìn khung cảnh làng quê yên bình.
Hình khối kiến trúc
Công trình được thiết kế với hình khối vuông vức, hệ cột trụ vuông vắn được đắp vẽ phào chỉ nhẹ nhàng. KTS đã khéo léo bố trí một giàn hoa trang trí ở ban công tầng 2. Hãy tưởng tượng, sau này khi giàn hoa giấy hay hoa hồng leo phủ kín, đây sẽ là góc “chill” lý tưởng nhất của gia đình vào mỗi buổi chiều tà. Chi tiết này làm mềm mại đi sự cứng cáp của khối bê tông, biến mẫu nhà mái Nhật 2 tầng trở nên thơ mộng hơn bao giờ hết.

3. Công năng sử dụng: Tối ưu từng cen-ti-mét
Điều làm nên giá trị thực sự của một ngôi nhà không chỉ nằm ở vẻ hào nhoáng bên ngoài, mà là sự tiện nghi bên trong. Với tổng diện tích xây dựng khoảng 187m2 (Tầng 1: 99m2, Tầng 2: 88m2), Techhome đã bố trí công năng mẫu nhà mái Nhật 2 tầng này một cách khoa học nhất.
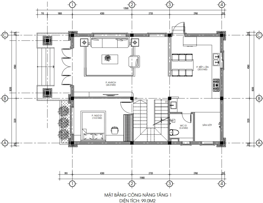
Tầng 1: Không gian kết nối (Diện tích 99m2)
Bước qua sảnh chính và bậc ngũ cấp lát đá Granite, chúng ta tiến vào không gian sinh hoạt chung:
-
Phòng khách (26.0 m2): Được đặt ngay tại vị trí trung tâm, rộng rãi và thoáng đãng. Đây là bộ mặt của gia chủ, nơi anh Hiếu tiếp đón bạn bè, hàng xóm.
-
Phòng Bếp + Ăn (20.0 m2): Nằm liên thông với phòng khách nhưng vẫn có sự kín đáo nhất định. Diện tích này đủ để bố trí bộ bàn ăn lớn cho những bữa cơm sum họp.
-
Phòng ngủ 01 (13.0 m2): Việc bố trí một phòng ngủ ở tầng 1 là cực kỳ hợp lý trong các mẫu nhà mái Nhật 2 tầng, đặc biệt gia đình có người lớn tuổi, giúp hạn chế việc leo cầu thang.
-
WC chung (3.4 m2) và Sân ướt: Đặt kín đáo phía cuối nhà, đảm bảo vệ sinh và thẩm mỹ.

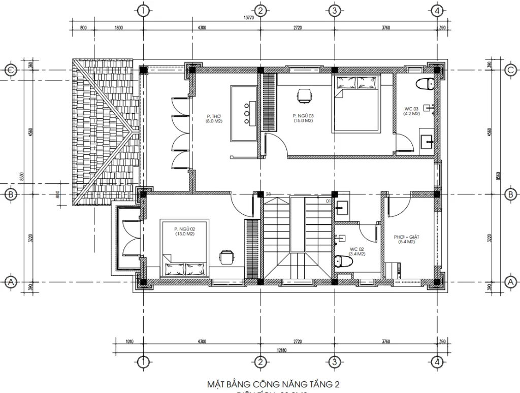
Tầng 2: Không gian riêng tư (Diện tích 88m2)
Di chuyển lên cầu thang 23 bậc (theo cung Sinh trong phong thủy), tầng 2 mở ra không gian nghỉ ngơi yên tĩnh:
-
Phòng thờ (8.0 m2): Đặt ở vị trí trang trọng nhất, hướng ra mặt tiền, thể hiện lòng thành kính của con cháu.
-
Phòng ngủ 02 (13.0 m2): phòng ngủ dành cho các con. Diện tích vừa vặn để bố trí giường, tủ, bàn học mà vẫn thoáng đãng.
- Phòng ngủ 03 (15.0 m2) kèm vệ sinh khép kín 4.2m2: Phòng ngủ dành cho vợ chồng anh Hiếu.
-
Khu vực giặt phơi (5.4 m2) và WC: Được bố trí phía sau, đón nắng gió tự nhiên giúp quần áo luôn thơm tho.
Có thể thấy, trong mẫu nhà mái Nhật 2 tầng này, không có bất kỳ một góc chết nào. Mọi diện tích đều được tận dụng triệt để phục vụ nhu cầu sống.

4. Hồ sơ kỹ thuật: Sự an tâm tuyệt đối
Tại Techhome, chúng tôi không chỉ vẽ tranh, chúng tôi xây nhà. Hồ sơ thiết kế kỹ thuật thi công của anh Hiếu dày hàng chục trang, chi tiết đến từng viên gạch.
-
Kết cấu: Sử dụng móng đơn hoặc móng băng tùy địa chất (được khảo sát kỹ), hệ khung bê tông cốt thép chịu lực. Tường xây gạch đặc mác 75.
-
Điện nước: Sơ đồ bố trí ổ cắm, công tắc, đường cấp thoát nước được tính toán kỹ lưỡng để thuận tiện sử dụng và dễ dàng sửa chữa sau này.
-
Chi tiết cửa: Cửa đi D1 kích thước 2700x2700mm, cửa thông phòng, cửa sổ đều có bản vẽ chi tiết từng đố cửa, bản lề.
Sự tỉ mỉ này giúp anh Hiếu và thợ thi công dễ dàng giám sát, đảm bảo công trình sau khi hoàn thiện giống hệt bản vẽ 3D. Đây là cam kết chất lượng mà Techhome luôn đặt lên hàng đầu khi triển khai bất kỳ mẫu nhà mái Nhật 2 tầng nào.
5. Tại sao “Mẫu nhà mái Nhật 2 tầng” lại là xu hướng tại Nghệ An?
Không phải ngẫu nhiên mà anh Hiếu và rất nhiều khách hàng tại Nghệ An, Hà Tĩnh lại chuộng mẫu nhà mái Nhật 2 tầng.
-
Thẩm mỹ: Hệ mái Nhật (mái lùn) mở rộng ra các hướng, tạo sự cân đối, bề thế nhưng vẫn khiêm nhường, không quá gay gắt như mái Thái.
-
Kinh tế: Chi phí thi công mái Nhật thường tiết kiệm hơn mái Thái do biện pháp thi công đơn giản hơn, ít ngói ria hơn.
-
Công năng: Với diện tích đất ở quê thường rộng rãi hơn phố, việc xây 2 tầng là vừa đủ đẹp, không quá cao gây loãng không gian, lại dễ quản lý, dọn dẹp.

6. Báo giá thiết kế và thi công mẫu nhà mái Nhật 2 tầng
Nhiều bạn đọc chắc hẳn đang thắc mắc: “Để sở hữu một mẫu nhà mái Nhật 2 tầng đẹp như của anh Hiếu thì chi phí thế nào?”. Techhome xin đưa ra bảng dự toán tham khảo (lưu ý giá có thể thay đổi tùy thời điểm và giá vật liệu tại địa phương):
Bảng Báo Giá Thiết Kế Kiến Trúc
(Đơn vị: VNĐ/m2)
Thiết kế Kiến trúc: 108.000/m2
Thiết kế Nội thất: 150.000/m2
Bảng Dự Toán Chi Phí Xây Dựng (Tham khảo cho nhà ~190m2 sàn)
Với mẫu nhà mái Nhật 2 tầng tổng diện tích sàn khoảng 190m2 như nhà anh Hiếu, chi phí xây dựng trọn gói dự kiến như sau:
| Hạng mục | Đơn giá (VNĐ/m2) | Thành tiền ước tính (VNĐ) |
| Xây dựng phần thô + Nhân công hoàn thiện | 3.800.000 – 4.500.000 | ~ 750.000.000 – 900.000.000 |
| Vật tư hoàn thiện (Gạch, sơn, thiết bị vệ sinh, cửa…) | 2.000.000 – 3.000.000 | ~ 400.000.000 – 600.000.000 |
| Tổng cộng (Chìa khóa trao tay) | ~ 6.000.000 | ~ 1.15 tỷ – 1.5 tỷ |
Lưu ý: Chi phí trên chưa bao gồm nội thất rời (giường, tủ, bàn ghế sofa…). Để có báo giá chính xác nhất cho mẫu nhà mái Nhật 2 tầng của riêng bạn, hãy liên hệ trực tiếp hotline của Techhome.
Để tìm hiểu rõ hơn về tiêu chuẩn vật liệu xây dựng và các yếu tố ảnh hưởng đến chi phí, bạn có thể tham khảo thêm tại các bài viết chuyên sâu về vật liệu xây dựng cao cấp trên Wikipedia.
7. Vì sao nên chọn Techhome cho ngôi nhà mơ ước của bạn?
Giữa hàng trăm đơn vị thiết kế, tại sao anh Hiếu tại Quỳnh Sơn lại chọn Techhome để gửi gắm mẫu nhà mái Nhật 2 tầng tâm huyết của mình?
-
Minh bạch: Chúng tôi làm việc dựa trên hợp đồng rõ ràng, bảng giá chi tiết, không phát sinh chi phí vô lý.
-
Tận tâm: Dù bạn ở Hà Nội hay Nghệ An, đội ngũ KTS Techhome luôn sẵn sàng hỗ trợ tư vấn kỹ thuật 24/7 qua hotline 0364.04.2222
-
Chất lượng: Hồ sơ thiết kế đầy đủ các bộ môn: Kiến trúc, Kết cấu, Điện, Nước. Đảm bảo thợ địa phương nhìn vào là làm được ngay.
-
Thấu hiểu: Chúng tôi lắng nghe câu chuyện của bạn để vẽ nên ngôi nhà của bạn, chứ không phải áp đặt cái tôi của người thiết kế.
8. Lời kết
Ngôi nhà của anh Hiếu tại Nghệ An đang dần thành hình, hứa hẹn sẽ là một không gian sống lý tưởng, đầy ắp tiếng cười. Mẫu nhà mái Nhật 2 tầng này không chỉ là một công trình xây dựng, mà là nơi lưu giữ những khoảnh khắc hạnh phúc của gia đình.
Nếu bạn cũng đang ấp ủ dự định xây dựng một mẫu nhà mái Nhật 2 tầng, hay bất kỳ phong cách nào khác, đừng ngần ngại liên hệ với Kiến trúc Techhome. Chúng tôi ở đây để cùng bạn hiện thực hóa giấc mơ “an cư lạc nghiệp”.
Hãy gọi ngay cho chúng tôi để nhận tư vấn miễn phí và ưu đãi thiết kế mới nhất!
CÔNG TY CỔ PHẦN KIẾN TRÚC VÀ XÂY DỰNG TECHHOME
-
Hotline: 0364.04.2222 – 0387.60.3333
-
Website: nhadeptechhome.vn
-
Địa chỉ: B1.1 LK18 Ô 3 – KĐT Thanh Hà – Cienco 5 – Thanh Oai- Hà Nội.
