Có những cơ duyên thật lạ, Techhome đến với mảnh đất Quỳnh Sơn, Nghệ An vào một ngày nắng vàng rực rỡ để khảo sát khu đất cho gia đình anh Hiếu. Giữa khung cảnh làng quê yên bình, anh Hiếu chia sẻ với chúng tôi về ước mơ một ngôi nhà không cần quá cao sang, nhưng phải đủ đầy, ấm cúng và đặc biệt là phải “mát về mùa hè, ấm về mùa đông”.
Sau khi lắng nghe tâm tư ấy, đội ngũ kiến trúc sư đã đặt bút phác thảo nên mẫu nhà cấp 4 mái Nhật hiện đại. Đây không chỉ là nơi che mưa che nắng, mà là tổ ấm, là niềm tự hào của cả gia đình sau bao năm tích cóp. Nếu bạn cũng đang tìm kiếm một thiết kế nhà cấp 4 mái Nhật vừa vặn cho khu đất quê nhà, hãy cùng Techhome khám phá chi tiết công trình này nhé.
1. Nhà Cấp 4 Mái Nhật: Làn gió mới trong kiến trúc nông thôn Việt
Khoảng 5 năm trở lại đây, xu hướng xây dựng nhà cấp 4 mái Nhật đang “làm mưa làm gió” từ thành thị đến nông thôn. Khác với mái Thái cao vút và cầu kỳ, mái Nhật (hay còn gọi là mái lùn) có độ dốc nhẹ hơn, mở rộng ra các hướng khác nhau, thường là thiết kế lớp chồng lớp .
Tại sao anh Hiếu lại chốt phương án nhà cấp 4 mái Nhật thay vì các kiểu dáng khác?
-
Thứ nhất, tính thẩm mỹ: Hệ mái Nhật mang lại vẻ đẹp thanh thoát, nhẹ nhàng nhưng cực kỳ bề thế. Nhìn vào phối cảnh mặt tiền , bạn sẽ thấy ngôi nhà toát lên sự cân đối, hài hòa, không quá phô trương nhưng đủ để ai đi qua cũng phải ngoái nhìn.
-
Thứ hai, công năng chống nóng: Với khí hậu khắc nghiệt của Nghệ An, hệ mái ngói kết hợp với khung kèo thép nhẹ tạo ra khoảng đệm không khí, giúp giải nhiệt cực tốt cho không gian bên dưới.
Có thể khẳng định, mẫu nhà cấp 4 mái Nhật chính là giải pháp “vừa túi tiền, đẹp hình thức” cho các gia chủ hiện đại.

2. “Soi” chi tiết ngoại thất: Vẻ đẹp đến từ sự giản đơn
Mặt tiền ngôi nhà cấp 4 mái Nhật của anh Hiếu rộng khoảng 9.6m , được khoác lên mình tấm áo màu trắng sứ tinh khôi kết hợp với các mảng tường sơn màu xanh dương nhấn nhá.
-
Hệ cột và sảnh đón: Hai cột trụ vuông vức nâng đỡ hệ mái sảnh, chân cột được ốp đá rối màu ghi đen sạch sẽ. Phần thân cột được đắp phào chỉ nổi dày 50mm rộng 100mm, tạo điểm nhấn khỏe khoắn. Bước lên sảnh là hệ bậc ngũ cấp được ốp đá Granite đen – cổ trắng sang trọng , giúp tôn nền nhà cao ráo hơn hẳn so với sân vườn.
-
Cửa chính – Linh hồn của mặt tiền: Anh Hiếu rất chịu chi khi lựa chọn cửa đi 4 cánh mở quay làm bằng gỗ Lim Nam Phi, pano đặc kết hợp kính an toàn 8.38mm. Màu nâu đỏ của gỗ Lim nổi bật trên nền sơn trắng, tạo nên vẻ uy nghi cho ngôi nhà cấp 4 mái Nhật.
-
Hệ thống cửa sổ: Để tận dụng ánh sáng tự nhiên, toàn bộ cửa sổ được sử dụng nhôm hệ kính cường lực hoặc kính an toàn 6.38mm. Thiết kế cửa sổ lớn giúp gió trời lưu thông, xua tan cái nóng bức của miền Trung.

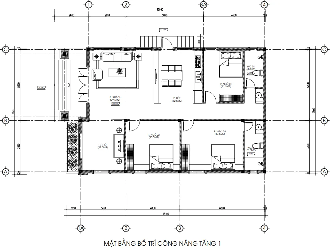
3. Mặt bằng công năng: Bài toán diện tích được giải quyết triệt để
Điểm đắt giá nhất của mẫu nhà cấp 4 mái Nhật này không chỉ nằm ở vẻ ngoài, mà còn ở cách bố trí công năng bên trong. Với chiều dài xây dựng khoảng 16m tính cả sảnh, KTS đã khéo léo sắp xếp các phòng ốc liên hoàn, tiện lợi cho sinh hoạt.
Mời bạn cùng tôi “tham quan” qua bản vẽ mặt bằng bố trí nội thất tầng 1:
-
Phòng khách (29.5m2): Bước qua sảnh chính là phòng khách rộng thênh thang. Đây là không gian sinh hoạt chung, nơi anh Hiếu dự định đặt bộ bàn ghế gỗ Đồng Kỵ kích thước lớn.
-
Phòng thờ (11.0m2): Nằm ngay cạnh phòng khách, hướng ra mặt tiền. Vị trí này đảm bảo sự trang nghiêm và hợp phong thủy, là nơi con cháu tưởng nhớ tổ tiên.
-
Bếp ăn (12.5m2): Được thiết kế lùi về phía sau, có cửa phụ đi ra sảnh bên hông. Thiết kế này cực kỳ tinh tế: khi nhà có giỗ chạp hay đi chợ về, các bà các mẹ có thể đi thẳng vào bếp mà không cần xách đồ tươi sống qua phòng khách.
-
Không gian riêng tư: Ngôi nhà cấp 4 mái Nhật này sở hữu 03 phòng ngủ:
-
Phòng ngủ 01: 11.5m2.
-
Phòng ngủ 02: 15.5m2.
- Phòng ngủ 03: 17.5m2.
- Các phòng đều vuông vắn, dễ kê giường tủ.
-
-
Khu vệ sinh: Nhà có 2 WC. WC01 (4.0m2) và WC02 (5.0m2) được đặt kín đáo ở cuối hành lang, đảm bảo vệ sinh và mỹ quan chung.
Sự bố trí này biến ngôi nhà cấp 4 mái Nhật thành một không gian sống lý tưởng, nơi mọi thành viên đều có sự kết nối nhưng vẫn giữ được khoảng trời riêng.

4. Bóc tách kỹ thuật: Những con số biết nói
Để ngôi nhà cấp 4 mái Nhật bền đẹp theo thời gian, Techhome đã đưa ra những chỉ định kỹ thuật rất khắt khe trong hồ sơ thiết kế thi công .
-
Kết cấu mái: Chúng tôi sử dụng hệ vì kèo thép mạ kẽm chống gỉ (C75.75) và lito (TS30.48) với khoảng cách 400mm . Ngói lợp là loại ngói sóng màu xanh than, vừa hiện đại vừa bền màu.
-
Trần nhà: Trần thạch cao khung xương chìm, tấm thái chống ẩm được sử dụng cho toàn bộ trần tầng 1. Kết hợp với hệ thống đèn led âm trần phi 90, không gian nội thất trở nên lung linh, sang trọng vào buổi tối.
-
Sàn nhà: Toàn bộ sàn nhà được lát gạch Granite kích thước lớn (có thể là 80x80cm), riêng khu vệ sinh dùng gạch chống trơn 300x300mm
Đặc biệt, bản vẽ mặt bằng định vị cửa và chi tiết cửa thể hiện rõ kích thước Lỗ Ban phong thủy, giúp gia chủ đón tài lộc, may mắn. Đây là điều mà Techhome luôn chú trọng trong mọi thiết kế nhà cấp 4 mái Nhật.

5. Dự toán chi phí: Xây nhà cấp 4 mái Nhật hết bao nhiêu?
Đây chắc hẳn là phần các bạn mong chờ nhất. Dựa trên hồ sơ kỹ thuật thi công của nhà anh Hiếu và đơn giá thị trường năm 2026, tôi xin lập bảng báo giá khái toán để các bạn tham khảo.
(Lưu ý: Diện tích xây dựng tạm tính khoảng 145m2 sàn + diện tích mái đua).
| Hạng mục | Diễn giải | Đơn giá tham khảo (VNĐ) | Thành tiền ước tính (VNĐ) |
| Chi phí thiết kế | Bản vẽ kiến trúc, kết cấu, điện nước | 108.000/m2 | ~ 16.000.000 |
| Phần thô & Nhân công | Móng, khung cột, xây trát, mái, điện nước âm | 3.800.000 – 4.500.000/m2 | ~ 600.000.000 – 650.000.000 |
| Vật tư hoàn thiện | Gạch ốp lát, sơn bả, trần thạch cao, thiết bị vệ sinh cơ bản | 2.500.000 – 3.000.000/m2 | ~ 350.000.000 – 450.000.000 |
| Cửa & Nội thất liền tường | Cửa gỗ Lim, cửa nhôm kính, tủ bếp | Tùy chọn chất liệu | ~ 150.000.000 – 200.000.000 |
| Tổng cộng (Chìa khóa trao tay) | ~ 1.1 Tỷ – 1.3 Tỷ |
Mức giá trên dành cho một ngôi nhà cấp 4 mái Nhật với vật liệu loại Khá – Tốt. Chi phí thực tế có thể tăng giảm tùy thuộc vào thời điểm mua vật tư, vị trí tập kết vật liệu và các yêu cầu riêng của gia chủ (ví dụ: thay cửa nhôm bằng cửa gỗ toàn bộ sẽ đắt hơn).
Nếu bạn muốn có bảng dự toán chi tiết đến từng viên gạch cho ngôi nhà cấp 4 mái Nhật của mình, hãy liên hệ ngay với Techhome để được bóc tách khối lượng miễn phí nhé!
Để tìm hiểu rõ hơn về tiêu chuẩn vật liệu xây dựng và các yếu tố ảnh hưởng đến chi phí, bạn có thể tham khảo thêm tại các bài viết chuyên sâu về vật liệu xây dựng cao cấp trên Wikipedia.

6. Kinh nghiệm xương máu khi xây nhà cấp 4 mái Nhật
Là người trực tiếp tư vấn cho nhiều gia chủ, tôi thấy mẫu nhà cấp 4 mái Nhật tuy dễ thi công nhưng vẫn có những “bẫy” mà nếu không có kinh nghiệm, bạn rất dễ mắc phải:
-
Độ dốc mái: Mái Nhật có độ dốc thấp hơn mái Thái (thường < 30 độ). Nếu thợ thi công theo thói quen làm dốc quá cao sẽ làm mất đi cái “chất” bề thế, bay bổng của mái Nhật. Ngược lại, nếu dốc quá thấp sẽ dễ bị thấm dột khi mưa lớn. Bản vẽ mái của Techhome đã tính toán độ dốc tối ưu để thoát nước nhanh nhất.
-
Tỷ lệ hình khối: Vì là nhà 1 tầng, chiều cao của phần mái và phần thân nhà phải cân đối. Nhiều nhà tự xây thường làm phần mái quá đồ sộ khiến ngôi nhà trông nặng nề, hoặc mái quá bé trông “cụt lủn”.
-
Lựa chọn màu sắc: Nhà cấp 4 mái Nhật hợp với các tông màu trung tính, hiện đại như trắng, ghi, xanh than. Tránh phối quá nhiều màu sặc sỡ sẽ làm ngôi nhà bị “quê”.

7. Phong thủy trong thiết kế nhà cấp 4 mái Nhật
Người Việt ta có câu “Có thờ có thiêng, có kiêng có lành”. Trong mẫu nhà cấp 4 mái Nhật của anh Hiếu, yếu tố phong thủy được KTS Techhome đặc biệt lưu tâm.
-
Hướng cửa chính: Được quay theo hướng hợp tuổi gia chủ (Anh Hiếu) để đón sinh khí.
-
Bếp nấu: Đặt tại cung xấu nhìn về hướng tốt (Tọa hung hướng cát) để thiêu đốt những điều không may mắn.
-
Kích thước cửa: Tất cả các cửa đi đều được tra thước Lỗ Ban 52.2cm (thước thông thủy) để rơi vào các cung Tài, Nghĩa, Quan
Sở hữu một ngôi nhà cấp 4 mái Nhật chuẩn phong thủy không chỉ giúp gia đạo bình an mà còn hỗ trợ con đường công danh sự nghiệp của gia chủ thăng tiến.
8. Tại sao khách hàng Nghệ An tin chọn Techhome?
Quỳnh Sơn, Nghệ An không thiếu các đội thợ xây dựng, nhưng để có một bản vẽ nhà cấp 4 mái Nhật chuẩn chỉnh như nhà anh Hiếu thì cần một đơn vị thiết kế chuyên nghiệp.
Anh Hiếu chia sẻ: “Ban đầu mình định tự xây cho tiết kiệm, nhưng nghĩ đi nghĩ lại, cả đời làm nhà có một lần, lỡ xây lên mà không ưng thì đập đi không được, ở cũng không xong. Tìm đến Techhome, thấy các bạn làm việc bài bản, hồ sơ dày cộp chi tiết từng cái ổ cắm điện, mình yên tâm hẳn.”
Sự hài lòng của anh Hiếu chính là động lực để Techhome không ngừng sáng tạo thêm nhiều mẫu nhà cấp 4 mái Nhật đẹp hơn nữa.

Lời kết
Ngôi nhà cấp 4 mái Nhật của gia đình anh Hiếu tại Nghệ An là minh chứng sống động cho thấy: Hạnh phúc đôi khi chỉ là được trở về một nơi chốn bình yên, đẹp đẽ và tiện nghi sau những ngày làm việc vất vả.
Một ngôi nhà đẹp không nhất thiết phải dát vàng, mà là ngôi nhà được thiết kế bằng cả tâm huyết và sự thấu hiểu. Techhome tự hào là người kiến tạo nên những tổ ấm như thế.
Nếu bạn đã “phải lòng” mẫu nhà cấp 4 mái Nhật này, đừng ngần ngại nhấc máy lên và gọi cho chúng tôi. Đội ngũ KTS Techhome luôn sẵn sàng lắng nghe và hiện thực hóa giấc mơ an cư của bạn.
CÔNG TY CỔ PHẦN KIẾN TRÚC VÀ XÂY DỰNG TECHHOME
-
Hotline tư vấn 24/7: 0364.042.222 – 0387.603.333
-
Website: https://nhadeptechhome.vn/
-
Địa chỉ: B1.1 LK18 Ô 3 – KĐT Thanh Hà – Cienco 5 – Thanh Oai- Hà Nội.
Cảm ơn bạn đã dành thời gian đọc bài viết. Chúc bạn sớm xây dựng được ngôi nhà cấp 4 mái Nhật ưng ý nhất!
