Xây nhà chưa bao giờ là một quyết định dễ dàng. Đó là kết quả của nhiều năm tích lũy, là ước mơ về một tổ ấm an yên, và cũng là “bài toán” cân não về chi phí lẫn công năng. Hôm nay, tôi muốn kể cho bạn nghe câu chuyện về mẫu nhà phố 3 tầng hiện đại của gia đình chị Nhung tại Tứ Kỳ, Hải Dương – một công trình mà Techhome chúng tôi đã dành rất nhiều tâm huyết để kiến tạo.
Nếu bạn đang sở hữu một mảnh đất phố và đang loay hoay tìm kiếm ý tưởng, hãy cùng tôi đi sâu vào chi tiết hồ sơ thiết kế này để thấy được cách chúng tôi tối ưu từng centimet vuông diện tích.
1. Tổng Quan Kiến Trúc: Sự Sang Trọng Đến Từ Những Điều Đơn Giản
Ngay từ cái nhìn đầu tiên vào phối cảnh 3D, bạn sẽ thấy mẫu nhà phố 3 tầng hiện đại này mang một phong thái rất riêng. Không cầu kỳ hoa mỹ với những đường phào chỉ rườm rà, ngôi nhà thu hút bởi những khối hình kiến trúc mạnh mẽ, dứt khoát.
Màu sắc và chất liệu ngoại thất
Chúng tôi sử dụng gam màu trắng chủ đạo kết hợp với sắc xám trầm và những mảng tường ốp đá granite vân mây ở tầng 1. Sự kết hợp này không chỉ tạo cảm giác sạch sẽ, hiện đại mà còn giúp ngôi nhà “bền màu” cùng thời gian.
-
Hệ thống cửa: Toàn bộ cửa chính và cửa sổ đều sử dụng nhôm hệ kính cường lực cao cấp màu đen. Điều này giúp tối đa hóa ánh sáng tự nhiên, giúp không gian bên trong luôn thông thoáng.
-
Ban công: Lan can kính cường lực được lựa chọn để không làm che lấp đi vẻ đẹp của hình khối kiến trúc, đồng thời tạo tầm nhìn rộng mở ra phía ngoài..
Điểm nhấn xanh và ánh sáng
Tại tầng 3, Techhome đã khéo léo bố trí một hệ lam gỗ trang trí phía trên sân thượng.. Đây không chỉ là điểm nhấn thẩm mỹ cho mẫu nhà phố 3 tầng hiện đại mà còn là nơi chủ nhà có thể treo những giỏ lan, trồng cây xanh, tạo một khoảng lùi bình yên ngay giữa lòng phố thị.

2. Phân Tích Công Năng Chi Tiết: Tối Ưu Cho Gia Đình Đông Thành Viên
Một ngôi nhà đẹp trước hết phải là một ngôi nhà tiện nghi. Với tổng chiều cao công trình là 11.15m, chúng tôi đã chia không gian thành 3 tầng với những chức năng riêng biệt, đảm bảo tính riêng tư nhưng vẫn gắn kết.
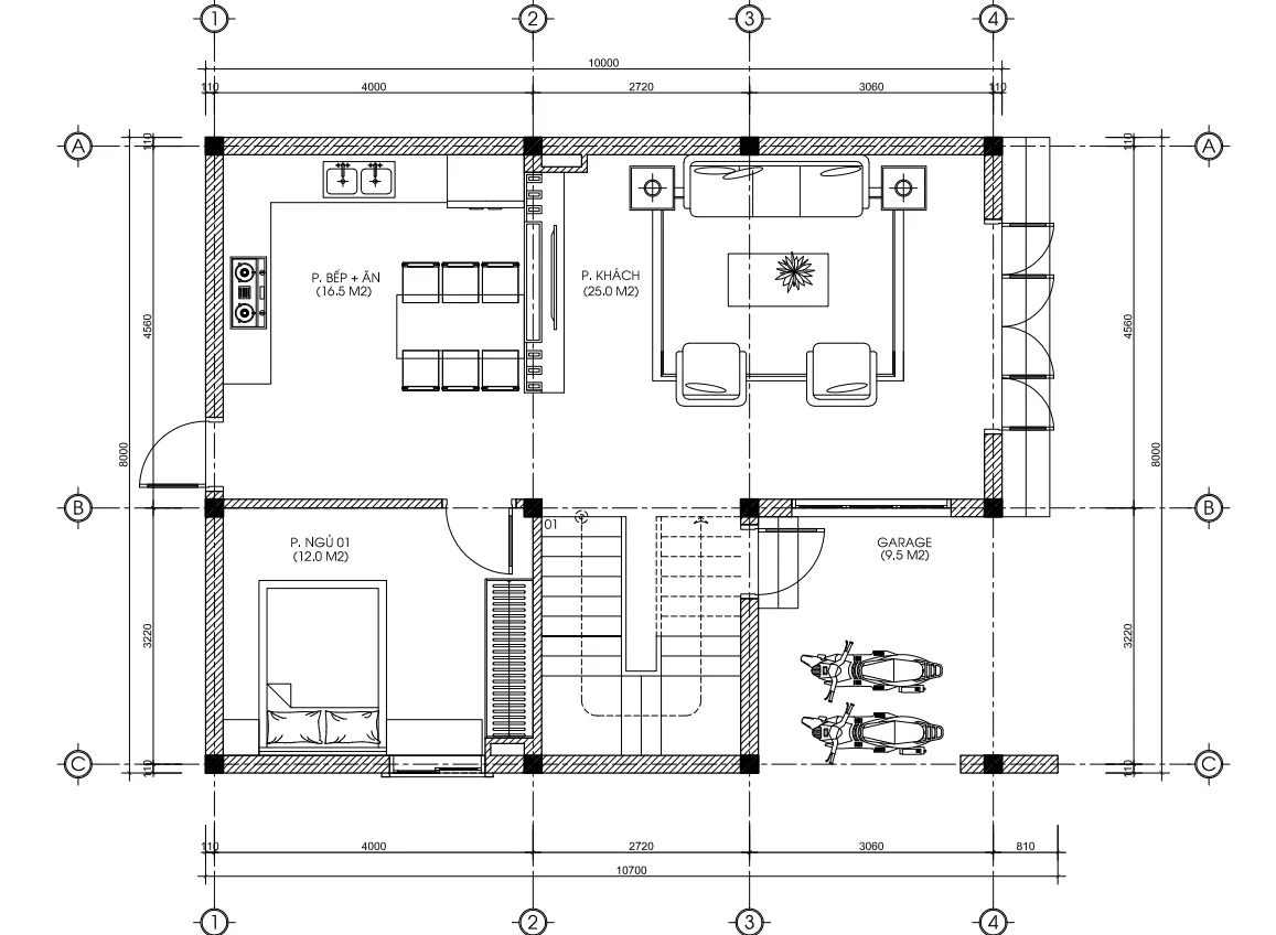
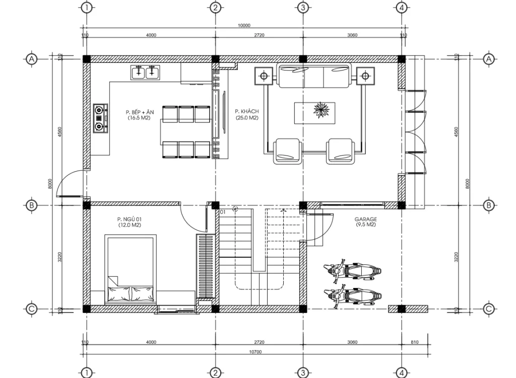
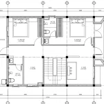
Tầng 1: Không gian sinh hoạt chung và tiếp khách
Mặt bằng tầng 1 được thiết kế với sự ưu tiên cho sự thông thoáng:
-
Gara: Diện tích 9.5m2, đủ chỗ cho phương tiện đi lại của gia đình mà không ảnh hưởng đến lối vào chính.
-
Phòng khách: Rộng 25.0m2, nằm ngay sau sảnh chính. Đây là “bộ mặt” của ngôi nhà, nơi chị Nhung đón tiếp bạn bè và người thân.
-
Phòng bếp + ăn: Có diện tích 16.5m2, được ngăn cách nhẹ nhàng với phòng khách, tạo sự thông suốt cho luồng không khí.
-
Phòng ngủ 01: Diện tích 12.0m2, rất thích hợp cho người lớn tuổi trong nhà để tránh việc phải leo cầu thang.

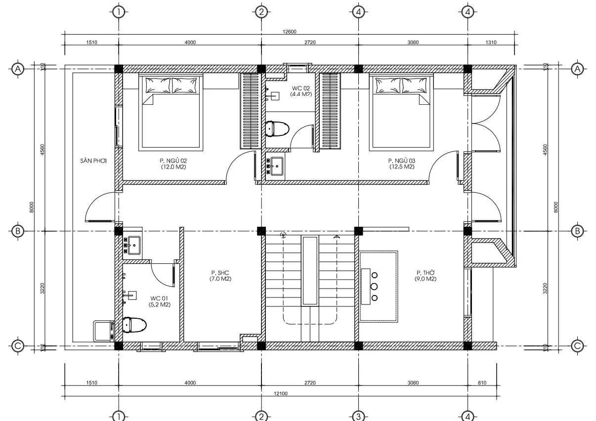
Tầng 2: Nơi nghỉ ngơi và tâm linh
Lên đến tầng 2, không gian trở nên yên tĩnh hơn với:
-
Phòng ngủ 02 và 03: Diện tích lần lượt là 12.0m2 và 12.5m2. Mỗi phòng đều được bố trí cửa sổ lớn để đón gió trời.
-
Phòng thờ: Rộng 9.0m2, đặt ở vị trí trang trọng nhất, hướng ra phía mặt tiền, đảm bảo yếu tố phong thủy và sự tôn nghiêm.
-
Phòng sinh hoạt chung: Diện tích 7.0m2, là nơi cả gia đình quây quần xem phim hoặc trò chuyện mỗi tối trước khi đi ngủ.

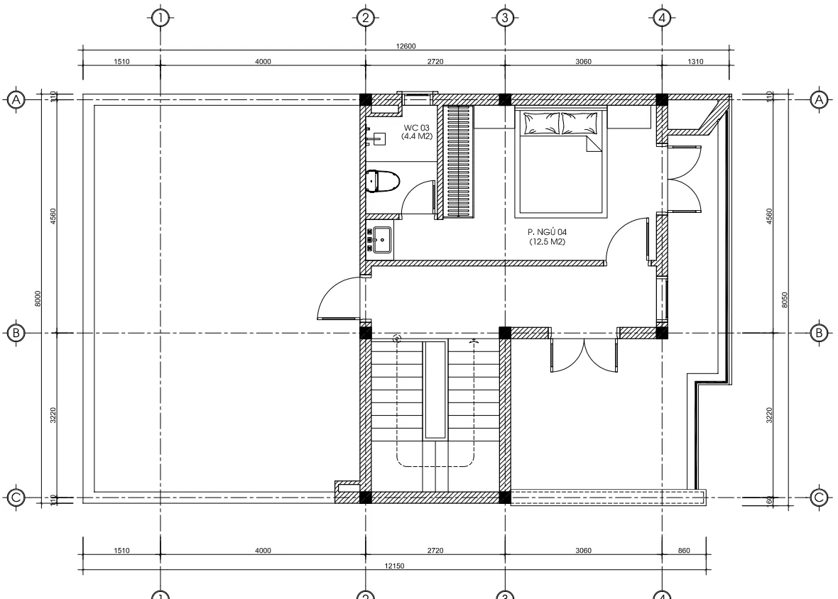
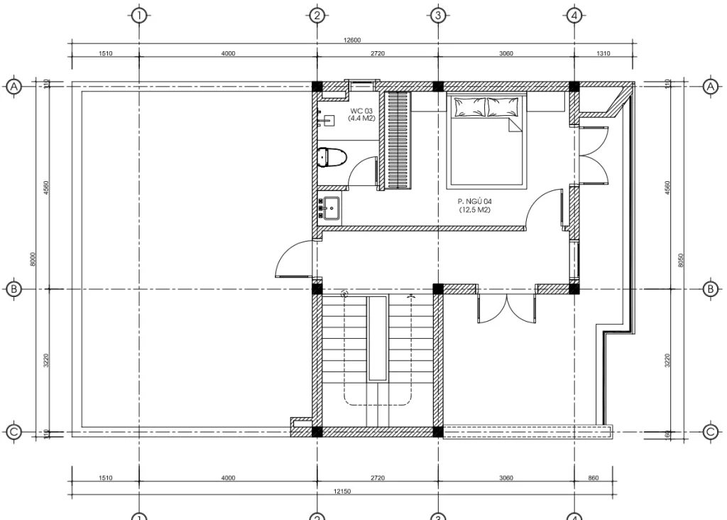
Tầng 3: Không gian mở và dự phòng
Mẫu nhà phố 3 tầng hiện đại này còn sở hữu tầng 3 đầy linh hoạt:
-
Phòng ngủ 04: Diện tích 12.5m2, có WC khép kín 4.4m2.
-
Sân chơi và sân phơi: Chiếm phần lớn diện tích còn lại, cho phép gia đình tổ chức những bữa tiệc BBQ ngoài trời hoặc làm vườn sân thượng.

3. Chi Tiết Kỹ Thuật: Khi Sự Tỉ Mỉ Tạo Nên Chất Lượng
Là một chuyên gia xây dựng, tôi muốn bạn chú ý đến những chi tiết “ngầm” mà Techhome đã tính toán trong hồ sơ này. Đây chính là yếu tố làm nên sự khác biệt của một mẫu nhà phố 3 tầng hiện đại chất lượng.
Hệ thống điện và chiếu sáng
Chúng tôi không chỉ lắp bóng đèn cho sáng, chúng tôi thiết kế ánh sáng.
-
Đèn Downlight âm trần: Được bố trí đều khắp các phòng để tạo ánh sáng nền mịn màng.
-
Đèn LED hắt khe trần: Tạo chiều sâu cho không gian, giúp trần nhà trông cao và thoáng hơn.
-
Đèn trang trí: Tại khu vực cầu thang và phòng khách, các mẫu đèn lon và đèn chùm được lựa chọn kỹ lưỡng để tôn lên vẻ sang trọng.
Lát sàn và ốp tường
-
Sàn phòng khách và bếp sử dụng gạch Granite kích thước 800 x 800mm màu sáng để tạo cảm giác rộng rãi.
-
Khu vực nhà vệ sinh dùng gạch Ceramic chống trơn kích thước 300 x 300mm, đảm bảo an toàn tuyệt đối cho người sử dụng.
-
Bậc cầu thang được lát đá Granite đen kim sa, vừa bền bỉ vừa dễ dàng vệ sinh.

4. Báo Giá Xây Dựng Trọn Gói (Tham Khảo)
Để bạn dễ dàng hình dung về mức đầu tư cho một mẫu nhà phố 3 tầng hiện đại tương tự dự án chị Nhung, Techhome xin đưa ra bảng báo giá sơ bộ. Lưu ý: Đơn giá thực tế sẽ phụ thuộc vào vị trí thi công, thời điểm và chủng loại vật liệu hoàn thiện mà bạn lựa chọn.
| Hạng mục thi công | Đơn giá (VNĐ/m2) | Ghi chú |
| Thi công phần thô | 3.500.000 – 4.500.000 | Bao gồm nhân công, vật tư xây thô (sắt, thép, gạch, đá, cát…) |
| Thi công trọn gói (Chìa khóa trao tay) | 6.500.000 – 7.500.000 | Bao gồm phần thô + hoàn thiện (cửa, sơn, gạch lát, thiết bị vệ sinh…) |
| Phí thiết kế kiến trúc | 108.000 | kiến trúc, kết cấu, điện nước, dự toán. |
Ví dụ: Với tổng diện tích sàn xây dựng khoảng 250 – 280m2 như nhà chị Nhung, mức đầu tư trọn gói sẽ rơi vào khoảng 1.5 – 1.8 tỷ đồng. Đây là mức giá cực kỳ cạnh tranh cho một công trình có chất lượng hoàn thiện cao cấp tại Hải Dương.
Lưu ý: Đây chỉ là mức chi phí ước tính. Để nhận được báo giá chính xác và chi tiết nhất cho công trình của bạn, vui lòng liên hệ trực tiếp với chúng tôi. Hoặc để tìm hiểu rõ hơn về tiêu chuẩn vật liệu xây dựng và các yếu tố ảnh hưởng đến chi phí, bạn có thể tham khảo thêm tại các bài viết chuyên sâu về vật liệu xây dựng cao cấp trên Wikipedia.

5. Tại Sao Nên Chọn Techhome Làm Đơn Vị Đồng Hành?
Giữa hàng trăm công ty kiến trúc, tại sao chị Nhung và rất nhiều gia chủ tại Hải Dương lại tin tưởng Techhome?
-
Chính xác về kỹ thuật: Mọi bản vẽ từ mặt bằng định vị đến chi tiết lỗ cửa đều được các kiến trúc sư và đội ngũ kiểm duyệt kỹ lưỡng. Chúng tôi hiểu rằng, sai một li trên bản vẽ là đi một dặm trên thực tế.
-
Tư vấn tận tâm: Chúng tôi không bán bản vẽ, chúng tôi tư vấn giải pháp. Nếu mảnh đất của bạn bị xéo, hoặc hướng nắng quá gắt, Techhome sẽ tìm cách khắc phục bằng kiến trúc thay vì bắt bạn phải chấp nhận.
-
Minh bạch chi phí: Mọi hạng mục trong mẫu nhà phố 3 tầng hiện đại đều có báo giá rõ ràng, không phát sinh chi phí “ẩn” trong quá trình thi công.
-
Hỗ trợ 24/7: Hotline hỗ trợ kỹ thuật xây dựng 0364042222 luôn sẵn sàng giải đáp mọi thắc mắc của bạn, kể cả khi công trình đã bàn giao.

6. Góc Nhìn Chuyên Gia: 3 Lưu Ý “Vàng” Khi Xây Nhà Phố
Với tư cách là người trực tiếp tham gia vào hàng trăm dự án, tôi có một vài lời khuyên dành cho bạn khi chuẩn bị xây dựng mẫu nhà phố 3 tầng hiện đại:
-
Đừng tiết kiệm chi phí thiết kế: Một bản hồ sơ kỹ thuật thi công hoàn chỉnh như của dự án này sẽ giúp bạn quản lý được khối lượng vật tư, tránh tình trạng dư thừa lãng phí hoặc thiếu hụt gây đình trệ công việc.
-
Chú ý hệ thống thông tầng (Giếng trời): Nhà phố thường hẹp và sâu. Hãy tận dụng khu vực cầu thang để làm giếng trời. Ánh sáng tự nhiên không chỉ giúp tiết kiệm điện mà còn mang lại sinh khí, tốt cho sức khỏe cả gia đình.
-
Lựa chọn vật liệu hoàn thiện thông minh: Ví dụ, thay vì dùng cửa gỗ tự nhiên cho các cửa ngoài trời (dễ cong vênh do thời tiết Hải Dương), hãy ưu tiên nhôm hệ cao cấp. Nó vừa hiện đại, vừa bền bỉ mà tính thẩm mỹ lại cực cao.

Kết Luận
Công trình của chị Nhung tại Tứ Kỳ là minh chứng rõ nét cho việc: Khi sự hiện đại gặp gỡ sự thấu hiểu, chúng ta sẽ có một tổ ấm tuyệt vời. Mẫu nhà phố 3 tầng hiện đại không chỉ là những khối bê tông vô hồn, đó là nơi nuôi dưỡng cảm xúc và khẳng định phong cách sống của gia chủ.
Nếu bạn đang nung nấu ý định xây dựng một ngôi nhà đẹp như thế này, đừng ngần ngại nhấc máy lên và gọi cho chúng tôi. Chúng tôi không hứa sẽ xây cho bạn ngôi nhà rẻ nhất, nhưng chúng tôi cam kết mang đến cho bạn ngôi nhà đáng sống nhất.
Công ty Cổ phần Kiến trúc và Xây dựng Techhome
-
Địa chỉ: B1.1 LK18 Ô 3 – KĐT Thanh Hà – Cienco 5 – Thanh Oai- Hà Nội.
-
Hotline: 0364042222 / 0387603333.
-
Website: https://nhadeptechhome.vn/
-
Bạn có muốn Techhome tư vấn sơ bộ về mặt bằng công năng dựa trên diện tích đất hiện có của bạn không? Hãy để lại thông tin, tôi sẽ liên hệ lại ngay!
