Giới thiệu xu hướng nhà phố hiện đại sang trọng 2025

Trong những năm gần đây, mẫu nhà phố hiện đại sang trọng đang trở thành xu hướng kiến trúc nổi bật, đặc biệt tại các thành phố lớn và khu đô thị mới. Không chỉ mang đến vẻ đẹp thẩm mỹ tinh tế, nhà phố hiện đại còn tối ưu công năng sử dụng, phù hợp với nhịp sống đô thị năng động.
Với sự sáng tạo của các kiến trúc sư Techhome, công trình nhà phố hiện đại 3 tầng dưới đây chính là minh chứng rõ nét cho phong cách thiết kế mới – kết hợp hoàn hảo giữa công năng, thẩm mỹ và phong thủy.
Điểm nhấn kiến trúc ngoại thất nhà phố hiện đại sang trọng
Mặt tiền ấn tượng, thu hút ánh nhìn
Mặt tiền của ngôi nhà phố hiện đại được thiết kế theo phong cách tối giản nhưng không kém phần sang trọng. Các mảng khối kiến trúc khỏe khoắn kết hợp với kính cường lực, ban công xanh và hệ lam che nắng tạo nên vẻ đẹp vừa hiện đại vừa gần gũi thiên nhiên.
Hệ cửa kính rộng mở, tối đa ánh sáng tự nhiên
Toàn bộ công trình nhà phố hiện đại sang trọng sử dụng hệ cửa nhôm kính Xingfa cao cấp, giúp không gian luôn tràn ngập ánh sáng, đồng thời mang lại sự thông thoáng và tầm nhìn rộng mở. Đây là đặc trưng nổi bật của nhà phố hiện đại sang trọng so với các mẫu thiết kế truyền thống.
Ban công xanh và sân thượng đa năng
Ban công được bố trí tiểu cảnh xanh, vừa tăng tính thẩm mỹ vừa tạo không gian thư giãn cho gia chủ. Trên tầng thượng, khu vực sân vườn – bàn trà ngoài trời là nơi lý tưởng để cả gia đình sum vầy hoặc tiếp đón bạn bè.
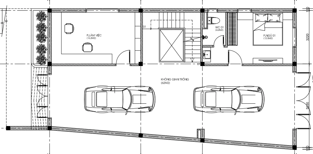
Công năng mặt bằng chi tiết – tối ưu diện tích sống

Tầng 1: Gara ô tô – Phòng ngủ – Văn phòng làm việc
-
Gara rộng rãi, đáp ứng nhu cầu để ô tô và xe máy.
-
Phòng ngủ tiện lợi cho người lớn tuổi hoặc khách.
-
Văn phòng làm việc yên tĩnh, tách biệt với không gian sinh hoạt.
Tầng 2: Phòng khách – Bếp ăn
-
Phòng khách hiện đại sang trọng rộng 32m², trang trí với sofa cao cấp và nội thất tinh giản.
-
Bếp ăn ấm cúng, kết nối với ban công xanh, tạo không gian thoáng mát khi dùng bữa.
Tầng 3: Phòng ngủ master – Phòng ngủ con
-
Phòng ngủ master có WC riêng, thiết kế hiện đại, tiện nghi.
-
Phòng ngủ con thoáng sáng, phù hợp cho học tập và nghỉ ngơi.
Tầng thượng: Không gian giải trí – Sân phơi
-
Sân thượng bố trí mái kính nghệ thuật, vừa che nắng vừa tạo nét thẩm mỹ.
-
Không gian ngoài trời có thể biến thành phòng trà, vườn mini hoặc khu BBQ.
Ưu điểm nổi bật của mẫu nhà phố hiện đại sang trọng
-
Tối ưu công năng: mỗi mét vuông đều được khai thác triệt để, phù hợp với gia đình 2-3 thế hệ.
-
Thẩm mỹ vượt thời gian: phong cách kiến trúc hiện đại sang trọng, không lo lỗi mốt.
-
Kết hợp phong thủy: bố trí phòng khách, bếp, phòng ngủ khoa học, hài hòa âm dương.
-
Chi phí hợp lý: mức đầu tư từ 6 – 7,5 triệu/m² xây dựng trọn gói, phù hợp với nhiều gia đình.
Báo giá thiết kế & thi công trọn gói nhà phố hiện đại sang trọng
-
Thiết kế kiến trúc: chỉ từ 100.000đ/m².
-
Thi công trọn gói: từ 6.0 – 9.5 triệu/m² (tùy vật liệu và mức đầu tư).
-
Cam kết bảo hành dài hạn, tiến độ đúng hẹn, chất lượng chuẩn cao cấp.
Lưu ý: Đây chỉ là mức chi phí ước tính. Để nhận được báo giá chính xác và chi tiết nhất cho công trình của bạn, vui lòng liên hệ trực tiếp với chúng tôi. Hoặc để tìm hiểu rõ hơn về tiêu chuẩn vật liệu xây dựng và các yếu tố ảnh hưởng đến chi phí, bạn có thể tham khảo thêm tại các bài viết chuyên sâu về vật liệu xây dựng cao cấp trên Wikipedia.
Techhome – Đồng hành cùng gia chủ kiến tạo tổ ấm hiện đại
Với hơn 10 năm kinh nghiệm, Techhome đã thi công hàng trăm công trình nhà phố hiện đại sang trọng trên toàn quốc.
👉 Cam kết:
-
Thiết kế chuẩn phong thủy – tối ưu công năng.
-
Thi công đúng tiến độ – đảm bảo chất lượng.
-
Hỗ trợ tư vấn từ bản vẽ đến chìa khóa trao tay.
📍 Văn phòng: B1.1 LK17 ô số 4 – KĐT Thanh Hà, Thanh Oai, Hà Nội
📞 Hotline: 0364 042 222 – 0387 603 333
Xem thêm các dự án nổi bật khác của Techhome tại https://nhadeptechhome.vn/
Mẫu nhà phố hiện đại sang trọng không chỉ mang đến không gian sống tiện nghi, mà còn là biểu tượng của phong cách sống đẳng cấp. Đây chắc chắn sẽ là xu hướng kiến trúc nổi bật trong năm 2025 và nhiều năm tới.
Nếu bạn đang tìm kiếm mẫu nhà phố hiện đại tối ưu công năng và thẩm mỹ, hãy để Techhome đồng hành cùng bạn!




