Năm 2025 hứa hẹn là giai đoạn bùng nổ của những mẫu nhà vườn mái Nhật 2 tầng hiện đại, vừa mang nét thẩm mỹ tinh tế, vừa đáp ứng công năng tối ưu. Với phong cách trẻ trung, kết hợp không gian xanh và chuẩn phong thủy, mẫu nhà này nhanh chóng trở thành “xu hướng xây dựng hot nhất 2025”, được nhiều gia đình Việt lựa chọn.
Trong bài viết này, TechHome sẽ cùng bạn khám phá chi tiết thiết kế nhà vườn mái Nhật 2 tầng hiện đại từ công năng, thẩm mỹ đến chi phí, để bạn có thêm ý tưởng cho tổ ấm tương lai.

Vì sao nhà vườn mái Nhật 2 tầng hiện đại được yêu thích?
-
Phong cách sang trọng: Thiết kế cân đối, hài hòa giữa mái Nhật dốc nhẹ và kiến trúc vuông vức.
-
Không gian thoáng đãng: Sân vườn rộng, cây xanh bao quanh, mang lại cảm giác gần gũi thiên nhiên.
-
Đáp ứng công năng: Với 2 tầng, gia chủ có thể bố trí 3 – 5 phòng ngủ, phòng khách, bếp, thờ và khu sinh hoạt tiện nghi.
-
Chuẩn phong thủy: Mái Nhật biểu trưng cho sự bền vững, giúp lưu thông khí tốt, mang lại tài lộc và may mắn.
-
Chi phí hợp lý: So với biệt thự tân cổ điển, mẫu nhà vườn mái Nhật 2 tầng hiện đại này có chi phí vừa phải nhưng vẫn đảm bảo sự bề thế.
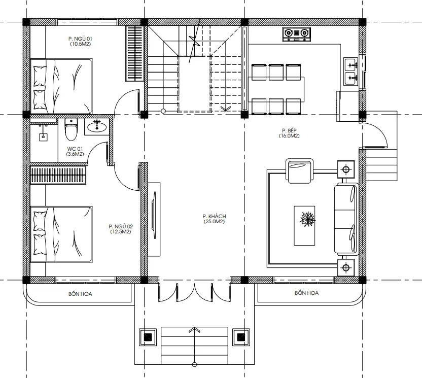
Bản vẽ công năng mẫu nhà vườn mái Nhật 2 tầng hiện đại

Tầng 1:
-
Phòng khách rộng 25m² – không gian tiếp khách sang trọng.
-
Bếp + phòng ăn 16m² – liên thông, thuận tiện sinh hoạt.
-
2 phòng ngủ (10.5m² & 12.5m²).
-
WC chung 3.6m².
Tầng 2:
-
2 – 3 phòng ngủ tùy nhu cầu.
-
Phòng thờ trang trọng, view ban công.
-
Sân chơi, khu giặt phơi, WC chung.
Ưu điểm nổi bật của biệt thự vườn mái Nhật 2 tầng hiện đại
-
Thẩm mỹ hiện đại: Mái Nhật kết hợp mảng tường phẳng, gam màu trắng – xám – nâu sang trọng.
-
Công năng tối ưu: Đáp ứng gia đình 4 – 6 thành viên.
-
Thân thiện thiên nhiên: Sân vườn, bồn hoa, ban công trồng cây xanh.
-
Đa dạng phong cách: Có thể kết hợp tân cổ điển hoặc tối giản tùy sở thích.



Xu hướng thiết kế nhà vườn mái Nhật 2 tầng hiện đại năm 2025
-
Tích hợp công nghệ thông minh: Hệ thống cửa nhôm Xingfa, chiếu sáng LED, camera an ninh.
-
Năng lượng xanh: Sử dụng pin năng lượng mặt trời, hệ thống lọc nước.
-
Không gian mở: Cửa kính lớn giúp lấy sáng tự nhiên, tối ưu gió trời.
-
Phong thủy hiện đại: Kết hợp hồ cá, tiểu cảnh sân vườn, tạo vượng khí.
Chi phí xây dựng tham khảo
-
Diện tích 100 – 120m²/sàn: 1.3 – 1.6 tỷ đồng.
-
Diện tích 150 – 180m²/sàn: 1.8 – 2.5 tỷ đồng.
-
Tùy thuộc: Vật liệu, nội thất, địa điểm xây dựng.
Lưu ý: Đây chỉ là mức chi phí ước tính. Để nhận được báo giá chính xác và chi tiết nhất cho công trình của bạn, vui lòng liên hệ trực tiếp với chúng tôi. Hoặc để tìm hiểu rõ hơn về tiêu chuẩn vật liệu xây dựng và các yếu tố ảnh hưởng đến chi phí, bạn có thể tham khảo thêm tại các bài viết chuyên sâu về vật liệu xây dựng cao cấp trên Wikipedia.
Kết Luận
Mẫu nhà vườn mái Nhật 2 tầng hiện đại chính là lựa chọn hoàn hảo cho những ai yêu thích sự sang trọng, bền vững và gần gũi thiên nhiên. Đây không chỉ là xu hướng xây dựng 2025 mà còn là phong cách kiến trúc trường tồn cùng thời gian.
Nếu bạn đang tìm kiếm đơn vị thiết kế và thi công nhà vườn mái Nhật 2 tầng hiện đại chuẩn phong thủy, hãy liên hệ ngay với TechHome để được tư vấn chi tiết:
Hotline: 0364 042 222 – 0387 603 333
Xem thêm các dự án nổi bật khác của Techhome tại https://nhadeptechhome.vn/
