1. Giới thiệu về xu hướng nhà phố cao tầng hiện đại
Trong bối cảnh đô thị hóa mạnh mẽ, quỹ đất ngày càng hạn hẹp nhưng nhu cầu sở hữu không gian sống tiện nghi kết hợp kinh doanh hiệu quả lại ngày một tăng cao. Đây chính là lý do khiến nhà phố cao tầng trở thành xu hướng kiến trúc được ưa chuộng nhất hiện nay tại các thành phố lớn như Hà Nội, Hải Phòng, TP.HCM, Đà Nẵng…
Không chỉ mang tính thẩm mỹ hiện đại, sang trọng, mẫu nhà phố cao tầng hiện đại mái bằng còn là giải pháp tối ưu cho những gia đình muốn “an cư lạc nghiệp” kết hợp “kinh doanh phát triển” trên cùng một mảnh đất.
2. Nhà phố cao tầng là gì?
Nhà phố cao tầng là loại hình nhà ở đô thị được xây dựng từ 3 đến 5 tầng, thường tọa lạc ở những vị trí có lợi thế mặt tiền. Công trình này vừa đáp ứng nhu cầu sinh hoạt hằng ngày của gia đình, vừa tận dụng tầng trệt hoặc một phần không gian để kinh doanh, cho thuê hoặc mở văn phòng.
2.1. Đặc điểm nổi bật
-
Mặt tiền hẹp nhưng cao tầng: Phù hợp với diện tích đất phố, đất ống.
-
Kết hợp đa công năng: Ở – kinh doanh – cho thuê – làm văn phòng.
-
Phong cách kiến trúc đa dạng: Từ hiện đại, tối giản đến tân cổ điển.
-
Khai thác thương mại lâu dài: Gia tăng giá trị bất động sản bền vững.
2.2. Lý do được ưa chuộng
-
Tối ưu diện tích đất nhỏ.
-
Mang lại hiệu quả kinh doanh cao.
-
Đảm bảo không gian sống riêng tư.
-
Giá trị thẩm mỹ và đầu tư bền vững.
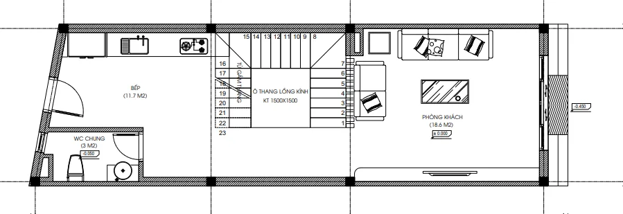
3. Thiết kế công năng điển hình của nhà phố cao tầng hiện đại

Một mẫu nhà phố cao tầng hiện đại thường được bố trí thông minh, khoa học để đảm bảo cả nhu cầu sinh hoạt lẫn thương mại.
3.1. Tầng 1 – Không gian kinh doanh và gara
-
Gara ô tô, xe máy.
-
Khu vực cửa hàng, quán café, văn phòng nhỏ.
-
Nhà vệ sinh tiện lợi cho khách hàng.
3.2. Tầng 2 – Phòng khách và bếp ăn
-
Phòng khách rộng rãi: Thiết kế mở, sử dụng kính lớn để lấy sáng.
-
Phòng bếp + ăn: Kết nối với phòng khách, tạo không gian sinh hoạt chung.
3.3. Tầng 3 – 4: Phòng ngủ & phòng làm việc
-
Các phòng ngủ riêng tư, đầy đủ ánh sáng và thông gió.
-
Có thể bố trí thêm phòng làm việc, phòng học hoặc phòng giải trí.
3.4. Tầng thượng
-
Sân vườn xanh mát, quán café mini hoặc khu vui chơi trẻ nhỏ.
-
Phòng thờ trang nghiêm.
-
Khu vực giặt phơi tiện lợi.
4. Ưu điểm vượt trội của nhà phố cao tầng hiện đại

4.1. Tối ưu diện tích đất
Nhà phố cao tầng hiện đại giúp gia chủ tận dụng triệt để mặt bằng nhỏ hẹp tại thành phố, biến mảnh đất phố thành không gian sống đa chức năng.
4.2. Kinh doanh và cho thuê hiệu quả
-
Mặt tiền đẹp, dễ thu hút khách hàng.
-
Cho thuê tầng trệt làm cửa hàng, văn phòng.
-
Tạo nguồn thu nhập ổn định và lâu dài.
4.3. Tăng giá trị bất động sản
Với kiến trúc hiện đại, công năng tối ưu, nhà phố cao tầng hiện đại luôn được đánh giá cao về giá trị đầu tư, dễ dàng mua bán và chuyển nhượng với lợi nhuận cao.
4.4. Đa dạng phong cách thiết kế
-
Hiện đại – tối giản: Kính cường lực, màu sắc trung tính.
-
Tân cổ điển: Ban công uốn cong, phào chỉ tinh tế.
-
Xanh – bền vững: Tích hợp sân vườn, cây xanh ở ban công và sân thượng.
5. Xu hướng thiết kế nhà phố cao tầng hiện đại 2025
-
Mặt tiền kính cường lực: Tối ưu ánh sáng và sự sang trọng.
-
Không gian xanh: Bố trí cây xanh, giếng trời để tăng tính sinh thái.
-
Thiết kế mở: Kết nối giữa các tầng, phòng khách và bếp không vách ngăn.
-
Smart home: Ứng dụng công nghệ hiện đại trong quản lý và sinh hoạt.
6. Chi phí xây dựng nhà phố cao tầng hiện đại năm 2025
Chi phí xây dựng phụ thuộc vào:
-
Diện tích sàn.
-
Số tầng (3 – 5 tầng).
-
Phong cách kiến trúc (hiện đại, tân cổ điển, cao cấp).
-
Vật liệu hoàn thiện.
👉 Trung bình, chi phí xây dựng nhà phố cao tầng dao động từ 5 – 7 triệu/m² (chưa bao gồm nội thất cao cấp). Đây là mức đầu tư hợp lý, mang lại giá trị lâu dài cả về ở lẫn kinh doanh.
Lưu ý: Đây chỉ là mức chi phí ước tính. Để nhận được báo giá chính xác và chi tiết nhất cho công trình của bạn, vui lòng liên hệ trực tiếp với chúng tôi. Hoặc để tìm hiểu rõ hơn về tiêu chuẩn vật liệu xây dựng và các yếu tố ảnh hưởng đến chi phí, bạn có thể tham khảo thêm tại các bài viết chuyên sâu về vật liệu xây dựng cao cấp trên Wikipedia.
7. Techhome – Đơn vị thiết kế & thi công nhà phố cao tầng uy tín
Techhome tự hào là thương hiệu đồng hành cùng hàng trăm gia đình trong hành trình xây dựng tổ ấm và không gian kinh doanh hoàn hảo.
7.1. Lợi thế khi chọn Techhome
-
Thiết kế độc quyền: Đáp ứng phong thủy, thẩm mỹ và nhu cầu thực tế.
-
Thi công trọn gói: Đảm bảo tiến độ – không phát sinh chi phí.
-
Đội ngũ chuyên nghiệp: KTS và kỹ sư giàu kinh nghiệm.
-
Bảo hành uy tín: Cam kết đồng hành lâu dài cùng khách hàng.
7.2. Quy trình làm việc
-
Khảo sát thực tế – tư vấn ý tưởng.
-
Lên bản vẽ thiết kế chi tiết.
-
Dự toán chi phí minh bạch.
-
Thi công chuyên nghiệp.
-
Bàn giao và bảo hành.
8. FAQ – Câu hỏi thường gặp về nhà phố cao tầng hiện đại
8.1. Nhà phố cao tầng có phù hợp để kinh doanh không?
Có. Đây là lựa chọn tối ưu vì tầng trệt có thể mở cửa hàng, quán café hoặc cho thuê văn phòng, vừa ở vừa sinh lời.
8.2. Xây dựng nhà phố cao tầng hết bao nhiêu tiền?
Chi phí trung bình từ 5 – 7 triệu/m², tùy phong cách và vật liệu.
8.3. Nhà phố cao tầng có khó bảo trì không?
Không. Với vật liệu hiện đại và thi công chuẩn kỹ thuật, công tác bảo trì dễ dàng và chi phí thấp.
8.4. Nên chọn phong cách nào cho nhà phố cao tầng?
Gia chủ có thể chọn hiện đại – tối giản hoặc tân cổ điển. Xu hướng 2025 thiên về thiết kế hiện đại kết hợp không gian xanh.
Xem thêm các dự án nổi bật khác của Techhome tại https://nhadeptechhome.vn/

