1. Giới thiệu
Trong những năm gần đây, các mẫu nhà 2 tầng tân cổ điển mái bằng kết hợp chi tiết mái vòm cong ngày càng được ưa chuộng tại Việt Nam. Đây không chỉ là một công trình nhà ở thông thường mà còn là biểu tượng của sự sang trọng, đẳng cấp và khẳng định vị thế gia chủ. Với phong cách kiến trúc châu Âu tinh tế, mẫu nhà này ghi điểm bởi ngoại thất trắng tinh khôi, hệ cột trụ uy nghi, cửa vòm nghệ thuật và lan can mạ vàng sang trọng.
Techhome tự hào mang đến một thiết kế ấn tượng, vừa tối ưu không gian sống vừa tạo nên công trình nhà 2 tầng tân cổ điển mái bằng bền vững, trường tồn cùng thời gian.
2. Ngoại thất sang trọng – Điểm nhấn tân cổ điển



Mặt tiền căn nhà được thiết kế đối xứng hài hòa, nổi bật với:
-
Cửa chính vòm cong cao vút, kết hợp khung gỗ tự nhiên và kính hoa văn nghệ thuật tinh xảo, đón trọn ánh sáng tự nhiên.
-
Cột trụ tròn lớn chạy thẳng từ chân đế đến mái, tạo cảm giác uy nghi và vững chãi.
-
Ban công uốn cong mềm mại với lan can mạ vàng tinh xảo, kết hợp cùng đèn chùm lộng lẫy, mang đến vẻ đẹp kiêu sa.
-
Tông màu trắng – vàng – nâu gỗ chủ đạo giúp ngôi nhà 2 tầng tân cổ điển mái bằng vừa thanh lịch, vừa toát lên khí chất quý tộc.
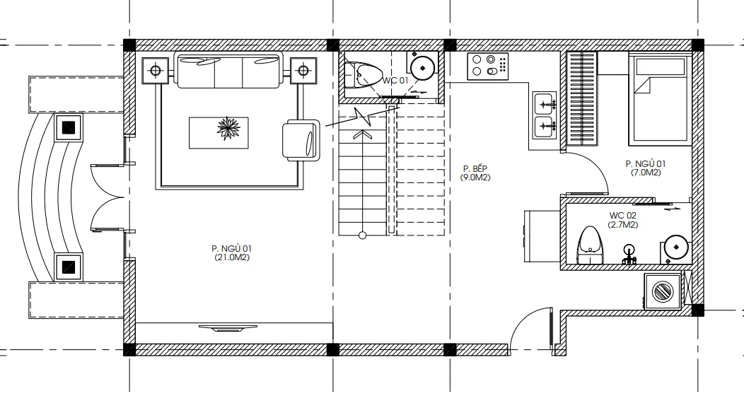
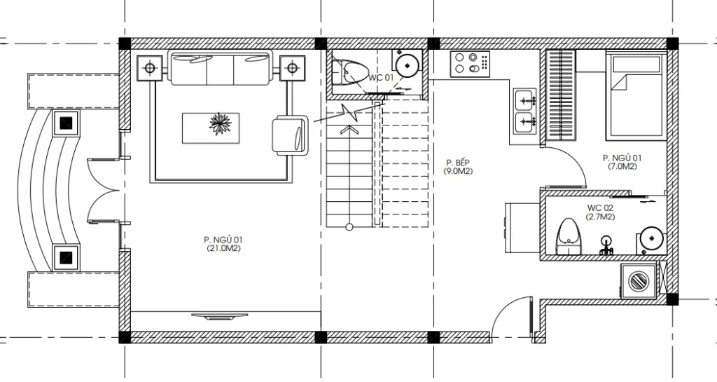
3. Công năng khoa học, tiện nghi

Nhà 2 tầng tân cổ điển mái bằng này được quy hoạch công năng hợp lý, đáp ứng tốt nhu cầu sinh hoạt của gia đình nhiều thế hệ:
-
Tầng 1: Phòng khách rộng rãi, bếp + ăn tiện nghi, 1 phòng ngủ và WC chung.
-
Tầng 2: Không gian phòng ngủ master, phòng sinh hoạt chung, ban công thoáng mát.
-
Tầng tum: Phòng thờ trang nghiêm, sân phơi và khu chức năng phụ trợ.
4. Ưu điểm nổi bật của nhà 2 tầng tân cổ điển mái bằng
-
Thẩm mỹ vượt trội: Kết hợp hài hòa giữa nét mạnh mẽ hiện đại và đường cong mềm mại của kiến trúc tân cổ điển.
-
Chống thấm tối ưu: Mái bằng dễ thi công, bền chắc, hạn chế thấm dột.
-
Tối ưu công năng: Không gian sinh hoạt khoa học, linh hoạt cho nhiều thế hệ.
-
Khẳng định đẳng cấp: Ngoại thất bề thế, tinh xảo, nâng tầm vị thế gia chủ.
5. Phù hợp với xu hướng xây dựng hiện nay
Mẫu nhà 2 tầng tân cổ điển mái bằng có mái vòm không chỉ phù hợp với những gia đình yêu thích sự sang trọng mà còn là lựa chọn thông minh cho các khu đất mặt tiền từ 6–8m. Công trình vừa tạo sự nổi bật giữa phố thị, vừa mang lại không gian sống tiện nghi, bền vững.
Để tìm hiểu rõ hơn về tiêu chuẩn vật liệu xây dựng và các yếu tố ảnh hưởng đến chi phí, bạn có thể tham khảo thêm tại các bài viết chuyên sâu về vật liệu xây dựng cao cấp trên Wikipedia.
6. Kết luận
Nếu bạn đang tìm kiếm một mẫu nhà 2 tầng tân cổ điển mái bằng vừa sang trọng vừa tiện nghi, thiết kế này chắc chắn là lựa chọn hoàn hảo. Techhome với đội ngũ kiến trúc sư giàu kinh nghiệm luôn sẵn sàng đồng hành cùng gia chủ từ bản vẽ đến thi công, kiến tạo nên những công trình bền vững và đẳng cấp.
Liên hệ Techhome qua hotline 0364 042 222 – 0387 603 333 để được tư vấn chi tiết và nhận báo giá tốt nhất.
Xem thêm các dự án nổi bật khác của Techhome tại https://nhadeptechhome.vn/

