Bùng Nổ Xu Hướng Nhà Phố 2 Tầng 1 Tum Mái Bằng 2025 – Siêu Phẩm Kiến Trúc Độc Lạ Tại Hải Phòng

nhà phố 2 tầng 1 tum mái bằng

1. Giới thiệu xu hướng kiến trúc 2025

Năm 2025 đánh dấu sự bùng nổ mạnh mẽ của nhà phố 2 tầng 1 tum mái bằng, đặc biệt tại các thành phố lớn như Hà Nội, Hải Phòng, Đà Nẵng. Phong cách này không chỉ đem lại vẻ đẹp hiện đại, trẻ trung mà còn tối ưu chi phí xây dựng, phù hợp với diện tích đất ở phố.

Tại Hải Phòng, mẫu nhà phố 2 tầng 1 tum mái bằng của chị Tươi (Cát Hải) do Techhome thiết kế và thi công đã nhanh chóng trở thành siêu phẩm kiến trúc độc lạ, gây ấn tượng mạnh mẽ.


2. Kiến trúc mặt tiền nhà phố 2 tầng 1 tum mái bằng – Điểm nhấn độc lạ 2025

2.1. Mặt tiền kính cong hiện đại

  • Toàn bộ mặt tiền nhà phố 2 tầng 1 tum mái bằng sử dụng hệ cửa kính cường lực khổ lớn bo cong mềm mại, tạo cảm giác sang trọng, đón sáng tối đa.

  • Thiết kế cân đối – tối giản nhưng tinh tế, nổi bật giữa khu phố đông đúc.

2.2. Mái bằng phẳng – Đỉnh cao công năng

  • Mái bằng bê tông cốt thép bền vững, dễ thi công và bảo dưỡng.

  • Tích hợp năng lượng mặt trời, bồn nước, sân thượng xanh.

  • Đảm bảo chống nóng, chống thấm, phù hợp khí hậu miền Bắc.

2.3. Ban công xanh – Điểm nhấn thân thiện môi trường

  • Ban công trồng cây xanh mát, giúp điều hòa không khí.

  • Không gian lý tưởng cho gia chủ thư giãn, nhâm nhi trà chiều.


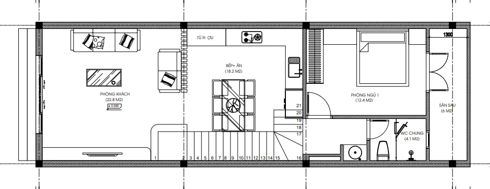
3. Công năng khoa học – Tiện nghi vượt trội

Tầng 1

  • Phòng khách (22,8m²): Sang trọng, thoáng đãng, kết nối trực tiếp với không gian bếp.

  • Bếp + ăn (18,2m²): Thiết kế mở, hiện đại, thuận tiện sinh hoạt.

  • Phòng ngủ 01 (12,4m²): Riêng tư, yên tĩnh, phù hợp người lớn tuổi.

  • WC chung & sân sau: Đáp ứng đầy đủ công năng.

Tầng 2

  • 02 phòng ngủ rộng rãi với cửa sổ lớn đón ánh sáng tự nhiên.

  • Phòng sinh hoạt chung: Nơi gắn kết gia đình, có thể bố trí thêm không gian đọc sách.

Tầng tum

  • Phòng thờ trang nghiêm: Đặt tại vị trí cao nhất, hợp phong thủy.

  • Sân thượng rộng thoáng: Nơi lý tưởng cho trồng cây, tổ chức tiệc nhỏ ngoài trời.

nhà phố 2 tầng 1 tum mái bằng nhà phố 2 tầng 1 tum mái bằng nhà phố 2 tầng 1 tum mái bằng nhà phố 2 tầng 1 tum mái bằng

4. Vì sao nhà phố 2 tầng 1 tum mái bằng trở thành “hot trend” tại Hải Phòng?

4.1. Chi phí xây dựng hợp lý

Nhà phố 2 tầng 1 tum mái bằng có chi phí xây dựng vừa phải, phù hợp với nhiều hộ gia đình trẻ.

4.2. Tối ưu diện tích đất phố

Thiết kế gọn gàng, tận dụng tối đa mặt tiền nhưng vẫn đảm bảo đầy đủ công năng.

4.3. Phong cách hiện đại – hợp xu hướng

Lối kiến trúc tối giản, tinh tế, bắt kịp phong cách Urban Style đang thịnh hành 2025.

4.4. Phù hợp nhiều nhu cầu

Từ hộ gia đình 3–5 người cho đến gia chủ mong muốn nhà vừa ở vừa kinh doanh, đều thích hợp.

Để tìm hiểu rõ hơn về tiêu chuẩn vật liệu xây dựng và các yếu tố ảnh hưởng đến chi phí, bạn có thể tham khảo thêm tại các bài viết chuyên sâu về vật liệu xây dựng cao cấp trên Wikipedia.


5. Đánh giá của chủ đầu tư

Chị Tươi – Cát Hải, Hải Phòng chia sẻ:

“Techhome đã biến giấc mơ của gia đình tôi thành hiện thực. Mẫu nhà không chỉ đẹp, độc đáo mà còn tiện nghi, chi phí hợp lý và cực kỳ ưng ý.”


6. Techhome – Đồng hành cùng gia chủ kiến tạo tổ ấm

Với kinh nghiệm nhiều năm trong thiết kế & thi công trọn gói, Techhome cam kết:

  • Thiết kế tối ưu – thi công chuẩn chất lượng.

  • Chi phí minh bạch – cam kết tiến độ.

  • Bảo hành – bảo trì tận tâm.

 Nếu bạn đang tìm kiếm mẫu nhà phố 2 tầng 1 tum mái bằng hiện đại tại Hải Phòng, hãy để Techhome đồng hành và biến ý tưởng thành hiện thực.

Xem thêm các dự án nổi bật khác của Techhome tại https://nhadeptechhome.vn/

Để lại một bình luận

Email của bạn sẽ không được hiển thị công khai. Các trường bắt buộc được đánh dấu *

    Vui lòng nhấn nút YÊU CẦU TƯ VẤN và đợi 1 - 2 giây đến khi thấy thông báo thành công

    YÊU CẦU TƯ VẤN