Mục lục bài viết
-
Giới thiệu mẫu nhà phố 2 tầng 1 tum hiện đại 2025
-
Đặc điểm nổi bật trong thiết kế
-
Kiến trúc ngoại thất sang trọng
-
Mặt bằng công năng tối ưu
-
Không gian xanh trên mái
-
-
Ứng dụng thực tế cho gia đình Việt
-
Chi phí xây dựng nhà phố 2 tầng 1 tum tại Hải Phòng
-
Xu hướng thiết kế nhà phố 2 tầng 1 tum 2025
-
Tại sao nên chọn Techhome?

Giới thiệu mẫu nhà phố 2 tầng 1 tum hiện đại 2025
Nhà phố 2 tầng 1 tum hiện đang là một trong những lựa chọn hàng đầu của các gia đình Việt Nam trong năm 2025. Với sự kết hợp hài hòa giữa kiến trúc hiện đại – công năng thông minh – chi phí hợp lý, mẫu nhà phố 2 tầng 1 tum của chú Khu tại Thiên Hương, Hải Phòng đã trở thành một điểm nhấn nổi bật, được nhiều gia chủ tham khảo và yêu thích.
Ngôi nhà không chỉ là nơi an cư, mà còn là minh chứng cho gu thẩm mỹ và phong cách sống trẻ trung, hiện đại, tiện nghi của gia chủ.
Đặc điểm nổi bật trong thiết kế
Kiến trúc ngoại thất sang trọng
-
Ngôi nhà phố 2 tầng 1 tum mái bằng sử dụng những mảng khối vuông vức, kết hợp đường bo cong mềm mại tạo cảm giác vừa khỏe khoắn vừa thanh thoát.
-
Mặt tiền tầng 1 được ốp đá granite cao cấp, tạo sự bề thế và sang trọng.
-
Tầng 2 gây ấn tượng với ban công kính cường lực, hệ thống cây xanh tiểu cảnh và lam chắn nắng vừa hiện đại vừa gần gũi thiên nhiên.
-
Màu sắc chủ đạo: trắng – ghi xám – gỗ, tạo cảm giác tinh tế, trẻ trung và hợp xu hướng thiết kế 2025.
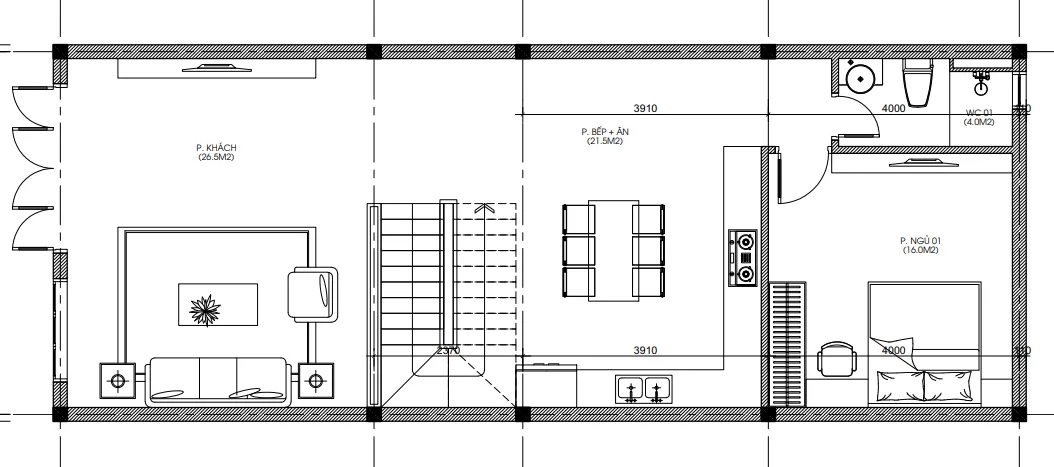
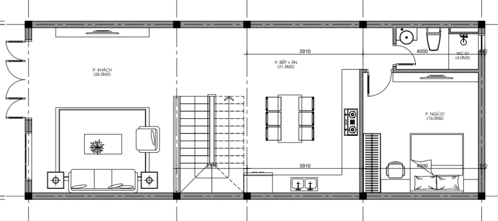
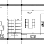
Mặt bằng công năng tối ưu

Bản vẽ chi tiết cho thấy không gian sinh hoạt được bố trí khoa học:
-
Tầng 1:
-
Phòng khách rộng 26.5m², sang trọng và thoáng đãng.
-
Phòng bếp + ăn 21.5m², liên thông tạo sự kết nối và tiện nghi.
-
1 phòng ngủ 16m² dành cho ông bà/khách.
-
1 WC tiện lợi 4m².
-
-
Tầng 2:
-
Phòng ngủ master + phòng ngủ phụ.
-
Phòng sinh hoạt chung.
-
- Tầng tum:
- Phòng thờ
-
Ban công xanh và sân phơi tiện ích.
Không gian xanh trên mái
Điểm cộng đặc biệt của mẫu nhà phố 2 tầng 1 tum hiện đại này chính là tận dụng mái bằng làm:
-
Khu vườn mini trồng cây xanh, rau sạch.
-
Không gian cà phê – thư giãn ngoài trời.
-
Đặt hệ thống năng lượng mặt trời, tiết kiệm điện năng.
Ứng dụng thực tế cho gia đình Việt


Mẫu nhà phố 2 tầng 1 tum tại Thiên Hương – Hải Phòng hoàn toàn phù hợp với:
-
Gia đình 4 – 6 người.
-
Các gia chủ yêu thích sự tiện nghi, sang trọng nhưng vẫn muốn tối ưu chi phí.
-
Những lô đất mặt phố, liền kề, khu dân cư mới.
Chi phí xây dựng nhà phố 2 tầng 1 tum tại Hải Phòng
Chi phí xây dựng phụ thuộc vào diện tích, phong cách, vật liệu hoàn thiện. Trung bình:
-
Nhà phố 2 tầng 80 – 120m²: từ 1,1 – 1,8 tỷ VNĐ.
-
Nhà phố 2 tầng 120 – 160m²: từ 1,8 – 2,5 tỷ VNĐ.
👉 Với Techhome, gia chủ luôn được cung cấp dự toán chi tiết, minh bạch và tối ưu nhất, đảm bảo kiểm soát tốt ngân sách.
Lưu ý: Đây chỉ là mức chi phí ước tính. Để nhận được báo giá chính xác và chi tiết nhất cho công trình của bạn, vui lòng liên hệ trực tiếp với chúng tôi. Hoặc để tìm hiểu rõ hơn về tiêu chuẩn vật liệu xây dựng và các yếu tố ảnh hưởng đến chi phí, bạn có thể tham khảo thêm tại các bài viết chuyên sâu về vật liệu xây dựng cao cấp trên Wikipedia.
Xu hướng thiết kế nhà phố 2 tầng 1 tum năm 2025
-
Thiết kế xanh: Đưa thiên nhiên vào nhà bằng giếng trời, tiểu cảnh, ban công cây xanh.
-
Nội thất tối giản: Giảm thiểu decor rườm rà, tập trung vào công năng.
-
Công nghệ thông minh: Tích hợp hệ thống chiếu sáng, điều hòa, an ninh thông minh.
-
Tối ưu diện tích: Bố trí không gian linh hoạt, phù hợp lô đất phố.
Tại sao nên chọn Techhome?
-
Kinh nghiệm lâu năm: Đã triển khai hàng trăm công trình thực tế trên khắp miền Bắc.
-
Đội ngũ kiến trúc sư sáng tạo: Cập nhật xu hướng thiết kế nhà phố 2 tầng 1 tum mới nhất.
-
Thi công chất lượng: Vật liệu chính hãng, cam kết đúng tiến độ.
-
Dịch vụ trọn gói: Từ thiết kế – xin phép xây dựng – thi công – bàn giao.
-
Bảo hành dài hạn: Đồng hành cùng gia chủ sau khi bàn giao.
Kết luận
Mẫu nhà phố 2 tầng 1 tum hiện đại của chú Khu tại Thiên Hương, Hải Phòng là minh chứng rõ ràng cho xu hướng xây dựng năm 2025: tối giản – tiện nghi – sang trọng – xanh bền vững.
Nếu bạn đang tìm kiếm một không gian sống vừa đẳng cấp vừa phù hợp tài chính, thì Techhome chính là đơn vị đồng hành uy tín nhất.
Liên hệ ngay Techhome: 0364 042 222 – 0387 603 333 để được tư vấn thiết kế & báo giá thi công chi tiết.
Xem thêm các dự án nổi bật khác của Techhome tại https://nhadeptechhome.vn/


