📑 Mục Lục
-
Giới thiệu về xu hướng nhà hiện đại mái bằng 2 tầng
-
Chi phí xây dựng nhà hiện đại mái bằng 2 tầng 2025
-
Mặt bằng công năng chi tiết
-
Ngoại thất & phong cách thiết kế
-
Ưu điểm nổi bật của nhà mái bằng 2 tầng
-
Xu hướng thiết kế nhà 2 tầng mái bằng 2025
-
Vì sao nên chọn Techhome thi công trọn gói?
-
Liên kết tham khảo & Kết luận

1. Giới thiệu về xu hướng nhà hiện đại mái bằng 2 tầng
Chi phí xây dựng nhà hiện đại mái bằng 2 tầng đang trở thành từ khóa được nhiều gia chủ tìm kiếm trong năm 2025. Đây không chỉ là một lựa chọn xây dựng tiết kiệm chi phí, mà còn mang đến không gian sống tiện nghi, hiện đại và đẳng cấp.
Tại Gia Lộc – Hải Dương, mẫu biệt thự hiện đại 2 tầng mái bằng của chủ đầu tư Anh Thích do Techhome thực hiện đã thu hút nhiều sự quan tâm bởi:
-
Thiết kế mặt tiền trẻ trung.
-
Công năng tối ưu.
-
Dự toán chi phí minh bạch, phù hợp ngân sách gia đình Việt.
2. Chi phí xây dựng nhà hiện đại mái bằng 2 tầng năm 2025
Chi phí năm 2025 phụ thuộc nhiều yếu tố: diện tích xây dựng, mức độ hoàn thiện, vật liệu sử dụng, và phong cách kiến trúc.
👉 Dưới đây là mức giá tham khảo mới nhất:
-
Nhà phố 2 tầng (80 – 120m²): 1,2 – 1,9 tỷ đồng.
-
Nhà vườn 2 tầng (120 – 180m²): 1,9 – 2,7 tỷ đồng.
-
Công trình trên 200m²: từ 2,7 tỷ đồng trở lên.
💡 Với Techhome, khách hàng luôn nhận được dự toán rõ ràng từng hạng mục, giúp kiểm soát chi phí và hạn chế phát sinh.
Lưu ý: Đây chỉ là mức chi phí ước tính. Để nhận được báo giá chính xác và chi tiết nhất cho công trình của bạn, vui lòng liên hệ trực tiếp với chúng tôi. Hoặc để tìm hiểu rõ hơn về tiêu chuẩn vật liệu xây dựng và các yếu tố ảnh hưởng đến chi phí, bạn có thể tham khảo thêm tại các bài viết chuyên sâu về vật liệu xây dựng cao cấp trên Wikipedia.
📷 Hình ảnh minh họa: Mẫu nhà hiện đại mái bằng 2 tầng – Gia Lộc, Hải Dương
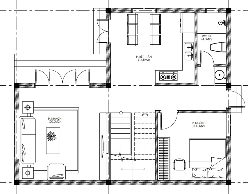
3. Mặt bằng công năng chi tiết

Tầng 1:
-
Phòng khách 20m² – rộng rãi, đón sáng tự nhiên.
-
Phòng bếp + ăn 14,5m² – thiết kế mở, liên thông cửa phụ.
-
Phòng ngủ 11m² – dành cho ông bà, thuận tiện sinh hoạt.
-
WC 4,5m² – bố trí cuối hành lang, hợp phong thủy.
Tầng 2:
-
Phòng ngủ master có ban công view thoáng.
-
Phòng ngủ phụ – phù hợp cho con cái.
-
Phòng sinh hoạt chung – nơi kết nối gia đình.
-
Sân thượng xanh – biến mái bằng thành vườn mini.
4. Ngoại thất & phong cách thiết kế
Công trình nhà hiện đại mái bằng 2 tầng nổi bật với:
-
Ban công kính cong mềm mại, tạo điểm nhấn khác biệt.
-
Mảng tường trang trí hình lá cách điệu, hiện đại và độc đáo.
-
Tông trắng chủ đạo, kết hợp ốp gỗ và hệ cây xanh.
-
Đèn LED âm trần vừa chiếu sáng vừa tạo hiệu ứng thẩm mỹ.
📷 Hình ảnh ngoại thất hiện đại mẫu nhà phố 2 tầng mái bằng
5. Ưu điểm nổi bật của nhà hiện đại mái bằng 2 tầng


-
Chi phí hợp lý hơn mái thái hoặc mái nhật.
-
Thiết kế trẻ trung, phù hợp gia đình trẻ.
-
Công năng linh hoạt, tối ưu diện tích nhỏ.
-
Kết cấu vững chắc, dễ nâng tầng khi cần.
-
Không gian xanh, mái bằng trồng cây – lắp pin năng lượng mặt trời.
6. Xu hướng thiết kế biệt thự 2 tầng mái bằng hiện đại 2025
-
Thiết kế xanh: nhiều cây xanh, giếng trời.
-
Công nghệ thông minh: hệ thống chiếu sáng, điều hòa tự động.
-
Nội thất tối giản: chú trọng công năng, hạn chế trang trí rườm rà.
-
Vật liệu tiết kiệm năng lượng: cửa kính cách nhiệt, pin mặt trời.
7. Vì sao nên chọn Techhome thi công trọn gói?
-
Kinh nghiệm thực tế qua nhiều dự án miền Bắc.
-
Kiến trúc sư sáng tạo, cập nhật xu hướng mới.
-
Cam kết đúng tiến độ, vật liệu chính hãng.
-
Bảo hành dài hạn, đồng hành cùng gia chủ.
✅ Tóm lại:
Chi phí xây dựng nhà hiện đại mái bằng 2 tầng 2025 dao động từ 1,2 – 2,7 tỷ đồng tùy diện tích và vật liệu. Đây là lựa chọn phù hợp cho gia đình trẻ yêu thích sự hiện đại, tiện nghi và tiết kiệm.
Liên hệ Techhome ngay hôm nay để nhận báo giá chi tiết:
Hotline: 0364.042.222 – 0387.603.333
Xem thêm các dự án nổi bật khác của Techhome tại https://nhadeptechhome.vn/
