Xu Hướng 2025: Mẫu Nhà Phố 2 Tầng Hiện Đại Của Chị Hân Ở Hà Nội Khiến Ai Nhìn Cũng Muốn Sở Hữu

Mẫu nhà phố 2 tầng hiện đại ngày càng trở thành lựa chọn hàng đầu của các gia đình trẻ bởi vẻ đẹp tinh tế, chi phí xây dựng hợp lý và công năng tối ưu. Techhome xin giới thiệu đến bạn mẫu nhà phố 2 tầng hiện đại của chủ đầu tư chị Hân tại Hà Nội, một công trình được thiết kế chuẩn xu hướng 2025, khiến ai nhìn cũng mê mẩn.

Mẫu nhà phố 2 tầng hiện đại

📖 Mục lục

  1. Giới thiệu tổng quan dự án

  2. Điểm nổi bật trong kiến trúc

    • Ngoại thất sang trọng

    • Công năng khoa học

    • Vật liệu hiện đại

  3. Mặt bằng công năng chi tiết

  4. Lợi ích khi lựa chọn mẫu nhà phố 2 tầng hiện đại

  5. Xu hướng thiết kế 2025

  6. Dự toán chi phí xây dựng

  7. Tại sao nên chọn Techhome thiết kế & thi công?

  8. Kết luận


1. Giới thiệu tổng quan mẫu nhà phố 2 tầng hiện đại

Công trình nhà phố 2 tầng hiện đại được Techhome triển khai cho chị Hân tại Hà Nội với diện tích hợp lý, bố trí khoa học, đáp ứng nhu cầu sinh hoạt của gia đình 4 – 6 người.

Phong cách thiết kế chú trọng tối giản – tiện nghi – hiện đại, kết hợp hài hòa giữa thẩm mỹ và công năng, mang đến một không gian sống chuẩn xu hướng 2025.


2. Điểm nổi bật trong kiến trúc

Mẫu nhà phố 2 tầng hiện đại

Mẫu nhà phố 2 tầng hiện đại

🔹 Ngoại thất sang trọng

  • Mặt tiền vuông vắn, hiện đại với tông màu sáng kết hợp đá ốp sang trọng.

  • Ban công kính kết hợp lam che nắng vừa tạo điểm nhấn vừa đảm bảo thoáng sáng.

  • Cây xanh được bố trí tinh tế, tạo cảm giác gần gũi thiên nhiên.

🔹 Công năng khoa học

  • Không gian sinh hoạt được chia hợp lý, đảm bảo riêng tư cho từng thành viên.

  • Tận dụng diện tích tối đa, phù hợp với đặc thù đất phố.

🔹 Vật liệu hiện đại

  • Cửa nhôm kính Xingfa cách âm, chống ồn tốt.

  • Hệ thống trần ốp gỗ ngoài trời chống nắng mưa.

  • Gạch ốp lát cao cấp, đảm bảo độ bền lâu dài.


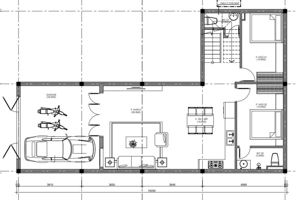
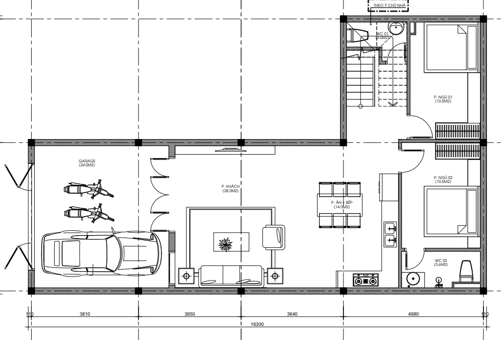
3. Mặt bằng công năng mẫu nhà phố 2 tầng hiện đại

🔸 Tầng 1:

  • Gara để xe rộng rãi (24m²).

  • Phòng khách (26m²) sang trọng, liên thông không gian bếp.

  • Phòng ăn + bếp (14m²).

  • 2 phòng ngủ tiện nghi (10.5m²/phòng).

  • WC chung đầy đủ tiện ích.

🔸 Tầng 2:

  • Phòng ngủ master có ban công thoáng mát.

  • Phòng sinh hoạt chung/không gian làm việc.

  • Sân thượng trồng cây, làm không gian cà phê ngoài trời.


4. Lợi ích khi lựa chọn mẫu nhà phố 2 tầng hiện đại

  • Tiết kiệm chi phí: Chi phí hợp lý hơn so với các mẫu nhà mái thái hay biệt thự.

  • Phong cách trẻ trung: Bắt kịp xu hướng sống tối giản, tiện nghi.

  • Tối ưu diện tích: Phù hợp cả ở phố lẫn ngoại ô.

  • Dễ dàng nâng cấp: Kết cấu vững chắc, có thể cải tạo thành 3 tầng trong tương lai.


5. Xu hướng thiết kế 2025

  • Không gian xanh: Đưa cây xanh, tiểu cảnh vào từng tầng.

  • Công nghệ thông minh: Hệ thống chiếu sáng, an ninh tự động.

  • Nội thất tối giản: Tập trung công năng, hạn chế chi tiết rườm rà.

  • Vật liệu bền vững: Kính cách nhiệt, năng lượng mặt trời.


6. Dự toán chi phí xây dựng

Chi phí thi công mẫu nhà phố 2 tầng hiện đại tại Hà Nội dao động:

  • Diện tích 80 – 100m²: từ 1,2 – 1,6 tỷ.

  • Diện tích 100 – 150m²: từ 1,6 – 2,2 tỷ.

👉 Techhome cam kết báo giá chi tiết – minh bạch – tối ưu ngân sách cho khách hàng.

Lưu ý: Đây chỉ là mức chi phí ước tính. Để nhận được báo giá chính xác và chi tiết nhất cho công trình của bạn, vui lòng liên hệ trực tiếp với chúng tôi. Hoặc để tìm hiểu rõ hơn về tiêu chuẩn vật liệu xây dựng và các yếu tố ảnh hưởng đến chi phí, bạn có thể tham khảo thêm tại các bài viết chuyên sâu về vật liệu xây dựng cao cấp trên Wikipedia.


7. Tại sao nên chọn Techhome thiết kế & thi công?

  • ✅ Kinh nghiệm dày dặn: Đã hoàn thiện hàng trăm công trình nhà phố, biệt thự.

  • ✅ Đội ngũ kiến trúc sư sáng tạo: Bắt kịp xu hướng, tối ưu công năng.

  • ✅ Thi công chuẩn chất lượng: Vật liệu chính hãng, đúng tiến độ.

  • ✅ Bảo hành dài hạn: Đồng hành cùng gia chủ sau khi bàn giao.


8. Kết luận

Mẫu nhà phố 2 tầng hiện đại của chị Hân tại Hà Nội chính là đại diện tiêu biểu cho xu hướng kiến trúc 2025: hiện đại, tối giản nhưng đầy đủ tiện nghi.

Nếu bạn đang tìm kiếm một mẫu nhà đẹp, công năng tối ưu, chi phí hợp lý, thì Techhome chính là đơn vị đồng hành đáng tin cậy.

 Liên hệ ngay: 0364 042 222 – 0387 603 333 để được tư vấn thiết kế và thi công trọn gói.

Xem thêm các dự án nổi bật khác của Techhome tại https://nhadeptechhome.vn/

Để lại một bình luận

Email của bạn sẽ không được hiển thị công khai. Các trường bắt buộc được đánh dấu *

    Vui lòng nhấn nút YÊU CẦU TƯ VẤN và đợi 1 - 2 giây đến khi thấy thông báo thành công

    YÊU CẦU TƯ VẤN