Bạn đang tìm kiếm một không gian sống vừa sang trọng, tinh tế lại không quá phô trương? Bạn muốn ngôi nhà của mình phải trường tồn với thời gian, không lo lỗi mốt? Vậy thì hãy cùng Kiến trúc Techhome ghé thăm công trình tâm huyết mới nhất của chúng tôi tại Nguyễn Du – Hưng Yên. Đây là mẫu nhà 2 tầng mái Nhật tân cổ điển được thiết kế riêng cho gia đình chị Mận – một tuyệt phẩm kiến trúc hứa hẹn sẽ “làm mưa làm gió” trong năm nay.
1. Tại sao “nhà 2 tầng mái Nhật tân cổ điển” lại trở thành “hoa hậu” trong làng kiến trúc?
Thú thật với mọi người, làm nghề viết về nhà đẹp bao năm nay, Tôi thấy xu hướng có thể thay đổi xoành xoạch, nhưng cái chất của nhà 2 tầng mái Nhật tân cổ điển thì vẫn cứ sừng sững ở đó. Nó giống như một “cô hoa hậu” có vẻ đẹp tri thức vậy: vừa đằm thắm, vừa hiện đại.
Khi chị Mận tìm đến Techhome với mảnh đất tại Nguyễn Du, Hưng Yên, chị đã chia sẻ rất thật: “Chị thích cái gì nó nhẹ nhàng thôi, đừng rườm rà như lâu đài, nhưng nhìn vào phải thấy sang, thấy chất”. Và thế là, các kiến trúc sư (KTS) của Techhome đã đặt bút vẽ nên mẫu nhà 2 tầng mái Nhật tân cổ điển này.
Điểm “ăn tiền” nhất của phong cách này chính là sự dung hòa. Hệ mái Nhật (mái lùn) có độ dốc vừa phải, mở rộng ra các hướng giúp ngôi nhà trông thanh thoát, cao ráo hơn. Kết hợp với những đường phào chỉ tinh tế của phong cách tân cổ điển, ngôi nhà hiện lên như một tác phẩm nghệ thuật giữa lòng phố thị.

2. Chiêm ngưỡng vẻ đẹp ngoại thất: Sang trọng từng đường nét
Nhìn vào phối cảnh 3D mặt tiền, bạn sẽ thấy ngay sự cuốn hút khó cưỡng. Mẫu nhà 2 tầng mái Nhật tân cổ điển của chị Mận sử dụng tông màu trắng sứ làm chủ đạo. Đây là gam màu “huyền thoại”, giúp ngôi nhà luôn tươi mới và làm nền hoàn hảo cho các chi tiết trang trí.
-
Hệ cột trụ và phào chỉ: Không quá tham lam các hoa văn rồng phượng cầu kỳ, Techhome sử dụng hệ cột vuông vức, khỏe khoắn tại sảnh chính, kết hợp với các đường kẻ chỉ lõm chạy dọc thân tường. Điều này tạo nên cảm giác vững chãi nhưng không hề thô cứng.
-
Ban công và lan can: Điểm nhấn đắt giá nằm ở hệ lan can sắt nghệ thuật sơn tĩnh điện màu đen, điểm xuyết hoa văn vàng kim sang trọng. Nó như một nét ký họa mềm mại trên nền trắng của bức tranh nhà 2 tầng mái Nhật tân cổ điển.
-
Hệ cửa: Toàn bộ hệ thống cửa sổ và cửa đi được làm bằng kính cường lực khung nhôm xingfa đen. Thiết kế này không chỉ giúp lấy sáng tối đa cho không gian nội thất mà còn tạo chiều sâu cho ngôi nhà khi nhìn từ ngoài vào.
-
Mái Nhật xanh than: Màu xanh than của ngói sóng kết hợp với màu trắng của tường tạo nên sự tương phản cực kỳ nịnh mắt. Mái Nhật còn có ưu điểm thoát nước tốt, chống nóng hiệu quả, rất phù hợp với khí hậu miền Bắc Việt Nam.

3. “Mổ xẻ” công năng: Bài toán diện tích và sự tiện nghi
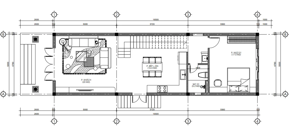
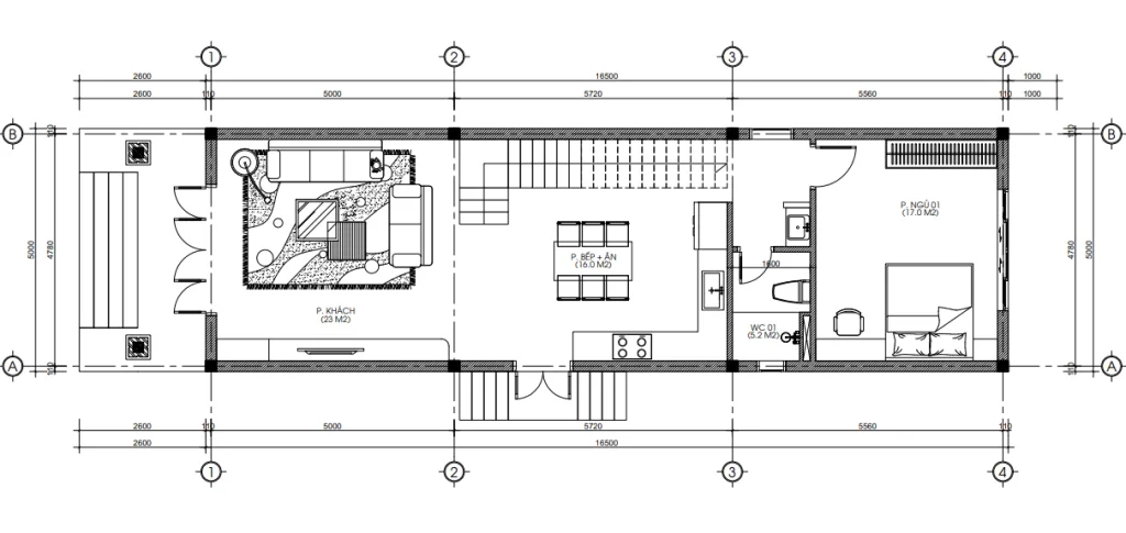
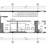
Một ngôi nhà đẹp không chỉ để ngắm, mà quan trọng nhất là phải “sống” được trong đó thật thoải mái. Với kích thước mặt tiền khoảng 5m và chiều sâu 16.5m (tổng diện tích sàn tầng 1 khoảng 94m2 ), việc bố trí công năng cho mẫu nhà 2 tầng mái Nhật tân cổ điển này là một bài toán thú vị mà đội ngũ KTS Techhome đã giải quyết xuất sắc.
Mời các bạn cùng Techhome “soi” kỹ bản vẽ mặt bằng nhé:
Tầng 1: Không gian gắn kết và sự hiếu nghĩa
Bước vào từ sảnh chính là phòng khách rộng 23m2. Đây là “bộ mặt” của gia chủ, nơi phô diễn gu thẩm mỹ tinh tế. Tiếp nối là khu vực cầu thang và phòng bếp ăn rộng 16m2.
Điểm đặc biệt mà Tôi rất ưng ý trong thiết kế này là sự xuất hiện của một phòng ngủ rộng 17m2 ngay tại tầng 1. Trong văn hóa người Việt, việc bố trí phòng ngủ tầng 1 cho ông bà/bố mẹ già là cực kỳ cần thiết để hạn chế việc leo cầu thang. Kế bên là WC chung rộng 5.2m2, thuận tiện cho sinh hoạt. Cách bố trí này biến mẫu nhà 2 tầng mái Nhật tân cổ điển thành tổ ấm lý tưởng cho gia đình đa thế hệ.

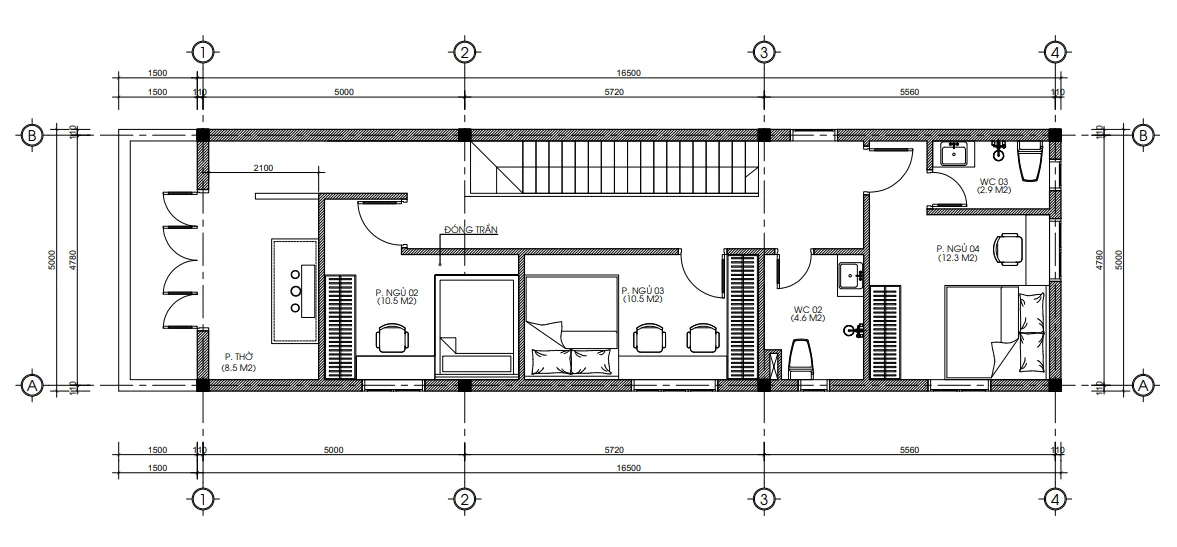
Tầng 2: Không gian riêng tư và tâm linh
Lên đến tầng 2 (diện tích 86m2 ), chúng ta có một không gian nghỉ ngơi hoàn hảo với 03 phòng ngủ.
-
Phòng ngủ 02 và 03 có diện tích 10.5m2, thích hợp cho các con.
-
Phòng ngủ 04 rộng 12.3m2 kết hợp vệ sinh khép kín 2,9m2.
-
Đặc biệt, phòng thờ 8.5m2 được đặt ở vị trí trang trọng nhất, hướng ra mặt tiền (ban công), đảm bảo yếu tố phong thủy và sự tôn nghiêm.
Việc bố trí tới 4 phòng ngủ trong một mẫu nhà 2 tầng mái Nhật tân cổ điển diện tích dưới 100m2/sàn mà vẫn đảm bảo thoáng đãng là điều không phải đơn vị nào cũng làm được. Techhome đã tận dụng khéo léo các khoảng thông tầng và giếng trời để lấy gió tự nhiên.

4. Tại sao bạn nên chọn mẫu nhà 2 tầng mái Nhật tân cổ điển ngay lúc này?
Nhiều khách hàng hỏi Tôi: “Xây nhà kiểu này có đắt không em? Có sợ lỗi thời không?”. Techhome xin khẳng định luôn:
-
Vẻ đẹp bền bỉ: Khác với những ngôi nhà hiện đại vuông vức có thể trông “cũ” đi sau 5-10 năm, phong cách tân cổ điển càng để lâu càng thấy có hồn. Mẫu nhà 2 tầng mái Nhật tân cổ điển là sự đầu tư dài hạn cho thẩm mỹ.
-
Chi phí linh hoạt: Không cần đắp phù điêu dày đặc như cổ điển truyền thống, phong cách này tiết kiệm chi phí nhân công và vật liệu hơn rất nhiều, trong khi vẫn giữ được sự sang trọng cần thiết.
-
Phù hợp mọi khuôn đất: Dù bạn có đất phố mặt tiền 5m như chị Mận hay đất vườn rộng ở quê, mẫu nhà 2 tầng mái Nhật tân cổ điển đều có thể biến tấu để phù hợp.

5. Dự toán chi phí xây dựng nhà 2 tầng mái Nhật tân cổ điển (Cập nhật 2026)
Đây chắc chắn là phần mọi người quan tâm nhất đúng không? Để sở hữu một cơ ngơi như của chị Mận, Techhome xin gửi đến bảng báo giá tham khảo (Lưu ý: Giá có thể thay đổi tùy thời điểm và vật liệu gia chủ lựa chọn).
Để hoàn thiện một căn nhà 2 tầng mái Nhật tân cổ điển với tổng diện tích xây dựng khoảng 180m2 (cả 2 sàn), chúng ta có các gói sau:
-
Gói thiết kế kiến trúc:
-
Đơn giá: 108.000đ/m2.
-
Bao gồm: Bản vẽ 3D, bản vẽ kỹ thuật điện nước, kết cấu. Hồ sơ chi tiết như Techhome bàn giao cho chị Mận gồm đầy đủ các hạng mục từ kiến trúc đến kết cấu, điện nước.
-
-
Gói thi công phần thô + nhân công hoàn thiện:
-
Đơn giá: 3.800.000đ – 4.200.000đ/m2.
-
Tổng chi phí ước tính: Khoảng 700 – 800 triệu đồng.
-
Phạm vi: Xây móng, khung cột, sàn bê tông, mái, xây trát tường, đi đường điện nước âm tường.
-
-
Gói xây nhà trọn gói (Chìa khóa trao tay):
-
Đơn giá: 6.500.000đ – 7.500.000đ/m2 (Tùy vật liệu khá hay tốt).
-
Tổng chi phí ước tính: Khoảng 1,2 tỷ – 1.4 tỷ đồng.
-
Lợi ích: Gia chủ không cần lo lắng về vật tư, chỉ việc xách vali về ở. Techhome cam kết không phát sinh chi phí.
-
Lưu ý: Với mẫu nhà 2 tầng mái Nhật tân cổ điển, phần mái ngói và các chi tiết phào chỉ sẽ tốn công hơn nhà hiện đại một chút, nhưng bù lại giá trị thẩm mỹ mang lại là vô giá.
Đây chỉ là mức chi phí ước tính. Để nhận được báo giá chính xác và chi tiết nhất cho công trình của bạn, vui lòng liên hệ trực tiếp với chúng tôi. Hoặc để tìm hiểu rõ hơn về tiêu chuẩn vật liệu xây dựng và các yếu tố ảnh hưởng đến chi phí, bạn có thể tham khảo thêm tại các bài viết chuyên sâu về vật liệu xây dựng cao cấp trên Wikipedia.

6. Những lưu ý “vàng” khi thi công nhà 2 tầng mái Nhật tân cổ điển
Là người trong nghề, Tôi khuyên bạn một số điều nhỏ nhưng có võ này:
-
Tỷ lệ mái: Độ dốc mái Nhật thường thấp hơn mái Thái (khoảng dưới 40 độ). Cần tính toán kỹ để thoát nước tốt mà dáng nhà vẫn cân đối.
-
Lựa chọn phào chỉ: Với nhà phố diện tích vừa phải, hãy chọn phào chỉ đơn giản, tránh rườm rà gây rối mắt và cảm giác nhà bị bé lại.
-
Màu sơn: Chỉ nên dùng tối đa 3 màu cho ngoại thất. Màu trắng – Xanh than (mái) – Đen (cửa/lan can) như nhà chị Mận là công thức “bất bại” cho mẫu nhà 2 tầng mái Nhật tân cổ điển.

7. Techhome – Người kiến tạo không gian sống đẳng cấp
Giữa hàng trăm đơn vị thiết kế, tại sao chị Mận và rất nhiều khách hàng tại Hưng Yên lại chọn Techhome?
-
Tâm huyết trong từng nét vẽ: Chúng tôi không copy mẫu đại trà. Mỗi bản vẽ nhà 2 tầng mái Nhật tân cổ điển đều được KTS và đội ngũ KS kiểm duyệt kỹ càng từng chi tiết kết cấu, điện nước.
-
Hồ sơ minh bạch: Nhìn vào bộ hồ sơ thiết kế thi công của Techhome, bạn sẽ thấy sự chuyên nghiệp. Từng mặt bằng định vị, mặt bằng công năng đều rõ ràng, dễ hiểu cho thợ thi công.
-
Hỗ trợ 24/7: Techhome luôn có đường dây nóng hỗ trợ tư vấn kỹ thuật xây dựng: 0364.04.2222 – 0387.60.3333. Bất kể bạn có thắc mắc gì trong quá trình xây dựng, chúng tôi đều sẵn sàng giải đáp.

8. Lời kết
Mẫu nhà 2 tầng mái Nhật tân cổ điển của gia đình chị Mận tại Hưng Yên không chỉ là một nơi để ở, mà còn là niềm tự hào của cả gia đình. Nó minh chứng cho việc bạn hoàn toàn có thể sở hữu một không gian sống đẳng cấp, tiện nghi với một chi phí hợp lý nếu chọn đúng người đồng hành.
Nếu bạn cũng trót “phải lòng” mẫu nhà 2 tầng mái Nhật tân cổ điển này, hoặc đang ấp ủ một ý tưởng về ngôi nhà trong mơ, đừng ngần ngại liên hệ với Techhome. Chúng tôi không chỉ vẽ nhà, chúng tôi vẽ nên tổ ấm.
Bạn đã sẵn sàng để sở hữu một tuyệt phẩm kiến trúc cho riêng mình chưa?
CÔNG TY CỔ PHẦN KIẾN TRÚC VÀ XÂY DỰNG TECHHOME
-
Địa chỉ: B1.1 LK18 Ô 3 – KĐT Thanh Hà – Cienco 5 – Thanh Oai- Hà Nội.
-
Hotline/Zalo: 0364.04.2222 – 0387.60.3333.
-
Website: https://nhadeptechhome.vn/
Hãy gọi ngay cho chúng tôi để được tư vấn miễn phí và nhận báo giá ưu đãi nhất cho mẫu nhà 2 tầng mái Nhật tân cổ điển của năm 2026 nhé!
