Bạn đang sở hữu một mảnh đất ở quê hoặc vùng ngoại ô và muốn xây dựng một tổ ấm vừa hiện đại, vừa tối ưu công năng nhưng không quá tốn kém? Mẫu nhà cấp 4 hiện đại 3 phòng ngủ chính là từ khóa “vàng” đang làm mưa làm gió trong thị trường kiến trúc năm 2026. Hôm nay, hãy cùng Kiến trúc Techhome khám phá chi tiết hồ sơ thiết kế nhà anh Chung tại Hải Phòng – một minh chứng điển hình cho xu hướng này.
1. Tại sao mẫu nhà cấp 4 hiện đại 3 phòng ngủ lại trở thành xu hướng?
Khác với những ngôi nhà cao tầng truyền thống, mẫu nhà cấp 4 hiện đại 3 phòng ngủ mang lại cảm giác ấm cúng, kết nối các thành viên trong gia đình trên cùng một mặt sàn. Điều này không chỉ thuận tiện cho việc sinh hoạt, đặc biệt với gia đình có người già và trẻ nhỏ, mà còn giúp tiết kiệm chi phí xây dựng móng và thang bộ trong nhà.
Tại Techhome , chúng tôi nhận thấy khách hàng ngày càng ưa chuộng phong cách thiết kế phẳng, tối giản nhưng tích hợp nhiều tiện ích thông minh. Ngôi nhà của anh Chung là một ví dụ như vậy.

2. Phối cảnh ngoại thất: Hiện đại, phá cách với hệ mái bằng và cầu thang xoắn
Nhìn vào phối cảnh, điểm ấn tượng đầu tiên của mẫu nhà cấp 4 hiện đại 3 phòng ngủ này chính là sự kết hợp màu sắc tinh tế: tông trắng chủ đạo mix cùng xám trung tính và điểm xuyết màu gỗ ấm áp ở trần hiên.
-
Hệ mái bằng thời thượng: Không sử dụng mái Thái hay mái Nhật quen thuộc, anh Chung lựa chọn mái bằng để tạo diện mạo trẻ trung. Đặc biệt, phần mái này được tận dụng làm sân thượng “chill” cực chất.
-
Cầu thang xoắn độc đáo: Đây là điểm nhấn phá cách nhất. Cầu thang xoắn bằng thép ngoài trời không chỉ tiết kiệm diện tích bên trong mà còn tạo hình khối kiến trúc mạnh mẽ, dẫn lối lên không gian sân thượng.
-
Cửa kính cường lực lớn: Toàn bộ hệ cửa chính và cửa sổ sử dụng khung nhôm kính xingfa cao cấp, giúp lấy sáng tối đa và tạo tầm nhìn thoáng đạt ra sân vườn.
-
Điểm nhấn hình khối: Một ô cửa sổ tròn nhỏ ở mặt bên không chỉ có tác dụng trang trí mà còn mang ý nghĩa phong thủy, tạo sự mềm mại cho các đường nét vuông vức của ngôi nhà.

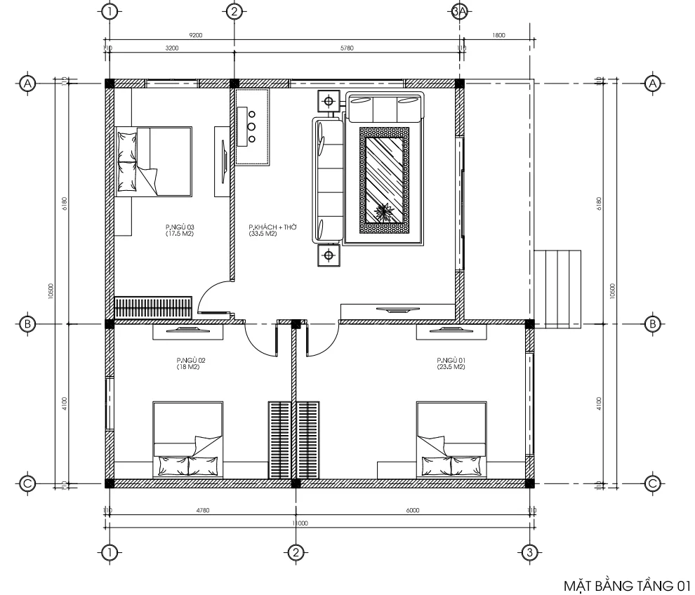
3. Phân tích mặt bằng công năng: Tối ưu đến từng centimet
Một mẫu nhà cấp 4 hiện đại 3 phòng ngủ đẹp không chỉ ở cái nhìn bên ngoài mà quan trọng nhất là cách bố trí không gian bên trong. Dựa trên bản vẽ mặt bằng tầng 01, chúng ta thấy sự khoa học trong cách sắp xếp của các kiến trúc sư Techhome:
Khu vực sinh hoạt chung
-
Phòng khách + Thờ (33.5m2): Đây là trái tim của ngôi nhà. Việc kết hợp không gian thờ tự vào phòng khách theo lối thiết kế mở giúp diện tích trông rộng rãi hơn rất nhiều. Hệ cửa 4 cánh mở rộng tạo sự thông thoáng tuyệt đối cho khu vực này.
Không gian riêng tư (3 Phòng ngủ)
Việc bố trí 3 phòng ngủ được tính toán kỹ lưỡng để đảm bảo sự riêng tư nhưng vẫn gần gũi:
-
Phòng ngủ 01 (23.5m2): Phòng ngủ master dành cho gia chủ với diện tích cực kỳ rộng rãi, view nhìn ra sân trước.
-
Phòng ngủ 02 (18m2): Thiết kế vuông vức, dễ dàng bài trí nội thất.
-
Phòng ngủ 03 (17.5m2): Phù hợp cho con cái hoặc khách đến chơi nhà, đảm bảo sự yên tĩnh.
Tổng diện tích xây dựng khoảng 10.5m x 11m (tính cả sảnh), tạo nên một không gian sống vừa vặn, không thừa không thiếu cho gia đình từ 4-6 thành viên.
Khu vực bếp và vệ sinh ở công trình phụ cạnh bên, được tách biệt với không gian tiếp khách và nghỉ ngơi, đảm bảo sự sạch sẽ.

4. Sân thượng – Khoảng thở giữa lòng phố cảng
Trong mẫu nhà cấp 4 hiện đại 3 phòng ngủ này, sân thượng không chỉ là nơi đặt téc nước hay hệ thống năng lượng mặt trời. Với hệ lan can kính sang trọng, đây trở thành không gian thư giãn lý tưởng. Anh Chung có thể trồng thêm cây xanh, bố trí một bộ bàn ghế ngoài trời để nhâm nhi cà phê sáng hoặc tổ chức những bữa tiệc BBQ gia đình vào cuối tuần.
Việc thiết kế sân thượng cho nhà mái bằng cũng đòi hỏi kỹ thuật chống thấm cực cao – điều mà Techhome luôn ưu tiên hàng đầu trong hồ sơ thiết kế kỹ thuật thi công.
5. Báo giá chi tiết xây dựng mẫu nhà cấp 4 hiện đại 3 phòng ngủ (Tham khảo 2026)
Để bạn dễ dàng hình dung và chuẩn bị ngân sách, Techhome xin đưa ra bảng dự toán chi phí sơ bộ cho mẫu nhà tương tự anh Chung tại Hải Phòng:
| Hạng mục | Đơn giá tham khảo (VNĐ/m2) | Tổng chi phí ước tính (Diện tích ~ 110m2) |
| Xây dựng phần thô (Bao gồm nhân công + vật tư thô) | 3.800.000 – 4.200.000 | ~ 420.000.000 – 460.000.000 |
| Xây dựng trọn gói (Chìa khóa trao tay – Vật tư khá) | 6.500.000 – 7.500.000 | ~ 715.000.000 – 825.000.000 |
| Thi công sân thượng & Cầu thang sắt | Trọn gói theo mẫu | ~ 60.000.000 – 80.000.000 |
| Nội thất cơ bản | Tùy chọn | Từ 150.000.000 |
Lưu ý: Đây chỉ là mức chi phí ước tính. Để nhận được báo giá chính xác và chi tiết nhất cho công trình của bạn, vui lòng liên hệ trực tiếp với chúng tôi. Hoặc để tìm hiểu rõ hơn về tiêu chuẩn vật liệu xây dựng và các yếu tố ảnh hưởng đến chi phí, bạn có thể tham khảo thêm tại các bài viết chuyên sâu về vật liệu xây dựng cao cấp trên Wikipedia.

6. Tại sao bạn nên chọn Kiến trúc Techhome?
Giữa hàng ngàn đơn vị thiết kế, Techhome tự hào là địa chỉ tin cậy được anh Chung và nhiều khách hàng trên toàn quốc lựa chọn. Chúng tôi cam kết:
-
Hồ sơ kỹ thuật đầy đủ, chi tiết: Từ bản vẽ kiến trúc, kết cấu đến điện nước đều được kiểm duyệt chặt chẽ.
-
Sáng tạo không ngừng: Mỗi mẫu nhà cấp 4 hiện đại 3 phòng ngủ là một tác phẩm duy nhất, mang đậm cá tính gia chủ.
-
Hỗ trợ giám sát: Chúng tôi không chỉ bán bản vẽ, chúng tôi đồng hành cùng bạn đến khi ngôi nhà hoàn thiện.
-
Minh bạch chi phí: Không phát sinh, không dùng vật liệu kém chất lượng.
Tham khảo thêm các mẫu nhà đẹp tại: https://nhadeptechhome.vn/

7. Góc chuyên gia: Những lưu ý “sống còn” khi xây mẫu nhà cấp 4 hiện đại 3 phòng ngủ
Là một chuyên gia trong ngành, tôi muốn chia sẻ thêm với bạn một vài kinh nghiệm thực tế ngoài những gì có trong bản vẽ:
-
Chú trọng thông gió tự nhiên: Đừng chỉ dựa vào điều hòa. Hãy tận dụng các ô cửa sổ đối xứng để tạo dòng khí đối lưu. Trong mẫu nhà anh Chung, các cửa sổ phòng ngủ đều được đặt ở vị trí đón gió rất tốt.
-
Lựa chọn vật liệu chống nóng: Với nhà mái bằng, việc lát gạch chống nóng hoặc làm vườn trên mái là giải pháp tuyệt vời để giảm nhiệt độ trong nhà vào mùa hè.
-
Màu sắc và ánh sáng: Nên ưu tiên các tông màu sáng để ăn gian diện tích. Đèn led âm trần ở hiên nhà, không chỉ để chiếu sáng mà còn tạo hiệu ứng sang trọng vào ban đêm.
-
Phong thủy phòng thờ: Tuy nằm chung không gian phòng khách, nhưng khu vực thờ cần được đặt ở vị trí “tọa cát hướng cát”, tránh nhìn trực diện vào nhà vệ sinh hay phòng ngủ.

8. Kết luận
Mẫu nhà cấp 4 hiện đại 3 phòng ngủ của anh Chung tại Hải Phòng không chỉ là một công trình xây dựng, đó là một không gian tận hưởng cuộc sống. Nếu bạn đang mơ về một ngôi nhà mang phong cách tối giản, đầy đủ công năng và có một khoảng sân thượng để ngắm sao trời, thì đây chính là gợi ý hoàn hảo nhất.
Hãy để Kiến trúc Techhome giúp bạn hiện thực hóa ngôi nhà trong mơ. Một bản vẽ tốt là khởi đầu của một cuộc sống hạnh phúc.
THÔNG TIN LIÊN HỆ:
-
Công ty Cổ phần Kiến trúc và Xây dựng Techhome
-
Hotline: 0364.04.2222 / 0387.60.3333
-
Website: https://nhadeptechhome.vn/
-
Địa chỉ: B1.1 LK18 Ô 3 – KĐT Thanh Hà – Cienco 5 – Thanh Oai- Hà Nội.
