Mẫu Nhà Ống 2 Tầng Tân Cổ Điển Sang Trọng Tại Hưng Yên – Giải Pháp Không Gian Cho Gia Đình Anh Chiến

Giữa hàng trăm phong cách kiến trúc đang nở rộ, làm thế nào để ngôi nhà của bạn không bị chìm nghỉm mà vẫn giữ được nét kiêu sa, bền bỉ với thời gian? Đó là câu hỏi mà Techhome nhận được rất nhiều, và cũng là trăn trở của anh Chiến – một chủ đầu tư kỹ tính tại Hưng Yên khi tìm đến chúng tôi.

Câu trả lời hoàn hảo nhất mà đội ngũ kiến trúc sư Techhome dành tặng anh chính là mẫu nhà ống 2 tầng tân cổ điển với mặt tiền cuốn hút và công năng tối ưu đến từng centimet. Hãy cùng Techhome “mổ xẻ” chi tiết hồ sơ thiết kế này để thấy vì sao đây lại là mẫu nhà quốc dân trong năm nay nhé!

1. Thông tin tổng quan dự án tại Hưng Yên

Trước khi đi sâu vào vẻ đẹp kiến trúc, Techhome xin chia sẻ thông tin cơ bản của dự án được trích xuất từ hồ sơ kỹ thuật thi công. Đây là cơ sở thực tế để bạn đọc dễ hình dung:

  • Chủ đầu tư: Anh Chiến.

  • Địa điểm xây dựng: Hưng Yên.

  • Đơn vị tư vấn thiết kế: Công ty Cổ phần Kiến trúc và Xây dựng Techhome.

  • Loại hình công trình: Nhà ở gia đình (Nhà ống/Nhà phố).

  • Phong cách: Tân cổ điển nhẹ nhàng.

  • Diện tích xây dựng tầng 1: 85m2 (Kích thước 5.5m x 15m).

  • Diện tích xây dựng tầng 2: 55m2.

  • Công năng chính: 01 Phòng khách, 01 Bếp ăn, 03 Phòng ngủ, 01 Phòng thờ, Thông tầng.

Đây là một đề bài khá phổ biến: Đất chia lô hình ống, mặt tiền 5.5m. Nhiệm vụ đặt ra là phải thiết kế một mẫu nhà ống 2 tầng tân cổ điển vừa thoáng đãng, vừa giải quyết bài toán thiếu sáng đặc trưng của nhà phố.

Phối cảnh mặt tiền mẫu nhà ống 2 tầng tân cổ điển sang trọng tại Hưng Yên.
Phối cảnh mặt tiền mẫu nhà ống 2 tầng tân cổ điển sang trọng tại Hưng Yên.

2. Vì sao “Nhà ống 2 tầng tân cổ điển” lại trở thành xu hướng?

Không phải ngẫu nhiên mà anh Chiến và rất nhiều gia chủ tại Hưng Yên lại “phải lòng” phong cách này.

Thứ nhất, nhà ống 2 tầng tân cổ điển là sự giao thoa tuyệt vời. Nó bỏ đi sự rườm rà, nặng nề của cổ điển truyền thống (vốn chỉ hợp với biệt thự đất rộng), nhưng lại giữ lại những tỷ lệ vàng, những đường phào chỉ mềm mại tạo nên cốt cách sang trọng.

Thứ hai, với những lô đất mặt tiền từ 4m đến 6m, việc áp dụng kiến trúc nhà ống 2 tầng tân cổ điển giúp mặt tiền ngôi nhà trông cao ráo hơn, bề thế hơn nhờ hệ cột trụ thẳng đứng và các chi tiết cửa vòm, đánh lừa thị giác người nhìn.

Góc nghiêng nhà ống 2 tầng tân cổ điển với hệ vòm cong bán nguyệt lớn, thông tầng từ sảnh lên đến ban công tầng 2.
Góc nghiêng nhà ống 2 tầng tân cổ điển với hệ vòm cong bán nguyệt lớn, thông tầng từ sảnh lên đến ban công tầng 2.

3. Phân tích vẻ đẹp ngoại thất: Sự kiêu sa từ ánh nhìn đầu tiên

Nhìn vào phối cảnh mặt tiền của gia đình anh Chiến, bạn sẽ thấy sự khác biệt rõ rệt so với những ngôi nhà hộp diêm hiện đại xung quanh.

Hệ mái và Mặt tiền ấn tượng

Điểm nhấn đắt giá nhất của mẫu nhà ống 2 tầng tân cổ điển này chính là hệ vòm cong bán nguyệt lớn, thông tầng từ sảnh lên đến ban công tầng 2. Chi tiết này tạo cảm giác ngôi nhà cao hơn rất nhiều so với chiều cao thực tế. Phía trên cùng là chi tiết phù điêu đắp nổi nhẹ nhàng kết hợp với cửa sổ mái tròn (cửa sổ mắt bò) – một đặc trưng không thể lẫn của kiến trúc Châu Âu.

Màu sơn chủ đạo là màu kem trắng sữa. Trong thiết kế nhà ống 2 tầng tân cổ điển, màu sắc này không bao giờ lỗi mốt, nó giúp bắt sáng tốt hơn và làm nền hoàn hảo cho bộ cửa nhôm kính Xingfa màu đen tuyền và hoa văn sắt nghệ thuật màu vàng đồng sang trọng.

Cổng và Tường rào

Sự đồng bộ là yếu tố then chốt. Cổng nhà được làm từ nhôm đúc hoặc sắt mỹ thuật sơn tĩnh điện màu vàng – đen, với các hoa văn uốn lượn “tone-sur-tone” với phào chỉ trên tường nhà. Điều này khẳng định gu thẩm mỹ tinh tế của gia chủ ngay từ khi khách chưa bước vào nhà.

Góc nghiêng nhà ống 2 tầng tân cổ điển

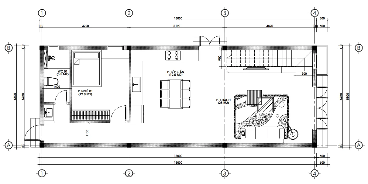
4. “Soi” bản vẽ công năng: Bài toán không gian được giải quyết như thế nào?

Một ngôi nhà đẹp không chỉ để ngắm, mà quan trọng nhất là phải “sống” được trong đó một cách thoải mái. Techhome đã bố trí mặt bằng công năng cho mẫu nhà ống 2 tầng tân cổ điển này cực kỳ khoa học dựa trên nhu cầu thực tế của gia đình 4-5 thành viên.

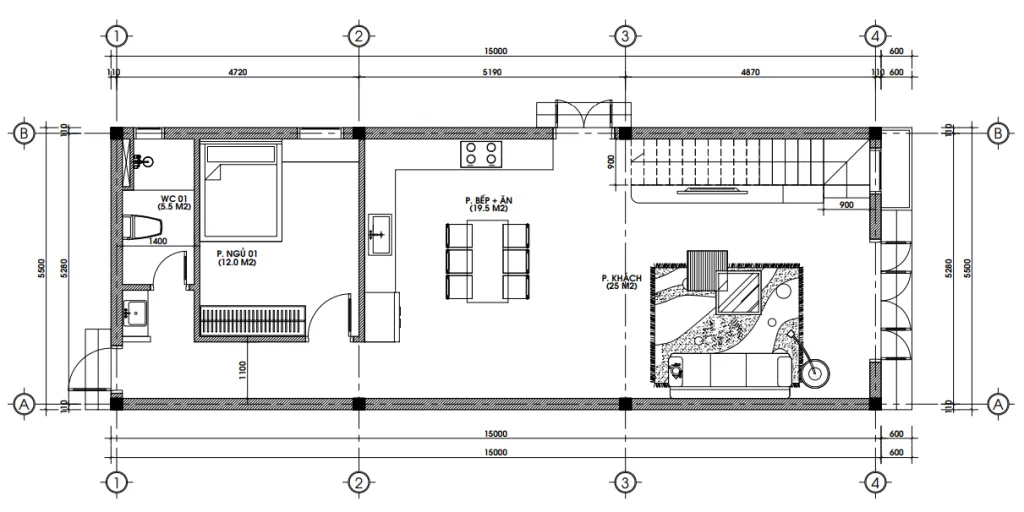
Tầng 1: Sự kết nối không gian

Diện tích sàn tầng 1 là 85m2 , chiều cao tầng lên tới 3.1m, tạo sự thông thoáng tuyệt đối.

  • Phòng khách (25m2): Bước qua sảnh chính là phòng khách rộng rãi. Đây là bộ mặt của ngôi nhà, nơi phong cách nhà ống 2 tầng tân cổ điển được thể hiện qua trần thạch cao giật cấp và đèn chùm pha lê.

  • Cầu thang bộ: Được bố trí nép dọc nhà, giúp tiết kiệm diện tích và không làm gãy vụn không gian. 

  • Phòng Bếp + Ăn (19.5m2): Nằm liên thông nhưng vẫn có sự kín đáo cần thiết. Diện tích này đủ cho một bàn ăn 6 người và hệ tủ bếp chữ L tiện nghi.

  • Phòng ngủ 01 (12.0m2): Một phòng ngủ đặt tại tầng 1 là cực kỳ cần thiết cho gia đình có người lớn tuổi, tránh việc leo trèo cầu thang.

  • WC chung (5.5m2): Đặt cuối nhà, đảm bảo vệ sinh và tế nhị.

Bản vẽ bố trí công năng tầng 1 mẫu nhà ống 2 tầng tân cổ điển diện tích 85m2 gồm phòng khách và bếp liên thông.
Bản vẽ bố trí công năng tầng 1 mẫu nhà ống 2 tầng tân cổ điển diện tích 85m2 gồm phòng khách và bếp liên thông.

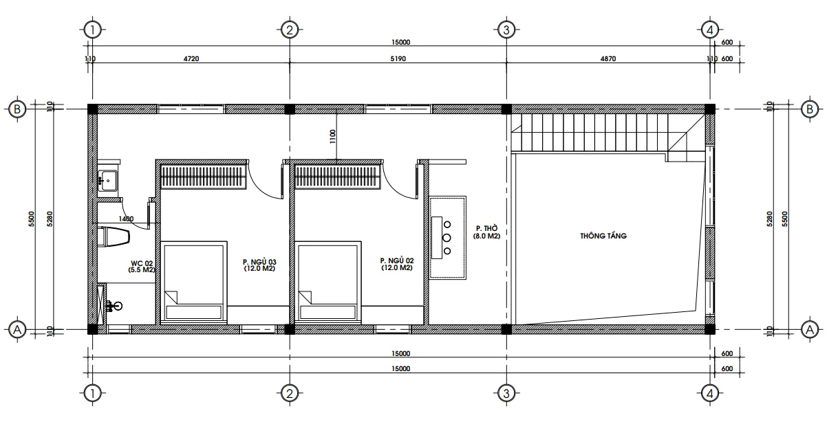
Tầng 2: Điểm nhấn Thông tầng

Tầng 2 có diện tích 55m2, nhỏ hơn tầng 1 do dành diện tích cho khoảng thông tầng.

  • Khoảng Thông tầng: Đây là chi tiết “đắt giá” nhất. Trong các mẫu nhà ống 2 tầng tân cổ điển, việc hy sinh diện tích sàn để làm thông tầng giúp phòng khách phía dưới cao thoáng như biệt thự, đồng thời đối lưu không khí cho cả nhà.

  • Phòng thờ (8.0m2): Đặt ở vị trí trang trọng, hướng ra mặt tiền, đón vượng khí.

  • 2 Phòng ngủ con (Mỗi phòng 12m2): Phòng ngủ 02 và 03 được bố trí cạnh nhau, sử dụng chung một WC cuối hành lang. Diện tích tuy không quá lớn nhưng vuông vắn, dễ kê đồ nội thất.

Bản vẽ bố trí công năng tầng 2 mẫu nhà ống 2 tầng tân cổ điển diện tích 55m2.
Bản vẽ bố trí công năng tầng 2 mẫu nhà ống 2 tầng tân cổ điển diện tích 55m2.

5. Vật liệu hoàn thiện: Linh hồn của ngôi nhà

Để hiện thực hóa bản vẽ mẫu nhà ống 2 tầng tân cổ điển này, việc chọn vật liệu là vô cùng quan trọng. Anh Chiến đã được Techhome tư vấn rất kỹ:

  • Sàn nhà: Sử dụng gạch lát nền vân đá Marble kích thước 80x80cm, giúp không gian rộng hơn và sang hơn.

  • Hệ cửa: Mặt tiền dùng cửa nhôm kính cường lực bản lớn để lấy sáng tối đa (khắc phục điểm yếu thiếu sáng của nhà ống). Cửa thông phòng dùng cửa gỗ công nghiệp chống ẩm hoặc cửa nhựa Composite để bền bỉ, không cong vênh.

  • Mái nhà: Sử dụng hệ vì kèo thép lợp tôn lạnh hoặc ngói màu xanh than, vừa chống nóng tốt, vừa đảm bảo thẩm mỹ khi nhìn từ trên cao .

Để tìm hiểu rõ hơn về tiêu chuẩn vật liệu xây dựng và các yếu tố ảnh hưởng đến chi phí, bạn có thể tham khảo thêm tại các bài viết chuyên sâu về vật liệu xây dựng cao cấp trên Wikipedia.

6. Tại sao thi công nhà ống tân cổ điển lại phức tạp hơn hiện đại?

Nhiều khách hàng thắc mắc tại sao đơn giá thi công nhà ống 2 tầng tân cổ điển lại thường nhỉnh hơn nhà hiện đại một chút. Lý do nằm ở sự tỉ mỉ. Người thợ xây dựng phải có tay nghề cao để đắp vẽ các đường phào chỉ thẳng tắp, các hoa văn đầu cột sắc nét. Chỉ một sai lệch nhỏ ở tỷ lệ vòm cong mặt tiền cũng có thể phá hỏng cả cái “thần” của ngôi nhà. Tại Techhome, chúng tôi sở hữu đội ngũ thợ nề lành nghề, chuyên trị những dòng nhà kỹ thuật cao này.

Tổng thể mẫu nhà ống 2 tầng tân cổ điển nhìn từ trên cao với hệ mái tôn lạnh chống nóng hiệu quả.
Tổng thể mẫu nhà ống 2 tầng tân cổ điển nhìn từ trên cao với hệ mái tôn lạnh chống nóng hiệu quả.

7. Dự toán chi phí xây dựng (Cập nhật 2026)

Đây chắc chắn là phần anh Chiến và các bạn quan tâm nhất. Để sở hữu một mẫu nhà ống 2 tầng tân cổ điển đẹp như thế này, ngân sách cần chuẩn bị là bao nhiêu?

Dưới đây là bảng báo giá khái toán dựa trên đơn giá thị trường hiện tại (Lưu ý: Giá có thể thay đổi tùy thời điểm và chủng loại vật tư):

  • Diện tích tính toán:

    • Tầng 1: 85m2.

    • Tầng 2: 55m2.

    • Tổng diện tích sàn quy đổi: 140m2

  • Đơn giá:

    1. Thi công phần thô + nhân công hoàn thiện: Dao động từ 4.000.000đ – 4.500.000đ/m2.

      • Tổng chi phí phần thô: Khoảng 600 triệu – 700 triệu đồng.

    2. Thi công trọn gói (Chìa khóa trao tay – Vật tư Khá): Dao động từ 7.000.000đ – 8.000.000đ/m2.

      • Tổng chi phí hoàn thiện: Khoảng 1 tỷ – 1.2 tỷ đồng.

So với giá trị thẩm mỹ và công năng mà mẫu nhà ống 2 tầng tân cổ điển mang lại, đây là mức đầu tư cực kỳ hợp lý cho một tổ ấm bền vững hàng chục năm.

Tổng thể mẫu nhà ống 2 tầng tân cổ điển

8. Kinh nghiệm “xương máu” khi xây nhà ống tân cổ điển

Trong quá trình làm việc với anh Chiến, Techhome đã chia sẻ những lưu ý vàng mà bất cứ ai đang định xây nhà ống 2 tầng tân cổ điển cũng cần biết:

  • Đừng tham chi tiết: Với mặt tiền 5-6m, hãy tiết chế hoa văn. Chỉ cần nhấn vào cột trụ và vòm cửa là đủ. Quá nhiều phù điêu sẽ khiến nhà bị rối mắt và cảm giác bé lại.

  • Chú trọng ánh sáng: Nhà tân cổ điển rất cần ánh sáng đèn (đèn hắt tường, đèn chùm) để tôn lên vẻ đẹp của phào chỉ vào ban đêm.

  • Phong thủy: Hãy để ý kích thước cửa (Lỗ Ban) ngay từ đầu. Như trong bản vẽ của anh Chiến, các kích thước thông thủy đều được KTS và KS tính toán vào cung đỏ (cung tốt).

9. Tại sao nên chọn Techhome làm đơn vị thiết kế & thi công?

Thị trường không thiếu đơn vị thiết kế, nhưng tìm được người hiểu rõ cái “hồn” của nhà ống 2 tầng tân cổ điển như Techhome thì không nhiều.

  • Hồ sơ chi tiết: Chúng tôi không chỉ vẽ phối cảnh cho đẹp. Hồ sơ kỹ thuật thi công của Techhome chi tiết đến từng viên gạch, từng vị trí ổ cắm điện, giúp thợ thi công dễ dàng và chính xác tuyệt đối.

  • Cam kết tiến độ: Quy trình làm việc rõ ràng, giám sát chặt chẽ.

  • Hỗ trợ trọn đời: Số hotline hỗ trợ kỹ thuật xây dựng 0364.04.2222 – 0387.60.3333 luôn sẵn sàng giải đáp mọi thắc mắc của gia chủ ngay cả khi công trình đã bàn giao.

Tổng quát nhà ống 2 tầng tân cổ điển kết hợp cổng nhôm đúc và hệ cửa kính vòm lớn lấy sáng.
Tổng quát nhà ống 2 tầng tân cổ điển kết hợp cổng nhôm đúc và hệ cửa kính vòm lớn lấy sáng.

10. Kết luận

Ngôi nhà của anh Chiến tại Hưng Yên là minh chứng rõ nét cho thấy: Không cần diện tích quá khủng, bạn hoàn toàn có thể sở hữu một cơ ngơi sang trọng, đẳng cấp nhờ tư duy thiết kế đúng đắn. Mẫu nhà ống 2 tầng tân cổ điển này chắc chắn sẽ còn “làm mưa làm gió” trong nhiều năm tới.

Cảm ơn anh Chiến đã tin tưởng giao phó ước mơ của mình cho Techhome.

Nếu bạn cũng đang ấp ủ dự định xây một căn nhà ống 2 tầng tân cổ điển cho riêng mình, đừng ngần ngại liên hệ với chúng tôi để được tư vấn miễn phí và nhận báo giá ưu đãi nhất tháng này.

CÔNG TY CỔ PHẦN KIẾN TRÚC VÀ XÂY DỰNG TECHHOME

Để lại một bình luận

Email của bạn sẽ không được hiển thị công khai. Các trường bắt buộc được đánh dấu *

    Vui lòng nhấn nút YÊU CẦU TƯ VẤN và đợi 1 - 2 giây đến khi thấy thông báo thành công

    YÊU CẦU TƯ VẤN