Mẫu nhà mái Nhật 1 tầng 3 phòng ngủ: Tuyệt phẩm 180m2 tại Nam Định cho gia đình hiện đại

Bạn đã bao giờ mơ về một ngôi nhà mà ở đó, mỗi sáng thức dậy đều cảm thấy bình yên như đang ở resort? Không cần quá cao tầng, không cần cầu kỳ phô trương, sự tinh tế nằm ngay ở những đường nét tối giản và không gian xanh bao quanh. Hôm nay, Techhome xin giới thiệu đến bạn một dự án thực tế mà chúng tôi vừa bàn giao phương án thiết kế cho gia đình anh Hiệp tại Nam Định. Đây chính là mẫu nhà mái Nhật 1 tầng 3 phòng ngủ đang “làm mưa làm gió” trên các hội nhóm yêu nhà đẹp thời gian qua.


1. Tại sao mẫu nhà mái Nhật 1 tầng 3 phòng ngủ lại trở thành xu hướng?

Thực tế mà nói, giữa phố thị ồn ào hay kể cả ở các vùng quê đang phát triển, xu hướng xây nhà ngang (nhà trệt) đang quay trở lại mạnh mẽ. Tại sao ư? Vì nó kết nối các thành viên tốt hơn. Thay vì mỗi người một tầng, cả nhà cùng sinh hoạt trên một mặt phẳng, tối chạm mặt, ngày ăn cơm chung, cảm giác ấm cúng hơn hẳn.

Mẫu nhà mái Nhật 1 tầng 3 phòng ngủ mà Techhome thiết kế cho anh Hiệp sở hữu diện tích lý tưởng 180m2. Đây là con số “vàng” để bố trí công năng thoải mái mà không gây cảm giác trống trải. Hệ mái Nhật với độ dốc vừa phải, giúp thoát nước nhanh và cực kỳ phù hợp với khí hậu nóng ẩm mưa nhiều tại Việt Nam.

Phối cảnh mặt tiền mẫu nhà mái Nhật 1 tầng 3 phòng ngủ hiện đại màu trắng sang trọng tại Nam Định.
Phối cảnh mặt tiền mẫu nhà mái Nhật 1 tầng 3 phòng ngủ hiện đại màu trắng sang trọng tại Nam Định.

2. Phân tích kiến trúc ngoại thất: Sự giao thoa giữa hiện đại và truyền thống

Nhìn vào phối cảnh, bạn sẽ thấy ngay sự thanh lịch. Gam màu trắng chủ đạo kết hợp với hệ mái ngói xanh than tạo nên một diện mạo vừa sang trọng, vừa nhã nhặn.

  • Hệ cột vuông vững chãi: Phần sảnh chính được nâng đỡ bởi hai cột vuông lớn, trang trí phào chỉ nhẹ nhàng nhưng đầy uy lực. Nó tạo cảm giác ngôi nhà rất “có chân có đế”, bền vững theo thời gian.

  • Cửa kính xingfa cao cấp: Để tận dụng ánh sáng tự nhiên, Techhome ưu tiên sử dụng hệ cửa kính khung nhôm tối màu. Điều này giúp mẫu nhà mái Nhật 1 tầng 3 phòng ngủ luôn thoáng đãng, phá bỏ rào cản giữa không gian bên trong và thiên nhiên bên ngoài.

  • Bồn hoa bao quanh chân tường: Đây là chi tiết nhỏ nhưng đắt giá. Việc đưa cây xanh vào ngay dưới chân cửa sổ giúp công trình mềm mại hơn, bớt đi sự khô cứng của bê tông cốt thép.

Góc nghiêng mẫu nhà mái Nhật 1 tầng 3 phòng ngủ sang trọng, nhã nhặn.
Góc nghiêng mẫu nhà mái Nhật 1 tầng 3 phòng ngủ sang trọng, nhã nhặn.

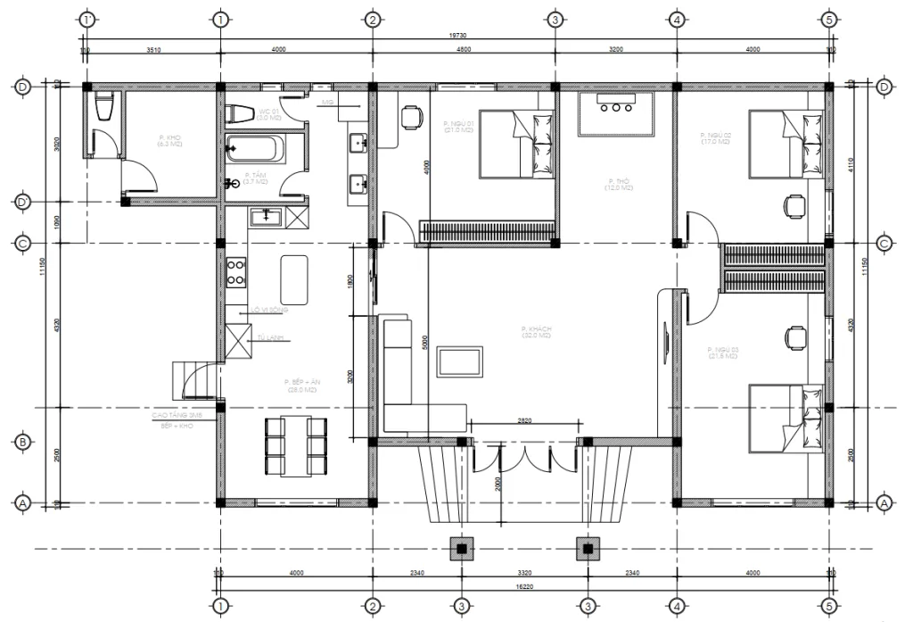
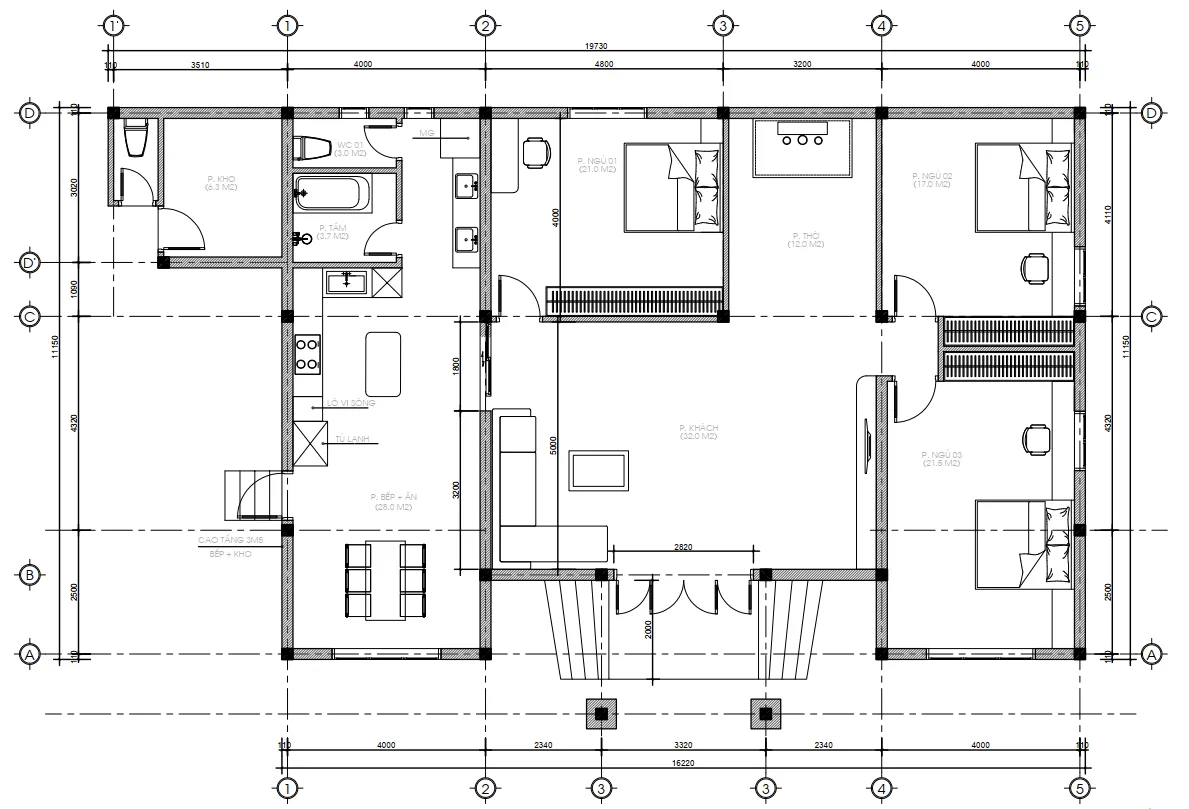
3. Chi tiết mặt bằng công năng: Tối ưu đến từng centimet

Đừng chỉ nhìn vẻ ngoài, linh hồn của ngôi nhà nằm ở bản vẽ mặt bằng. Với diện tích 180m2, đội ngũ KTS Techhome đã tính toán rất kỹ lưỡng:

Khu vực sinh hoạt chung

  • Phòng khách: Nằm ngay sau sảnh chính, diện tích rộng rãi đủ để đặt một bộ sofa lớn. Đây là nơi tiếp khách và cũng là trung tâm kết nối các phòng khác.

  • Phòng bếp & ăn: Được thiết kế liên thông nhưng vẫn có sự phân tách tinh tế. Khu vực bếp nấu bố trí theo chữ L giúp tiết kiệm diện tích và thuận tiện cho người nội trợ.

Không gian riêng tư (3 Phòng ngủ)

Đây chính là điểm cốt lõi của mẫu nhà mái Nhật 1 tầng 3 phòng ngủ.

  • Phòng ngủ Master: 21,5m2 rộng rãi, dành cho gia chủ với sự riêng tư tuyệt đối.

  • 2 Phòng ngủ nhỏ: Dành cho con cái , được bố trí 2 bên, cạnh phòng thờ, thuận tiện sinh hoạt.

  • Phòng thờ: Một không gian không thể thiếu trong văn hóa người Việt, được đặt ở vị trí trang trọng, hướng ra mặt tiền để đón tài lộc.

Bản vẽ mặt bằng công năng mẫu nhà mái Nhật 1 tầng 3 phòng ngủ diện tích 180m2 chuẩn phong thủy.
Bản vẽ mặt bằng công năng mẫu nhà mái Nhật 1 tầng 3 phòng ngủ diện tích 180m2 chuẩn phong thủy.

4. Thông số kỹ thuật chi tiết của công trình

Dưới đây là các thông số chính xác từ hồ sơ thiết kế của Techhome để bạn tham khảo:

Hạng mục Thông tin chi tiết
Chủ đầu tư Anh Hiệp
Địa điểm Nam Định
Diện tích xây dựng 180.0 m2
Chiều cao tầng 4.1 m
Phong cách Kiến trúc mái Nhật hiện đại
Đơn vị thiết kế Công ty Cổ phần Kiến trúc và Xây dựng Techhome

5. Báo giá tham khảo thi công mẫu nhà mái Nhật 1 tầng 3 phòng ngủ

Techhome biết, khi xem nhà, điều bạn quan tâm nhất là “Hết bao nhiêu tiền?”. Techhome luôn minh bạch trong vấn đề này. Tuy nhiên, giá thực tế sẽ phụ thuộc vào thời điểm xây dựng và chủng loại vật liệu bạn chọn.

Dưới đây là dự toán sơ bộ cho mẫu nhà mái Nhật 1 tầng 3 phòng ngủ diện tích 180m2:

  1. Phần thô & Nhân công hoàn thiện: Khoảng 3.800.000 – 4.200.000 VNĐ/m2.

    • Ước tính: 180m2 x 4.000.000 = 720.000.000 VNĐ.

  2. Phần hoàn thiện (Vật tư trung bình khá): Khoảng 2.000.000 – 2.500.000 VNĐ/m2.

    • Ước tính: 180m2 x 2.200.000 = 396.000.000 VNĐ.

  3. Hệ mái Nhật (Tính theo diện tích mái thực tế): Khoảng 150.000.000 – 200.000.000 VNĐ (tùy loại ngói).

Tổng đầu tư dự kiến: Từ 1,2 tỷ đến 1,4 tỷ đồng (Chưa bao gồm sân vườn và nội thất rời).

Lưu ý: Đây chỉ là mức chi phí ước tính. Để nhận được báo giá chính xác và chi tiết nhất cho công trình của bạn, vui lòng liên hệ trực tiếp với chúng tôi. Hoặc để tìm hiểu rõ hơn về tiêu chuẩn vật liệu xây dựng và các yếu tố ảnh hưởng đến chi phí, bạn có thể tham khảo thêm tại các bài viết chuyên sâu về vật liệu xây dựng cao cấp trên Wikipedia.

Góc nghiêng mẫu nhà mái Nhật 1 tầng 3 phòng ngủ


6. Tại sao bạn nên chọn Techhome thiết kế và thi công?

Xây nhà là việc cả đời. Đừng để những sai sót nhỏ làm hỏng tâm huyết của bạn. Khi chọn mẫu nhà mái Nhật 1 tầng 3 phòng ngủ tại Techhome, chúng tôi cam kết:

  • Bản vẽ chính xác: Từng số đo, vị trí cột, dầm đều được KTS và cộng sự tính toán kỹ lưỡng.

  • Hỗ trợ kỹ thuật 24/7: Hotline của chúng tôi 0364042222 luôn sẵn sàng giải đáp mọi thắc mắc của bạn tại công trường.

  • Tiết kiệm chi phí: Nhờ quy trình làm việc chuyên nghiệp, chúng tôi giúp bạn hạn chế tối đa việc phát sinh chi phí không đáng có.

Mẫu nhà mái Nhật 1 tầng 3 phòng ngủ của anh Hiệp là minh chứng cho sự tận tâm đó. Không chỉ là một bản vẽ, đó là một giải pháp sống toàn diện.

Tổng thể mẫu nhà mái Nhật 1 tầng 3 phòng ngủ diện tích 180m2 nhìn từ trên cao lợp ngói xanh than.
Tổng thể mẫu nhà mái Nhật 1 tầng 3 phòng ngủ diện tích 180m2 nhìn từ trên cao lợp ngói xanh than.

7. Lời khuyên từ chuyên gia dành cho bạn

Để có một mẫu nhà mái Nhật 1 tầng 3 phòng ngủ hoàn hảo, Tôi có vài lời khuyên chân thành:

  • Đừng tiết kiệm diện tích hành lang quá mức: Hãy để ngôi nhà có khoảng thở.

  • Chú trọng phong thủy: Vị trí phòng thờ và hướng bếp rất quan trọng, hãy thảo luận kỹ với KTS.

  • Chọn đơn vị uy tín: Một bản vẽ tốt trị giá vài chục triệu có thể giúp bạn tiết kiệm hàng trăm triệu tiền sửa chữa sau này.

Tổng thể mẫu nhà mái Nhật 1 tầng 3 phòng ngủ


8. Kết luận

Hy vọng mẫu nhà mái Nhật 1 tầng 3 phòng ngủ tại Nam Định này đã tiếp thêm động lực cho bạn trên hành trình xây tổ ấm. Nếu bạn đang sở hữu một mảnh đất rộng và yêu thích sự nhẹ nhàng, tinh tế, đừng ngần ngại liên hệ với Techhome. Chúng tôi không chỉ xây nhà, chúng tôi cùng bạn kiến tạo không gian sống.

Thông tin liên hệ:

Để lại một bình luận

Email của bạn sẽ không được hiển thị công khai. Các trường bắt buộc được đánh dấu *

    Vui lòng nhấn nút YÊU CẦU TƯ VẤN và đợi 1 - 2 giây đến khi thấy thông báo thành công

    YÊU CẦU TƯ VẤN