Giữa lòng thủ đô Hà Nội tấp nập, việc sở hữu một mảnh đất “vàng” đã khó, làm sao để xây dựng nên một tổ ấm vừa vặn, tiện nghi lại càng khó hơn. Hôm nay, Kiến trúc Techhome xin giới thiệu đến quý khách hàng một mẫu nhà ống 3 tầng đẹp, mang phong cách hiện đại mà chúng tôi vừa hoàn thiện hồ sơ thiết kế cho gia đình anh Tưởng. Đây chắc chắn sẽ là nguồn cảm hứng tuyệt vời cho những ai đang tìm kiếm ý tưởng cho ngôi nhà tương lai của mình.
1. Thông tin tổng quan dự án
Trước khi đi sâu vào chi tiết, mời bạn điểm qua một vài thông số kỹ thuật cơ bản của công trình này. Việc minh bạch thông tin giúp bạn dễ dàng hình dung xem mẫu nhà ống 3 tầng đẹp này có phù hợp với lô đất nhà mình hay không.
-
Chủ đầu tư: Anh Tưởng
-
Địa điểm xây dựng: Hà Nội
-
Đơn vị thiết kế & thi công: Công ty Cổ phần Kiến trúc và Xây dựng Techhome
-
Loại hình: Nhà ở gia đình (Nhà phố/Nhà ống)
-
Kích thước đất: Mặt tiền 4.65m x Chiều sâu 13m
-
Công năng chính:
-
Tầng 1: Phòng khách, Bếp ăn, WC chung.
-
Tầng 2: 03 Phòng ngủ, WC.
-
Tầng 3: Phòng thờ, Sân phơi.
-

2. Vẻ đẹp hiện đại của mẫu nhà ống 3 tầng đẹp tại Hà Nội
Ấn tượng đầu tiên là thứ quyết định cảm xúc. Với mẫu nhà ống 3 tầng đẹp của anh Tưởng, các kiến trúc sư Techhome đã lựa chọn ngôn ngữ thiết kế hiện đại để giải quyết bài toán về diện tích và thẩm mỹ.
Kiến trúc mặt tiền: Đơn giản nhưng không đơn điệu
Nhìn vào phối cảnh mặt tiền, bạn sẽ thấy sự lược bỏ hoàn toàn các chi tiết phào chỉ rườm rà. Thay vào đó là những mảng khối vuông vức, khỏe khoắn. Tông màu trắng chủ đạo kết hợp với màu xám ghi của gạch ốp tường tạo nên sự tương phản nhẹ nhàng nhưng cực kỳ sang trọng. Đây là đặc điểm nhận diện của một mẫu nhà ống 3 tầng đẹp xu hướng năm 2026.
Hệ thống lan can ban công sử dụng sắt sơn tĩnh điện giúp mở rộng tầm nhìn, làm cho ngôi nhà trông thoáng hơn so với kích thước thật là 4.65m bề ngang.
Giải pháp lấy sáng và thông gió “đỉnh cao”
Một “nỗi đau” của nhà ống tại các đô thị lớn như Hà Nội là thiếu sáng và bí khí. Để khắc phục, trong mẫu nhà ống 3 tầng đẹp này, Techhome đã bố trí hệ thống giếng trời kết hợp với tum thang.
Quan sát hình ảnh phối cảnh từ trên cao xuống, bạn có thể thấy rõ vị trí đặt thái dương năng và bồn nước inox rất gọn gàng trên mái tum. Phần mái kính lấy sáng ngay khu vực cầu thang chính là “lá phổi” của ngôi nhà, giúp đối lưu không khí từ tầng 1 lên đến tầng thượng. Nhờ vậy, dù là nhà ống nhưng bước vào nhà anh Tưởng, cảm giác sẽ luôn mát mẻ và dễ chịu.

3. Phân tích công năng: Sự bố trí thông minh trong từng mét vuông
Để được gọi là một mẫu nhà ống 3 tầng đẹp, chỉ đẹp bên ngoài là chưa đủ. “Cái đẹp” thực sự phải nằm ở sự tiện dụng trong sinh hoạt hàng ngày. Hãy cùng Techhome “mổ xẻ” bản vẽ mặt bằng kỹ thuật của ngôi nhà này nhé.
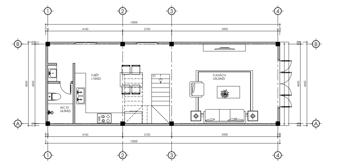
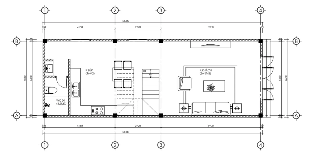
Tầng 1: Không gian kết nối gia đình
Với diện tích sàn khoảng 60m2 và chiều cao tầng 3.7m, tầng 1 được thiết kế cực kỳ thoáng đãng.
-
Phòng khách (26.5m2): Bước từ sảnh chính vào là phòng khách rộng rãi. Với chiều ngang 4.65m, việc bố trí sofa và kệ tivi trở nên dễ dàng, chừa lại lối đi lại thoải mái.
-
Khu vực cầu thang: Cầu thang được đặt ở giữa nhà, đóng vai trò như vách ngăn ước lệ phân chia phòng khách và bếp. Cầu thang được thiết kế 21 bậc, mỗi bậc cao 176mm, đây là kích thước chuẩn phong thủy (cung Sinh) và thuận tiện cho việc di chuyển của người già, trẻ nhỏ.
-
Phòng bếp ăn (16m2): Nằm phía sau nhà. Diện tích này đủ để đặt một tủ bếp chữ L hiện đại và bộ bàn ăn 6 ghế. Không gian này ấm cúng, tách biệt mùi dầu mỡ với phòng khách.
-
Vệ sinh chung (WC1 – 4.5m2): Được bố trí khéo léo cuối nhà để tiết kiệm diện tích.
Đây là cách bố trí kinh điển nhưng chưa bao giờ lỗi thời cho một mẫu nhà ống 3 tầng đẹp với diện tích 60m2.

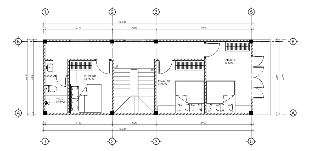
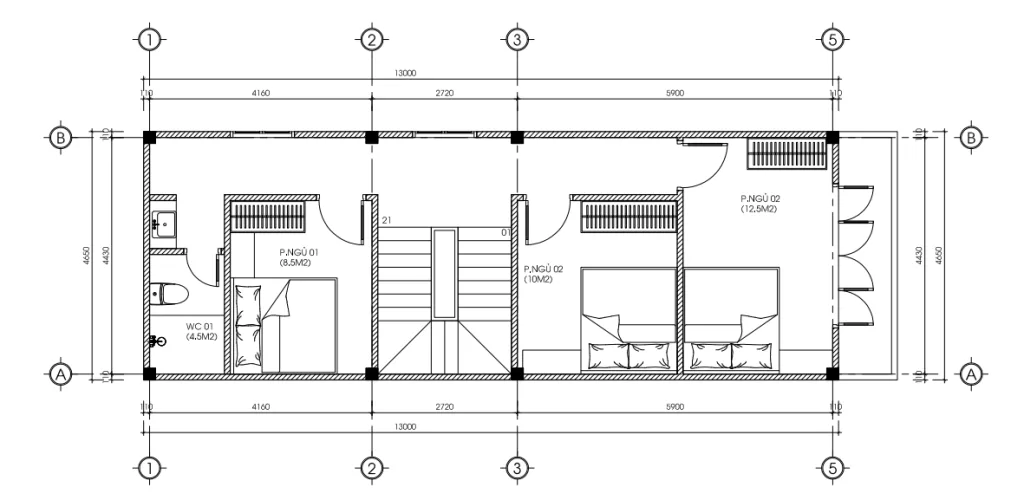
Tầng 2: Không gian nghỉ ngơi riêng tư
Lên đến tầng 2, không gian được dành trọn vẹn cho việc nghỉ ngơi với diện tích sàn 65m2. Chiều cao tầng này là 3.6m, đảm bảo sự thông thoáng. Điểm đặc biệt trong bản vẽ của anh Tưởng là sự tối ưu hóa số lượng phòng ngủ:
-
Phòng ngủ 01 (8.5m2): Phòng ngủ nhỏ phía sau, thích hợp cho con nhỏ hoặc khách.
-
Phòng ngủ 02 (10m2): Nằm ở vị trí giữa, lấy sáng từ giếng trời cầu thang.
-
Phòng ngủ Master (12.5m2): Nằm phía trước mặt tiền, có cửa ra ban công thoáng mát. Việc bố trí tới 3 phòng ngủ trên một mặt sàn hơn 60m2 đòi hỏi sự tính toán rất kỹ lưỡng của KTS Techhome. Đây chính là điểm cộng lớn khiến bản thiết kế này trở thành một mẫu nhà ống 3 tầng đẹp và tối ưu công năng nhất nhì hiện nay.

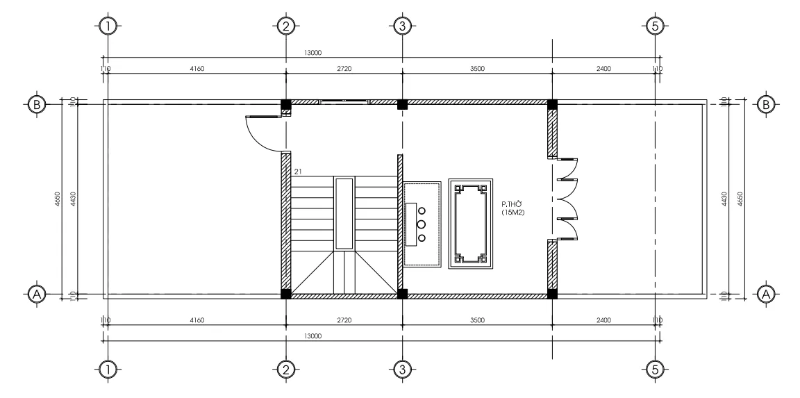
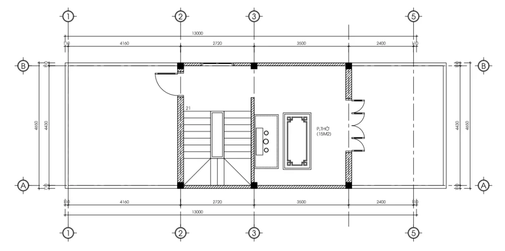
Tầng 3: Tâm linh và Thư giãn
Tầng cao nhất của ngôi nhà có diện tích sàn xây dựng khoảng 30m2 với chiều cao 3.3m.
-
Phòng thờ (15m2): Được đặt ở vị trí trang trọng nhất, hướng ra mặt tiền. Đây là nét văn hóa không thể thiếu của người Việt. Không gian này cần sự yên tĩnh và tôn nghiêm.
-
Sân phơi & Sân chơi: Phần diện tích còn lại phía sau và phía trước được tận dụng làm sân phơi đồ và chỗ trồng cây cảnh. Nhìn vào phối cảnh 3D, bạn sẽ thấy gia chủ đã bố trí rất nhiều cây xanh ở ban công và sân thượng, biến ngôi nhà thành một “resort phố” thu nhỏ.

4. Tại sao mẫu nhà ống 3 tầng đẹp này lại “Hot” đến vậy?
Không phải ngẫu nhiên mà hồ sơ thiết kế nhà anh Tưởng lại được tôi chọn để giới thiệu kỹ đến vậy. Dưới đây là những lý do khiến mẫu nhà ống 3 tầng đẹp này trở thành xu hướng:
-
Tiết kiệm chi phí: Phong cách hiện đại giảm thiểu chi phí đắp vẽ phào chỉ, tập trung tiền vào vật liệu hoàn thiện chất lượng.
-
Không lỗi mốt: Sự đơn giản luôn trường tồn với thời gian. 10 hay 20 năm nữa, nhìn ngôi nhà vẫn rất sang.
-
Phù hợp lô đất phổ thông: Kích thước 4x13m, 4.5x15m hay 5x12m đều có thể áp dụng linh hoạt layout (bố cục) này.
-
Thi công nhanh: Kết cấu nhà ống tường gạch, khung bê tông cốt thép đơn giản giúp rút ngắn thời gian xây dựng đáng kể.

5. Dự toán chi phí xây dựng (Cập nhật 2026)
Đây chắc chắn là phần bạn quan tâm nhất. Để sở hữu một mẫu nhà ống 3 tầng đẹp như nhà anh Tưởng tại Hà Nội, bạn cần chuẩn bị ngân sách như thế nào?
Lưu ý: Báo giá dưới đây mang tính chất tham khảo tại thời điểm viết bài và có thể thay đổi tùy thuộc vào chủng loại vật tư bạn chọn.
Chúng ta sẽ tính sơ bộ diện tích xây dựng:
-
Tầng 1: 60m2.
-
Tầng 2: 65m2 (do có ban công đua ra).
-
Tầng 3: 30m2 (tum)
Tổng diện tích sàn quy đổi: Khoảng 155m2.
Bảng báo giá khái toán:
| Hạng mục | Đơn giá tham khảo (VNĐ/m2) | Tổng chi phí ước tính |
| Thi công phần thô & nhân công hoàn thiện | 3.800.000 – 4.200.000 | ~ 600.000.000 – 700.000.000 VNĐ |
| Xây nhà trọn gói (Chìa khóa trao tay) | 6.500.000 – 7.500.000 | ~ 1.000.000.000 – 1.162.000.000 VNĐ |
-
Gói phần thô: Bao gồm sắt thép, xi măng, gạch, cát đá, nhân công xây trát, ốp lát, đi điện nước âm tường. Đây là khung xương vững chắc cho mẫu nhà ống 3 tầng đẹp.
-
Gói hoàn thiện: Bao gồm thêm gạch men, thiết bị vệ sinh, sơn bả, trần thạch cao, cửa, cầu thang…
Lời khuyên từ Techhome: Nếu bạn có thời gian và am hiểu chút ít về xây dựng, có thể chọn gói nhân công hoặc phần thô để tự tay chọn vật liệu hoàn thiện. Tuy nhiên, nếu bạn bận rộn, gói “Chìa khóa trao tay” là giải pháp an toàn để đảm bảo mẫu nhà ống 3 tầng đẹp của bạn được thi công đồng bộ, đúng thiết kế 100% và không phát sinh chi phí vô lý.
Để tìm hiểu rõ hơn về tiêu chuẩn vật liệu xây dựng và các yếu tố ảnh hưởng đến chi phí, bạn có thể tham khảo thêm tại các bài viết chuyên sâu về vật liệu xây dựng cao cấp trên Wikipedia.

6. Kinh nghiệm “vàng” khi xây nhà ống 3 tầng
Là những người trực tiếp vẽ nên và giám sát thi công hàng trăm mẫu nhà ống 3 tầng đẹp, Techhome muốn chia sẻ với bạn vài điều tâm huyết:
-
Đừng tham phòng ngủ: Nếu nhà ít người, hãy nới rộng phòng ngủ ra thay vì cố chia nhỏ như “chuồng cọp”. Nhà là nơi để hưởng thụ.
-
Chú trọng chống thấm: Đặc biệt là khu vực sàn mái (tầng 3) và các nhà vệ sinh. Một mẫu nhà ống 3 tầng đẹp đến mấy mà tường bị nấm mốc, ngấm nước thì cũng mất hết giá trị.
-
Phong thủy cầu thang: Như bản vẽ nhà anh Tưởng, số bậc là 21 (Cung Sinh). Đây là chi tiết nhỏ nhưng quan trọng mang lại tài lộc.
-
Ánh sáng là “vua”: Đừng tiếc tiền cho hệ thống cửa nhôm kính chất lượng và giếng trời. Nó giúp tiết kiệm tiền điện thắp sáng ban ngày và tốt cho sức khỏe.

7. Vì sao nên chọn Techhome làm đơn vị thiết kế & thi công?
Giữa “ma trận” các công ty xây dựng, Techhome tự tin là điểm tựa vững chắc cho tổ ấm của bạn.
-
Pháp lý rõ ràng: Chúng tôi là Công ty Cổ phần, mọi hợp đồng đều minh bạch, có hóa đơn chứng từ đầy đủ.
-
Đội ngũ thực chiến: Từ KTS đến đội ngũ kỹ sư kiểm duyệt đều là những người có thâm niên, bám sát công trình.
-
Hỗ trợ trọn đời: Số hotline kỹ thuật 0364.042.222 – 0387.603.333 luôn sẵn sàng hỗ trợ tư vấn kể cả khi công trình đã bàn giao.

Kết luận
Ngôi nhà của anh Tưởng tại Hà Nội là minh chứng rõ nét cho việc: Không cần đất quá rộng, không cần chi phí quá “khủng”, bạn vẫn có thể sở hữu một mẫu nhà ống 3 tầng đẹp, tiện nghi và đầy phong cách.
Hy vọng bài viết này đã cung cấp cho bạn những thông tin hữu ích và thực tế nhất. Xây nhà là việc lớn đời người, hãy để Techhome giúp bạn biến việc đó trở nên nhẹ nhàng và trọn vẹn hơn.
Nếu bạn đã “phải lòng” mẫu nhà ống 3 tầng đẹp này hoặc muốn điều chỉnh công năng cho phù hợp với nhu cầu riêng, đừng ngần ngại liên hệ với chúng tôi ngay hôm nay.
CÔNG TY CỔ PHẦN KIẾN TRÚC VÀ XÂY DỰNG TECHHOME
-
Hotline tư vấn: 0364.04.2222 / 0387.60.3333
-
Website: https://nhadeptechhome.vn/
-
Địa chỉ: B1.1 LK18 Ô 3 – KĐT Thanh Hà – Cienco 5 – Thanh Oai- Hà Nội.
