Nếu bạn đang tìm kiếm một không gian sống “chất”, vừa giữ được nét thanh bình của kiến trúc thấp tầng, vừa toát lên vẻ sang trọng hiện đại, thì mẫu nhà cấp 4 mái Nhật mã số 484 do Techhome thực hiện chính là câu trả lời hoàn hảo. Không cần xây lầu cao chót vót, ngôi nhà của gia đình anh Khương tại Vĩnh Phúc vẫn khiến bất cứ ai đi qua cũng phải ngước nhìn.
Hãy cùng Techhome “mổ xẻ” chi tiết hồ sơ thiết kế của ngôi nhà này để xem vì sao nó lại trở thành “mẫu nhà quốc dân” trong năm nay nhé!
1. Thông tin tổng quan dự án
Trước khi đi sâu vào chi tiết, mời bạn điểm qua những thông số vàng của công trình này. Đây là những con số biết nói, minh chứng cho năng lực thiết kế của đội ngũ Techhome:
-
Chủ đầu tư: Anh Khương
-
Địa điểm xây dựng: Vĩnh Phúc – vùng đất địa linh nhân kiệt
-
Đơn vị thiết kế: Công ty Cổ phần Kiến trúc và Xây dựng Techhome
-
Loại hình: Nhà ở gia đình (Nhà cấp 4)
-
Diện tích xây dựng: 123m2 (Diện tích sử dụng thực tế chưa tính sảnh).
-
Kích thước lô đất: Mặt tiền 13m x Chiều sâu 11.6m.
-
Công năng chính: 1 Phòng khách, 1 phòng thờ, 4 Phòng ngủ, 1 WC chung.
Mẫu nhà cấp 4 mái Nhật này không chỉ là nơi để ở, mà còn là niềm tự hào của gia chủ. Với diện tích hơn 100m2, các kiến trúc sư Techhome đã khéo léo bố trí để tối ưu hóa từng mét vuông đất, mang lại sự tiện nghi tối đa.

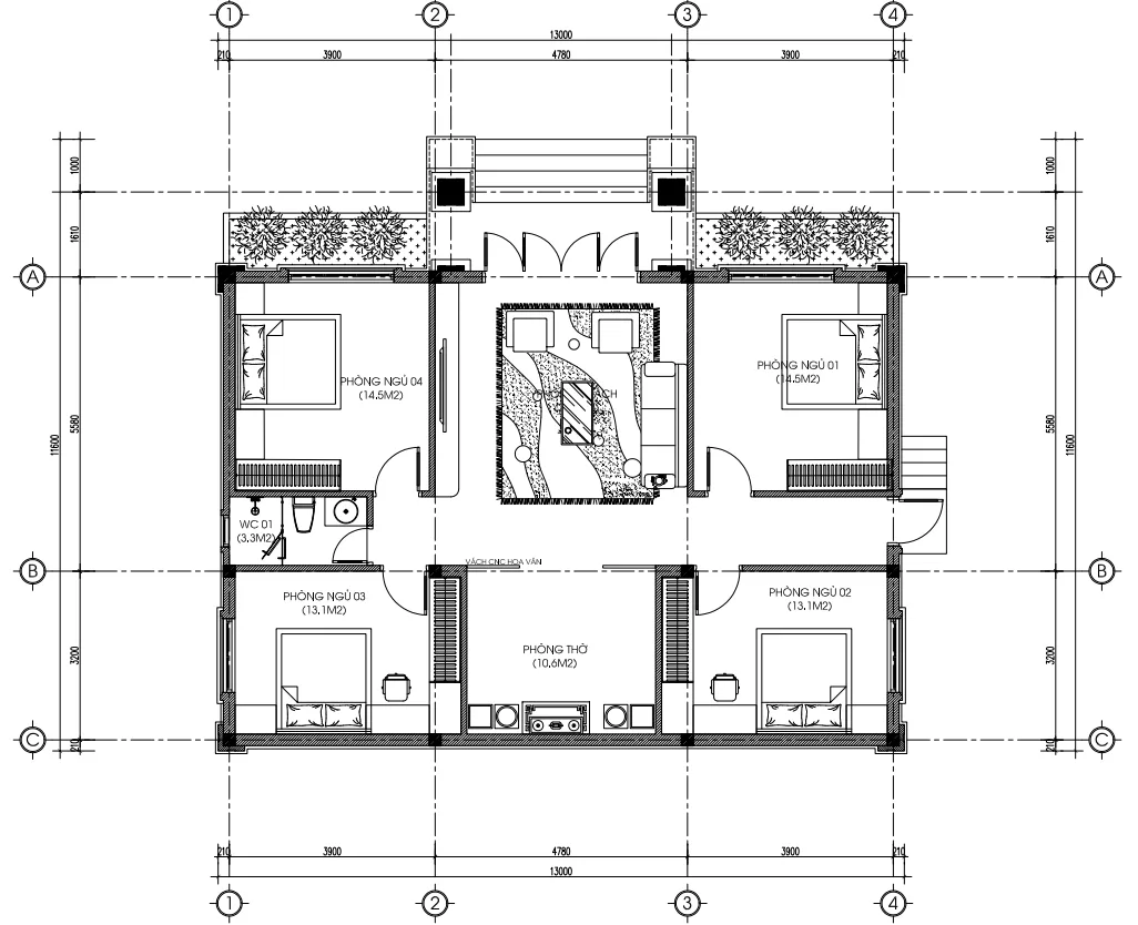
2. “Mổ xẻ” mặt bằng công năng: Bài toán diện tích được giải quyết ra sao?
Với diện tích sàn 123m2, việc bố trí 4 phòng ngủ là một bài toán không hề đơn giản. Tuy nhiên, nhìn vào bản vẽ mặt bằng , bạn sẽ thấy sự tài tình của KTS Techhome.
Trục thần đạo: Phòng khách và Phòng thờ
Bước từ sảnh chính vào là không gian trung tâm rộng lớn kết hợp giữa phòng khách và phòng thờ. Phòng thờ có diện tích 10.6m2 được đặt trang trọng ở vị trí trung tâm, nhìn thẳng ra cửa chính. Đây là vị trí “tọa cát hướng cát”, cực kỳ tốt cho phong thủy, thể hiện lòng thành kính của con cháu với tổ tiên.
Không gian đệm phía trước phòng thờ đóng vai trò là phòng khách, nơi tiếp đón bạn bè, tạo sự kết nối liền mạch và rộng rãi.
Không gian nghỉ ngơi: 4 Phòng ngủ ấm cúng
Mẫu nhà cấp 4 mái Nhật này bố trí 4 phòng ngủ chia đều sang hai bên tả – hữu của ngôi nhà, tạo sự cân bằng:
-
Phòng ngủ 01: Diện tích 14.5m2
-
Phòng ngủ 02: Diện tích 13.1m2
-
Phòng ngủ 03: Diện tích 13.1m2
- Phòng ngủ 04: Diện tích 14.5m2
Các phòng ngủ đều có diện tích tương đồng, đủ rộng để bố trí giường, tủ, bàn làm việc mà không hề bí bách. Mỗi phòng đều có cửa sổ hướng ra sân vườn, đảm bảo sự thông thoáng.
Khu vực vệ sinh
Một điểm đáng lưu ý là ngôi nhà chỉ bố trí 01 nhà vệ sinh chung (WC01) diện tích 3.3m2.
Nhiều người sẽ thắc mắc “4 phòng ngủ sao chỉ có 1 WC?”. Thực tế, với văn hóa sinh hoạt tại các vùng ngoại ô như Vĩnh Phúc, nhiều gia đình vẫn ưu tiên khu vệ sinh, bếp nấu tách biệt phía sau hoặc bên hông nhà chính để giữ cho không gian ngủ nghỉ luôn sạch sẽ, không bị ám mùi. Thiết kế này của Techhome hoàn toàn tôn trọng thói quen sinh hoạt và yêu cầu riêng của gia chủ anh Khương.

3. Phối cảnh ngoại thất: Vẻ đẹp hút hồn từ cái nhìn đầu tiên
Điều gì làm nên sức hút của mẫu nhà cấp 4 mái Nhật này? Đó chính là sự cân đối và hài hòa đến từng chi tiết.
Hệ mái Nhật – Linh hồn của ngôi nhà
Nhìn vào phối cảnh 3D, bạn sẽ thấy ngay hệ mái Nhật màu xanh than (Blue) cực kỳ bắt mắt. Khác với mái Thái dốc ngược, mái Nhật của nhà anh Khương có độ dốc vừa phải, tỏa ra các hướng, tạo cảm giác vững chãi và bề thế.
Hệ mái này không chỉ đẹp mà còn có công năng thoát nước mưa cực nhanh, chống thấm dột hiệu quả cho điều kiện khí hậu nhiệt đới gió mùa tại Vĩnh Phúc. Trên bản vẽ mặt bằng mái, hệ vì kèo và ngói lợp được tính toán kỹ lưỡng với độ phủ rộng, giúp che chắn mưa nắng cho hệ tường bên dưới.
Màu sắc và hình khối
Ngôi nhà khoác lên mình “chiếc áo” màu sơn trắng tinh khôi chủ đạo, điểm xuyết là các mảng tường ốp gạch thẻ sẫm màu và chân tường ốp đá rối. Sự tương phản này tạo nên chiều sâu cho thị giác.
Đặc biệt, hệ sảnh chính được thiết kế với bậc ngũ cấp (5 bậc) thay vì tam cấp. Điều này giúp cốt nền nhà được nâng cao hơn so với sân, không chỉ giúp ngôi nhà trông cao ráo, thoáng mát hơn mà còn tránh được tình trạng nồm ẩm hay ngập nước khi mưa lớn – một chi tiết “nhỏ nhưng có võ” trong thiết kế nhà cấp 4 mái Nhật.
Hệ thống cửa hiện đại
Toàn bộ hệ thống cửa sổ được sử dụng nhôm hệ kính cường lực Xingfa. Các ô cửa sổ lớn giúp đón trọn ánh sáng tự nhiên vào phòng ngủ, giúp không gian bên trong luôn ngập tràn năng lượng dương. Riêng cửa chính được thiết kế rộng rãi, sang trọng với các chi tiết hoa văn trang trí tinh xảo, tạo điểm nhấn đẳng cấp cho mặt tiền.

4. Tại sao mẫu nhà cấp 4 mái Nhật này lại “gây bão”?
Không phải ngẫu nhiên mà từ khóa “nhà cấp 4 mái Nhật” luôn nằm trong top tìm kiếm. Mẫu nhà 484 của anh Khương hội tụ đủ các yếu tố:
-
Tiết kiệm chi phí: So với nhà cao tầng, việc thi công nhà cấp 4 mái Nhật giúp tiết kiệm đáng kể chi phí móng và vật liệu, thời gian thi công nhanh chóng.
-
Gắn kết thành viên: Mọi sinh hoạt đều diễn ra trên một mặt sàn. Ông bà, bố mẹ và con cái dễ dàng tương tác, trò chuyện, không bị chia cắt bởi các tầng lầu.
-
Thẩm mỹ vượt thời gian: Kiến trúc mái Nhật ít bị lỗi mốt. Nó mang vẻ đẹp thanh lịch, nhẹ nhàng, rất phù hợp với cảnh quan sân vườn tại Việt Nam.
-
Dễ dàng bảo trì: Việc sửa chữa, sơn sửa hay vệ sinh mái ngói của nhà cấp 4 luôn an toàn và dễ dàng hơn nhà cao tầng.

5. Báo giá thiết kế và thi công nhà cấp 4 mái Nhật (Cập nhật 2026)
Rất nhiều khách hàng khi xem mẫu nhà này đều đặt câu hỏi: “Để xây được ngôi nhà đẹp như anh Khương thì tốn bao nhiêu tiền?”. Techhome xin đưa ra bảng dự toán tham khảo để quý khách hình dung (Lưu ý: Giá có thể thay đổi tùy thời điểm và giá vật liệu tại địa phương).
BẢNG BÁO GIÁ THAM KHẢO (Đơn vị: VNĐ)
| Hạng mục | Đơn giá tiêu chuẩn | Mô tả |
| 1. Thiết kế kiến trúc | 108.000đ/m² | Bao gồm: 3D ngoại thất, hồ sơ kiến trúc, kết cấu, điện nước (Full bộ hồ sơ như nhà anh Khương). |
| 2. Thi công phần thô | 3.800.000 – 4.200.000đ/m² | Bao gồm: Móng, tường gạch, đổ bê tông mái, trát tường, nhân công nề. |
| 3. Thi công trọn gói | 6.000.000 – 7.500.000đ/m² | Chìa khóa trao tay (Đã bao gồm gạch ốp lát, sơn bả, cửa, thiết bị vệ sinh cơ bản, hệ mái ngói). |
Dự toán chi phí cho mẫu nhà cấp 4 mái Nhật (123m²):
-
Chi phí xây thô: Khoảng 500 – 600 triệu đồng.
-
Chi phí hoàn thiện cơ bản: Khoảng 800 – 950 triệu đồng.
Lưu ý: Mức giá này chưa bao gồm nội thất rời (giường, tủ, bàn ghế) và sân vườn cổng rào.
Để có báo giá chính xác nhất cho lô đất của bạn, đừng ngần ngại liên hệ Hotline hỗ trợ kỹ thuật của chúng tôi: 0364.04.2222 – 0387.60.3333
Để tìm hiểu rõ hơn về tiêu chuẩn vật liệu xây dựng và các yếu tố ảnh hưởng đến chi phí, bạn có thể tham khảo thêm tại các bài viết chuyên sâu về vật liệu xây dựng cao cấp trên Wikipedia.

6. Hồ sơ kỹ thuật – Sự chuyên nghiệp của Techhome
Một ngôi nhà đẹp không chỉ nằm ở hình ảnh 3D lung linh mà phải chính xác từ bản vẽ kỹ thuật. Bộ hồ sơ của nhà anh Khương bao gồm đầy đủ:
-
Kiến trúc: Mặt bằng định vị, mặt bằng lát nền, chi tiết phào chỉ, chi tiết cửa
-
Kết cấu: Tính toán sắt thép, móng, dầm, sàn đảm bảo chịu lực.
-
Điện nước: Sơ đồ đi dây, cấp thoát nước chi tiết từng khu vực.
Techhome cam kết hồ sơ chi tiết đến mức thợ địa phương nhìn vào là làm được ngay. Ví dụ, chi tiết sảnh cột được vẽ tỉ mỉ từng đường gờ chỉ, kích thước 500x500mm vững chãi. Hay chi tiết mái được quy định rõ kích thước lỗ thăm mái 800x800mm để thuận tiện bảo trì.

7. Lời kết
Mẫu nhà cấp 4 mái Nhật 4 phòng ngủ của gia đình anh Khương tại Vĩnh Phúc là minh chứng rõ nét cho xu hướng sống “xanh – sành – chất”. Không phô trương cầu kỳ, ngôi nhà vẫn toát lên đẳng cấp riêng biệt.
Bạn có muốn sở hữu một cơ ngơi như vậy? Hay bạn muốn điều chỉnh thiết kế này thêm một chút (ví dụ thêm WC khép kín, mở rộng phòng khách…)?
Hãy để Techhome hiện thực hóa giấc mơ an cư của bạn. Chúng tôi không chỉ vẽ nhà, chúng tôi vẽ tổ ấm.
CÔNG TY CỔ PHẦN KIẾN TRÚC VÀ XÂY DỰNG TECHHOME
-
Hotline/Zalo: 0364.04.2222 – 0387.60.3333
-
Website: https://nhadeptechhome.vn/
-
Địa chỉ: B1.1 LK18 Ô 3 – KĐT Thanh Hà – Cienco 5 – Thanh Oai- Hà Nội.
