Có những ngày Hà Nội ồn ào và khói bụi khiến người ta chỉ muốn trốn về một nơi nào đó thật bình yên. Đó cũng chính là tâm tư mà anh Thuận ở Mỹ Đức đã chia sẻ với Techhome trong ngày đầu tiên gặp gỡ. Anh không cần một tòa lâu đài cao chót vót, anh cần một tổ ấm, một nơi mà bước chân qua cánh cổng là thấy lòng nhẹ tênh. Và từ đó, ý tưởng về mẫu biệt thự nhà vườn 1 tầng mang phong cách mái Nhật hiện đại này ra đời.
Hôm nay, hãy cùng tôi lật giở từng trang hồ sơ thiết kế, đi sâu vào từng chi tiết của công trình này để thấy tại sao đây lại là mẫu nhà đang được khao khát nhất năm 2026.
1. Thông tin tổng quan dự án
Trước khi đi vào chi tiết, tôi muốn gửi tới các bạn những thông số “biết nói” của công trình này. Đây là cơ sở để các bạn ướm thử xem mẫu biệt thự nhà vườn 1 tầng này có vừa vặn với khuôn đất nhà mình hay không:
-
Chủ đầu tư: Anh Thuận.
-
Địa điểm xây dựng: Mỹ Đức – Hà Nội.
-
Đơn vị tư vấn thiết kế: Công ty Cổ phần Kiến trúc và Xây dựng Techhome.
-
Diện tích thiết kế: 123 m2.
-
Kích thước xây dựng: Mặt tiền rộng khoảng 10.39 và chiều sâu khoảng 15m (Tính cả sảnh)
-
Công năng sử dụng: 01 Phòng thờ, 01 Phòng khách, 01 Bếp ăn, 03 Phòng ngủ (trong đó có 1 phòng khép kín), 02 WC .

2. Tại sao “Biệt thự nhà vườn 1 tầng” lại là xu hướng tại ngoại thành?
Nhiều người vẫn lầm tưởng rằng phải xây nhà cao tầng mới là sang, mới là “oách”. Nhưng với kinh nghiệm nhiều năm trong nghề, tôi khẳng định rằng: Sở hữu một căn biệt thự nhà vườn 1 tầng trên một khuôn đất rộng mới là đẳng cấp thực sự của người biết hưởng thụ.
Vẻ đẹp của sự bề thế và vững chãi
Nhìn vào phối cảnh mặt tiền nhà anh Thuận, bạn sẽ thấy ngay sự khác biệt. Không phải là những bức tường thẳng đuột đơn điệu, ngôi biệt thự nhà vườn 1 tầng này được thiết kế với hệ cột sảnh vuông vắn, to khỏe. Phần chân cột và chân tường được ốp đá rối sẫm màu, tạo cảm giác cực kỳ vững chãi và sạch sẽ, tránh được tình trạng rêu mốc do mưa hắt.
Hệ bậc tam cấp được nâng lên thành 5 bậc (ngũ cấp), ốp đá Granite sang trọng. Chi tiết này không chỉ giúp tôn nền nhà lên cao, tạo dáng vẻ bề thế cho ngôi biệt thự nhà vườn 1 tầng mà còn mang ý nghĩa phong thủy tốt đẹp (Sinh – Lão – Bệnh – Tử – Sinh), đem lại vượng khí cho gia chủ.
Kiến trúc mái Nhật – Điểm nhấn hoàn hảo
Linh hồn của mẫu biệt thự nhà vườn 1 tầng này chính là hệ mái Nhật màu xanh than lịch lãm. Khác với mái Thái dốc gắt, mái Nhật có độ dốc vừa phải, mở rộng ra các hướng, ôm trọn lấy khối nhà. Trên bản vẽ mặt bằng mái, các kiến trúc sư Techhome đã khéo léo bố trí các hệ mái giật cấp, kết hợp với các cửa sổ mái trang trí.
Chi tiết này không chỉ để “làm điệu”. Cửa sổ mái giúp đối lưu không khí trong khoảng không gian đệm dưới mái, làm mát ngôi nhà vào mùa hè oi bức của miền Bắc. Đây là giải pháp kỹ thuật thông minh mà Techhome luôn áp dụng cho các thiết kế biệt thự nhà vườn 1 tầng.
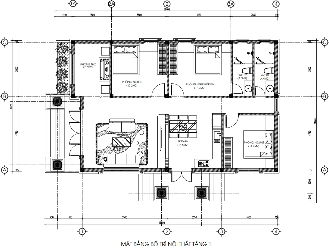
3. “Mổ xẻ” công năng: Bài toán diện tích 123m2
Điều Techhome tâm đắc nhất ở căn nhà của anh Thuận không phải là vẻ ngoài hào nhoáng, mà là cách bố trí công năng bên trong. Với diện tích sàn 123m2, làm sao để có đủ 3 phòng ngủ, phòng thờ, khách bếp mà không gian vẫn thoáng đãng? Đó là nghệ thuật sắp đặt.
Trục giao thông và không gian chung
Bước qua sảnh chính và hệ cửa 4 cánh rộng 3m, chúng ta sẽ bắt gặp ngay phòng khách liên thông với sảnh đệm.
-
Phòng thờ (7.7m2): Được đặt ngay cạnh phòng khách, ở vị trí trang trọng nhất hướng ra mặt tiền. Đây là nét văn hóa truyền thống không thể thiếu trong các ngôi biệt thự nhà vườn 1 tầng tại Việt Nam.
-
Bếp ăn (15.6m2): Nằm sâu bên trong nhưng có cửa phụ mở ra sảnh phụ bên hông. Thiết kế này cực kỳ tinh tế: Khi nhà có giỗ chạp hay đi chợ về, các bà các mẹ có thể đi lối cửa phụ vào bếp mà không cần xách đồ ăn sống đi qua phòng khách sang trọng.
Không gian nghỉ ngơi riêng tư
Ba phòng ngủ được bố trí khoa học, đẩy về các góc để tận dụng ánh sáng tự nhiên:
-
Phòng ngủ 01 (12.2m2): Diện tích vừa vặn cho con cái.
-
Phòng ngủ khép kín (13.7m2): Đây là phòng Master dành cho vợ chồng anh Thuận, đảm bảo sự riêng tư tuyệt đối.
-
Phòng ngủ 03 (11.4m2): Có thể linh hoạt làm phòng cho khách hoặc ông bà.
Điểm cộng lớn của mẫu biệt thự nhà vườn 1 tầng này là hệ thống 2 nhà vệ sinh (1 chung, 1 riêng) đều có diện tích 4.4m2. Các thiết bị vệ sinh như Lavabo, xí bệt, sen tắm đứng được bố trí tiêu chuẩn, đảm bảo công năng sử dụng thoải mái nhất.

4. Vật liệu hiện đại kiến tạo nên Biệt thự nhà vườn 1 tầng đẳng cấp
Một bản vẽ đẹp mới chỉ là 50%, 50% còn lại nằm ở vật liệu thi công. Trong hồ sơ kỹ thuật thi công của nhà anh Thuận, Techhome đã chỉ định những vật liệu bền vững nhất:
-
Hệ thống cửa: Toàn bộ ngôi nhà sử dụng cửa nhôm hệ kết hợp kính an toàn dày 8.38mm. Loại cửa này giúp ngôi biệt thự nhà vườn 1 tầng luôn tràn ngập ánh sáng, cách âm tốt và không bị cong vênh, mối mọt như cửa gỗ truyền thống.
-
Sàn nhà: Sử dụng gạch Granite vân đá kích thước lớn 800x800mm. Gạch khổ lớn giúp sàn nhà ít đường ron, tạo cảm giác không gian rộng mở và liền mạch hơn.
-
Trần thạch cao: Hệ trần được thiết kế giật cấp, kết hợp đèn downlight âm trần và đèn hắt, tạo nên vẻ đẹp lung linh cho nội thất vào buổi tối.
5. Báo giá thiết kế và thi công Biệt thự nhà vườn 1 tầng (Năm 2026)
Đây chắc chắn là phần mà các bạn mong chờ nhất. “Đẹp thế này thì hết bao nhiêu tiền?”. Để sở hữu một căn biệt thự nhà vườn 1 tầng chuẩn chỉ như nhà anh Thuận, Techhome xin gửi tới bạn bảng báo giá tham khảo cập nhật mới nhất năm 2026.
(Lưu ý: Giá có thể biến động tùy thuộc vào giá vật liệu tại địa phương và thời điểm khởi công)
5.1. Chi phí thiết kế
Để có bộ hồ sơ dày hàng trăm trang từ kiến trúc, kết cấu đến điện nước, chi phí đầu tư cho chất xám là rất xứng đáng:
-
Gói thiết kế Kiến trúc + Kết cấu + Điện nước: 108.000 VNĐ/m2.
-
Gói thiết kế Nội thất 3D: 150.000 VNĐ/m2.
-
Tổng chi phí thiết kế cho nhà 123m2: Khoảng 14.000.000 VNĐ.
Đổi lại số tiền này, bạn sẽ có một bộ hồ sơ chi tiết đến từng viên gạch, thợ chỉ việc nhìn bản vẽ làm, không lo sai sót, không lo phát sinh. Quá rẻ cho sự an tâm phải không nào?
5.2. Chi phí thi công trọn gói (Chìa khóa trao tay)
Với mẫu biệt thự nhà vườn 1 tầng mái Nhật, mức đầu tư sẽ chia làm các gói:
-
Gói Trung bình khá: 6.000.000 VNĐ/m2.
-
Tổng chi phí ước tính: 123m2 x 6.000.000 = 738.000.000 VNĐ.
-
Vật tư: Gạch ốp lát trong nước (Viglacera, Prime), sơn Dulux/Jotun, cửa nhôm hệ Xingfa Việt Nam, thiết bị vệ sinh Inax.
-
-
Gói Cao cấp: 7.500.000 VNĐ/m2.
-
Tổng chi phí ước tính: 123m2 x 7.500.000 = 922.500.000 VNĐ.
-
Vật tư: Gạch nhập khẩu hoặc Granite cao cấp, cửa nhôm Xingfa tem đỏ nhập khẩu/Cửa gỗ Lim Nam Phi, thiết bị vệ sinh Toto, ngói Fuji/Prime.
-
Như vậy, chỉ với khoảng 800 triệu – 1 tỷ đồng, bạn hoàn toàn có thể sở hữu một cơ ngơi biệt thự nhà vườn 1 tầng khang trang, bền đẹp trọn đời tại Techhome.
Lưu ý: Đây chỉ là mức chi phí ước tính. Để nhận được báo giá chính xác và chi tiết nhất cho công trình của bạn, vui lòng liên hệ trực tiếp với chúng tôi. Hoặc để tìm hiểu rõ hơn về tiêu chuẩn vật liệu xây dựng và các yếu tố ảnh hưởng đến chi phí, bạn có thể tham khảo thêm tại các bài viết chuyên sâu về vật liệu xây dựng cao cấp trên Wikipedia.

6. Góc nhìn chuyên gia: Những lưu ý “sống còn” khi xây Biệt thự nhà vườn 1 tầng
Là người trực tiếp biên tập và xem xét hàng nghìn hồ sơ thiết kế, Techhome muốn chia sẻ thêm với các bạn những kinh nghiệm thực chiến mà không sách vở nào dạy, đặc biệt dành cho mẫu biệt thự nhà vườn 1 tầng.
6.1. Đừng tiếc tiền cho phần Móng và Mái
Móng là chân, mái là đầu. Một ngôi biệt thự nhà vườn 1 tầng dù thấp tầng nhưng diện tích mái rất lớn và nặng.
-
Về phần mái: Hãy yêu cầu thợ thi công đúng khoảng cách lito (thanh mè) theo kích thước ngói. Nếu đóng sai khoảng cách, khi lợp ngói sẽ bị hở hoặc chồng lên nhau không khít, gây dột sau này.
-
Về phần móng: Tùy vào địa chất đất Mỹ Đức hay nơi bạn ở, hãy khảo sát kỹ. Nếu đất yếu (đất ruộng, đất ao lấp), bắt buộc phải ép cọc bê tông hoặc làm móng bè. Đừng chủ quan vì nghĩ nhà 1 tầng nhẹ mà làm móng qua loa.
6.2. Cảnh quan sân vườn – Yếu tố “Vàng”
Đã gọi là biệt thự nhà vườn 1 tầng thì cái “Vườn” quan trọng ngang cái “Nhà”.
-
Trong bản vẽ định vị công trình, bạn sẽ thấy ngôi nhà được đặt lùi về một phía để chừa khoảng sân rộng.
-
Lời khuyên: Đừng bê tông hóa toàn bộ sân. Hãy chừa lại các khoảng đất trồng cỏ nhung Nhật, trồng cây bóng mát (như Lộc Vừng, Tùng La Hán) ở góc sân. Lát đá bước dạo xen kẽ cỏ sẽ giúp sân vườn thoát nước nhanh hơn và giảm bức xạ nhiệt cực tốt vào mùa hè.
6.3. Chiếu sáng nghệ thuật
Đừng chỉ lắp mỗi bóng đèn tuýp sáng choang. Hãy học cách chơi ánh sáng của Techhome.
-
Sử dụng đèn hắt chân cột mặt tiền.
-
Dùng đèn led dây hắt khe trần thạch cao.
-
Ánh sáng vàng ấm (3000K-4000K) sẽ làm cho ngôi biệt thự nhà vườn 1 tầng trở nên ấm cúng và sang trọng hơn rất nhiều so với ánh sáng trắng lạnh.
6.4. Chú trọng hệ thống thoát nước mái
Với diện tích mái lớn của biệt thự nhà vườn 1 tầng, lượng nước mưa thu về là rất khủng khiếp. Bạn cần tính toán kỹ hệ thống sê-nô thu nước và ống thoát D90 hoặc D110 chạy xuống đất. Tuyệt đối không để nước xối tự do từ mái xuống sân, lâu ngày sẽ làm hỏng nền sân và bắn bẩn chân tường.

7. Quy trình làm việc tại Techhome
Để ra đời được bộ hồ sơ chất lượng cho nhà anh Thuận, Techhome áp dụng quy trình 6 bước chuyên nghiệp:
-
Tiếp nhận thông tin: Lắng nghe mong muốn về mẫu biệt thự nhà vườn 1 tầng.
-
Khảo sát hiện trạng: KTS về tận Mỹ Đức đo đạc đất, check phong thủy.
-
Lên phương án mặt bằng: Bố trí công năng 3 phòng ngủ tối ưu.
-
Dựng phối cảnh 3D: Giúp chủ nhà hình dung rõ ngôi nhà tương lai.
-
Triển khai hồ sơ kỹ thuật: Kết cấu, điện nước, dự toán chi tiết.
-
Bàn giao và giám sát tác quyền: Hỗ trợ kỹ thuật từ xa trọn đời công trình.
8. Lời kết
Ngôi nhà của anh Thuận tại Mỹ Đức không chỉ là một công trình xây dựng, nó là minh chứng cho thấy xu hướng biệt thự nhà vườn 1 tầng đang trỗi dậy mạnh mẽ như thế nào. Nó cân bằng giữa cuộc sống hiện đại tiện nghi và khao khát được hòa mình vào thiên nhiên của con người.
Nếu bạn đang sở hữu một mảnh đất rộng và cũng mơ ước về một tổ ấm bình yên như thế, đừng ngần ngại liên hệ với Techhome. Chúng tôi không chỉ vẽ nhà, chúng tôi vẽ nên phong cách sống của bạn.
Hãy để mẫu biệt thự nhà vườn 1 tầng này là nguồn cảm hứng cho ngôi nhà tương lai của bạn nhé!
CÔNG TY CỔ PHẦN KIẾN TRÚC VÀ XÂY DỰNG TECHHOME
-
Hotline/Zalo: 0364.04.2222 – 0387.60.3333.
-
Website: https://nhadeptechhome.vn/
-
📍 Địa chỉ: B1.1 LK18 Ô 3 – KĐT Thanh Hà – Cienco 5 – Thanh Oai- Hà Nội.
